Информационная система
«Ёшкин Кот»

Скачать базу одним архивом
Скачать обновления
История создания базы
Карта сайта

Скачать Типовой проект 708-43.89 Альбом 3. Конструкции железобетонные

Дата актуализации: 10.08.2017

Типовой проект 708-43.89

Альбом 3. Конструкции железобетонные

Обозначение: Типовой проект 708-43.89
Обозначение англ: 708-43.89
Статус:не определен законодательством
Название рус.:Альбом 3. Конструкции железобетонные
Дата добавления в базу:01.09.2013
Дата актуализации:05.05.2017
Дата введения:17.03.1989
Оглавление:Чертежи основного комплекта марки КЖ
   Общие данные
   Схема расположения конструкций нулевого цикла. Схемы №1, №2
   Схема расположения конструкций нулевого цикла. Разрезы 1-1 - 5-5
   Схемы расположения сборных конструкций
   Схема расположения набетонок. Монолитные участки Ум1, Ум2. Распорка РПм1
   Спецификация набетонок, РПм1, Ум1, Ум2. Ведомости деталей и расхода стали
   Фундаменты Фо1, Фо1-1
   Фундаменты Фо2 - Фо10
   Спецификация фундаментов Фо1-1, Фо1 - Фо10. Ведомость деталей. Ведомость расхода стали на элемент
   Фундамент Фо11. Опалубка. Сечения 1-1 - 4-4
   Фундамент Фо11. Элемент плана №1
   Фундамент Фо11. Армирование. Элемент плана №1. Сечения 1-1 - 6-6
   Приямок ПРМ1. Опалубка. План на отметке - 5.030. Разрезы 1-1 - 5-5. Схемы №1, №2
   ПРМ1. Армирование. Схема расположения арматурных изделий стен. Сечения 1-1 - 3-3. Схемы №1, №2
   ПРМ1. Армирование. Схемы расположения сеток днища и покрытия на отметке - 2.500. Сечения 4-4, 5-5. Схемы №1, №2
   ПРМ1. Армирование. Сечения 6-6 - 10-10
   Спецификация фундамента Фо11 и приямков ПРм1, ПРМ1а
   Фундамент Фо11, приямок ПРм1, ПРм1а. Ведомость расхода стали на элемент. Ведомость деталей
   Подбункерный тоннель. Опалубка. План на отметке - 5.450 и 7.200. Схема №1
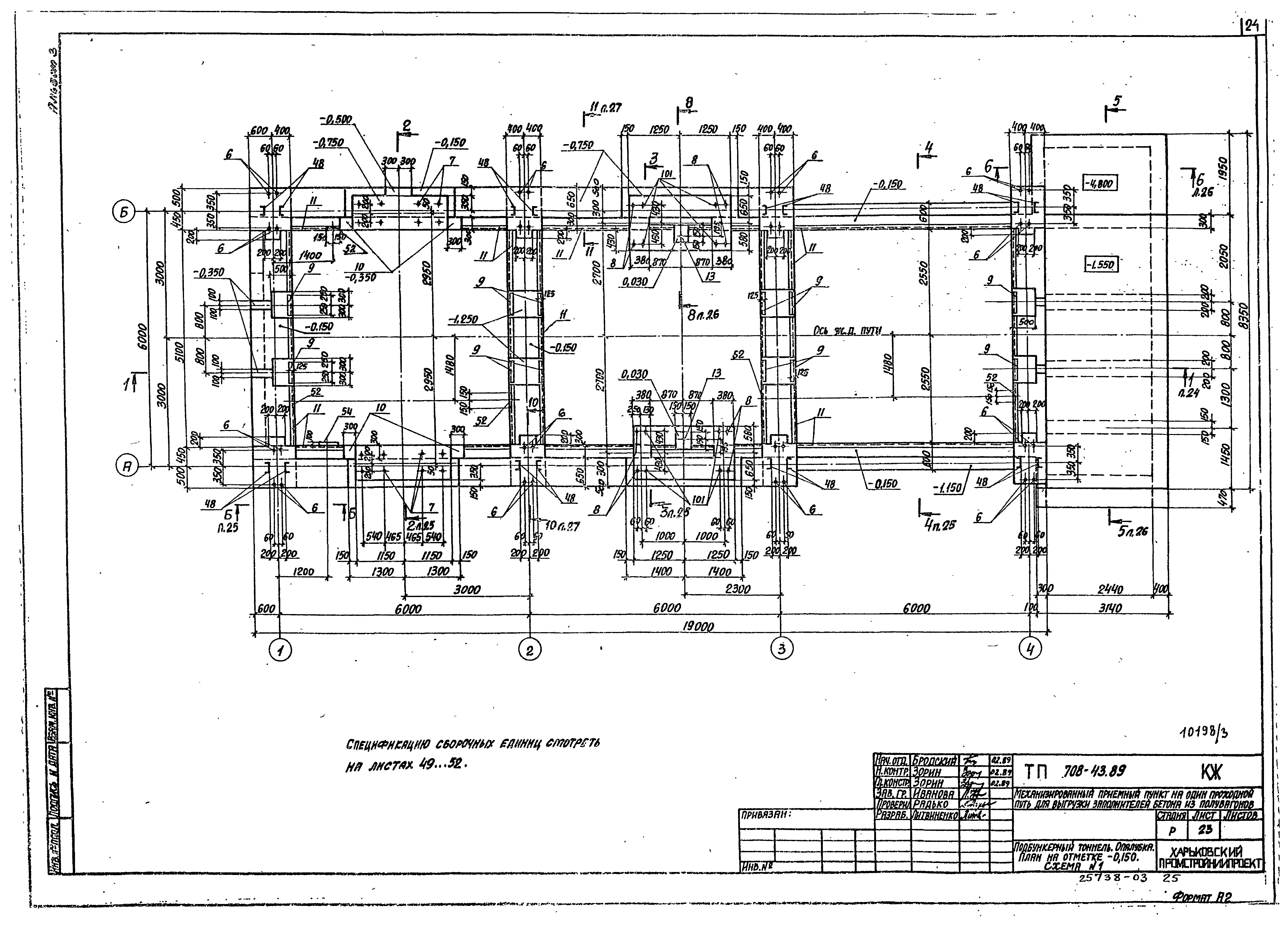
   Подбункерный тоннель. Опалубка. План на отметке - 0.150. Схема №1
   Подбункерный тоннель. Опалубка. Разрез 1-1. Схема №1
   Подбункерный тоннель. Опалубка. Разрезы 2-2 - 4-4; Б-Б
   Подбункерный тоннель. Опалубка. Разрезы 2-2; 5-5 - 8-8; А-А. Схемы №1, №4
   Подбункерный тоннель. Опалубка. Разрезы 3-3; 9-9 - 11-11
   Схема расположения конструктивных элементов подбункерного тоннеля. Схема №1
   Подбункерный тоннель. Армирование. Схемы расположения нижних и верхних сеток днища Дм1. Схема №1
   Подбункерный тоннель. Армирование. Схемы расположения выпусков и поддерживающих каркасов днища Дм1. Схемы №1, №2
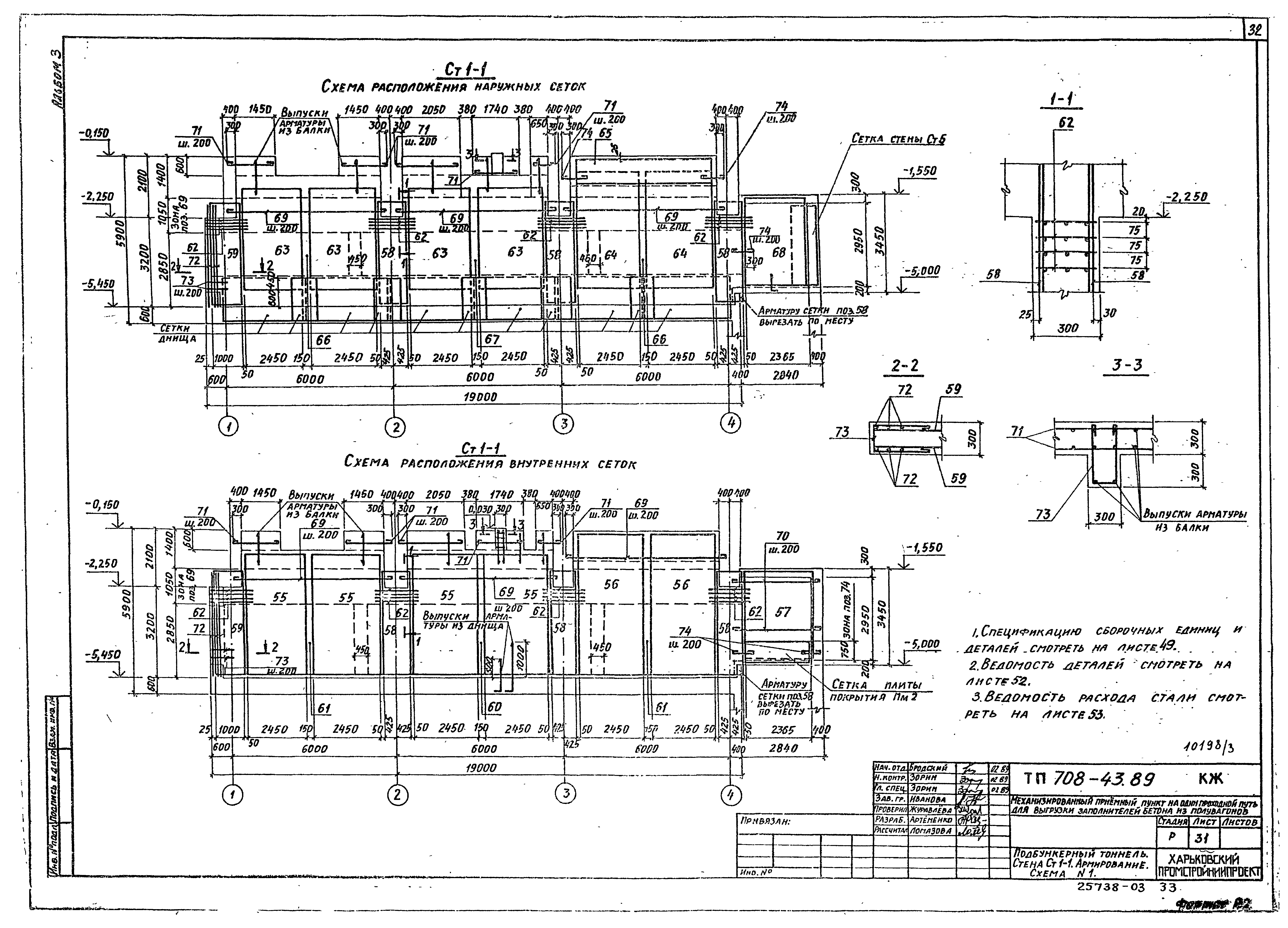
   Подбункерный тоннель. Стена Ст1-1. Армирование. Схема №1
   Подбункерный тоннель. Стена Ст2-1. Армирование. Схема №1
   Подбункерный тоннель. Стена Ст3, Ст3н, Ст4. Армирование
   Подбункерный тоннель. Армирование. Стены Ст5, Ст5н
   Подбункерный тоннель. Стены Ст6, Ст6н, Ст7, Ст7н. Армирование
   Подбункерный тоннель. Армирование. Стены Ст8, Ст8н
   Подбункерный тоннель. Армирование. Плита покрытия Пм1
   Подбункерный тоннель. Армирование. Плита покрытия Пм2. Балки Бм1, Бм2
   Подбункерный тоннель. Балки Бм3, Бм4. Сечение 1-1
   Подбункерный тоннель. Балки Бм3, Бм4. Сечения 2-2 - 8-8
   Подбункерный тоннель. Армирование. Ригель Рм1. Схемы №1, №2
   Подбункерный тоннель. Армирование. Ригель Рм2
   Подбункерный тоннель. Армирование. Ригель Рм3. Схемы №1, №2
   План на отметке - 5.450. Армирование. Схема №1
   Подбункерный тоннель. Армирование. План на отметке - 7.200. сечение 7-7. Схемы №1, №2
   Подбункерный тоннель. Армирование. Сечение 1-1. Схемы №1, №2
   Подбункерный тоннель. Армирование. Сечения 2-2; 3-3
   Подбункерный тоннель. Армирование. Сечения 4-4 - 6-6
   Подбункерный тоннель. Спецификация. Схема №1
   Подбункерный тоннель. Спецификация. Ведомость деталей. Схема №1
   Подбункерный тоннель. Ведомость расхода стали. Схема №1
   Подбункерный тоннель. Опалубка. План на отметке - 5.450 и 7.200. Схема №2
   Подбункерный тоннель. Опалубка. План на отметке - 0.150. Схема №2
   Подбункерный тоннель. Опалубка. Разрез 1-1. Схема №2
   Подбункерный тоннель. Опалубка. Разрезы 2-2, 5-5 - 8-8, А-А. Схемы №2, №3
   Схема расположения конструктивных элементов подбункерного тоннеля. Схема №2
   Подбункерный тоннель. Армирование. Схемы расположения нижних и верхних сеток днища Дм1. Схема №2
   План на отметке - 5.450. Армирование. Схема №2
   Подбункерный тоннель. Стена Ст1-2. Армирование. Схема №2
   Подбункерный тоннель. Стена Ст2-2. Армирование. Схема №2
   Подбункерный тоннель. Спецификация. Схема №2
   Подбункерный тоннель. Спецификация. Ведомость деталей. Схема №2
   Подбункерный тоннель. Ведомость расхода стали. Схема №2
   Схема расположения конструкций нулевого цикла. Схемы №3, №4
   Приямок ПРм1А. Опалубка. План на отметке - 5.030. Разрезы 1-1 - 5-5. Схемы №3, №4
   ПРм1А. Армирование. Схема расположения арматурных изделий стен. Сечения 1-1 - 3-3. Схемы №3, №4
   ПРм1А. Армирование. Схемы расположения сеток днища и покрытия на отметке - 2.500. Сечения 4-4 - 5-5. Схемы №3, №4
   Подбункерный тоннель. Опалубка. План на отметке - 5.450 и -7.200. Схема №3
   Подбункерный тоннель. Опалубка. План на отметке - 0.150. Схема №3
   Подбункерный тоннель. Опалубка. Разрез 1-1. Схема №3
   Схема расположения конструктивных элементов подбункерного тоннеля. Схема №3
   Подбункерный тоннель. Армирование. Схемы расположения нижних и верхних сеток днища Дм1. Схема №3
   Подбункерный тоннель. Армирование. Схемы расположения выпусков и поддерживающих каркасов днища Дм1. Схемы №3, №4
   Подбункерный тоннель. Стена Ст1-3. Армирование. Схема №3
   Подбункерный тоннель. Стена Ст2-3. Армирование. Схема №3
   Подбункерный тоннель. Армирование. Ригель Рм4. Схемы №3, №4
   Подбункерный тоннель. Армирование. Ригель Рм5. Схемы №3, №4
   План на отметке - 5.450. Армирование. Схема №3
   Подбункерный тоннель. Армирование. План на отметке - 7.200. Сечение 7-7. Схемы №3, №4
   Подбункерный тоннель. Армирование. Сечение 1-1. Схемы №3, №4
   Подбункерный тоннель. Спецификация. Схема №3
   Подбункерный тоннель. Спецификация. Ведомость деталей. Схема №3
   Подбункерный тоннель. Ведомость расхода стали. Схема №3
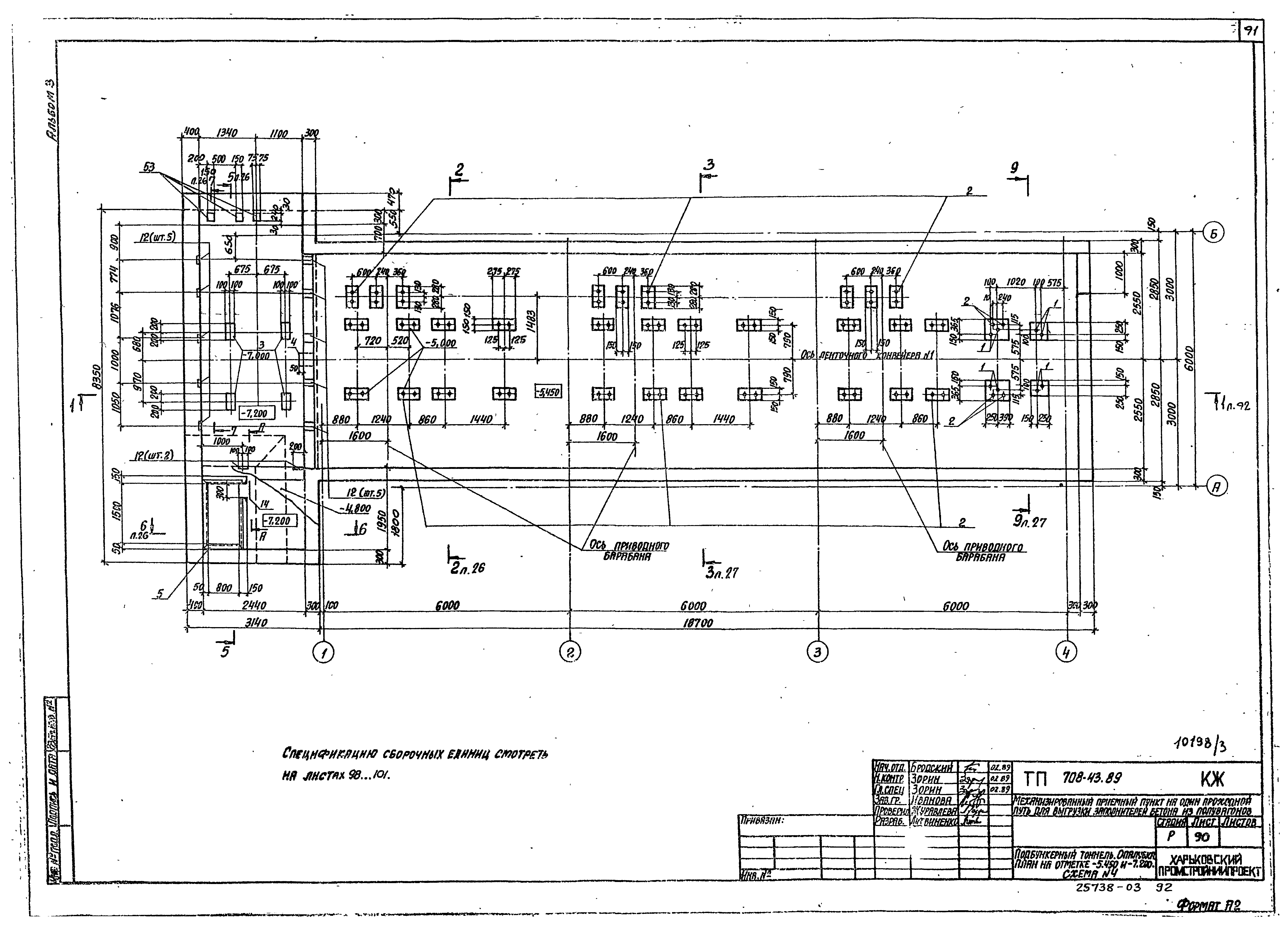
   Подбункерный тоннель. Опалубка. План на отметке - 5.450 и 7.200. Схема №4
   Подбункерный тоннель. Опалубка. План на отметке - 0.150. Схема №4
   Подбункерный тоннель. Опалубка. Разрез 1-1. Схема №4
   Схема расположения конструктивных элементов подбункерного тоннеля. Схема №4
   Подбункерный тоннель. Армирование. Схемы расположения нижних и верхних сеток днища Дм1. Схема №4
   Подбункерный тоннель. Стена Ст1-4. Армирование. Схема №4
   Подбункерный тоннель. Стена Ст2-4. Армирование. Схема №4
   План на отметке - 5.450. Армирование. Схема №4
   Подбункерный тоннель. Спецификация. Схема №4
   Подбункерный тоннель. Спецификация. Ведомость деталей. Схема №4
   Подбункерный тоннель. Ведомость расхода стали. Схема №4
   Примеры решения узлов гидроизоляции. Схема расположения узлов гидроизоляции. Узлы I - VI
Разработан: Харьковский Промстройниипроект
Тяжпромэлектропроект
Промтрансниипроект
Утверждён:27.10.1988 Госстрой СССР (Государственный комитет Совета Министров СССР по делам строительства) (USSR Gosstroy )
Расположен в:Техническая документация Строительство Справочные документы Типовые строительные конструкции, изделия и узлы Общероссийский строительный каталог Промышленные предприятия, здания и сооружения Предприятия, здания и сооружения складские Склады строительных материалов и изделий
Типовой проект 708-43.89Типовой проект 708-43.89Типовой проект 708-43.89Типовой проект 708-43.89Типовой проект 708-43.89Типовой проект 708-43.89Типовой проект 708-43.89Типовой проект 708-43.89Типовой проект 708-43.89Типовой проект 708-43.89Типовой проект 708-43.89Типовой проект 708-43.89Типовой проект 708-43.89Типовой проект 708-43.89Типовой проект 708-43.89Типовой проект 708-43.89Типовой проект 708-43.89Типовой проект 708-43.89Типовой проект 708-43.89Типовой проект 708-43.89Типовой проект 708-43.89Типовой проект 708-43.89Типовой проект 708-43.89Типовой проект 708-43.89Типовой проект 708-43.89Типовой проект 708-43.89Типовой проект 708-43.89Типовой проект 708-43.89Типовой проект 708-43.89Типовой проект 708-43.89Типовой проект 708-43.89Типовой проект 708-43.89Типовой проект 708-43.89Типовой проект 708-43.89Типовой проект 708-43.89Типовой проект 708-43.89Типовой проект 708-43.89Типовой проект 708-43.89Типовой проект 708-43.89Типовой проект 708-43.89Типовой проект 708-43.89Типовой проект 708-43.89Типовой проект 708-43.89Типовой проект 708-43.89Типовой проект 708-43.89Типовой проект 708-43.89Типовой проект 708-43.89Типовой проект 708-43.89Типовой проект 708-43.89Типовой проект 708-43.89Типовой проект 708-43.89Типовой проект 708-43.89Типовой проект 708-43.89Типовой проект 708-43.89Типовой проект 708-43.89Типовой проект 708-43.89Типовой проект 708-43.89Типовой проект 708-43.89Типовой проект 708-43.89Типовой проект 708-43.89Типовой проект 708-43.89Типовой проект 708-43.89Типовой проект 708-43.89Типовой проект 708-43.89Типовой проект 708-43.89Типовой проект 708-43.89Типовой проект 708-43.89Типовой проект 708-43.89Типовой проект 708-43.89Типовой проект 708-43.89Типовой проект 708-43.89Типовой проект 708-43.89Типовой проект 708-43.89Типовой проект 708-43.89Типовой проект 708-43.89Типовой проект 708-43.89Типовой проект 708-43.89Типовой проект 708-43.89Типовой проект 708-43.89Типовой проект 708-43.89Типовой проект 708-43.89Типовой проект 708-43.89Типовой проект 708-43.89Типовой проект 708-43.89Типовой проект 708-43.89Типовой проект 708-43.89Типовой проект 708-43.89Типовой проект 708-43.89Типовой проект 708-43.89Типовой проект 708-43.89Типовой проект 708-43.89Типовой проект 708-43.89Типовой проект 708-43.89Типовой проект 708-43.89Типовой проект 708-43.89Типовой проект 708-43.89Типовой проект 708-43.89Типовой проект 708-43.89Типовой проект 708-43.89Типовой проект 708-43.89Типовой проект 708-43.89Типовой проект 708-43.89Типовой проект 708-43.89Типовой проект 708-43.89Типовой проект 708-43.89

© 2013 Ёшкин Кот :-) Карта сайта