Скачать Типовой проект 3.501-30/75 Выпуск 8. Типовой проект монтажа типовых железнодорожных металлических пролетных строений с ездой понизу пролетами 66,0 - 110,0 м (в Северном исполнении). Рабочие чертежиДата актуализации: 10.08.2017 Типовой проект 3.501-30/75
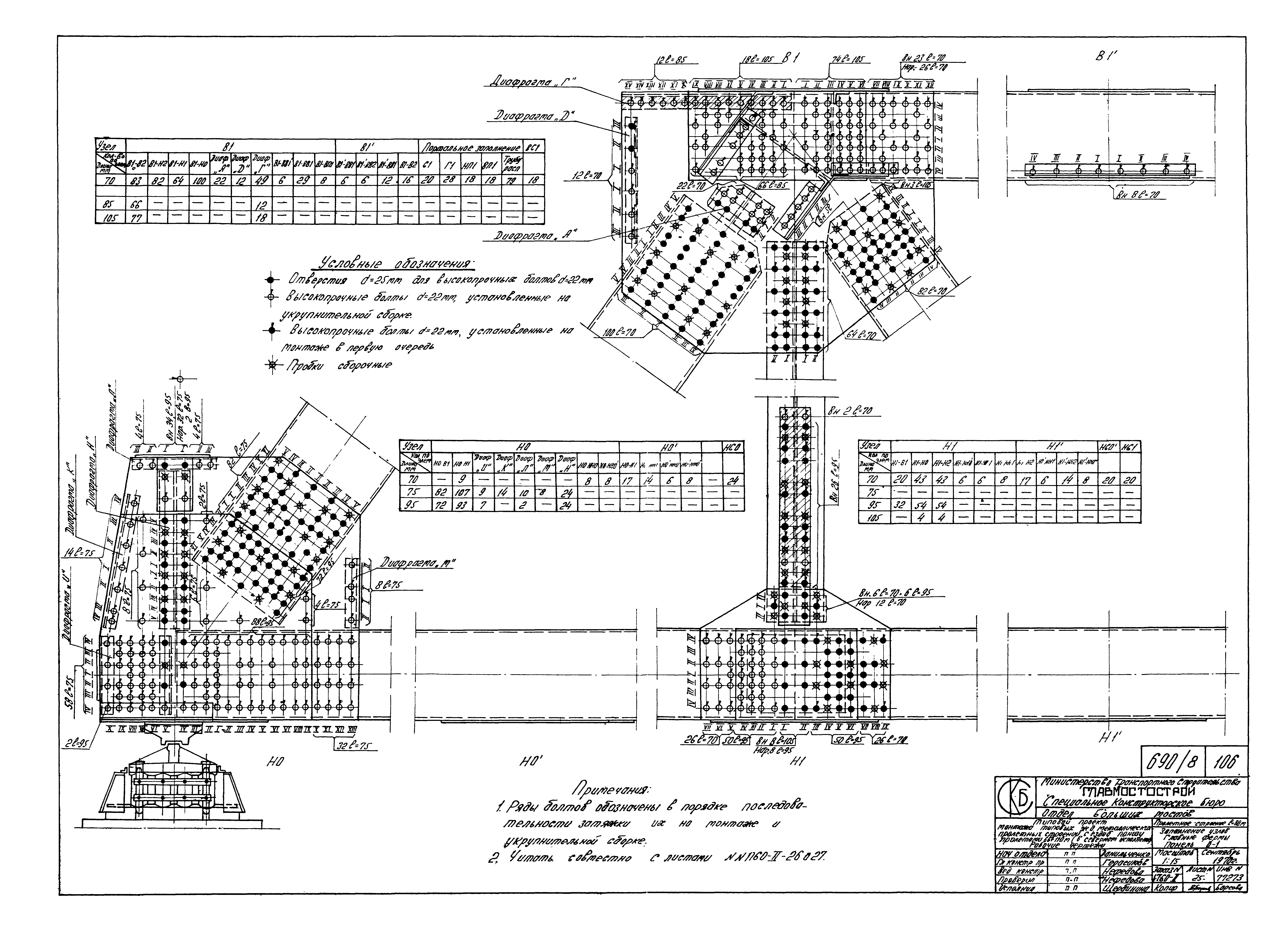
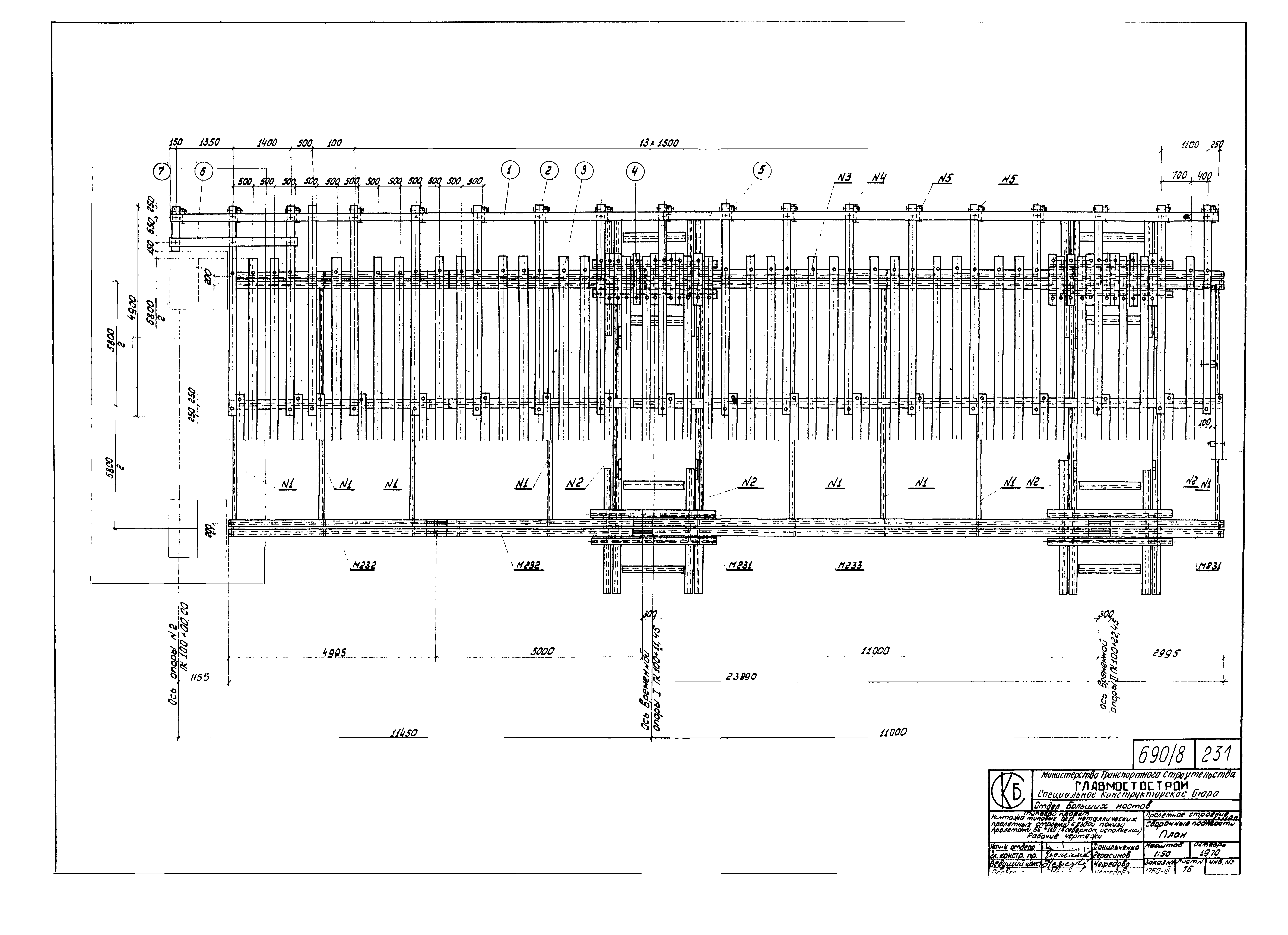
Выпуск 8. Типовой проект монтажа типовых железнодорожных металлических пролетных строений с ездой понизу пролетами 66,0 - 110,0 м (в Северном исполнении). Рабочие чертежиОбозначение: | Типовой проект 3.501-30/75 | Обозначение англ: | 3.501-30/75 | Статус: | заменен | Название рус.: | Выпуск 8. Типовой проект монтажа типовых железнодорожных металлических пролетных строений с ездой понизу пролетами 66,0 - 110,0 м (в Северном исполнении). Рабочие чертежи | Дата добавления в базу: | 01.09.2013 | Дата актуализации: | 05.05.2017 | Дата введения: | 01.06.1975 | Оглавление: | Общая пояснительная записка Таблица применения монтажных кранов для монтажа пролетных строений Установка сборочных клеток и домкратов на подмостках. Конструкция Установка домкратов и страховочных клеток на временной опоре. Конструкция Установка домкратов и страховочных клеток на капитальной опоре. Конструкция Подвесная люлька для монтажа пролетных строений. Схема подвешивания Подвесная люлька для монтажа пролетных строений. Конструкция Схема временного электроосвещения и воздухоснабжения Временный путь на пролетном строении Раздел I. Пролетное строение L = 66,0 м Титульный лист Состав проекта Пояснительная записка Монтажная схема Комплектовочная ведомость отправочных марок Навесной монтаж Общая схема и порядок работ по навесному монтажу Ведомость укрупнительной сборки Схема последовательности монтажа стоянки крана Ведомость последовательности монтажа Схема и ведомость последовательности демонтажа соединительных элементов. Общие указания Заполнение узлов Главные фермы. Панель 0-1 Горизонтальные связи. Панель 0-1 Портальное заполнение Главные фермы. Панель 2-3 Горизонтальные связи. Панель 2-3 Главные фермы. Панель 4-5 Горизонтальные связи. Панель 4-5 Главные фермы. Панель 6-7 Горизонтальные связи. Панель 6-7 Главные фермы. Панель 8-0-1 Горизонтальные связи. Панель 8-0-1 Узлы В2 и Н2 II-го пролета Главные фермы. Панель 7-8 II-го пролета Горизонтальные связи. Панель 7-8 II-го пролета Проезжая часть. Продольные балки Проезжая часть. Продольные балки. Диафрагмы Сводная ведомость высокопрочных болтов и пробок Расчет прогиба конца консоли Анкеровка узла НО анкерного пролета за капитальную опору Подкрановый путь по верхним поясам для крана типа Зубач Сборочные подмости. Фасад Сборочные подмости. Разрез I-I. Спецификация Сборочные подмости. План Сборочные подмости. Временная опора III. Фасад. Боковой вид Сборочные подмости. Временная опора III. План. План свай Сборочные подмости. Временная опора I и II. Монтажная схема УИК-М Сборочные подмости. Временная опора III. Монтажная схема УИК-М Общая схема и порядок работ по навесному монтажу. Вариант График выполнения работ К графику выполнения работ сборник ЕНиР Склад металлоконструкций Раздел II. Пролетное строение L = 88,0 м Титульный лист Состав проекта Пояснительная записка Монтажная схема Комплектовочная ведомость отправочных марок Навесной монтаж Общая схема и порядок работ по навесному монтажу Ведомость укрупнительной сборки Схема последовательности монтажа стоянки крана Схема последовательности монтажа Схема и ведомость последовательности демонтажа соединительных элементов. Общие указания Заполнение узлов Главные фермы. Панель 0-1 Горизонтальные связи. Панель 0-1 Портальное заполнение Главные фермы. Панель 2-3 Горизонтальные связи. Панель 2-3 Главные фермы. Панель 4-5 Горизонтальные связи. Панель 4-5 Главные фермы. Панель 6-7 Горизонтальные связи. Панель 6-7 Главные фермы. Панель 8-0 Горизонтальные связи. Панель 8-0 Главные фермы. Панель 1-1 консольного пролета Горизонтальные связи. Панель 1-1 консольного пролета Главные фермы. Панель 2-3 консольного пролета Горизонтальные связи. Панель 2-3 консольного пролета Главные фермы. Панель 6-7 консольного пролета Горизонтальные связи. Панель 6-7 консольного пролета Узел Н8 консольного пролета Продольная балка. Панель 0-0 Продольная балка. Панель 0-1 Проезжая часть. Узлы. Разрезы Сборная ведомость высокопрочных болтов и пробок Расчет прогиба конца консоли Анкеровка узла НО анкерного пролета за капитальную опору Подкрановый путь по верхним поясам Сборочные подмости. Фасад Сборочные подмости. Разрез I-I. Спецификация Сборочные подмости. План Сборочные подмости. Временная опора III. Фасад. Боковой вид Сборочные подмости. Временная опора III. План свай. Спецификация Сборочные подмости. Временная опора I и II. Монтажная схема УИК-М Сборочные подмости. Временная опора III. Монтажная схема УИК-М Общая схема и порядок работ по навесному монтажу. Вариант График выполнения работ К графику выполнения работ сборник ЕНиР Склад металлоконструкций Раздел III. Пролетное строение L = 110,0 м Титульный лист Состав проекта Пояснительная записка Монтажная схема Комплектовочная ведомость отправочных марок Навесной монтаж Общая схема и порядок работ по навесному монтажу Ведомость укрупнительной сборки Схема последовательности монтажа стоянки крана Ведомость последовательности монтажа Схема и ведомость последовательности демонтажа соединительных элементов. Общие указания Схема и ведомость последовательности демонтажа соединительных элементов. Порядок снятия болтов Заполнение узлов Главные фермы. Панель 0-1 Горизонтальные связи. Панель 0-1 Портальное заполнение Главные фермы. Панель 2-3 Горизонтальные связи. Панель 2-3 Главные фермы. Панель 4-5 Горизонтальные связи. Панель 4-5 Главные фермы. Панель 6-7 Горизонтальные связи. Панель 6-7 Главные фермы. Панель 8-9 Горизонтальные связи. Панель 8-9 Главные фермы. Панель 10-0 Горизонтальные связи. Панель 10-0 Главные фермы. Панель 1-1` консольного пролета Горизонтальные связи. Панель 1-1` консольного пролета Главные фермы. Панель 2-3 консольного пролета Горизонтальные связи. Панель 2-3 консольного пролета Главные фермы. Панель 8-9 консольного пролета Горизонтальные связи. Панель 8-9 консольного пролета Узел Н10 консольного пролета Продольная балка. Панель 0-0` Продольная балка. Панель 0`-1 Соединение продольных балок Проезжая часть. Разрезы. Узлы Сводная ведомость высокопрочных болтов и пробок Расчет прогиба конца консоли Анкеровка узла НО анкерного пролета за капитальную опору Подкрановый путь по верхним поясам для крана Общая схема и порядок работ по навесному монтажу. Вариант График выполнения работ Склад металлоконструкций Сборочные подмости. Фасад Сборочные подмости. Спецификация. Разрезы Сборочные подмости. План Сборочные подмости. Временные опоры I и II. Монтажная схема Сборочные подмости. Временные опоры III и IV. Фасад. Боковой вид Сборочные подмости. Временные опоры III и IV. План свай. Спецификация Сборочные подмости. Временные опоры III и IV. Монтажная схема | Разработан: | Главмостострой
| Утверждён: | 08.10.1969 МПС (Ministry of Railroads П-27193)
| Расположен в: |
|
                                                                                                                                                                                                                                       
|