Скачать Типовой проект 186-214-9.87 Альбом I. Архитектурно-строительные, санитарно-технические и электротехнические чертежиДата актуализации: 10.08.2017 Типовой проект 186-214-9.87
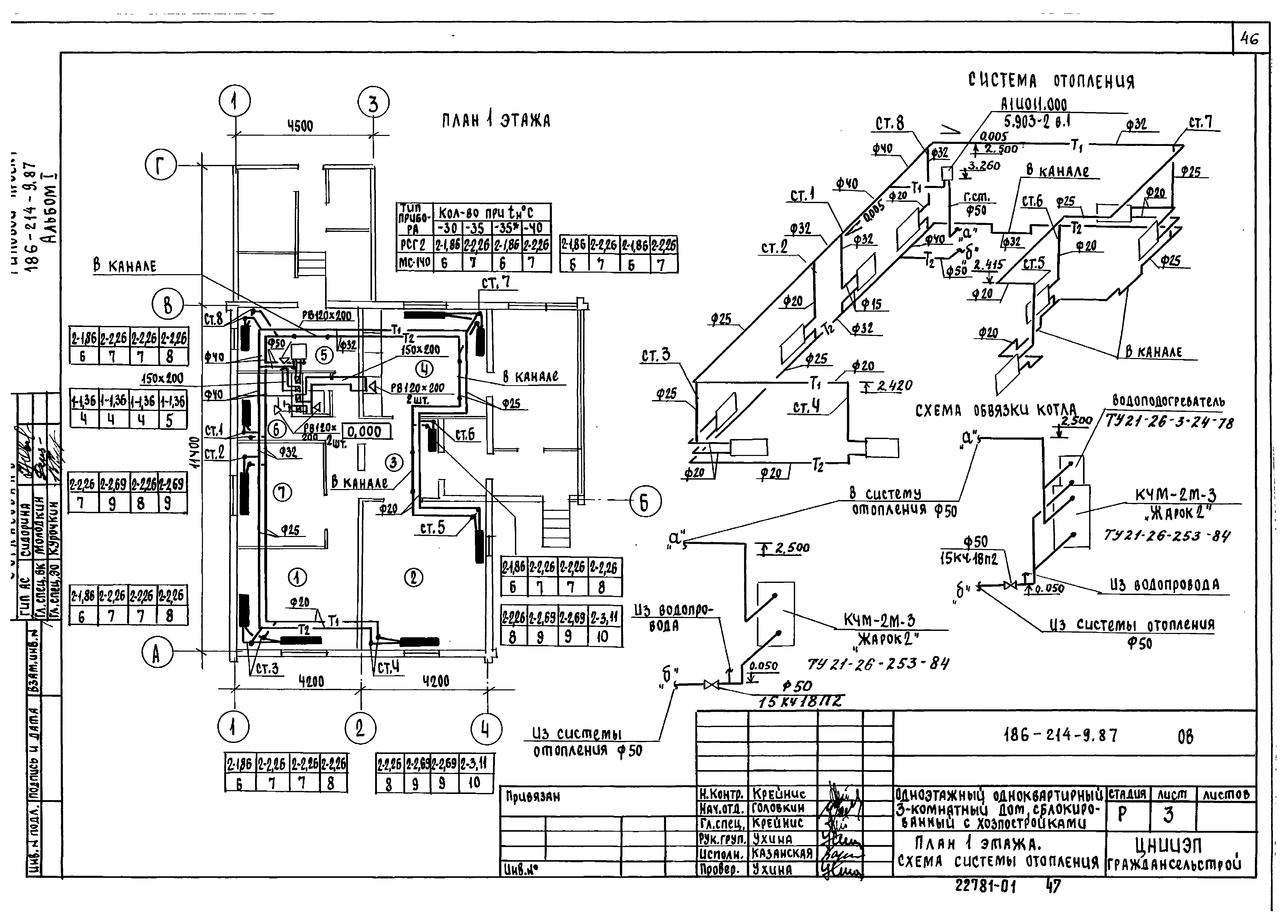
Альбом I. Архитектурно-строительные, санитарно-технические и электротехнические чертежиОбозначение: | Типовой проект 186-214-9.87 | Обозначение англ: | 186-214-9.87 | Статус: | не определен законодательством | Название рус.: | Альбом I. Архитектурно-строительные, санитарно-технические и электротехнические чертежи | Дата добавления в базу: | 01.09.2013 | Дата актуализации: | 05.05.2017 | Дата введения: | 04.11.1981 | Оглавление: | Титульный лист Содержание альбома Архитектурно-строительная часть (АС) Общие данные Фасады в осях 1-5; А-Г; Г-А; 5-1 Монтажный и отделочный планы Ведомость отделки помещений. Экспликация помещений. Технико-экономические показатели Спецификация элементов заполнения проемов, экспликация полов Развертки стен по осям А; 1; В; 4; 5; Б Развертки стен по осям Г; 3; 2. Узлы рубленых стен Узлы плана 1 - 10 Спецификация деревянных и металлических изделий к монтажному плану Разрез 1-1 Разрез 2-2 Узлы разрезов 1 - 7 План фундаментов. Схема сечений. Таблица нормативных нагрузок. Таблица отверстий Сечения фундаментов План цокольного перекрытия. Спецификация План чердачного перекрытия. Спецификация План стропил. План кровли Разрезы крыши 1-1; 2-2; зашив фронтона. Узлы 5; 6 Узлы крыши 1 - 4. Сечение 3-3 Спецификация деревянных и металлических изделий крыши План веранды. Разрезы 1-1; 2-2. Узел кровли Развертки каркасных стен веранды Узлы веранды. Спецификация деревянных элементов веранды Узлы крыльца. Спецификации Встроенный шкаф Ш-1. Антресоли А-1; А-2 Антресоли А-3; А-4. Шкаф Ш-2 Дымовентиляционный стояк Хозяйственная постройка. Разрез 3-3. Узлы разрезов Хозяйственная постройка. Узлы плана 11 - 14. Лестница Хозяйственная постройка. Спецификация деревянных и металлических изделий Индивидуальные изделия Спецификация к индивидуальным изделиям Жижесборник. Спецификация Вариант планировочного решения дома с возможностью ведения расширенного по объему подсобного хозяйства. Фасады Вариант планировочного решения дома с возможностью ведения расширенного по объему подсобного хозяйства. План хозпостройки. Разрез 1-1 Вариант планировочного решения дома с возможностью ведения расширенного по объему подсобного хозяйства. Развертки стен Вариант планировочного решения дома с возможностью ведения расширенного по объему подсобного хозяйства. Планы фундаментов, чердачного перекрытия, стропил Вариант планировочного решения дома с возможностью ведения расширенного по объему подсобного хозяйства. Спецификации Отопление и вентиляция (ОВ) Общие данные План 1 этажа. Схема системы отопления Чертежи общих видов нетиповых конструкций. Спецификация (ОВН) Воздуховод из асбестоцементных листов Конструкция теплоизоляционная для трубопроводов Водоснабжение и канализация (ВК) Общие данные План на отм. 0.000. Схемы систем В1, Т3, К1 Газоснабжение (ГСВ) Общие данные. План. Схема Электрооборудование (ЭО) Общие данные План расположения осветительных сетей Связь и сигнализация (СС) Общие данные План кровли. Схема расположения устройств связи План этажа | Разработан: | ЦНИИЭП граждансельстрой
| Утверждён: | 04.11.1981 Госгражданстрой (Gosgrazhdanstroy 308)
| Расположен в: |
|
                                                       
|