Информационная система
«Ёшкин Кот»

Скачать базу одним архивом
Скачать обновления
История создания базы
Карта сайта

Скачать Серия ИИ-04-15 Дополнение к выпуску 0-1. Указания по применению изделий. Дополнительные монтажные узлы. Рабочие чертежи

Дата актуализации: 10.08.2017

Серия ИИ-04-15

Дополнение к выпуску 0-1. Указания по применению изделий. Дополнительные монтажные узлы. Рабочие чертежи

Обозначение: Серия ИИ-04-15
Обозначение англ: Series ИИ-04-15
Статус:не действует
Название рус.:Дополнение к выпуску 0-1. Указания по применению изделий. Дополнительные монтажные узлы. Рабочие чертежи
Дата добавления в базу:01.09.2013
Дата актуализации:05.05.2017
Дата введения:01.05.1979
Дата окончания срока действия:01.04.1981
Оглавление:Содержание
Пояснительная записка
Монтажная схема пассажирского лифта Q = 1000 кг (кабина 1800х1500х2250, противовес сзади), h этажа = 3,3 м
Монтажная схема пассажирского лифта Q = 1000 кг (кабина 1800х1500х2250, противовес сзади), h этажа = 3,6 м
Монтажная схема пассажирского лифта Q = 1000 кг (кабина 1800х1500х2250, противовес сзади), h этажа = 4,2 м
Монтажная схема грузопассажирского лифта Q = 500 кг (кабина 2200х1200х2100, противовес сзади), h этажа = 3,3 м
Монтажная схема грузопассажирского лифта Q = 500 кг (кабина 2200х1200х2100, противовес сзади), h этажа = 3,6 м
Монтажная схема грузопассажирского лифта Q = 500 кг (кабина 2200х1200х2100, противовес сзади), h этажа = 4,2 м
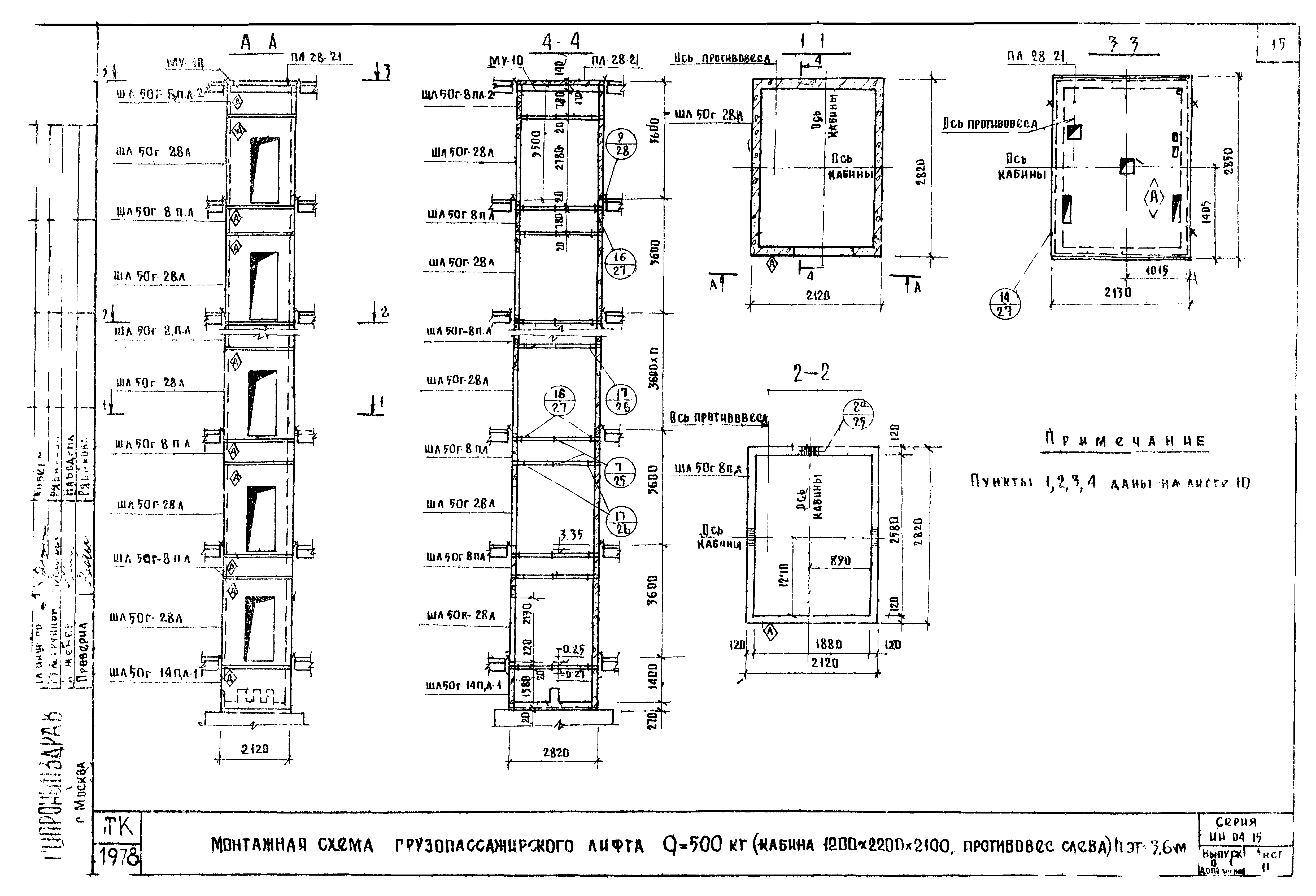
Монтажная схема грузопассажирского лифта Q = 500 кг (кабина 1200х2200х2100, противовес справа), h этажа = 3,3 м
Монтажная схема грузопассажирского лифта Q = 500 кг (кабина 1200х2200х2100, противовес справа), h этажа = 3,6 м
Монтажная схема грузопассажирского лифта Q = 500 кг (кабина 1200х2200х2100, противовес справа), h этажа = 4,2 м
Монтажная схема грузопассажирского лифта Q = 500 кг (кабина 1200х2200х2100, противовес слева), h этажа = 3,3 м
Монтажная схема грузопассажирского лифта Q = 500 кг (кабина 1200х2200х2100, противовес слева), h этажа = 3,6 м
Монтажная схема грузопассажирского лифта Q = 500 кг (кабина 1200х2200х2100, противовес слева), h этажа = 4,2 м
Монтажная схема грузового лифта Q = 500 кг (кабина 1000х1500х2000, противовес справа), h этажа = 3,3 м
Монтажная схема грузового лифта Q = 500 кг (кабина 1000х1500х2000, противовес справа), h этажа = 3,6 м
Монтажная схема грузового лифта Q = 500 кг (кабина 1000х1500х2000, противовес справа), h этажа = 4,2 м
Монтажная схема грузового лифта Q = 500 кг (кабина 1000х1500х2000, противовес слева), h этажа = 3,3 м
Монтажная схема грузового лифта Q = 500 кг (кабина 1000х1500х2000, противовес слева), h этажа = 3,6 м
Монтажная схема грузового лифта Q = 500 кг (кабина 1000х1500х2000, противовес слева), h этажа = 4,2 м
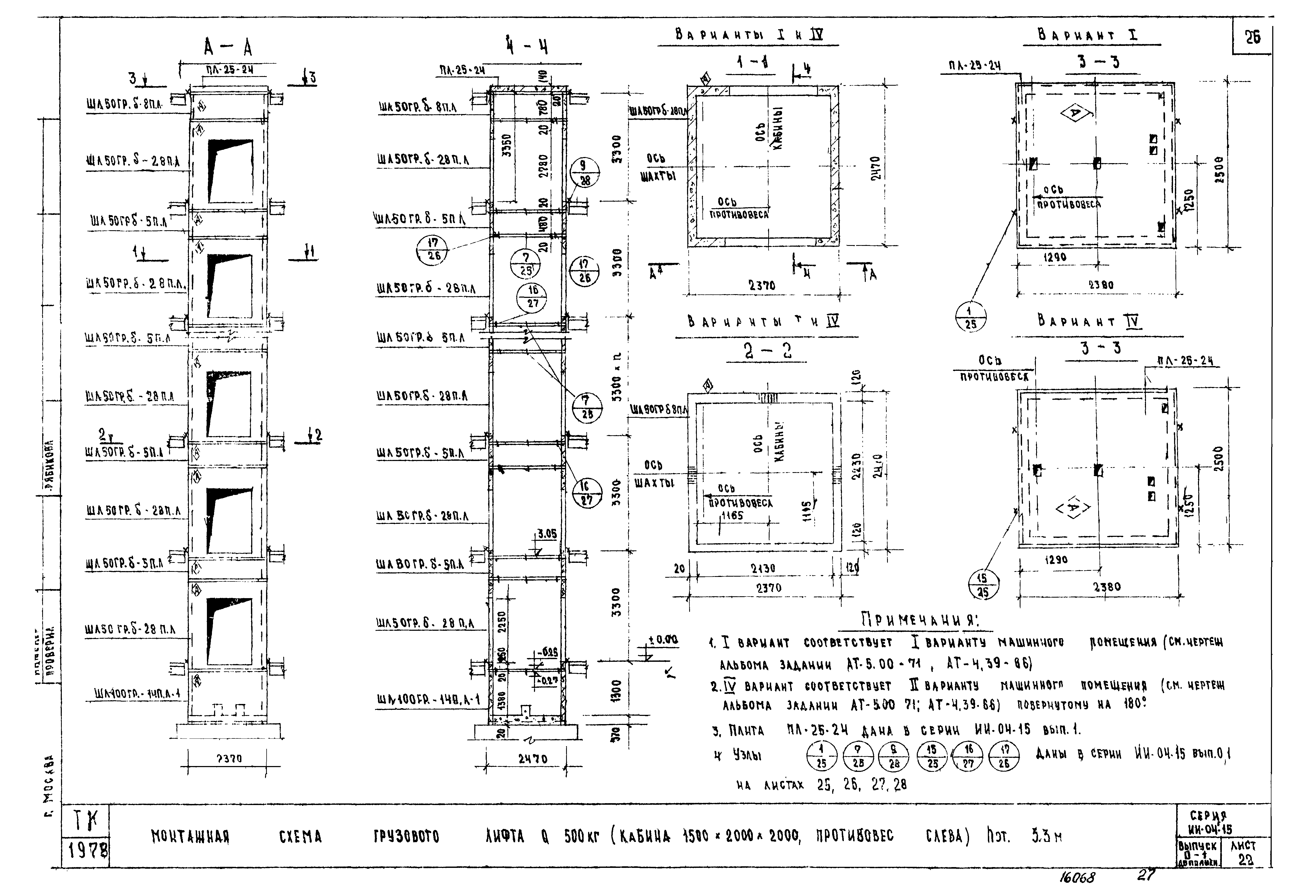
Монтажная схема грузового лифта Q = 500 кг (кабина 1500х2000х2000, противовес справа), h этажа = 3,3 м
Монтажная схема грузового лифта Q = 500 кг (кабина 1500х2000х2000, противовес справа), h этажа = 3,6 м
Монтажная схема грузового лифта Q = 500 кг (кабина 1500х2000х2000, противовес справа), h этажа = 4,2 м
Монтажная схема грузового лифта Q = 500 кг (кабина 1500х2000х2000, противовес слева), h этажа = 3,3 м
Монтажная схема грузового лифта Q = 500 кг (кабина 1500х2000х2000, противовес слева), h этажа = 3,6 м
Монтажная схема грузового лифта Q = 500 кг (кабина 1500х2000х2000, противовес слева), h этажа = 4,2 м
Монтажная схема грузового лифта Q = 1000 кг (кабина 1500х2000х2200, противовес сбоку), h этажа = 3,3 м
Монтажная схема грузового лифта Q = 1000 кг (кабина 1500х2000х2200, противовес сбоку), h этажа = 3,6 м
Монтажная схема грузового лифта Q = 1000 кг (кабина 1500х2000х2200, противовес сбоку), h этажа = 4,2 м
Монтажная схема грузового лифта Q = 1000 кг (кабина 1500х2000х2200, противовес сбоку), h этажа = 3,3 м
Монтажная схема грузового лифта Q = 1000 кг (кабина 1500х2000х2200, противовес сбоку), h этажа = 3,6 м
Монтажная схема грузового лифта Q = 1000 кг (кабина 1500х2000х2200, противовес сбоку), h этажа = 4,2 м
Монтажная схема больничного лифта Q = 500 кг (кабина 1500х2500х2100, противовес справа), h этажа = 3,3 м
Монтажная схема больничного лифта Q = 500 кг (кабина 1500х2500х2100, противовес справа), h этажа = 3,6 м
Монтажная схема больничного лифта Q = 500 кг (кабина 1500х2500х2100, противовес справа), h этажа = 4,2 м
Монтажная схема больничного лифта Q = 500 кг (кабина 1500х2500х2100, противовес слева), h этажа = 3,3 м
Монтажная схема больничного лифта Q = 500 кг (кабина 1500х2500х2100, противовес слева), h этажа = 3,6 м
Монтажная схема больничного лифта Q = 500 кг (кабина 1500х2500х2100, противовес слева), h этажа = 4,2 м
Узел 18. Монолитный железобетонный участок МУ-6
Монолитные железобетонные участки МУ-7, МУ-8, МУ-11
Монолитные железобетонные участки МУ-9, МУ-10
Фрагменты монтажных схем грузовых лифтов, противовес справа. Узел 19
Фрагменты монтажных схем грузовых лифтов, противовес слева
Разработан: ГипроНИИздрав Минздрава СССР
Утверждён:14.03.1979 Госгражданстрой (Gosgrazhdanstroy 57)
Расположен в:Техническая документация Строительство Справочные документы Типовые строительные конструкции, изделия и узлы Общероссийский строительный каталог Строительные конструкции, изделия и узлы зданий и сооружений для всех видов строительства Конструкции, изделия и узлы зданий Несущие конструкции двухэтажных и многоэтажных зданий Каркасные здания
Чем заменён:
Серия ИИ-04-15Серия ИИ-04-15Серия ИИ-04-15Серия ИИ-04-15Серия ИИ-04-15Серия ИИ-04-15Серия ИИ-04-15Серия ИИ-04-15Серия ИИ-04-15Серия ИИ-04-15Серия ИИ-04-15Серия ИИ-04-15Серия ИИ-04-15Серия ИИ-04-15Серия ИИ-04-15Серия ИИ-04-15Серия ИИ-04-15Серия ИИ-04-15Серия ИИ-04-15Серия ИИ-04-15Серия ИИ-04-15Серия ИИ-04-15Серия ИИ-04-15Серия ИИ-04-15Серия ИИ-04-15Серия ИИ-04-15Серия ИИ-04-15Серия ИИ-04-15Серия ИИ-04-15Серия ИИ-04-15Серия ИИ-04-15Серия ИИ-04-15Серия ИИ-04-15Серия ИИ-04-15Серия ИИ-04-15Серия ИИ-04-15Серия ИИ-04-15Серия ИИ-04-15Серия ИИ-04-15Серия ИИ-04-15Серия ИИ-04-15Серия ИИ-04-15Серия ИИ-04-15Серия ИИ-04-15Серия ИИ-04-15Серия ИИ-04-15Серия ИИ-04-15

© 2013 Ёшкин Кот :-) Карта сайта