Информационная система
«Ёшкин Кот»

Скачать базу одним архивом
Скачать обновления
История создания базы
Карта сайта

Скачать Типовой проект 284-4-13/73 Альбом II. Типовые узлы и детали

Дата актуализации: 10.08.2017

Типовой проект 284-4-13/73

Альбом II. Типовые узлы и детали

Обозначение: Типовой проект 284-4-13/73
Обозначение англ: 284-4-13/73
Статус:действует
Название рус.:Альбом II. Типовые узлы и детали
Дата добавления в базу:01.09.2013
Дата актуализации:05.05.2017
Дата введения:28.12.1977
Оглавление:Содержание альбома
Раздел 1. Общестроительная часть
   Разрезы стен с порядовкой
   Фрагменты и детали
   План расстановки фундаментов под оборудование прачечной (к прачечной на 125 кг белья)
   План расстановки фундаментов под оборудование прачечной (к прачечной на 250 кг белья)
   Детали анкеровки перекрытий, узлы примыкания кровли
   Детали полов и перекрытий (вариант с оклеечной изоляцией)
   Гидроизоляция стен и полов (вариант с оклеечной изоляцией)
   Детали полов и перекрытий (вариант с изоляцией холодными асфальтовыми мастиками). Установка перегородок
   Гидроизоляция стен и полов (вариант с изоляцией холодными асфальтовыми мастиками)
   Детали стропил
   Полок для парильной (к бане на 10 мест)
   Полок для парильной (к бане на 26 мест)
   Плоские плиты железобетонные ИПП-99-278-2; ИПП-119-278-2
   Железобетонные плиты перекрытий с люком ИПР-118-278-2А; ИПР-59-12А
   Остекленные перегородки ОП-1, ОП-2, ОП-3, ОП-4
Раздел 2. Отопление и вентиляция
   Отопление. Виброизолирующие вставки для труб к насосам
   Вентиляция. Подставки под калориферы
   Вентиляция. Обводные клапаны у калориферов. Детали и узлы
   Вентиляция. Спецификация обводных клапанов у калориферов
   Вентиляция. Вытяжная шахта. Детали. Узлы. Спецификация
   Котельная. Вытяжной патрубок к дефлекторам Т-18; Т-19; Т-21
   Котельная. Звукоизолирующее основание под насосные агрегаты. Схема парной установки насосных агрегатов. Резиновые амортизаторы
   Котельная. Установка 2-х насосов на звукоизолирующем основании
   Отопление и вентиляция. Печь - каменка. План. Разрезы I-I, II-II, III-III. Порядовки 1 - 27 (для бань на 5 и 10 мест)
   Отопление и вентиляция. Печь - каменка. Порядовки 28 - 37. Каркас печи. Спецификация (для бань на 5 и 10 мест)
   Отопление и вентиляция. Печь - каменка. План. Разрезы I-I, II-II, III-III. Порядовки 1 - 27 (для бани на 26 мест)
   Отопление и вентиляция. Печь - каменка. Порядовки 28 - 37. Каркас печи. Спецификация (для бани на 26 мест)
Раздел 3. Сантехническая часть
   Баки для запаса воды
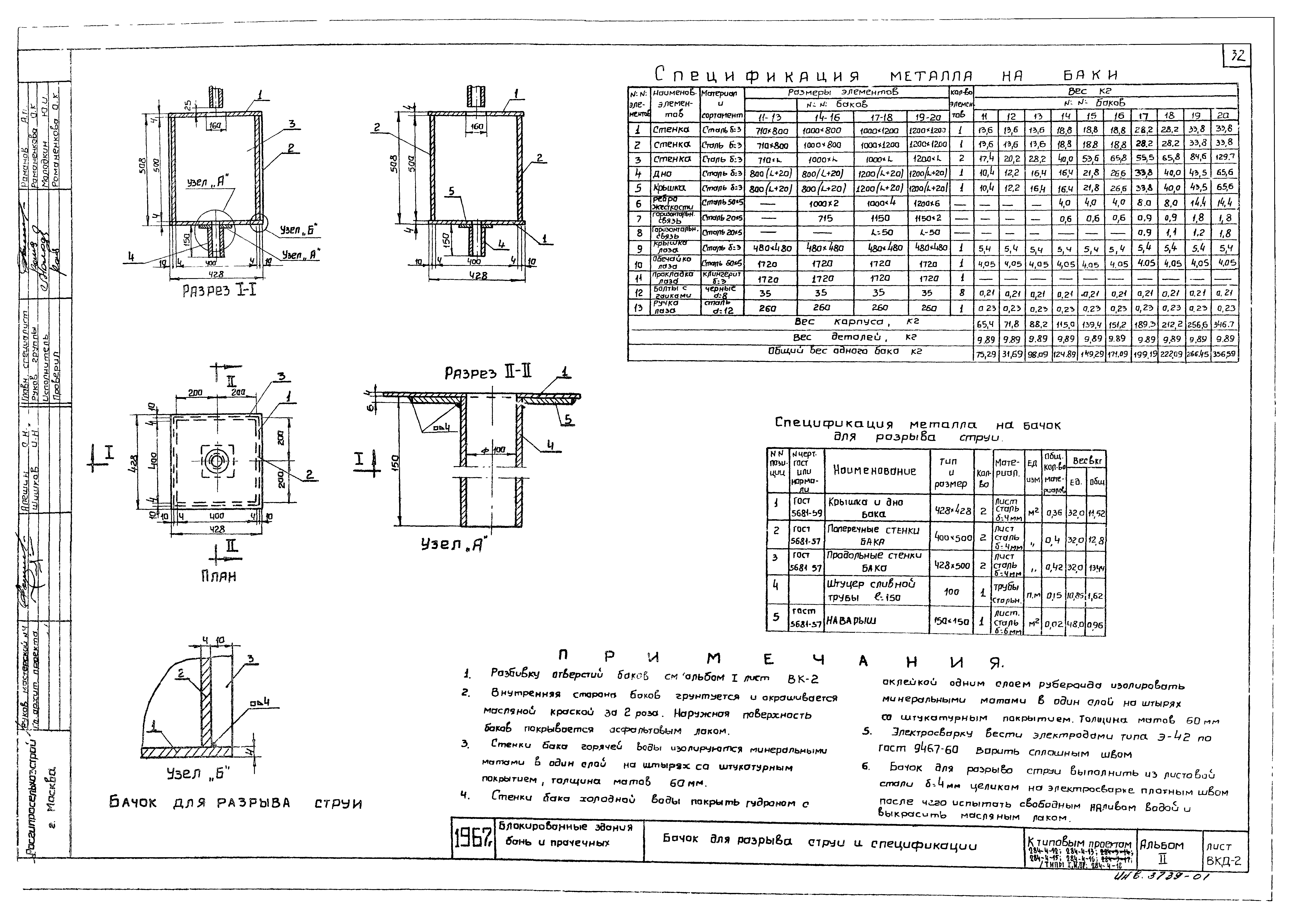
   Бачок для разрыва струи и спецификации
Раздел 4. Парогидроизоляционные работы
   Парогидроизоляция из полимерных материалов (вариант)
Разработан: Росгипросельхозстрой
Утверждён:28.12.1977 Росгипросельхозстрой (164)
Расположен в:Техническая документация Строительство Справочные документы Типовые строительные конструкции, изделия и узлы Общероссийский строительный каталог Общественные здания в городах и поселках городского типа Предприятия бытового обслуживания населения и коммунального хозяйства Бани, бани-прачечные с предприятиями бытового обслуживания, душевые, банно-оздоровительные комплексы
Типовой проект 284-4-13/73Типовой проект 284-4-13/73Типовой проект 284-4-13/73Типовой проект 284-4-13/73Типовой проект 284-4-13/73Типовой проект 284-4-13/73Типовой проект 284-4-13/73Типовой проект 284-4-13/73Типовой проект 284-4-13/73Типовой проект 284-4-13/73Типовой проект 284-4-13/73Типовой проект 284-4-13/73Типовой проект 284-4-13/73Типовой проект 284-4-13/73Типовой проект 284-4-13/73Типовой проект 284-4-13/73Типовой проект 284-4-13/73Типовой проект 284-4-13/73Типовой проект 284-4-13/73Типовой проект 284-4-13/73Типовой проект 284-4-13/73Типовой проект 284-4-13/73Типовой проект 284-4-13/73Типовой проект 284-4-13/73Типовой проект 284-4-13/73Типовой проект 284-4-13/73Типовой проект 284-4-13/73Типовой проект 284-4-13/73Типовой проект 284-4-13/73Типовой проект 284-4-13/73Типовой проект 284-4-13/73Типовой проект 284-4-13/73Типовой проект 284-4-13/73Типовой проект 284-4-13/73Типовой проект 284-4-13/73

© 2013 Ёшкин Кот :-) Карта сайта