Информационная система
«Ёшкин Кот»

Скачать базу одним архивом
Скачать обновления
История создания базы
Карта сайта

Скачать Типовой проект 281-1-135-148 Альбом II. Общая пояснительная записка. Технологические чертежи. Внутренние водопровод и канализация. Отопление и вентиляция. Электроосвещение и электрооборудование. Связь и сигнализация

Дата актуализации: 10.08.2017

Типовой проект 281-1-135-148

Альбом II. Общая пояснительная записка. Технологические чертежи. Внутренние водопровод и канализация. Отопление и вентиляция. Электроосвещение и электрооборудование. Связь и сигнализация

Обозначение: Типовой проект 281-1-135-148
Обозначение англ: 281-1-135-148
Статус:не определен законодательством
Название рус.:Альбом II. Общая пояснительная записка. Технологические чертежи. Внутренние водопровод и канализация. Отопление и вентиляция. Электроосвещение и электрооборудование. Связь и сигнализация
Дата добавления в базу:01.09.2013
Дата актуализации:05.05.2017
Дата введения:14.09.1979
Оглавление:Пояснительная записка
Чертежи основного комплекта марки ТХ
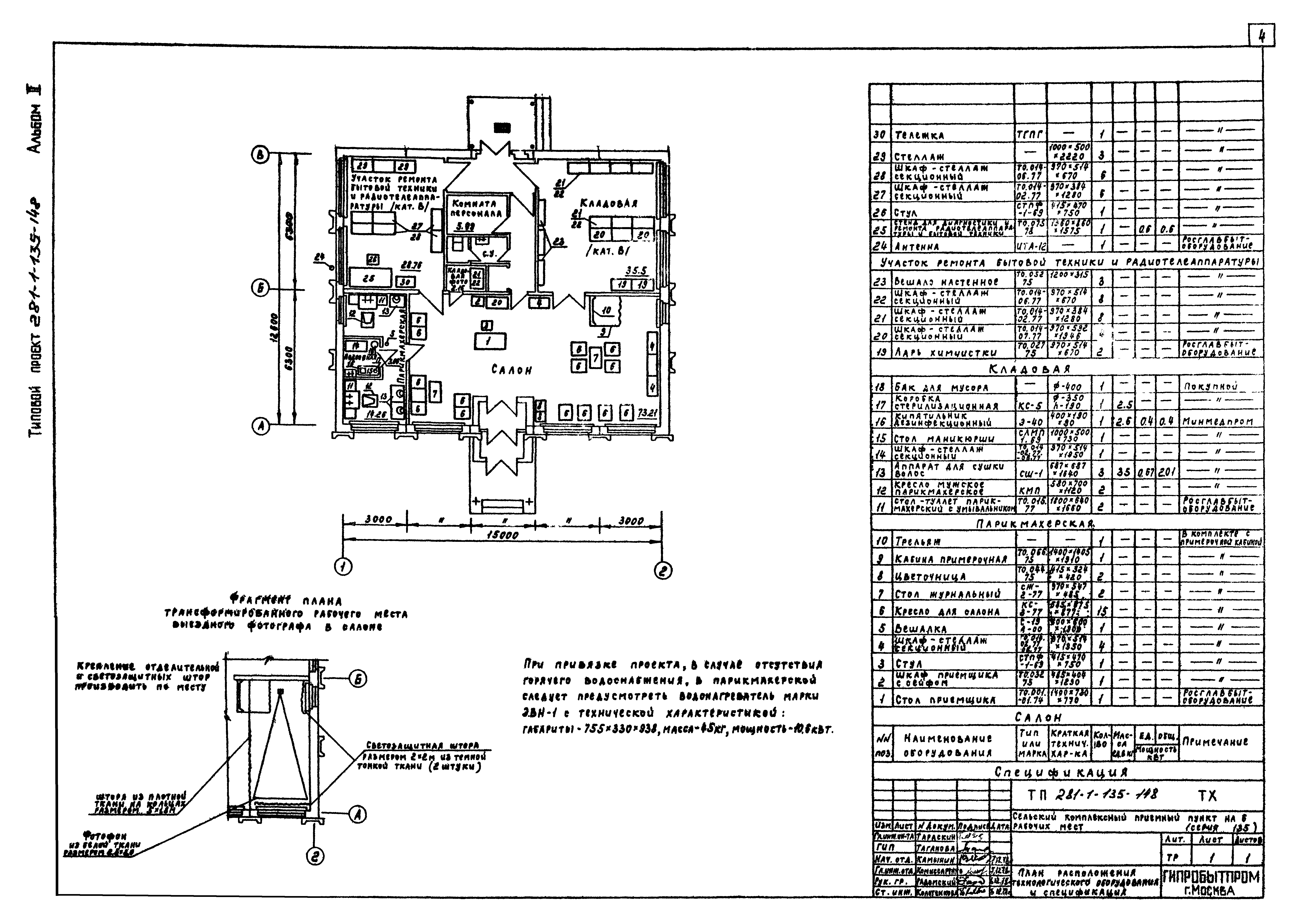
   План расположения технологического оборудования и спецификация
Чертежи основного комплекта марки ОВ
   Общие данные
   Отопление и вентиляция. Планы на отм. 0.000
   Отопление и вентиляция. Схемы систем отопления и вентиляции. Тепловой узел ввода горячего водоснабжения
   Звено прямого участка шовного асбестоцементного воздуховода
Чертежи основного комплекта марки ВК
   Общие данные
   Планы на отм. 0.000. Схемы систем В1, Т3, К1
Чертежи основного комплекта марки Э
   Общие данные
   Силовое и осветительное электрооборудование. План на отм. 0.000. Схема размещения
   Силовое электрооборудование. Схема расчетная. Шкаф ВРУ1-21
   Опросный лист на ВРУ1-21
   Ведомость объемов электромонтажных и строительных работ
Чертежи основного комплекта марки СС
   Связь и сигнализация. Общие данные
   Связь и сигнализация. Схемы структурные
   Связь и сигнализация. План на отм. 0.000. Схема кабельного ввода. Фрагменты блокировки
   Связь и сигнализация. Подпольная коробка размером 200х200 мм
   Связь и сигнализация. Подпольная коробка размером 400х400 мм
   Связь и сигнализация. Узлы скрытой проводки и крепление платы ПС5-6
Разработан: Гипробытпром
КБ по железобетону Госстроя РСФСР
Утверждён:27.08.1979 Минбытпром РСФСР (339)
Расположен в:Техническая документация Строительство Справочные документы Типовые строительные конструкции, изделия и узлы Общероссийский строительный каталог Общественные здания для строительства в сельской местности Предприятия бытового обслуживания населения (непроизводственного характера) и коммунального хозяйства Дома быта, комбинаты бытового обслуживания, комплексные приемные пункты, ателье
Типовой проект 281-1-135-148Типовой проект 281-1-135-148Типовой проект 281-1-135-148Типовой проект 281-1-135-148Типовой проект 281-1-135-148Типовой проект 281-1-135-148Типовой проект 281-1-135-148Типовой проект 281-1-135-148Типовой проект 281-1-135-148Типовой проект 281-1-135-148Типовой проект 281-1-135-148Типовой проект 281-1-135-148Типовой проект 281-1-135-148Типовой проект 281-1-135-148Типовой проект 281-1-135-148Типовой проект 281-1-135-148Типовой проект 281-1-135-148Типовой проект 281-1-135-148Типовой проект 281-1-135-148Типовой проект 281-1-135-148Типовой проект 281-1-135-148Типовой проект 281-1-135-148Типовой проект 281-1-135-148Типовой проект 281-1-135-148Типовой проект 281-1-135-148Типовой проект 281-1-135-148Типовой проект 281-1-135-148

© 2013 Ёшкин Кот :-) Карта сайта