| ||||||||||||||||||||||||||
Скачать Типовые материалы для проектирования 820-04-28.87 Альбом II. ЧертежиДата актуализации: 10.08.2017
|
| Обозначение: | Типовые материалы для проектирования 820-04-28.87 |
| Обозначение англ: | 820-04-28.87 |
| Статус: | cправочные материалы, мп, тпр |
| Название рус.: | Альбом II. Чертежи |
| Дата добавления в базу: | 01.09.2013 |
| Дата актуализации: | 05.05.2017 |
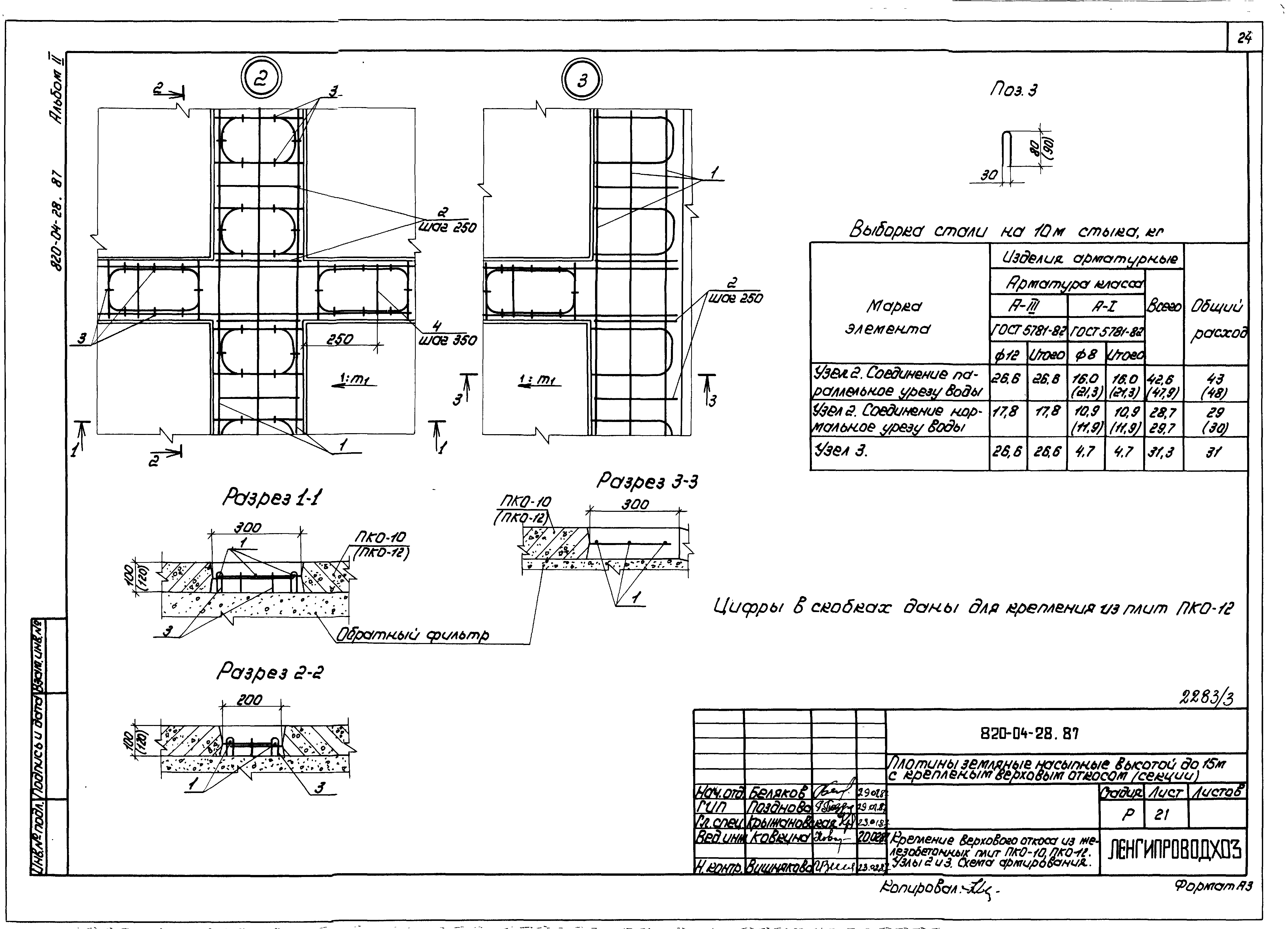
| Оглавление: | 1. Общие данные 2. Секции плотин из легкого суглинка Нпл = 5,0; 10,0 и 15 м; Впл = 4,5 м. Поперечные сечения 3. Секции плотин из среднего суглинка Нпл = 5,0; 10,0 и 15 м; Впл = 4,5 м. Поперечные сечения 4. Секции плотин из тяжелого суглинка с защитным слоем Нпл = 5,0; 10,0 и 15 м; Впл = 4,5 м. Поперечные сечения 5. Секции плотин из мелкого песка Нпл = 5,0; 10,0 и 15 м; Впл = 4,5 м. Поперечные сечения 6. Секции плотин из песка с ядром из глинистых грунтов Нпл = 5,0; 10,0 и 15 м; Впл = 4,5 м. Поперечные сечения 7. Секции плотин из песка с ядром и понуром из глинистых грунтов Нпл = 5,0; 10,0 и 15 м; Впл = 4,5 м. Поперечные сечения 8. Секции плотин из песка с экраном из глинистых грунтов Нпл = 5,0; 10,0 и 15 м; Впл = 4,5 м. Поперечные сечения 9. Секции плотин из песка с экраном и понуром из глинистых грунтов Нпл = 5,0; 10,0 и 15 м; Впл = 4,5 м. Поперечные сечения 10. Секции плотин из песка с экраном из полиэтиленовой пленки Нпл = 5,0; 10,0 и 15 м; Впл = 4,5 м. Поперечные сечения 11. Секции плотин из песка с экраном и понуром из полиэтиленовой пленки Нпл = 5,0; 10,0 и 15 м; Впл = 4,5 м. Поперечные сечения 12. Секции плотин из песка с экраном и понуром из полиэтиленовой пленки. Узлы 13. Секции плотин из песка с экраном из асфальтобетона Нпл = 10,0 и 15 м; Впл = 4,5 м. Поперечные сечения 14. Секции плотин из песка с экраном и понуром из асфальтобетона Нпл = 10,0 и 15 м; Впл = 4,5 м. Поперечные сечения 15. Дренажные устройства. Тюфячный дренаж. Наслонный дренаж 16. Дренажные устройства. Трубчатый дренаж 17. Дренажные устройства. Смотровой колодец 18. Дренажные устройства. Дренажный банкет. Комбинированный дренаж 19. Крепление верхового откоса из железобетонных плит ПКО-10, ПКО-12, ПВ40-20-1.5. Общий вид 20. Крепление верхового откоса из железобетонных плит ПКО-10, ПКО-12. Узлы 2 и 3. Спецификация 21. Крепление верхового откоса из железобетонных плит ПКО-10, ПКО-12. Узлы 2 и 3. Схема армирования 22. Крепление верхового откоса из железобетонных плит ПКО-10, ПКО-12. Деформационный шов. Схема армирования 23. Крепление верхового откоса из железобетонных плит ПВ40-20-1.5. Узлы 2 и 3. Схема армирования 24. Крепление верхового откоса из железобетонных плит ПВ40-20-1.5. Деформационный шов. Схема армирования 25. Крепление верхового откоса из железобетонных плит ПШ40-20-1.5. Общий вид 26. Крепление верхового откоса из железобетонных плит ПШ40-20-1.5. Соединение плит . Детали 27. Крепление верхового откоса из монолитного железобетона. Общий вид 28. Крепление верхового откоса из монолитного железобетона. Узлы 29. Крепление верхового откоса из монолитного железобетона. Плита А. Схема армирования 30. Крепление верхового откоса из монолитного железобетона. Плита Б. Схемы армирования 31. Плита ПС20-2,5-0,8. Схема армирования 32. Сетка арматурная С1 33. Крепление верхового откоса из монолитного асфальтобетона 34. Крепление верхового откоса каменной наброской. Схемы креплений при неопоражниваемых водохранилищах 35. Крепление верхового откоса каменной наброской. Схемы креплений при опоражниваемых водохранилищах 36. Крепление верхового откоса растительными насаждениями 37. Конструкции гребня плотины при пропуске по нему внутрихозяйственных дорог 38. Низшие дорожные одежды гребня плотины. Покрытие из грунта, укрепленного песчано-глинистыми добавками 39. Низшие дорожные одежды гребня плотины. Покрытие из грунта, укрепленного шлаком, гравием (дресвой) или известью 40. Ограждения барьерного типа из железобетона БОС и БОБ. Общие виды 41. Конструкции деревянного шпунта |
| Разработан: | Ленгипроводхоз Минводхоза СССР |
| Утверждён: | 04.06.1987 Минводхоз СССР (USSR Minvodkhoz 542) |
| Издан: | ЦИТП Госстроя СССР (CITP, Gosstroy (USSR) 1988 г. ) |
| Расположен в: |











































