Информационная система
«Ёшкин Кот»

Скачать базу одним архивом
Скачать обновления
История создания базы
Карта сайта

Скачать Типовой проект 252-9-70с Альбом II. Отопление и вентиляция. Тепломеханическая часть. Водопровод и канализация. Электрооборудование. Автоматизация санитарно-технических устройств. Устройство связи. Пожарная сигнализация

Дата актуализации: 10.08.2017

Типовой проект 252-9-70с

Альбом II. Отопление и вентиляция. Тепломеханическая часть. Водопровод и канализация. Электрооборудование. Автоматизация санитарно-технических устройств. Устройство связи. Пожарная сигнализация

Обозначение: Типовой проект 252-9-70с
Обозначение англ: 252-9-70с
Статус:не определен законодательством
Название рус.:Альбом II. Отопление и вентиляция. Тепломеханическая часть. Водопровод и канализация. Электрооборудование. Автоматизация санитарно-технических устройств. Устройство связи. Пожарная сигнализация
Дата добавления в базу:01.09.2013
Дата актуализации:05.05.2017
Дата введения:23.06.1980
Оглавление:Титульный лист
Содержание альбома
Отопление и вентиляция
   Заглавный лист
   Сводная спецификация
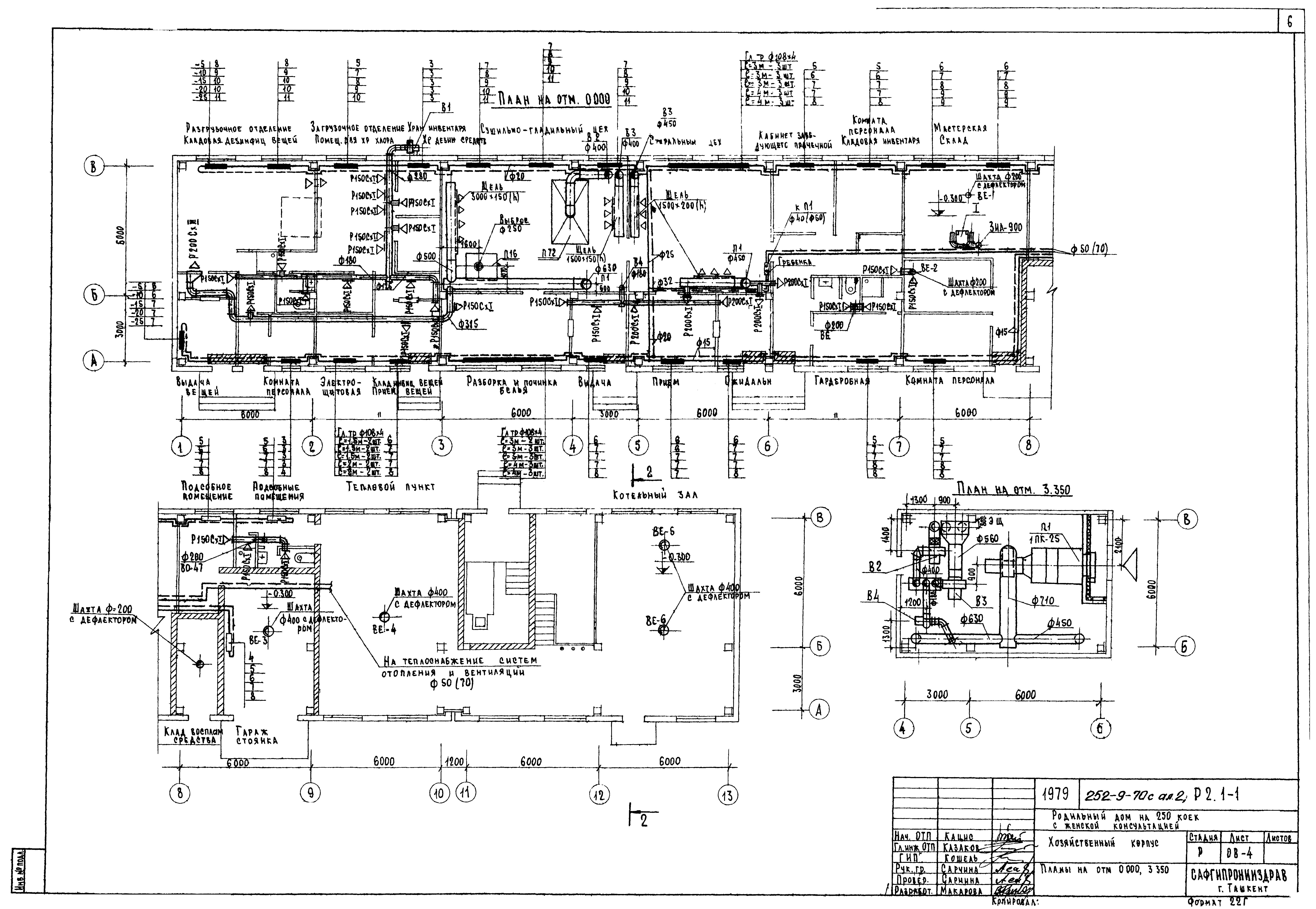
   Планы на отм. 0.000; 3.350
   Схемы отопления и теплоснабжения установки П1
   Схемы систем вентиляции
   Венткамера. План. Разрез I-I
Тепломеханическая часть
   Заглавный лист
   Сводная спецификация
   Принципиальная схема трубопроводов котельной
   План котельной с оборудованием. План с трубопроводами. Сечение "А-А"
   Разрезы I-I, II-II. Узлы I, II. Вид по В-В. Вид по Г-Г и сечение "Б-Б"
   Установка шайбового дозатора
   Шайбовый дозатор V = 35 л. Общий вид и узлы
   Шайбовый дозатор V = 35 л. Детали
   Газоходы. Общий вид
   Газоходы. Узлы и спецификация
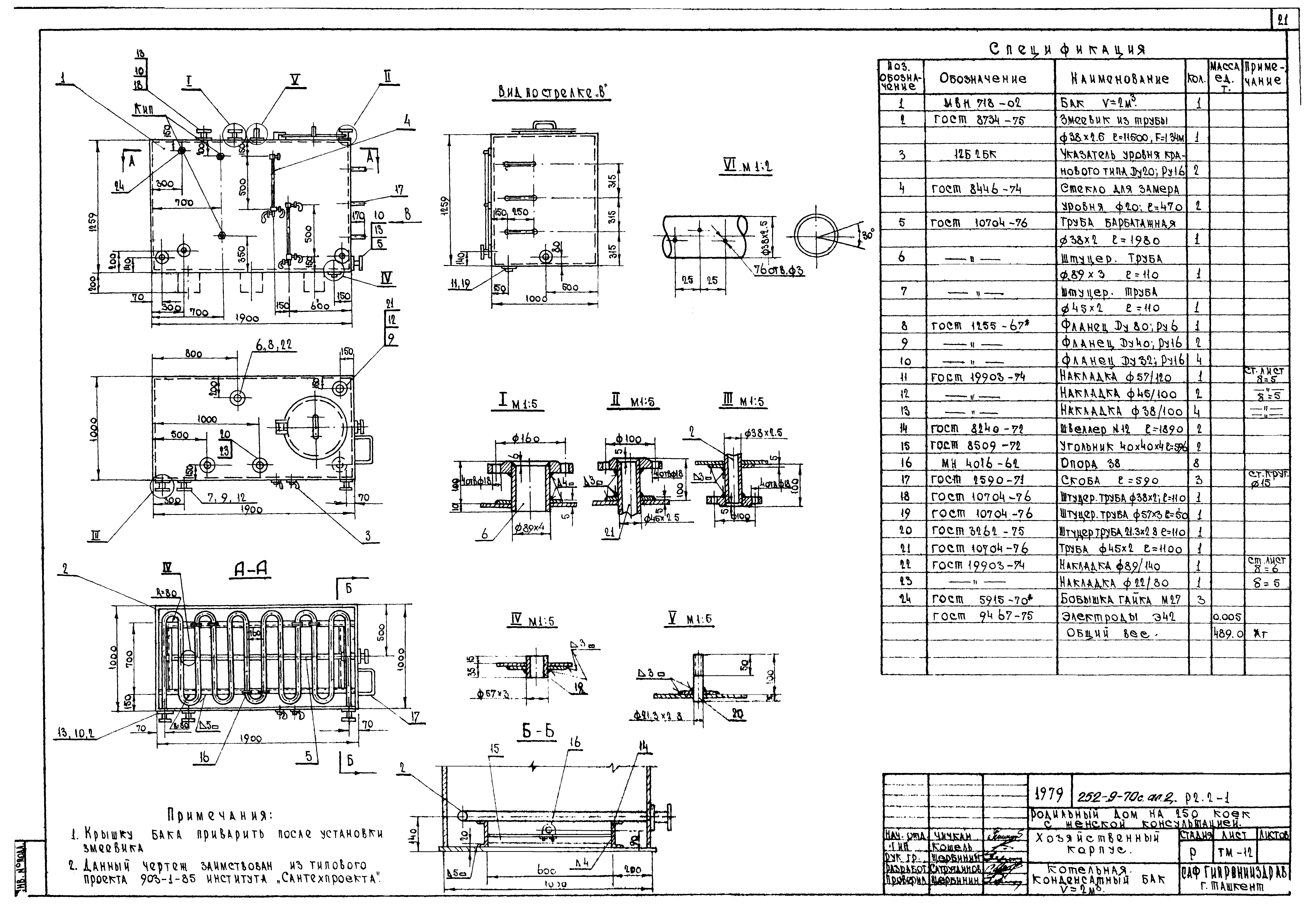
   Конденсатный бак V = 2 куб. м
   Питательный бак V = 2 куб. м
   Дозировочная шайба
   Газооборудование котельной. Схема
   Газооборудование котельной. План. Разрез "А-А". Спецификация
   Газооборудование котельной. Установка газового счетчика РГ-100-I
Пароснабжение
   Заглавный лист
   План в осях 1 - 6; Б-В. Схемы в осях 1 - 6; Б-В
Теплоснабжение
   Заглавный лист
   Трубопроводы. Спецификация материалов
   Принципиальная схема. Экспликация оборудования
   План на отм. 0.00. Разрезы I-I и II-II
   Разрез III-III. Сечения а-а, б-б, в-в. Вид по А
   Аккумуляторный бак V = 25 куб. м. Общий вид. Детали
   Оборудование бака-аккумулятора. Общий вид. Спецификация
Водопровод и канализация
   Заглавный лист
   Планы на отм. 0.000; 3.350 с сетями водопровода и канализации
   Схема трубопроводов горячей и холодной воды
   Схема канализации
Электрооборудование и электроосвещение
   Заглавный лист
   План сети электроосвещения
   План сети силового электрооборудования. План магистральных сетей
   Расчетно-монтажная таблица щитов Щ-3; Щ-6
   Расчетно-монтажная таблица щита Щ-5
   Расчетная схема магистральных сетей
Автоматизация санитарно-технических устройств
   Заглавный лист
   Приточная система П1. Спецификация
   Приточная система П1. Функциональная схема автоматизации
   Приточная система П1. Схема принципиальная электрическая управления
   Приточная система П1. Схема принципиальная электрическая регулирования
   Приточная система П1. Схема внешних электрических проводок
   Отключение вентиляции при пожаре. Схема принципиальная электрическая. Схема внешних электрических проводок
   Тепловой пункт. Спецификации
   Тепловой пункт. Спецификации. Опросный лист
   Тепловой пункт. Схема функциональная
   Тепловой пункт. Насосы горячего водоснабжения. Схема электрическая принципиальная управления. Схема внешних проводок
   Тепловой пункт. Схема внешних проводок
   Тепловой пункт. Насосы отопления и вентиляции. Схема электрическая принципиальная управления. Схема внешних соединений
   Котельная. Спецификация
   Котельная. Спецификация. Опросный лист
   Котельная. Котел №1 (2). Схема функциональная
   Котельная. Котел №1 (2). Схема внешних проводок
   Котельная. Вспомогательное оборудование. Схема функциональная
   Котельная. Вспомогательное оборудование. Схема электрическая управления конденсатными насосами и подключения вторичного прибора
   Котельная. Вспомогательное оборудование. Схема внешних проводок
   План на отм. 0.000. План подвала. План расположения
Устройство связи
   Заглавный лист
   План этажа
Пожарная сигнализация
   Заглавный лист
   План на отм. 0.000; 3.350
Разработан: Среднеазиатский филиал ГипроНИИздрава
Утверждён:02.12.1977 Министерство здравоохранения СССР (USSR Ministry of Health Care 1074)
Расположен в:Техническая документация Строительство Справочные документы Типовые строительные конструкции, изделия и узлы Общероссийский строительный каталог Общественные здания в городах и поселках городского типа Лечебно-профилактические учреждения Родильные дома
Типовой проект 252-9-70сТиповой проект 252-9-70сТиповой проект 252-9-70сТиповой проект 252-9-70сТиповой проект 252-9-70сТиповой проект 252-9-70сТиповой проект 252-9-70сТиповой проект 252-9-70сТиповой проект 252-9-70сТиповой проект 252-9-70сТиповой проект 252-9-70сТиповой проект 252-9-70сТиповой проект 252-9-70сТиповой проект 252-9-70сТиповой проект 252-9-70сТиповой проект 252-9-70сТиповой проект 252-9-70сТиповой проект 252-9-70сТиповой проект 252-9-70сТиповой проект 252-9-70сТиповой проект 252-9-70сТиповой проект 252-9-70сТиповой проект 252-9-70сТиповой проект 252-9-70сТиповой проект 252-9-70сТиповой проект 252-9-70сТиповой проект 252-9-70сТиповой проект 252-9-70сТиповой проект 252-9-70сТиповой проект 252-9-70сТиповой проект 252-9-70сТиповой проект 252-9-70сТиповой проект 252-9-70сТиповой проект 252-9-70сТиповой проект 252-9-70сТиповой проект 252-9-70сТиповой проект 252-9-70сТиповой проект 252-9-70сТиповой проект 252-9-70сТиповой проект 252-9-70сТиповой проект 252-9-70сТиповой проект 252-9-70сТиповой проект 252-9-70сТиповой проект 252-9-70сТиповой проект 252-9-70сТиповой проект 252-9-70сТиповой проект 252-9-70сТиповой проект 252-9-70сТиповой проект 252-9-70сТиповой проект 252-9-70сТиповой проект 252-9-70сТиповой проект 252-9-70сТиповой проект 252-9-70сТиповой проект 252-9-70сТиповой проект 252-9-70сТиповой проект 252-9-70сТиповой проект 252-9-70сТиповой проект 252-9-70сТиповой проект 252-9-70сТиповой проект 252-9-70сТиповой проект 252-9-70сТиповой проект 252-9-70сТиповой проект 252-9-70сТиповой проект 252-9-70сТиповой проект 252-9-70сТиповой проект 252-9-70сТиповой проект 252-9-70сТиповой проект 252-9-70сТиповой проект 252-9-70сТиповой проект 252-9-70сТиповой проект 252-9-70сТиповой проект 252-9-70сТиповой проект 252-9-70сТиповой проект 252-9-70с

© 2013 Ёшкин Кот :-) Карта сайта