Информационная система
«Ёшкин Кот»

Скачать базу одним архивом
Скачать обновления
История создания базы
Карта сайта

Скачать Типовой проект 252-9-63 Альбом VI. Витражи

Дата актуализации: 10.08.2017

Типовой проект 252-9-63

Альбом VI. Витражи

Обозначение: Типовой проект 252-9-63
Обозначение англ: 252-9-63
Статус:не определен законодательством
Название рус.:Альбом VI. Витражи
Дата добавления в базу:01.09.2013
Дата актуализации:05.05.2017
Дата введения:17.07.1980
Оглавление:Общие данные (вариант - стеклопрофилит)
Схема тамбура по оси Б м/о 2 и 5 (вариант - стеклопрофилит)
Схема тамбура по осям 1-6 м/о Б и В (вариант - стеклопрофилит)
Схема тамбура по оси Ж м/о 3 и 4. Узлы (вариант - стеклопрофилит)
Узлы 1; 2; 3; 4; 5; 8 (вариант - стеклопрофилит)
Общие данные (вариант - алюминий)
Таблица сечений элементов (вариант - алюминий)
Таблица сечений элементов Узел 5 (вариант - алюминий)
Схема тамбура по оси Б м/о 2 - 5 (вариант - алюминий)
Схема тамбура по осям 1-6 м/о Б и В (вариант - алюминий)
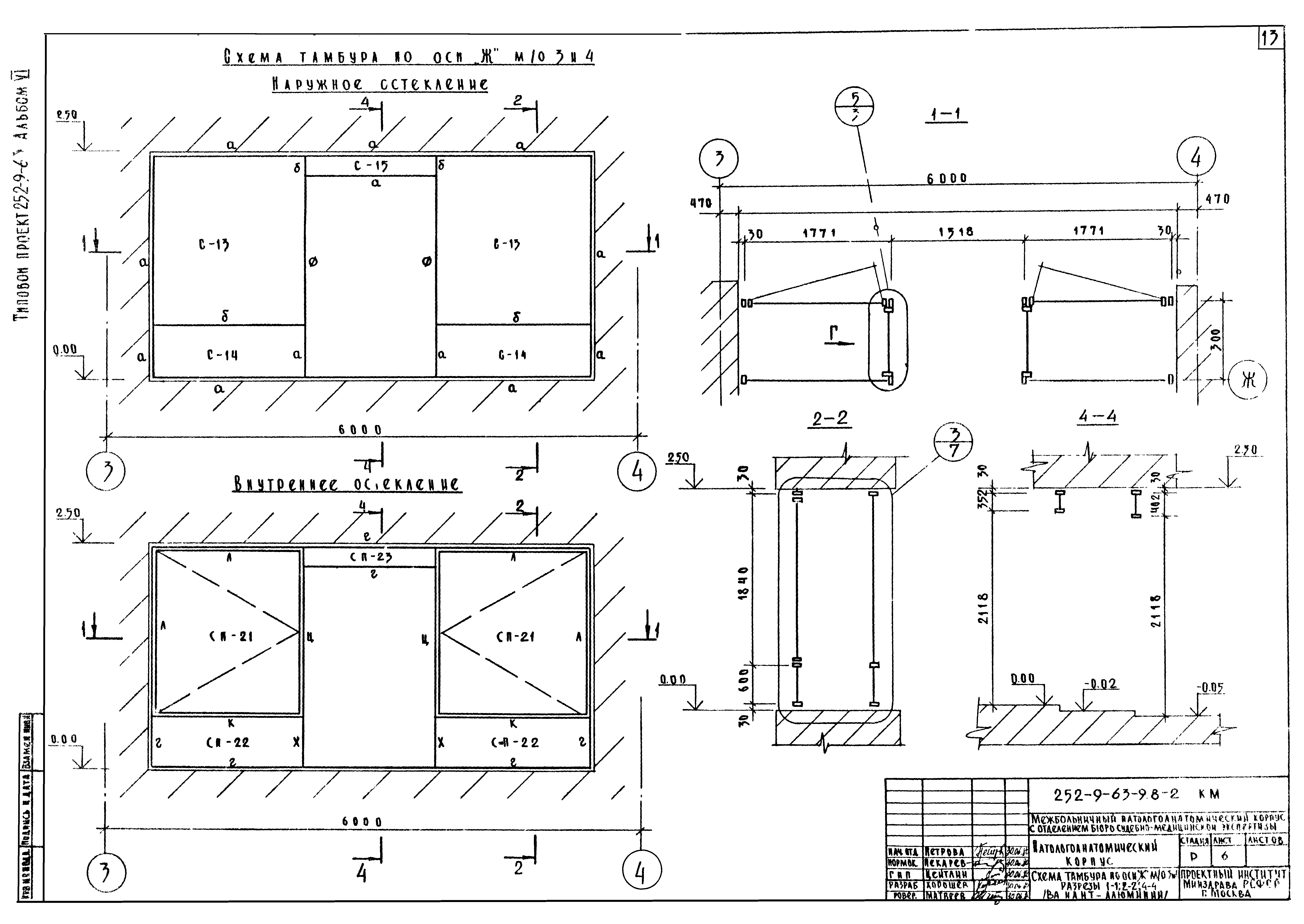
Схема тамбура по оси Ж м/о 3 и 4 (вариант - алюминий)
Узлы 1; 2; 3 (вариант - алюминий)
Разработан: Минздрав РСФСР
Утверждён:25.01.1980 Госстрой РСФСР (Russian Federation Gosstroy 4)
Расположен в:Техническая документация Строительство Справочные документы Типовые строительные конструкции, изделия и узлы Общероссийский строительный каталог Общественные здания в городах и поселках городского типа Лечебно-профилактические учреждения Разные здания
Типовой проект 252-9-63Типовой проект 252-9-63Типовой проект 252-9-63Типовой проект 252-9-63Типовой проект 252-9-63Типовой проект 252-9-63Типовой проект 252-9-63Типовой проект 252-9-63Типовой проект 252-9-63Типовой проект 252-9-63Типовой проект 252-9-63Типовой проект 252-9-63Типовой проект 252-9-63Типовой проект 252-9-63Типовой проект 252-9-63Типовой проект 252-9-63

© 2013 Ёшкин Кот :-) Карта сайта