Скачать Типовой проект 252-9-63 Альбом I. Архитектурно-строительная часть, технология, холодоснабжениеДата актуализации: 10.08.2017 Типовой проект 252-9-63
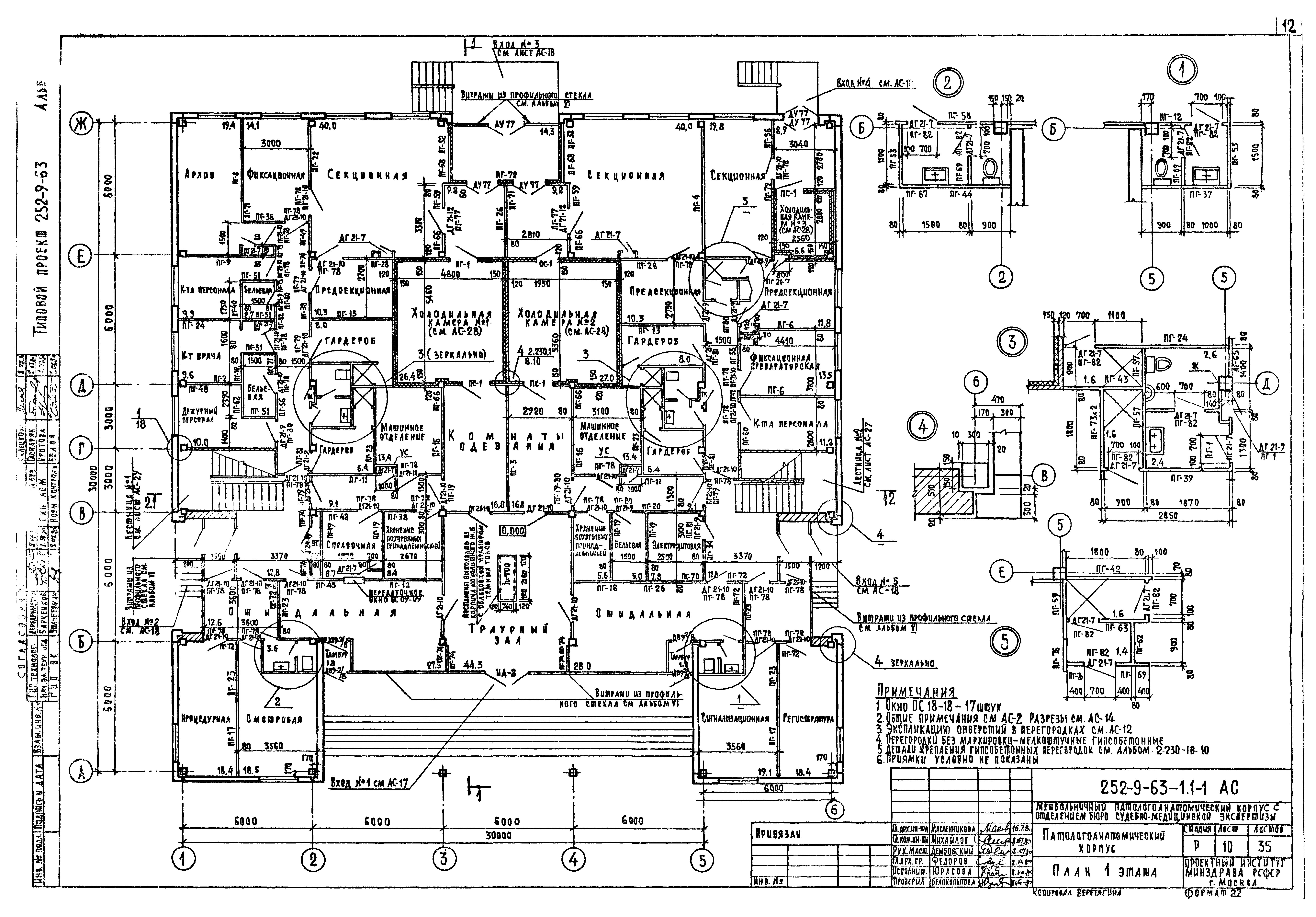
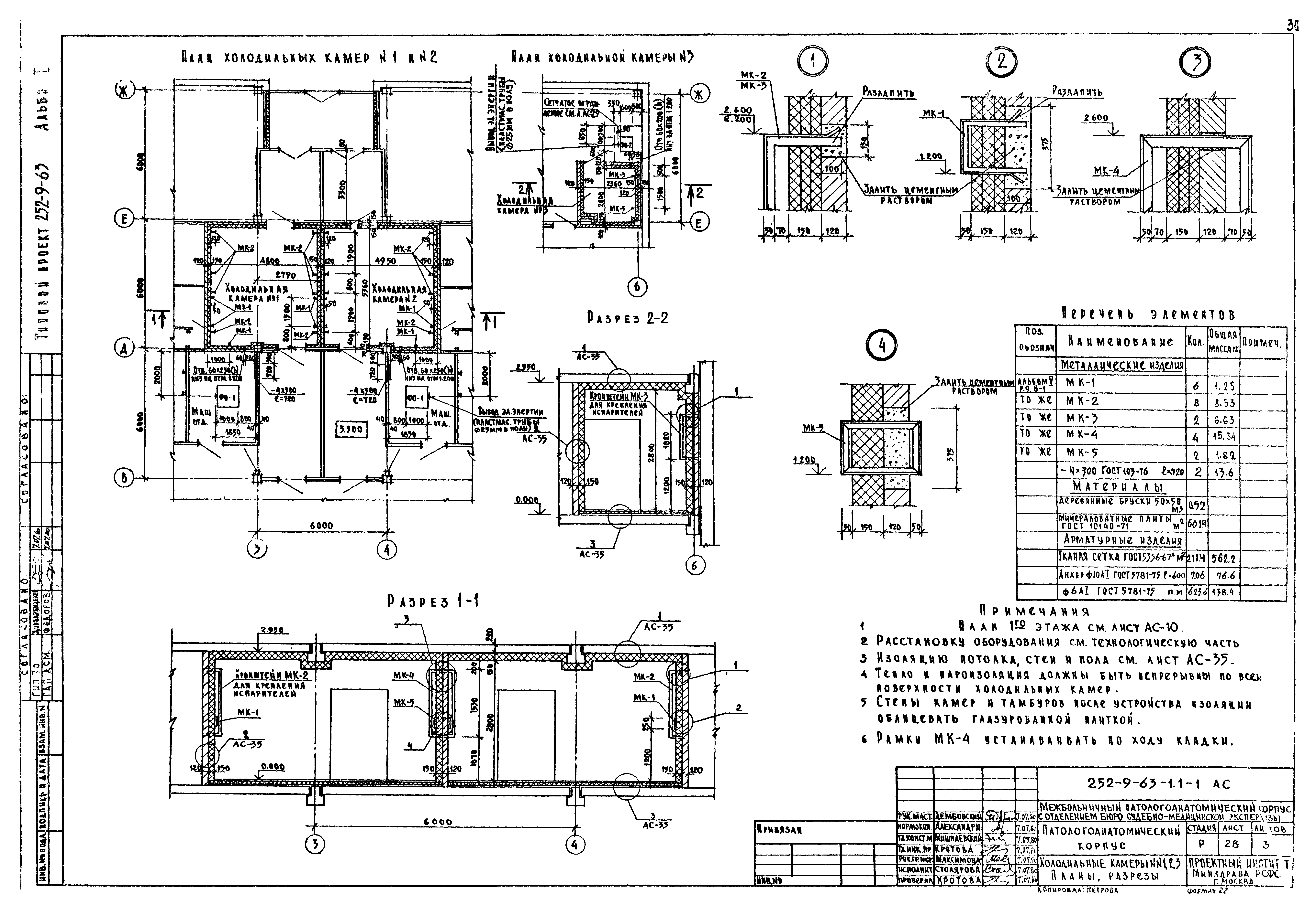
Альбом I. Архитектурно-строительная часть, технология, холодоснабжениеОбозначение: | Типовой проект 252-9-63 | Обозначение англ: | 252-9-63 | Статус: | не определен законодательством | Название рус.: | Альбом I. Архитектурно-строительная часть, технология, холодоснабжение | Дата добавления в базу: | 01.09.2013 | Дата актуализации: | 05.05.2017 | Дата введения: | 17.07.1980 | Оглавление: | Архитектурно-строительная часть Общие данные Лист привязки Спецификация План техподполья План 1 этажа План 2 этажа План перегородок с сантехническими отверстиями. 1 этаж. Ведомость отделки помещений План перегородок с сантехническими отверстиями. 2 этаж. План кровли Разрезы 1-1; 2-2. План вентшахт и фонаря верхнего света Фасады в осях А-Ж; Ж-А; 1-6; 6-1 Схема расположения элементов фундаментов. Сечения Схема расположения сборных элементов входа №1. Спецификация Схема расположения сборных элементов входов №2, 3, 4, 5. Спецификация Схемы расположения элементов каркаса на отм. 0.000; 3.300. Развертки Схемы расположения элементов каркаса на отм. 6.600. Развертка 3-3. Спецификация Схема расположения плит перекрытия на отм. 0.000. Спецификация Схема расположения плит перекрытия на отм. 3.300. Спецификация Схема расположения плит покрытия Схема расположения стеновых панелей по оси 1. Спецификация Схема расположения стеновых панелей по осям 2, 5, 6 Схема расположения стеновых панелей по осям А - Ж Схемы расположения элементов конструкций лестниц №1 и №2. Спецификация Холодильный камеры №1, 2, 3. План. Разрезы Холодильный камеры №1, 2, 3. Фундаменты под оборудование. Сетчатое ограждение. Узлы Приточная венткамера. План. Сечения. Спецификация Вытяжная венткамера. План. Сечения. Спецификация Схема расположения элементов подвесного потолка на отм. 2.400 и 2.500. Сечения. Узлы Схема расположения элементов подвесного потолка на отм. 5.700 Монолитные диафрагмы ДМ-1; ДМ-2 Холодильные камеры №1, 2, 3. Детали стен и перекрытий Технология Общие данные План 1-го этажа с расстановкой технологического оборудования План 2-го этажа с расстановкой технологического оборудования Спецификация технологического оборудования Холодоснабжение Общие данные Планы охлаждаемых камер и машинных отделений. Разрез А-А; Б-Б Принципиальные схемы. Разрезы I-I; II-II | Разработан: | Минздрав РСФСР
| Утверждён: | 25.01.1980 Госстрой РСФСР (Russian Federation Gosstroy 4)
| Расположен в: |
|
                                             
|