Скачать Типовой проект 252-2-8 Альбом III. Часть 2. Санитарно-технические чертежи. Теплоснабжение, лечебные газы, централизованное пылеудаление, охлаждаемые камерыДата актуализации: 10.08.2017 Типовой проект 252-2-8
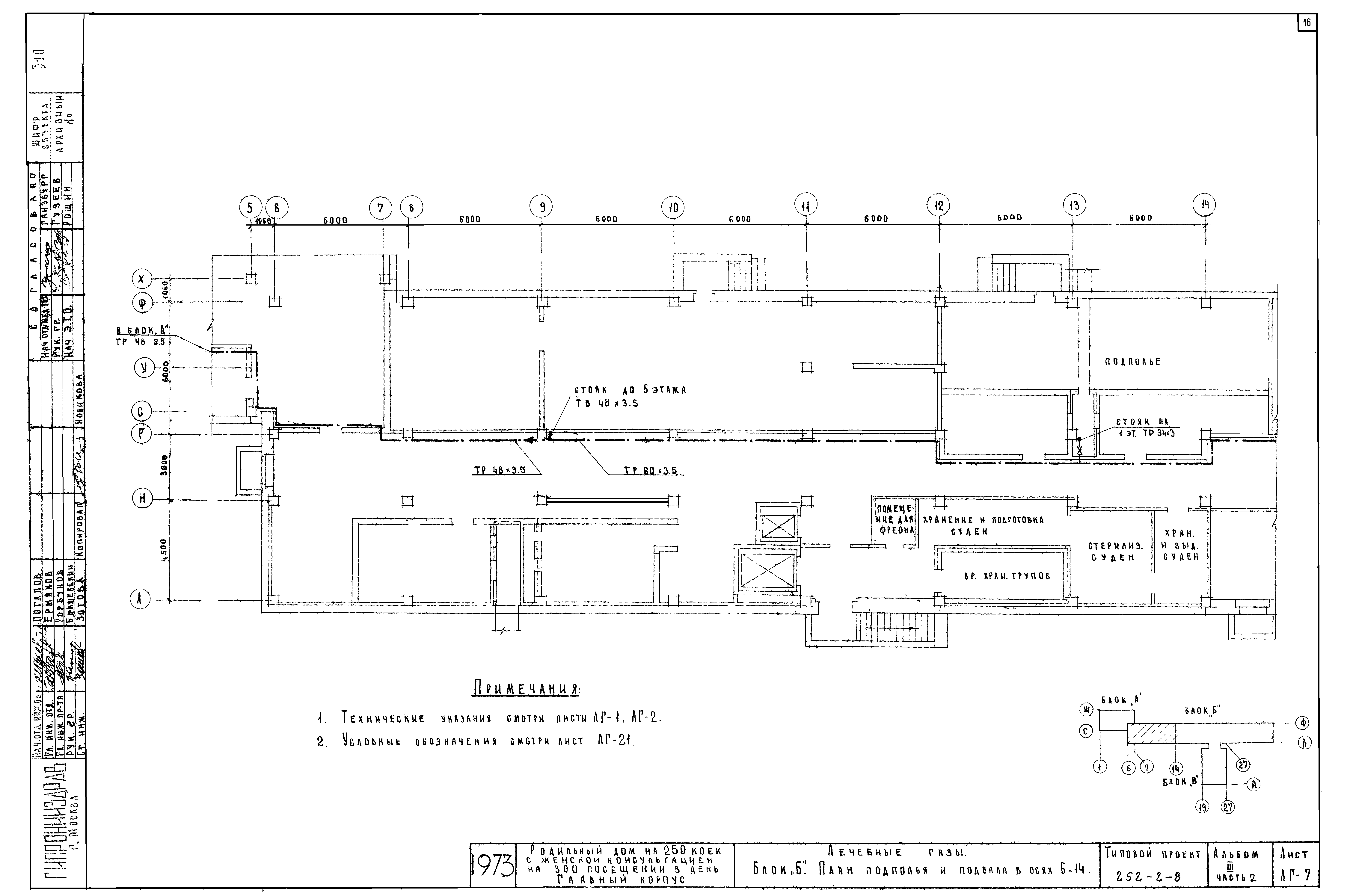
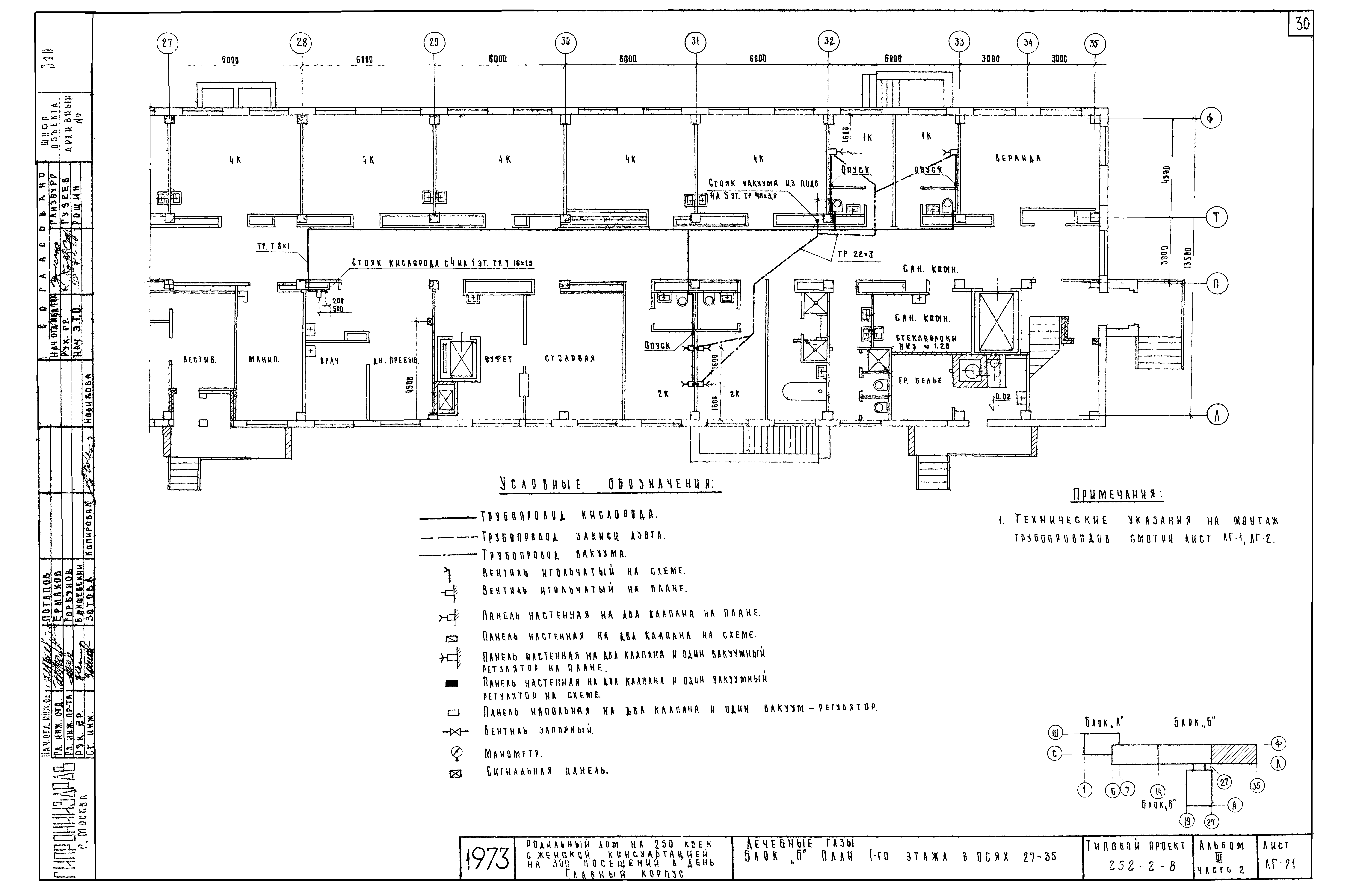
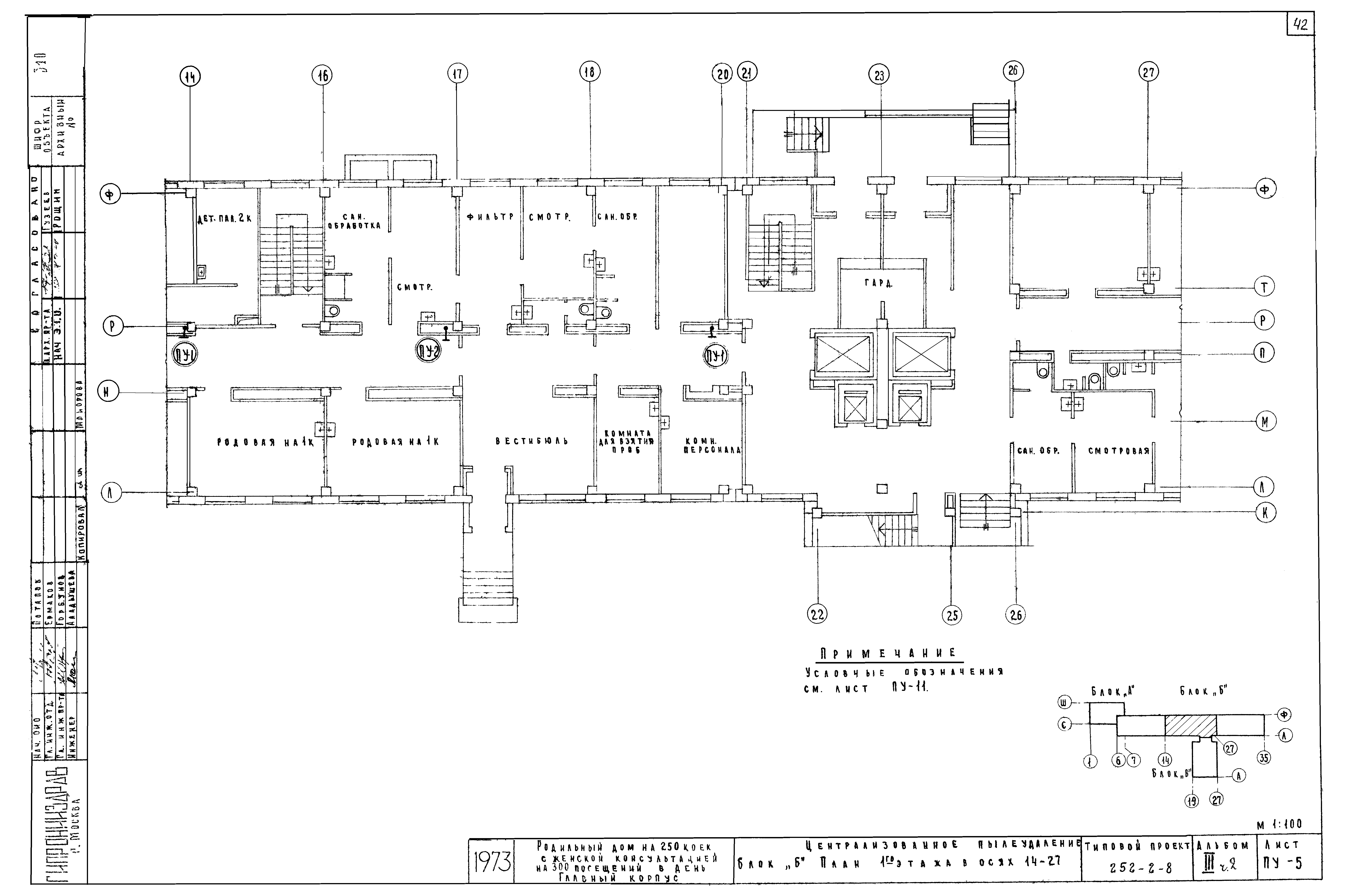
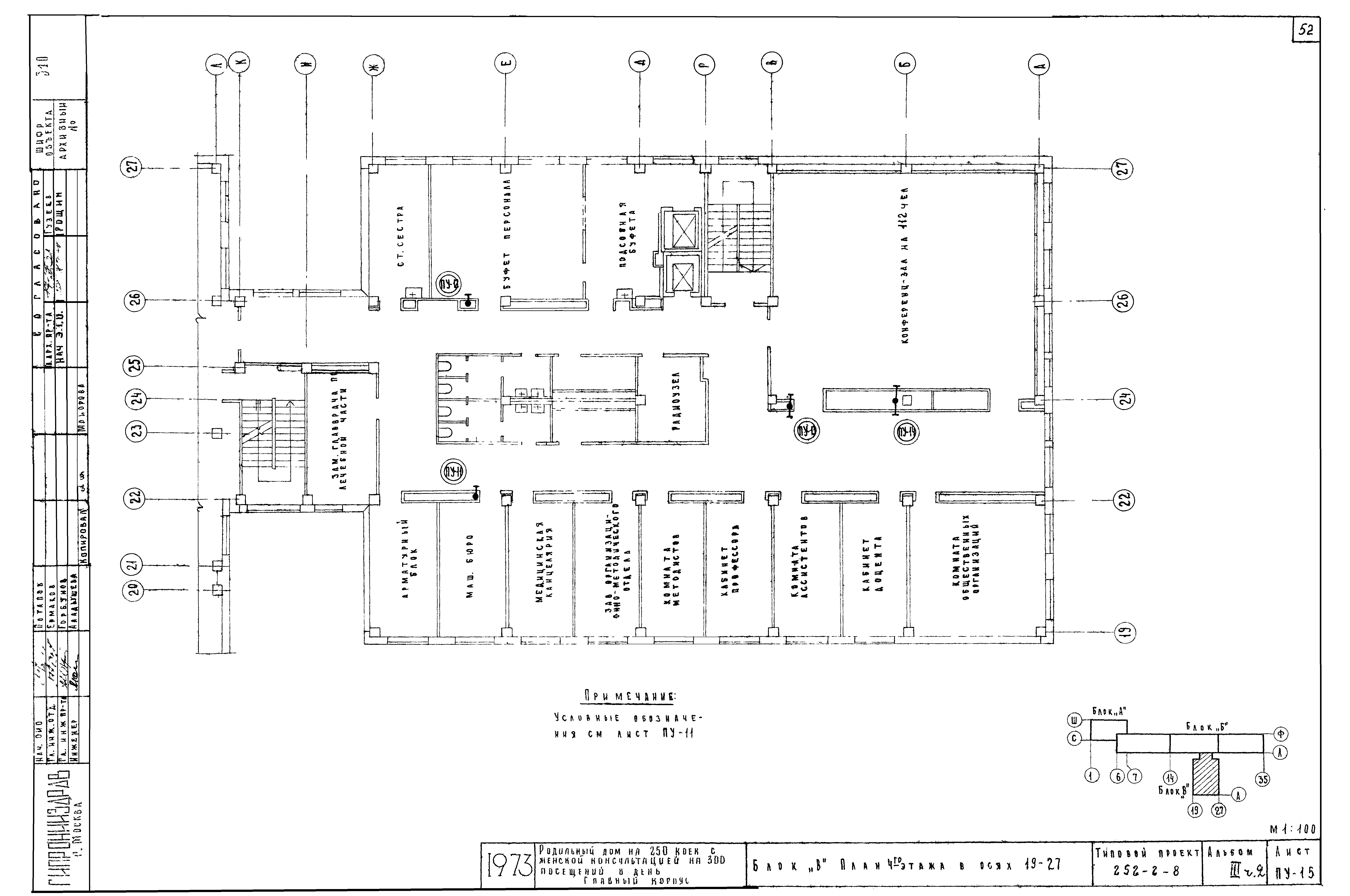
Альбом III. Часть 2. Санитарно-технические чертежи. Теплоснабжение, лечебные газы, централизованное пылеудаление, охлаждаемые камерыОбозначение: | Типовой проект 252-2-8 | Обозначение англ: | 252-2-8 | Статус: | не определен законодательством | Название рус.: | Альбом III. Часть 2. Санитарно-технические чертежи. Теплоснабжение, лечебные газы, централизованное пылеудаление, охлаждаемые камеры | Дата добавления в базу: | 01.09.2013 | Дата актуализации: | 05.05.2017 | Дата введения: | 20.11.1973 | Оглавление: | Титульный лист Содержание альбома III часть 2 Теплоснабжение Содержание части проекта. Пояснительная записка Спецификация. Таблица расходов тепла Блок "А". План подполья и подвала в осях 1 - 7 Блок "Б". План подполья и подвала в осях 6 - 14 Блок "Б". План подполья и подвала в осях 14 - 27 Блок "Б". План подполья и подвала в осях 27 - 35 Блок "В". План подвала в осях 19 - 27 Крепление неподвижных опор на кронштейнах в стене и железобетонной колонне Лечебные газы Содержание части проекта. Перечень примененных стандартов. Пояснительная записка. Спецификация Блок "А". План подполья и подвала в осях 1 - 7 Блок "А". План 1-го этажа в осях 1 - 7 Блок "А". Схема разводки трубопроводов подполья и подвала 1-го этажа в осях 1 - 7 Блок "Б". План подполья и подвала в осях 6 - 14 Блок "Б". План 1-го этажа в осях 6 - 14 Блок "Б". План 2-го и 3-го этажей в осях 6 - 14 Блок "Б". План 4-го и 5-го этажей в осях 6 - 14 Блок "Б". Схема разводки трубопроводов подполья и подвала и 1-го этажа в осях 6 - 14 Блок "Б". Схема разводки трубопроводов 2-го и 3-го этажей в осях 6 - 14 Блок "Б". Схема разводки трубопроводов 4-го и 5-го этажей в осях 6 - 14 Блок "Б". План подполья и подвала в осях 14 - 27 Блок "Б". План 1-го этажа в осях 14 - 27 Блок "Б". План 2-го и 3-го этажей в осях 14 - 27 Блок "Б". План 4-го и 5-го этажей в осях 14 - 27 Блок "Б". Схема разводки трубопроводов подполья и подвала 1-го, 2-го и 3-го этажей в осях 14 - 27 Блок "Б". Схема разводки трубопроводов 4-го и 5-го этажей в осях 14 - 27 и блок "В" 4-ый этаж в осях 19-27 Блок "Б". План подполья и подвала в осях 27 - 35 Блок "Б". План 1-го этажа в осях 27 - 35 Блок "Б". План 2-го и 3-го этажей в осях 27 - 35 Блок "Б". План 4-го и 5-го этажей в осях 27 - 35 Блок "Б". Схема разводки трубопроводов подполья и подвала 1-го, 2-го и 3-го этажей в осях 27 - 35 Блок "Б". Схема разводки трубопроводов 4-го и 5-го этажей в осях 27 - 35 Блок "В". План 4-го этажа в осях 19 - 27 Блок "Б". План подполья и подвала в осях 14 - 27. Помещения для вакуумных насосов Напольная и настенная панели Централизованное пылеудаление Блок "Б". Содержание части проекта. План подполья и подвала в осях 6 - 14 Блок "Б". План подполья и подвала в осях 14 - 27 Блок "Б". План подполья и подвала в осях 27 - 35 Блок "Б". План 1-го этажа в осях 6 - 14 Блок "Б". План 1-го этажа в осях 14 - 27 Блок "Б". План 1-го этажа в осях 27 - 35 Блок "Б". План 4-го и 5-го этажей в осях 6 - 14 Блок "Б". План 4-го и 5-го этажей в осях 14 - 27 Блок "Б". План 4-го и 5-го этажей в осях 27 - 35 Блок "Б". Машинное отделение Блок "Б". Схема трубопроводов в осях 6 - 14, 14 - 27 Блок "Б". Схема трубопроводов в осях 27 -35 блока "Б". Схема трубопроводов в осях 19 - 27 блока "В" Блок "В". План подвала в осях 19 - 27 Блок "В". План 1-го этажа в осях 19 - 27 Блок "В". План 4-го этажа в осях 19 - 27 Холодильные установки Блок "Б". Содержание части проекта. Пояснительная записка. Монтажные указания. Сводная спецификация Блок "Б". Схемы фреоновых трубопроводов. Экспликация оборудования Блок "Б". Планы охлаждаемых камер, разрезы Блок "Б". Подвеска 2-х испарителей ИРСН-12,5 м. Общий вид Блок "Б". Подвеска 2-х испарителей ИРСН-12,5 м. Деталь | Разработан: | ГипроНИИздрав Минздрава СССР
| Утверждён: | 05.12.1973 Тувгражданстрой (218)
| Расположен в: |
|
                                                        
|