| ||||||||||||||||||||||||||||||
Скачать Серия 3.006.1-2/82 Выпуск 0. Материалы для проектированияДата актуализации: 10.08.2017
|
| Обозначение: | Серия 3.006.1-2/82 |
| Обозначение англ: | Series 3.006.1-2/82 |
| Статус: | не действует |
| Название рус.: | Выпуск 0. Материалы для проектирования |
| Дата добавления в базу: | 01.09.2013 |
| Дата актуализации: | 05.05.2017 |
| Дата введения: | 01.01.1985 |
| Дата окончания срока действия: | 01.05.1988 |
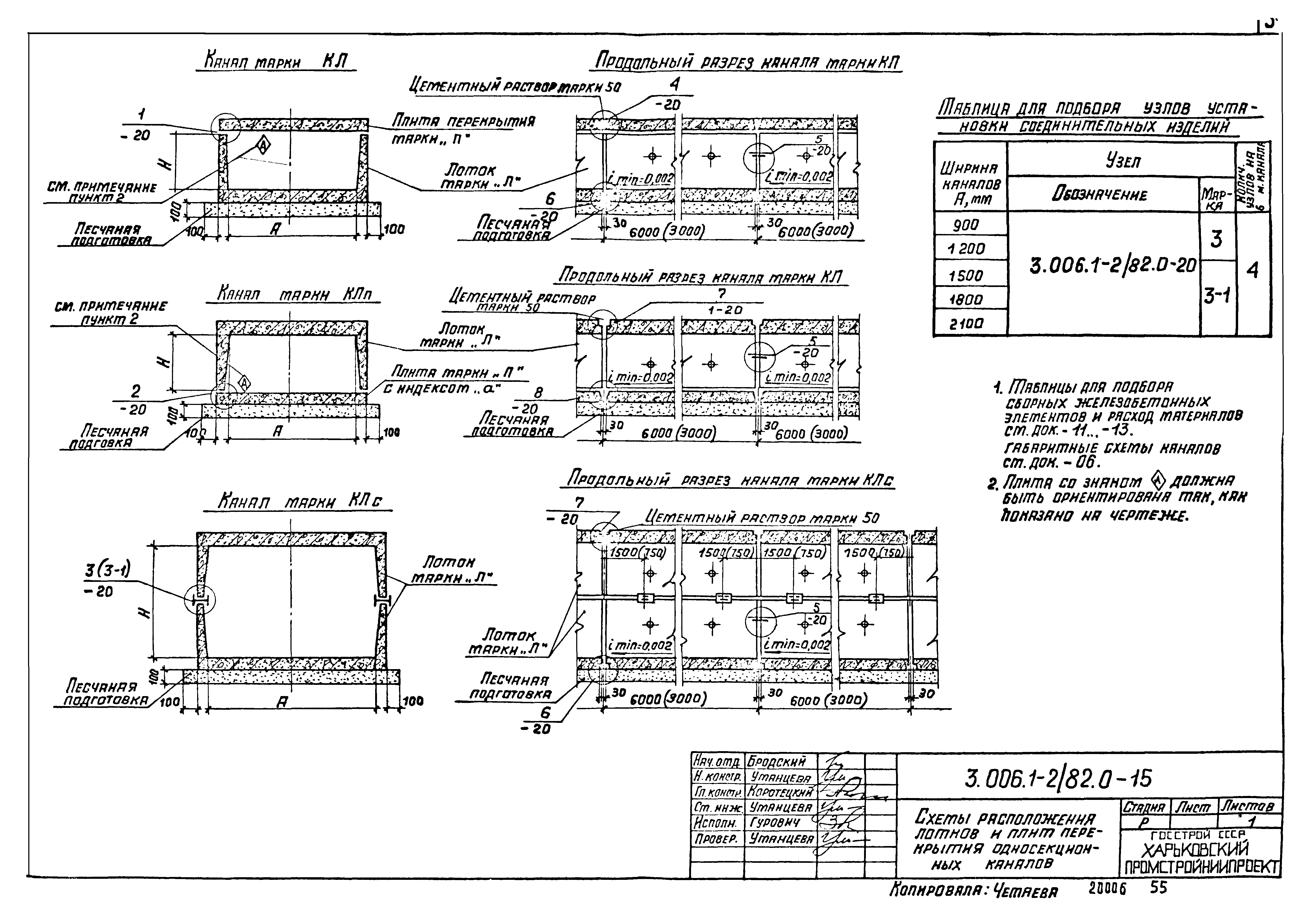
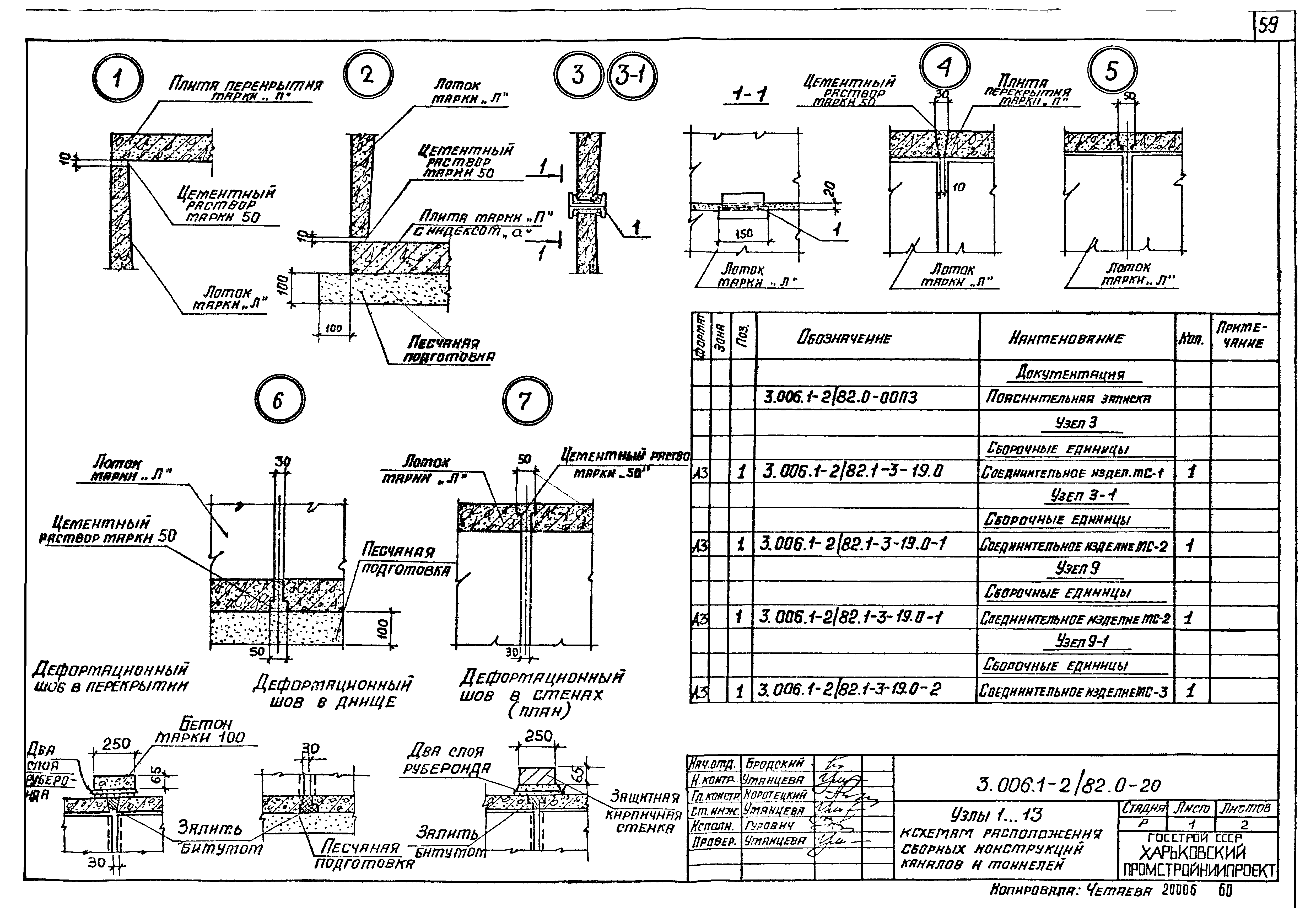
| Оглавление: | 3.006.1-2/82.0-00ПЗ Пояснительная записка 3.006.1-2/82.0-01 Эквивалентные вертикальные расчетные нагрузки для каналов, прокладываемых вне зданий 3.006.1-2/82.0-02 Эквивалентные вертикальные расчетные нагрузки на внутрицеховые каналы 3.006.1-2/82.0-03 Эквивалентные вертикальные расчетные нагрузки для тоннелей, прокладываемых вне зданий 3.006.1-2/82.0-04 Эквивалентные вертикальные расчетные нагрузки на внутрицеховые тоннели 3.006.1-2/82.0-05 Расчетные схемы и нагрузки на каналы и тоннели 3.006.1-2/82.0-06 Габаритные схемы каналов 3.006.1-2/82.0-07 Габаритные схемы тоннелей 3.006.1-2/82.0-08 Номенклатура сборных железобетонных лотковых элементов каналов и тоннелей. Расход материалов на одно изделие 3.006.1-2/82.0-09 Номенклатура сборных железобетонных плит каналов. Расход материалов на одно изделие 3.006.1-2/82.0-10 Номенклатура сборных железобетонных плит перекрытия каналов, подкладок и опорных подушек. Расход материалов на одно изделие 3.006.1-2/82.0-11 Таблица для подбора сборных железобетонных элементов и расход материалов на 6 м каналов марок "КЛ" и "КЛп" 3.006.1-2/82.0-12 Таблицы для подбора плит перекрытия внутрицеховых и полуподземных каналов и подкладок, применяемых при строительстве в особых условиях 3.006.1-2/82.0-13 Таблица для подбора сборных железобетонных элементов и расход материалов на 6 м каналов марки "КЛс" 3.006.1-2/82.0-14 Таблица для подбора сборных железобетонных элементов и расход материалов на 6 м тоннелей марки "ТЛ" 3.006.1-2/82.0-15 Схемы расположения лотков и плит перекрытия односекционных каналов 3.006.1-2/82.0-16 Схемы расположения лотков и плит перекрытия многосекционных каналов 3.006.1-2/82.0-17 Схемы расположения лотков тоннелей 3.006.1-2/82.0-18 Схемы расположения лотков и плит перекрытия полуподземных каналов. Детали противопожарной перемычки 3.006.1-2/82.0-19 Схема расположения лотков и плит перекрытия внутрицеховых каналов с перекрытием на отм. 0.00 3.006.1-2/82.0-20 Узлы 1 - 13 к схемам расположения сборных конструкций каналов и тоннелей 3.006.1-2/82.0-21 Асфальтовая гидроизоляция тоннелей и каналов 3.006.1-2/82.0-22 Оклеечная гидроизоляция тоннелей и каналов 3.006.1-2/82.0-23 Деформационный шов в каналах при асфальтовой гидроизоляции 3.006.1-2/82.0-24 Узлы 14 - 19 к схемам деформационных швов в тоннелях 3.006.1-2/82.0-25 Деформационный шов в каналах при оклеечной гидроизоляции 3.006.1-2/82.0-26 Схемы расположения лотков каналов и тоннелей на просадочных грунтах II типа и в сейсмических районах 3.006.1-2/82.0-27 Схема установки опорных подушек и укладки стальных балок. Таблица для подбора подушек под скользящие опоры 3.006.1-2/82.0-28 Пример расположения закладных деталей в каналах и тоннелях. Деталь установки монорельса в тоннелях |
| Разработан: | Харьковский Промстройниипроект |
| Утверждён: | 05.09.1984 Госстрой СССР (Государственный комитет Совета Министров СССР по делам строительства) (USSR Gosstroy 157) |
| Расположен в: | |
| Чем заменён: |






































































