Информационная система
«Ёшкин Кот»

Скачать базу одним архивом
Скачать обновления
История создания базы
Карта сайта

Скачать Типовой проект 407-3-453.87 Альбом II. Строительные изделия (из ТП 407-3-455.87)

Дата актуализации: 10.08.2017

Типовой проект 407-3-453.87

Альбом II. Строительные изделия (из ТП 407-3-455.87)

Обозначение: Типовой проект 407-3-453.87
Обозначение англ: 407-3-453.87
Статус:не определен законодательством
Название рус.:Альбом II. Строительные изделия (из ТП 407-3-455.87)
Дата добавления в базу:01.09.2013
Дата актуализации:05.05.2017
Дата введения:03.03.1987
Оглавление:Технические требования
Рамка РМ1
Рамка РМ2
Траверса Т1
Траверса Т3
Траверса Т1. Сборочный чертеж
Траверса Т2
Рамка РМ3
Траверса Т3. Сборочный чертеж
Рамка РМ4
Кронштейн К1
Кронштейн К2
Траверса Т4
Траверса Т5
Траверса Т6
Рамка РМ5
Рамка РМ6
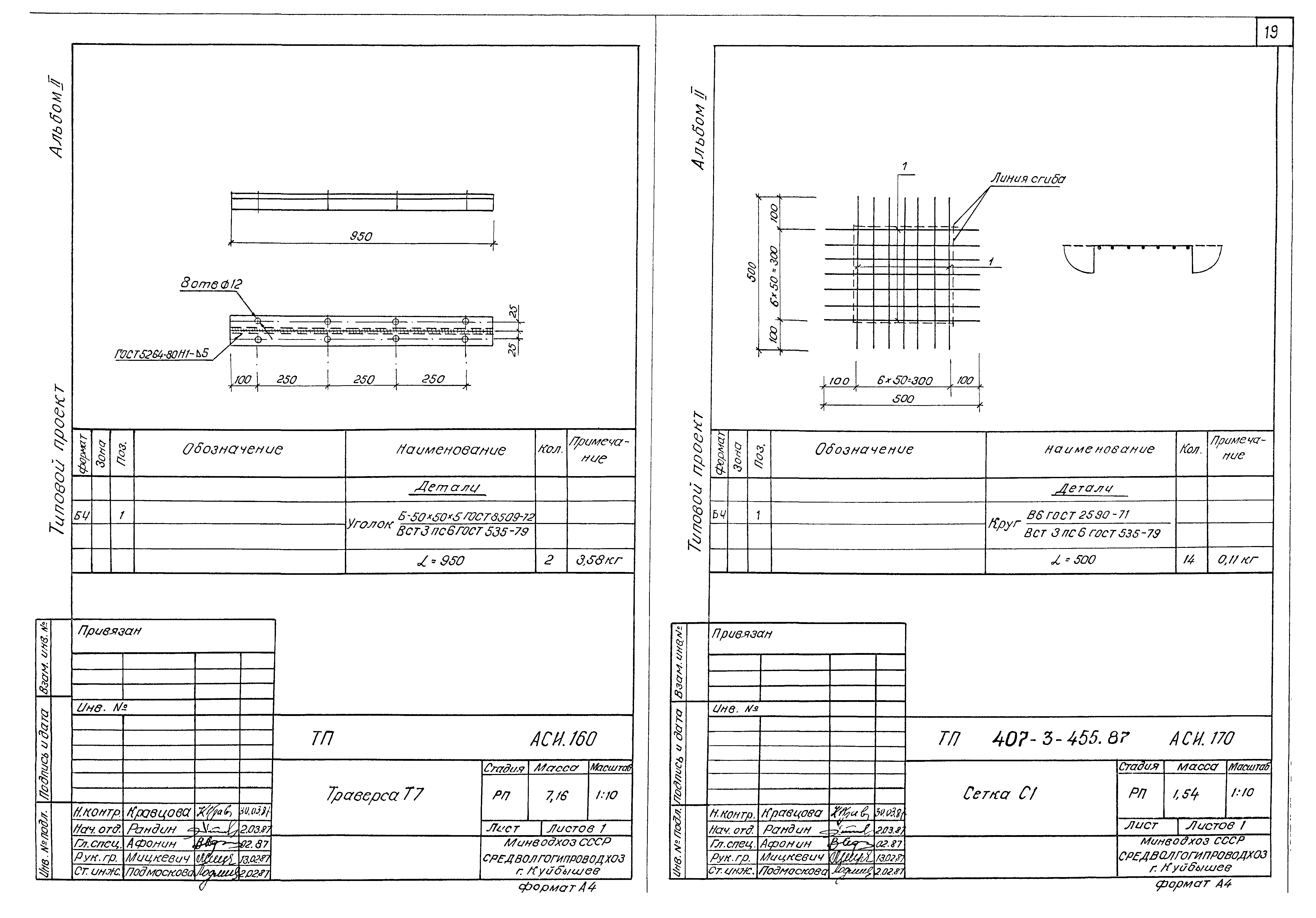
Траверса Т7
Сетка С1
Фиксатор. Общий вид
Разработан: Средволгогипроводхоз
Утверждён:03.03.1987 Минводхоз СССР (USSR Minvodkhoz 529)
Расположен в:Техническая документация Строительство Справочные документы Типовые строительные конструкции, изделия и узлы Общероссийский строительный каталог Промышленные предприятия, здания и сооружения Предприятия, здания и сооружения промышленности и электроэнергетики Электроэнергетика Устройства и подстанции распределительные
Типовой проект 407-3-453.87Типовой проект 407-3-453.87Типовой проект 407-3-453.87Типовой проект 407-3-453.87Типовой проект 407-3-453.87Типовой проект 407-3-453.87Типовой проект 407-3-453.87Типовой проект 407-3-453.87Типовой проект 407-3-453.87Типовой проект 407-3-453.87Типовой проект 407-3-453.87Типовой проект 407-3-453.87Типовой проект 407-3-453.87Типовой проект 407-3-453.87Типовой проект 407-3-453.87Типовой проект 407-3-453.87Типовой проект 407-3-453.87Типовой проект 407-3-453.87Типовой проект 407-3-453.87Типовой проект 407-3-453.87Типовой проект 407-3-453.87

© 2013 Ёшкин Кот :-) Карта сайта