| ||||||||||||||||||||||||||||
Скачать Серия КЭ-03-3 Стальные площадки и лестницы для обслуживания оборудования химической и нефтяной промышленности. Рабочие чертежи КМДата актуализации: 10.08.2017
|
| Обозначение: | Серия КЭ-03-3 |
| Обозначение англ: | Series КЭ-03-3 |
| Статус: | не действует |
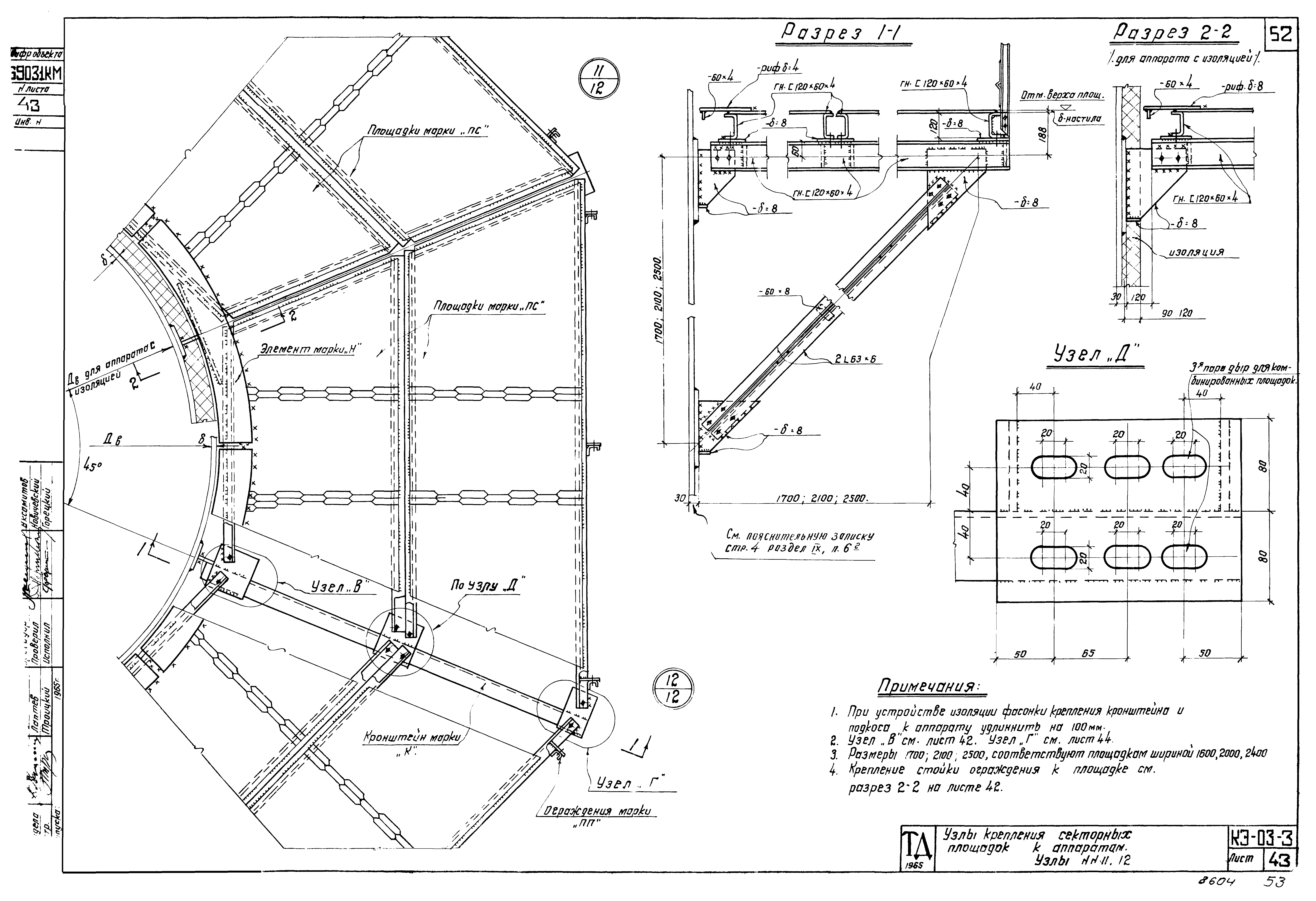
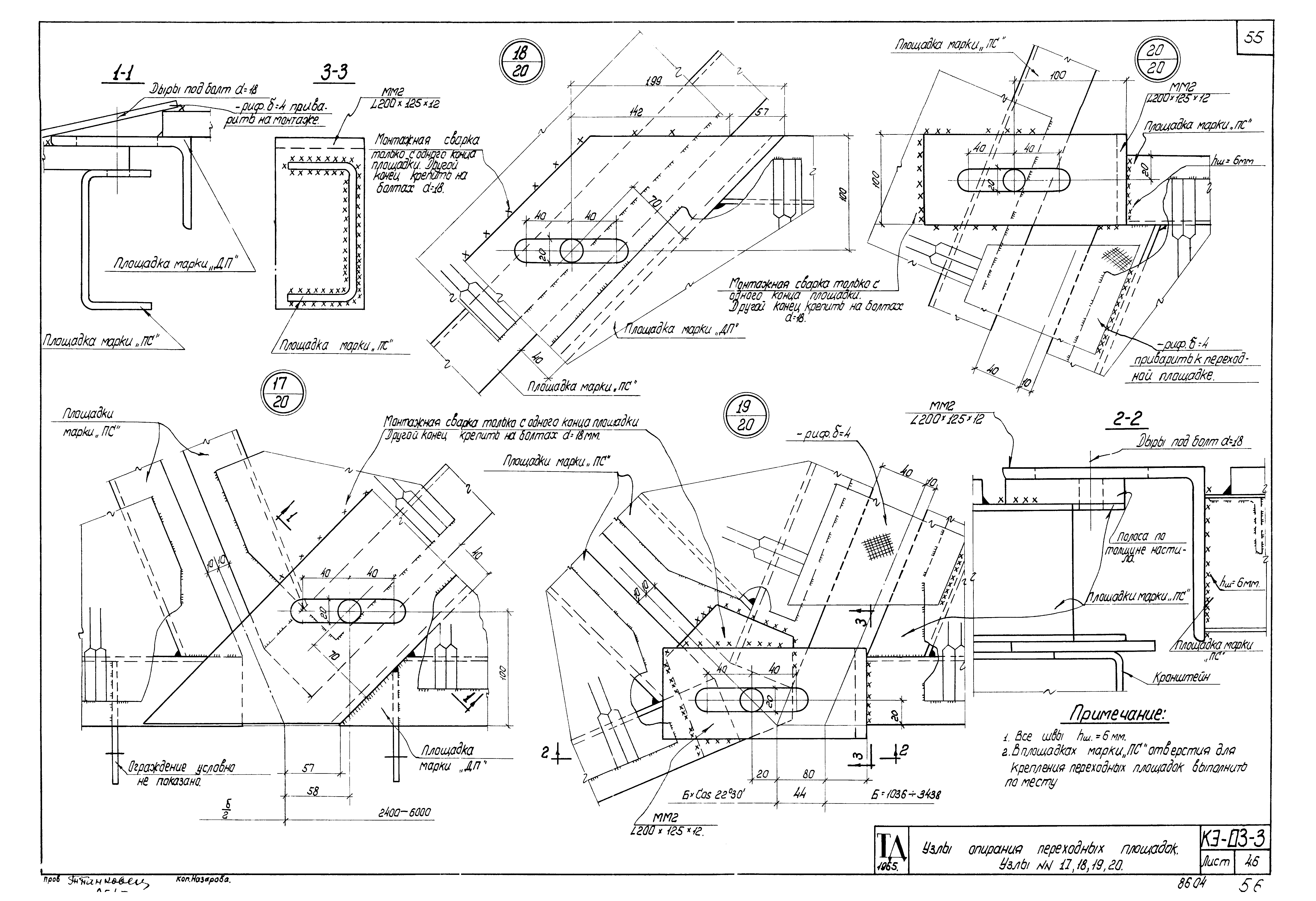
| Название рус.: | Стальные площадки и лестницы для обслуживания оборудования химической и нефтяной промышленности. Рабочие чертежи КМ |
| Дата добавления в базу: | 01.09.2013 |
| Дата актуализации: | 05.05.2017 |
| Дата введения: | 01.01.1966 |
| Дата окончания срока действия: | 01.07.1974 |
| Разработан: | Проектстройконструкция НИИмонтажспецстрой |
| Утверждён: | 15.01.1966 Главпромстройпроект Госстроя СССР |
| Расположен в: | |
| Чем заменён: |











































































