Информационная система
«Ёшкин Кот»

Скачать базу одним архивом
Скачать обновления
История создания базы
Карта сайта

Скачать Типовой проект 816-178 Альбом IV. Архитектурно-строительная часть (вариант в сборных железобетонных конструкциях)

Дата актуализации: 10.08.2017

Типовой проект 816-178

Альбом IV. Архитектурно-строительная часть (вариант в сборных железобетонных конструкциях)

Обозначение: Типовой проект 816-178
Обозначение англ: 816-178
Статус:действует
Название рус.:Альбом IV. Архитектурно-строительная часть (вариант в сборных железобетонных конструкциях)
Дата добавления в базу:01.09.2013
Дата актуализации:05.05.2017
Дата введения:01.11.1975
Оглавление:Титульный лист
Перечень листов
Пояснительная записка
Основной комплект марки АР
   Заглавный лист
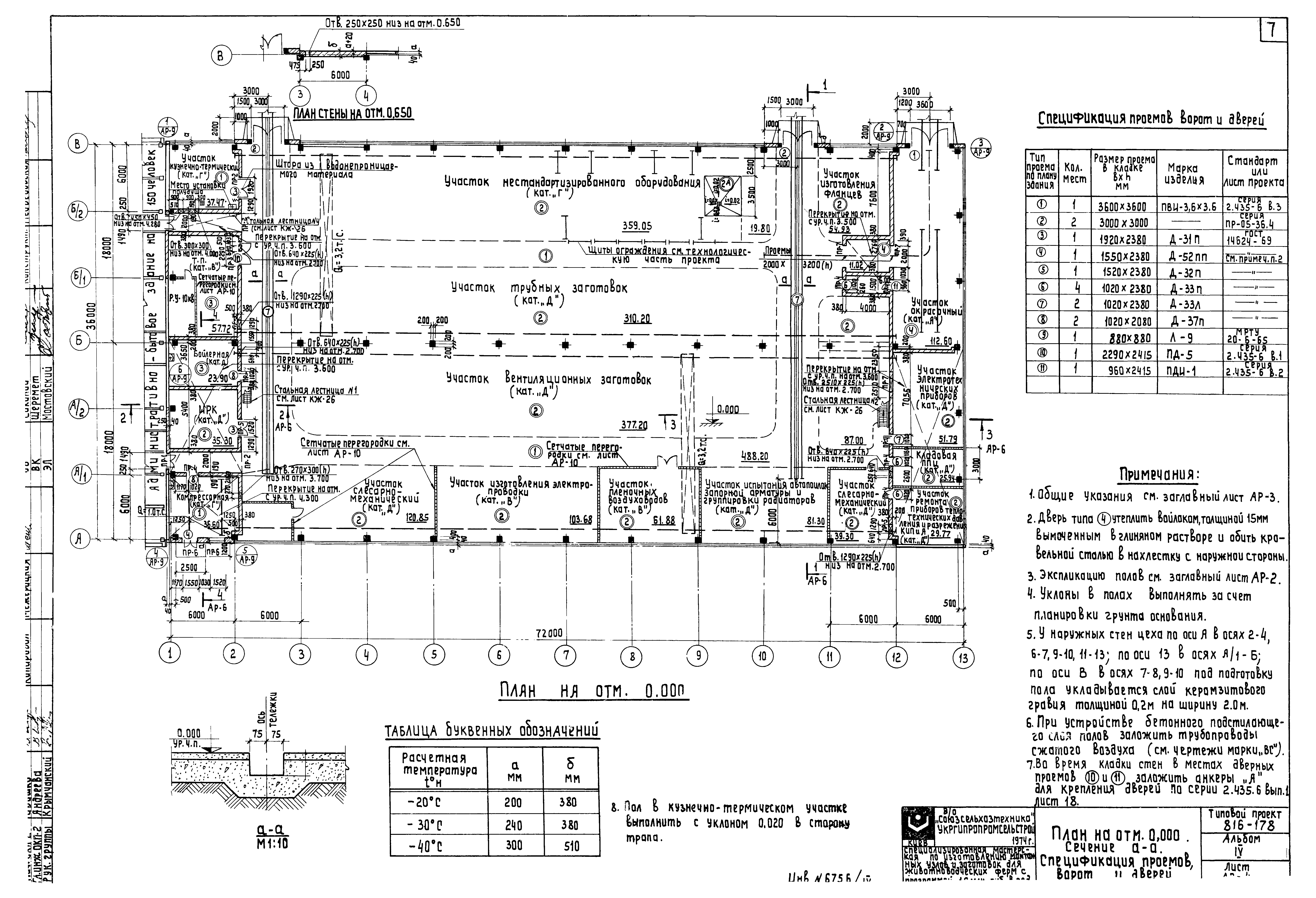
   План на отм. 0.000. Сечение а-а. Спецификация проемов ворот и дверей
   План на отм. 4.300 и 3.600 в осях 1-2; А-Б. План на отм. 3.600 в осях 12-13; А-Б и 1-1; 6/2
   Разрезы 1-1 - 4-4. Узел 7
   Фасады 1 - 13; 13 - 1; А - В; В - А
   Схемы заполнения оконных проемов. Спецификации
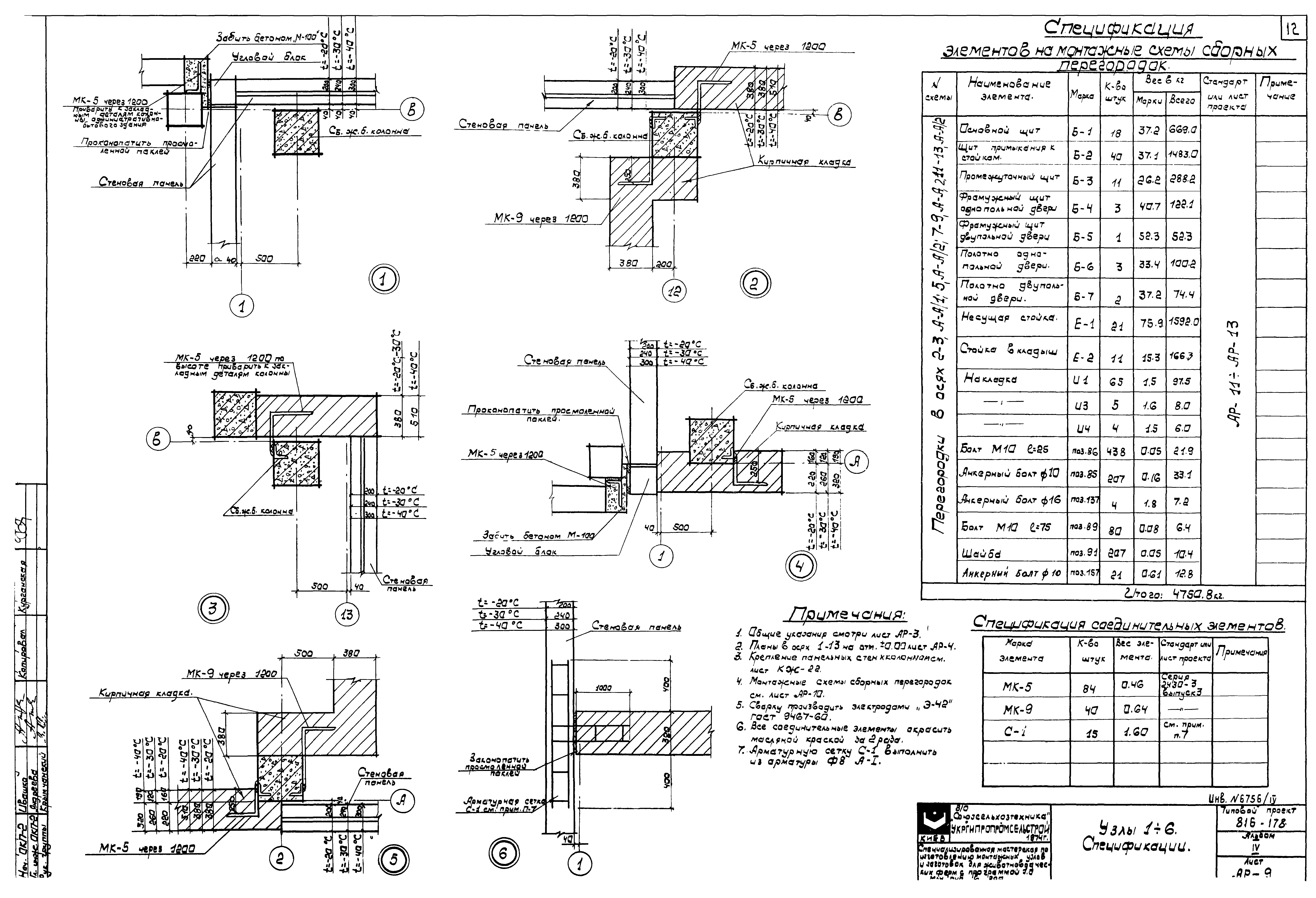
   Узлы 1 - 6. Спецификации
   Монтажные схемы стальных сетчатых перегородок в осях 2-3; А-А/1; 5; А-А/2; 11 - 13; А-А/2; 1, Б-Б/1. Виды 1-1 - 11-11
   Перегородки из стальных щитов. Спецификация материалов для щитов с сеткой. Тип щитов с сеткой. Металлическая стойка С-1
   Перегородка из стальных щитов. Типы стоек и детали их установки. Монтажные детали перегородок. Детали навески дверей
   Перегородки из стальных щитов. Детали дверных щитов. Детали фрамужных щитов. Детали щитов перегородок
   Примеры перепланировки санузлов административно-бытового здания на 150 человек. Условия привязки административно-бытового здания на 150 человек
Основной комплект марки КЖ
   Заглавный лист
   План фундаментов. Узел "А". Анкера А-1 - А-3
   Элементы плана фундаментов 1 - 7
   Элемент плана фундаментов в сечениях 1-1 - 4-4. ФМ-1, ФМ-1А. Опалубочные чертежи и армирование
   ФМ-2, ФМ-4. Опалубочные чертежи и армирование
   ФА25-1, ФА43-1, ФА49-1. Опалубочные чертежи и армирование
   ФА55-1, ФА19-1, ФА37-1. Опалубочные чертежи и армирование
   ФА37-2, ФА37-3, ФА37-4, ФА25-2, ФА25-3, ФА25-3А, ФА49-2. Опалубочные чертежи
   План подземного хозяйства
   Фундаменты под оборудование ФО1 - ФО-16
   Подпольные каналы №1 - №9. Приямки ПР-1 - ПР-4. Фундаменты под оборудование ФО-17 - ФО-20. План покрытия приямка ПР-4
   ФО-24. Опалубочные чертежи. Разрезы 1-1, 2-2
   Фундаменты ФО-21 - ФО-24. Опалубочные чертежи. Разрезы
   План монолитного перекрытия фундамента ФО-24. Разрез 3-3. Закладные детали
   ФО-24. Армирование
   Приямки ПР-5, ПР-6. Балки Б-1. Закладные детали ЗД-26 - ЗД-28
   Монтажная схема колонн и рам ворот. Разрезы 1-1 - 5-5
   Монтажная схема балок и плит покрытия. Разрезы 1-1 - 4-4
   Монтажные схемы стальных балок плит МП-1, МП-2, МП-5. Плиты МП-1 - МП-6. Разрезы 1-1 - 5-5. Узел 1
   Узлы 2 - 9. Опорная подушка ОП-1
   Монтажные схемы стеновых панелей в осях А, В, 1, 13
   Маркировочные схемы деталей и элементов крепления стеновых панелей. Фрагменты 1 - 18
   КПII-12А - КПII-12Е, КП-17А. 1БДР18-2АIV, 2БДР18-3АIV. Опалубочные чертежи
   Колонна КФ-1, КФ-1А. Опалубочные чертежи и армирование
   Монтажная схема подвесных крановых путей. Разрезы 1-1, 2-2, 3-3
   Монтажные схемы лестниц №1 - №4. Ограждение площадки НПП1
Разработан: Укргипропромсельстрой
Утверждён:29.01.1975 Союзсельхозтехника (1)
Расположен в:Техническая документация Строительство Справочные документы Типовые строительные конструкции, изделия и узлы Общероссийский строительный каталог Сельскохозяйственные предприятия, здания и сооружения Предприятия, здания и сооружения по ремонту, техническому обслуживанию, хранению и обеспечению горюче-смазочными материалами сельхозтехники Мастерские отделений хозяйств
Типовой проект 816-178Типовой проект 816-178Типовой проект 816-178Типовой проект 816-178Типовой проект 816-178Типовой проект 816-178Типовой проект 816-178Типовой проект 816-178Типовой проект 816-178Типовой проект 816-178Типовой проект 816-178Типовой проект 816-178Типовой проект 816-178Типовой проект 816-178Типовой проект 816-178Типовой проект 816-178Типовой проект 816-178Типовой проект 816-178Типовой проект 816-178Типовой проект 816-178Типовой проект 816-178Типовой проект 816-178Типовой проект 816-178Типовой проект 816-178Типовой проект 816-178Типовой проект 816-178Типовой проект 816-178Типовой проект 816-178Типовой проект 816-178Типовой проект 816-178Типовой проект 816-178Типовой проект 816-178Типовой проект 816-178Типовой проект 816-178Типовой проект 816-178Типовой проект 816-178Типовой проект 816-178Типовой проект 816-178Типовой проект 816-178Типовой проект 816-178Типовой проект 816-178Типовой проект 816-178Типовой проект 816-178Типовой проект 816-178Типовой проект 816-178

© 2013 Ёшкин Кот :-) Карта сайта