Скачать Типовой проект 816-178 Альбом III. Электротехническая часть. Задания заводу-изготовителю на электрооборудование, КИП и автоматикуДата актуализации: 10.08.2017 Типовой проект 816-178
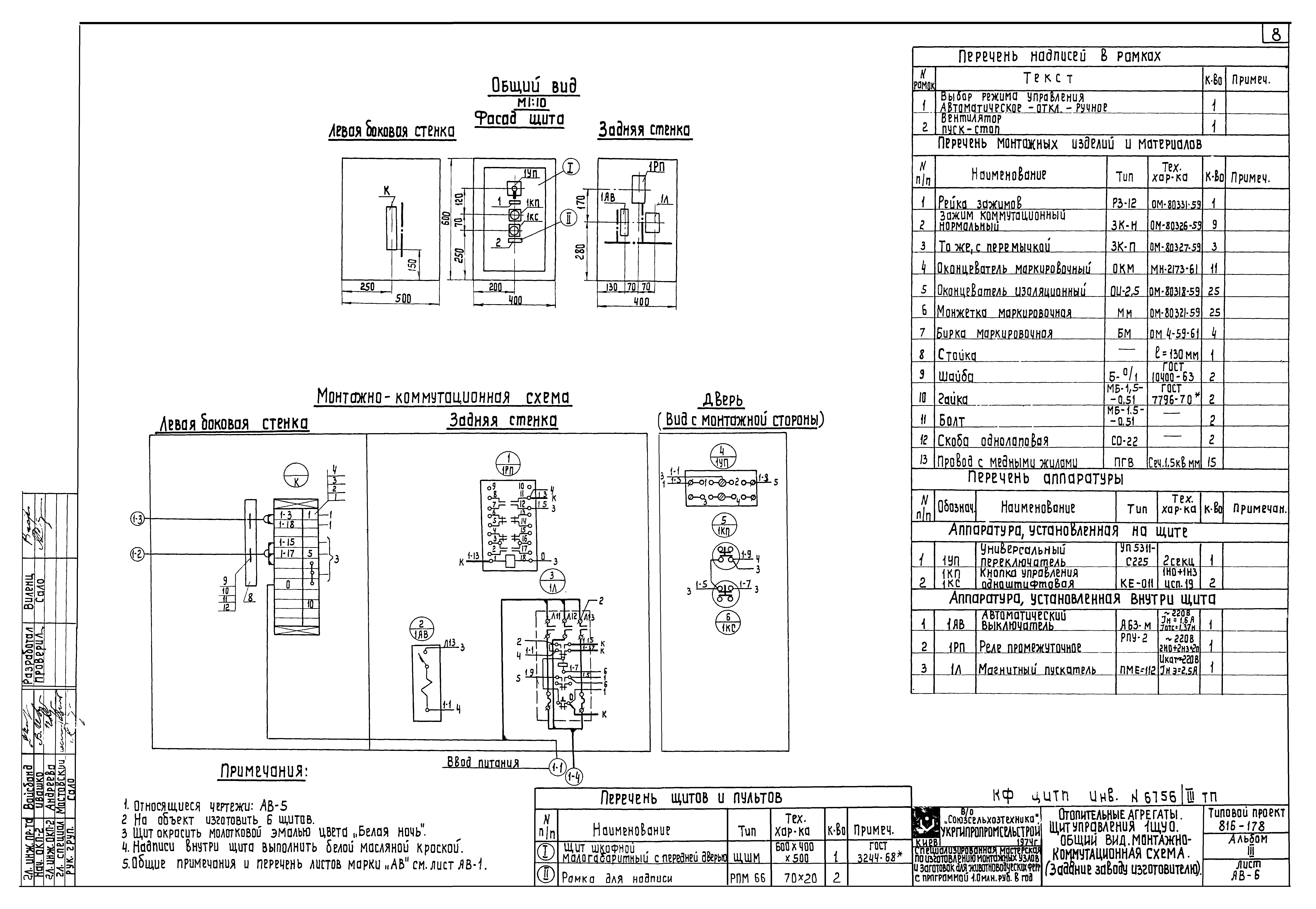
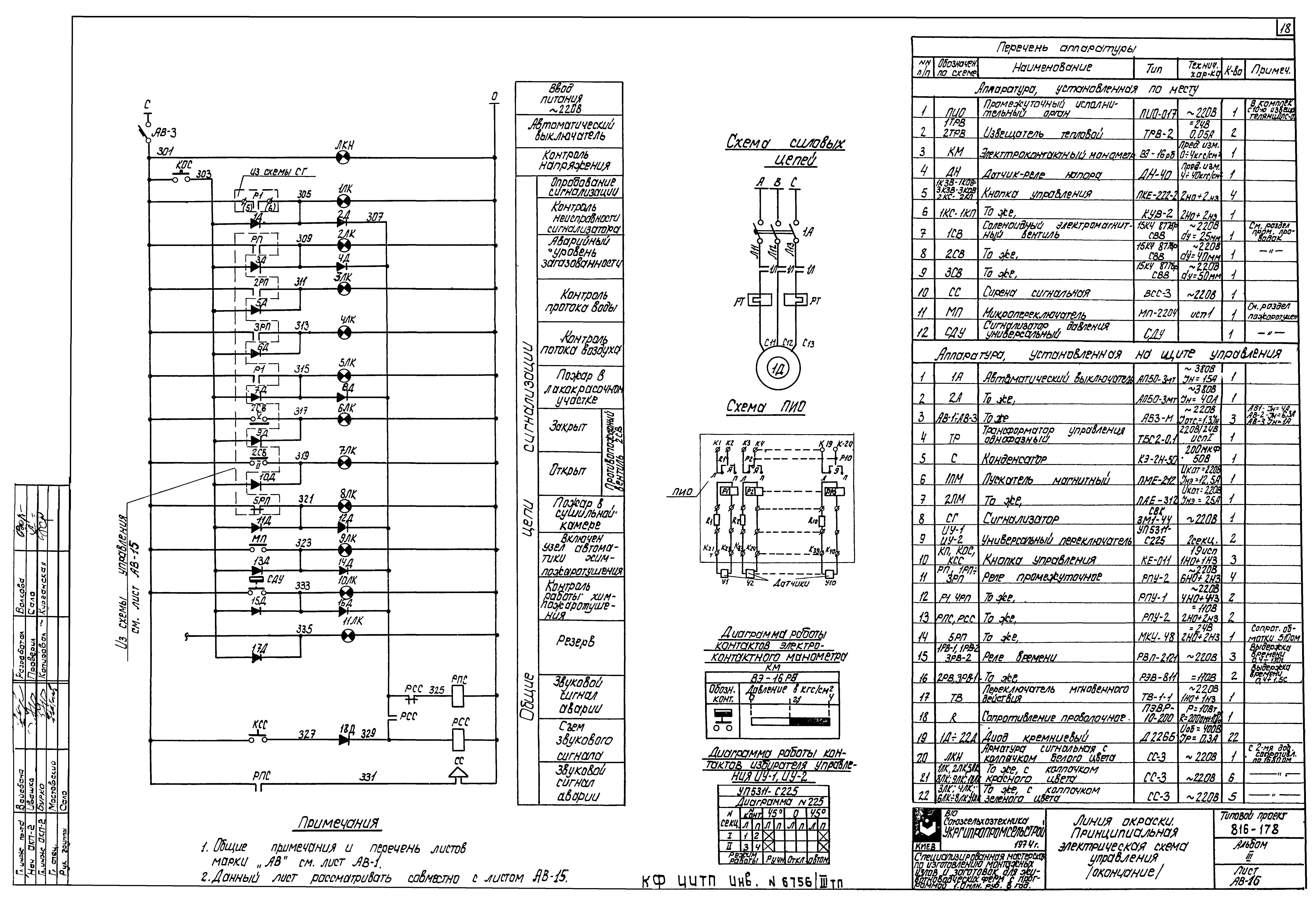
Альбом III. Электротехническая часть. Задания заводу-изготовителю на электрооборудование, КИП и автоматикуОбозначение: | Типовой проект 816-178 | Обозначение англ: | 816-178 | Статус: | действует | Название рус.: | Альбом III. Электротехническая часть. Задания заводу-изготовителю на электрооборудование, КИП и автоматику | Дата добавления в базу: | 01.09.2013 | Дата актуализации: | 05.05.2017 | Дата введения: | 01.11.1975 | Оглавление: | Титульный лист Перечень листов Перечень листов марки "АВ" (задание заводу-изготовителю) Ворота. Принципиальная электрическая схема (задание заводу-изготовителю) Ворота. Щит управления 1ЩУВ. Общий вид (задание заводу-изготовителю) Ворота. Щит управления 1ЩУВ. Монтажно-коммутационная схема (задание заводу-изготовителю) Отопительные агрегаты. Принципиальная электрическая схема управления (задание заводу-изготовителю) Отопительные агрегаты. Щит управления 1ЩУО. Общий вид и монтажно-коммутационная схема (задание заводу-изготовителю) Приточные системы. Принципиальная электрическая схема управления приточным вентилятором ПС-1 (задание заводу-изготовителю) Приточные системы. Принципиальная электрическая схема регулирования температуры ПС-1 (задание заводу-изготовителю) Приточные системы. Щит управления 1ЩУ. Общий вид (задание заводу-изготовителю) Приточные системы. Щит управления 1ЩУ. Монтажно-коммутационная схема (задание заводу-изготовителю) Компрессорная. Принципиальная электрическая схема управления (задание заводу-изготовителю) Компрессорная. Щит управления компрессором. Общий вид (задание заводу-изготовителю) Компрессорная. Щит управления компрессором 1ЩУ. Монтажно-коммутационная схема (задание заводу-изготовителю) Линия окраски. Принципиальная электрическая схема управления. Лист 1 (задание заводу-изготовителю) Линия окраски. Принципиальная электрическая схема управления. Лист 2 (задание заводу-изготовителю) Линия окраски. Щит управления ЩЛО. Общий вид (задание заводу-изготовителю) Линия окраски. Щит управления ЩЛО. Монтажно-коммутационная схема (задание заводу-изготовителю) Принципиальная электрическая схема управления и шкаф управления блокируемыми механизмами (задание заводу-изготовителю) Принципиальная электрическая схема управления пожарной задвижкой (задание заводу-изготовителю) Щит управления пожарной задвижкой. Общий вид. Монтажно-коммутационная схема (задание заводу-изготовителю) | Разработан: | Укргипропромсельстрой
| Утверждён: | 29.01.1975 Союзсельхозтехника (1)
| Расположен в: |
|
                      
|