| ||||||||||||||||||||||||||
Скачать Типовые материалы для проектирования 407-03-415.86 Альбом XII. КТПБ для районов с холодным климатом. Строительные решения. Схемы расположения строительных элементов подстанцийДата актуализации: 10.08.2017
|
| Обозначение: | Типовые материалы для проектирования 407-03-415.86 |
| Обозначение англ: | 407-03-415.86 |
| Статус: | cправочные материалы, мп, тпр |
| Название рус.: | Альбом XII. КТПБ для районов с холодным климатом. Строительные решения. Схемы расположения строительных элементов подстанций |
| Дата добавления в базу: | 01.09.2013 |
| Дата актуализации: | 05.05.2017 |
| Дата введения: | 27.06.1986 |
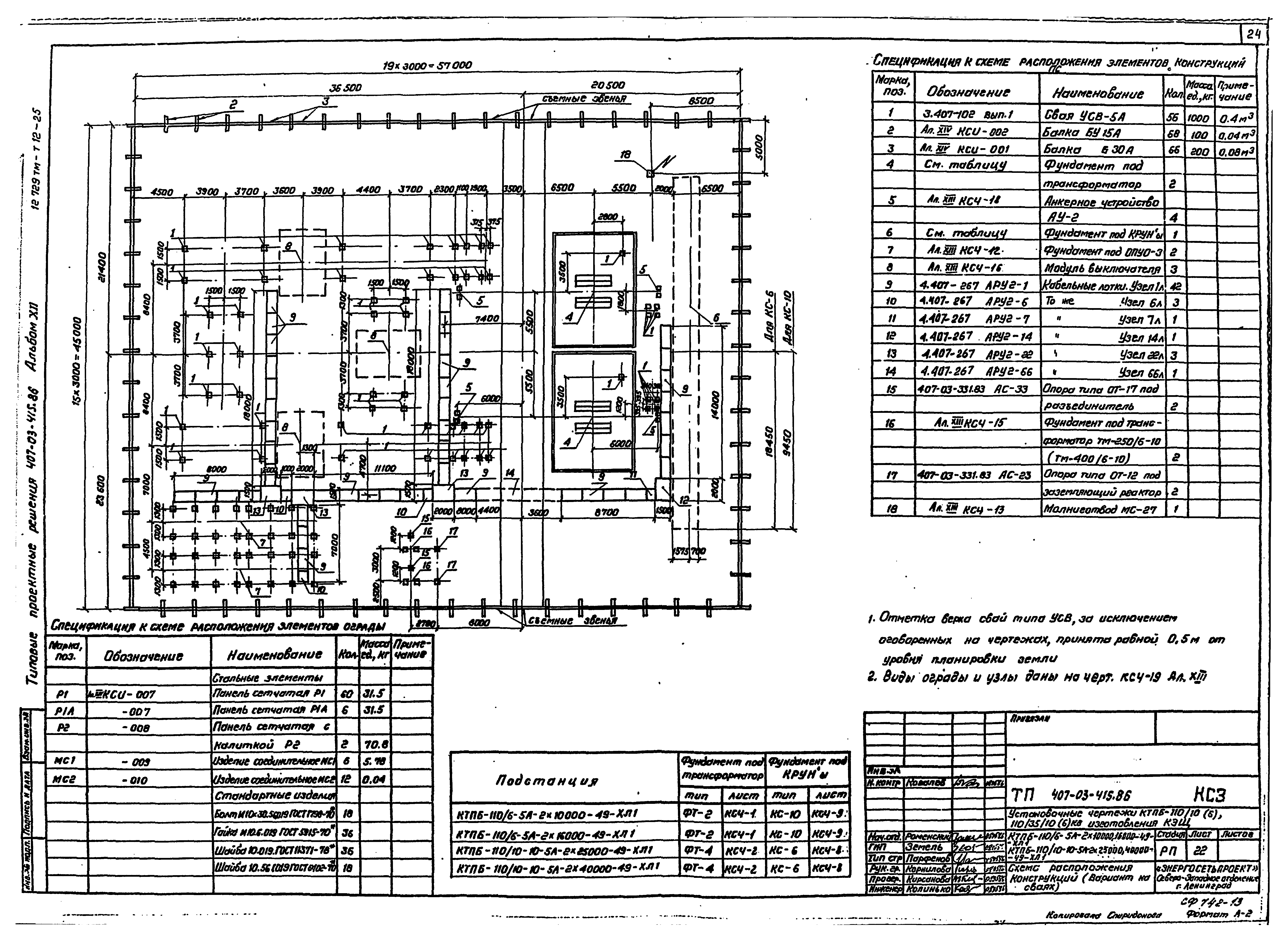
| Оглавление: | Опись альбома КС3 Общие данные (вариант на лежнях) Общие данные (вариант на сваях) КТПБ-110/10(6)-4Бх2500-49-хл1. Схема расположения конструкций (вариант на лежнях) КТПБ-110/10(6)-4Бх2500-49-хл1. Схема расположения конструкций (вариант на сваях) КТПБ-110/10(6)-4Б-2х6300-49-хл1; КТПБ-110/10-4Б-2х10000-49-хл1; КТПБ-110/10-4Б-2х16000-49-хл1. Схема расположения конструкций (вариант на лежнях) КТПБ-110/10(6)-4Б-2х6300-49-хл1; КТПБ-110/10-4Б-2х10000-49-хл1; КТПБ-110/10-4Б-2х16000-49-хл1. Схема расположения конструкций (вариант на сваях) КТПБ-110/6-4Б-2х10000-49-хл1; КТПБ-110/6-4Б-2х16000-49-хл1; КТПБ-110/10-10-4Б-2х25000-49-хл1; КТПБ-110/10-10-4Б-2х40000-49-хл1. Схема расположения конструкций (вариант на лежнях) КТПБ-110/6-4Б-2х10000-49-хл1; КТПБ-110/6-4Б-2х16000-49-хл1; КТПБ-110/10-10-4Б-2х25000-49-хл1; КТПБ-110/10-10-4Б-2х40000-49-хл1. Схема расположения конструкций (вариант на сваях) КТПБ-110/10-10-4Б-2х25000-49-хл1; КТПБ-110/10-10-4Б-2х40000-49-хл1; КТПБ-110/6-6-4Б-2х25000-49-хл1; КТПБ-110/6-6-4Б-2х40000-49-хл1. Схема расположения конструкций (вариант на лежнях) КТПБ-110/10-10-4Б-2х25000-49-хл1; КТПБ-110/10-10-4Б-2х40000-49-хл1; КТПБ-110/6-6-4Б-2х25000-49-хл1; КТПБ-110/6-6-4Б-2х40000-49-хл1. Схема расположения конструкций (вариант на сваях) КТПБ-110/35/10(6)-4Б-2х6300-49-хл1. Схема расположения конструкций (вариант на лежнях) КТПБ-110/35/10(6)-4Б-2х6300-49-хл1. Схема расположения конструкций (вариант на сваях) КТПБ-110/35/10(6)-4Б-2х10000,25000,40000-49-хл1; КТПБ-110/35/10-4Б-2х16000-49-хл1; КТПБ-110/35/6-4Б-2х16000-49-хл1. Схема расположения конструкций (вариант на лежнях) КТПБ-110/35/10(6)-4Б-2х10000,25000,40000-49-хл1; КТПБ-110/35/10-4Б-2х16000-49-хл1; КТПБ-110/35/6-4Б-2х16000-49-хл1. Схема расположения конструкций (вариант на сваях) КТПБ-110/35/10(6)-4Б-2х6300(10000,25000,40000)-49-хл1; КТПБ-110/35/10-4Б-2х16000-49-хл1; КТПБ-110/35/6-4Б-2х16000-49-хл1. Схема расположения конструкций (вариант на лежнях) КТПБ-110/35/10(6)-4Б-2х6300(10000,25000,40000)-49-хл1; КТПБ-110/35/10-4Б-2х16000-49-хл1; КТПБ-110/35/6-4Б-2х16000-49-хл1. Схема расположения конструкций (вариант на сваях) КТПБ-110/10(6)-5А-2х2500-49-хл1. Схема расположения конструкций (вариант на лежнях) КТПБ-110/10(6)-5А-2х2500-49-хл1. Схема расположения конструкций (вариант на сваях) КТПБ-110/10(6)-5А-2х6300-49-хл1; КТПБ-110/10-5А-2х10000,16000-49-хл1. Схема расположения конструкций (вариант на лежнях) КТПБ-110/10(6)-5А-2х6300-49-хл1; КТПБ-110/10-5А-2х10000,16000-49-хл1. Схема расположения конструкций (вариант на сваях) КТПБ-110/6-5А-2х10000,16000-49-хл1; КТПБ-110/10-10-5А-2х25000,40000-49-хл1. Схема расположения конструкций (вариант на лежнях) КТПБ-110/6-5А-2х10000,16000-49-хл1; КТПБ-110/10-10-5А-2х25000,40000-49-хл1. Схема расположения конструкций (вариант на сваях) КТПБ-110/6-6-5А-2х25000,40000-49-хл1; КТПБ-110/10-10-5А-2х25000,40000-49-хл1. Схема расположения конструкций (вариант на лежнях) КТПБ-110/6-6-5А-2х25000,40000-49-хл1; КТПБ-110/10-10-5А-2х25000,40000-49-хл1. Схема расположения конструкций (вариант на сваях) КТПБ-110/35/10(6)-5А-2х6300-49-хл1. Схема расположения конструкций (вариант на лежнях) КТПБ-110/35/10(6)-5А-2х6300-49-хл1. Схема расположения конструкций (вариант на сваях) КТПБ-110/35/10(6)-5А-2х10000-49-хл1; КТПБ-110/35/10-5А-2х16000-49-хл1. Схема расположения конструкций (вариант на лежнях) КТПБ-110/35/10(6)-5А-2х10000-49-хл1; КТПБ-110/35/10-5А-2х16000-49-хл1. Схема расположения конструкций (вариант на сваях) КТПБ-110/35/6-5А-2х16000-49-хл1; КТПБ-110/35/10(6)-5А-2х25000,40000-49-хл1. Схема расположения конструкций (вариант на лежнях) КТПБ-110/35/6-5А-2х16000-49-хл1; КТПБ-110/35/10(6)-5А-2х25000,40000-49-хл1. Схема расположения конструкций (вариант на сваях) КТПБ-110/35/6-5А-2х6300,10000,25000,40000-49-хл1; КТПБ-110/35(6)-5А-2х16000-49-хл1; КТПБ-110/35/10-5А-2х16000-49л-хл1. Схема расположения конструкций (вариант на лежнях) КТПБ-110/35/6-5А-2х6300,10000,25000,40000-49-хл1; КТПБ-110/35(6)-5А-2х16000-49-хл1; КТПБ-110/35/10-5А-2х16000-49л-хл1. Схема расположения конструкций (вариант на сваях) КТПБ-110/35/10(6)-5А-2х6300,10000,16000,25000,40000-49-хл1; КТПБ-110/35/6-5А-2х16000-49-хл1; КТПБ-110/35/10-5А-2х16000-49л-хл1. Спецификация к схеме расположения элементов ограды КТПБ-110/35/10(6)-5А-2х6300,10000,25000,40000-49-хл1; КТПБ-110/35/6-5А-2х16000-49-хл1; КТПБ-110/35/10-5А-2х16000-49л-хл1. Спецификация к схеме расположения элементов ограды |
| Разработан: | Северо-западное отделение института Энергосетьпроект |
| Утверждён: | 27.06.1986 Минэнерго СССР (USSR Minenergo 18) |
| Расположен в: |



































