| ||||||||||||||||||||||||||
Скачать Типовые материалы для проектирования 407-03-415.86 Альбом IX. Часть 1. КТПБ с усиленной изоляцией. Электротехнические решенияДата актуализации: 10.08.2017
|
| Обозначение: | Типовые материалы для проектирования 407-03-415.86 |
| Обозначение англ: | 407-03-415.86 |
| Статус: | cправочные материалы, мп, тпр |
| Название рус.: | Альбом IX. Часть 1. КТПБ с усиленной изоляцией. Электротехнические решения |
| Дата добавления в базу: | 01.09.2013 |
| Дата актуализации: | 05.05.2017 |
| Дата введения: | 27.06.1986 |
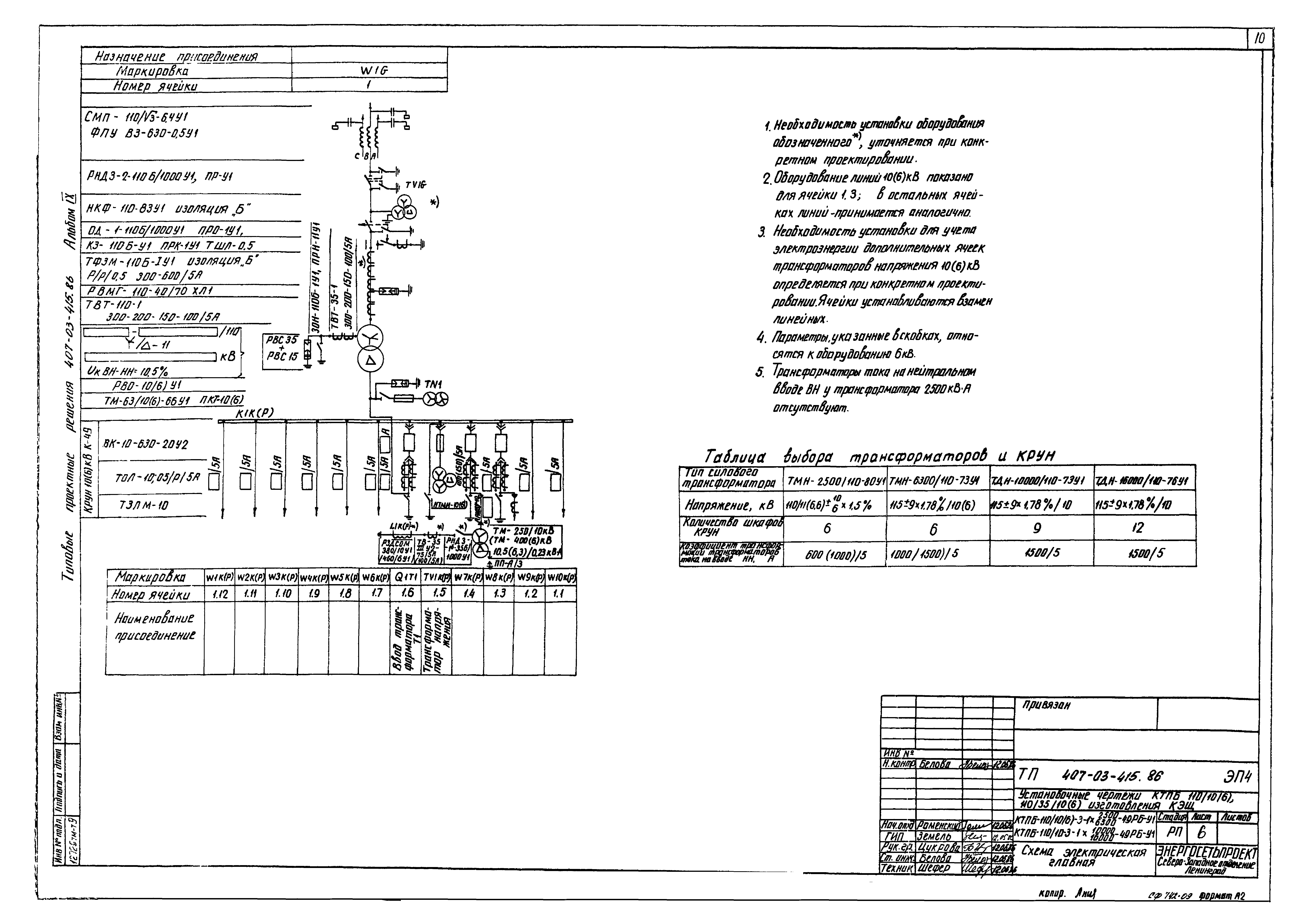
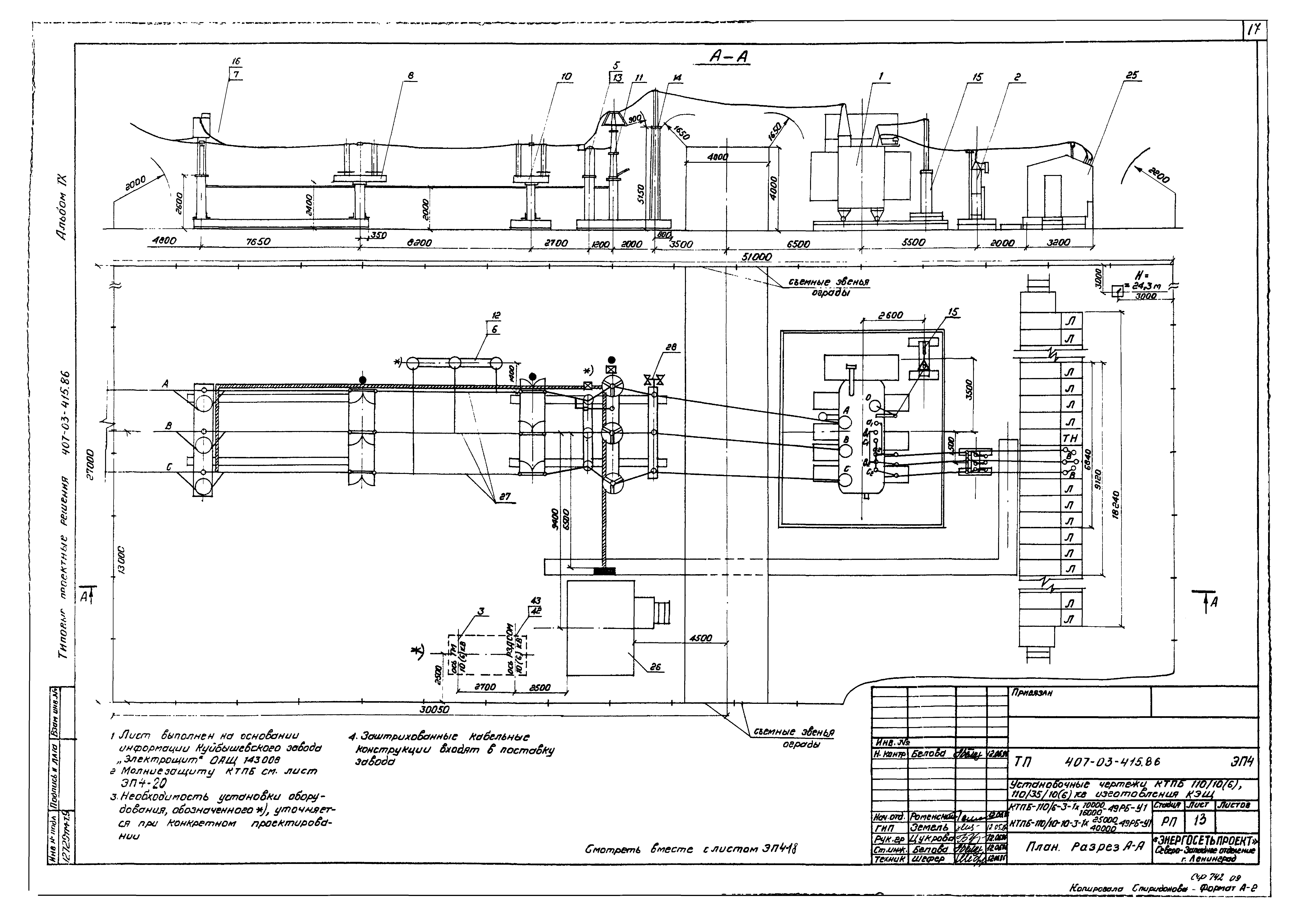
| Оглавление: | Содержание альбома Чертежи основного комплекта ЭП Общие данные КТПБ-110/10(6)-3-1х2500/6300-49РБ-У1. КТПБ-110/10-10-3-1х10000/16000-49РБ-У1. Схема электрическая главная КТПБ-110/6-3-1х10000/16000-49РБ-У1. КТПБ-110/10-10-3-1х25000/40000-49РБ-У1 (с запараллеленными обмотками). Схема электрическая главная КТПБ-110/10-10-3-1х25000/40000-49РБ-У1. Схема электрическая главная КТПБ-110/10/6-3-1х25000/40000-49РБ-У1. Схема электрическая главная КТПБ-110/35/10(6)-3-1х6300/10000-49РБ-У1. КТПБ-110/35/10-3-1х16000-49РБ-У1. Схема электрическая главная КТПБ-110/35/6-3-1х16000-49РБ-У1. КТПБ-110/35/10(6)-3-1х25000/40000-49РБ-У1. Схема электрическая главная КТПБ-110/10(6)-3-1х2500/6300-49РБ-У1. КТПБ-110/10-10-3-1х10000/16000-49РБ-У1. План. Разрез А-А КТПБ-110/6-3-1х10000/16000-49РБ-У1. КТПБ-110/10-10-3-1х25000/40000-49РБ-У1 (с запараллеленными обмотками). План. Разрез А-А КТПБ-110/10-10-3-1х25000/40000-49РБ-У1. План. Разрез А-А КТПБ-110/6-6-3-1х25000/40000-49РБ-У1. План. Разрез А-А КТПБ-110/35/10(6)-3-1х6300/10000-49ЛРБ-У1. КТПБ-110/35/10-3-1х16000-49ЛРБ-У1. План. Разрез А-А. Вид Л КТПБ-110/35/6-3-1х16000-49ЛРБ-У1. КТПБ-110/35/10(6)-3-1х25000/40000-49ЛРБ-У1. План. Разрез А-А. Вид Л КТПБ-110/10(6)-3-1х -49РБ-У1. Перечень оборудования КТПБ-110/35/10(6)-3-1х -49РБ-У1. Перечень оборудования КТПБ-110/10(6)-3-1х -49РБ-У1. КТПБ-110/35/10(6)-3-1х -49РБ-У1. Молниезащита КТПБ-110/10(6)-3-1х -49РБ-У1. Опросный лист на КТПБ КТПБ-110/35/10(6)-3-1х -49РБ-У1. Опросный лист на КТПБ КТПБ-110/10(6)-3-1х2500-49РБ-У1. Опросный лист на изготовление комплектных распределительных устройств КТПБ-110/10(6)-3-1х6300-49РБ-У1. Опросный лист на изготовление комплектных распределительных устройств КТПБ-110/10-3-1х10000-49РБ-У1. Опросный лист на изготовление комплектных распределительных устройств КТПБ-110/6-3-1х10000-49РБ-У1. Опросный лист на изготовление комплектных распределительных устройств КТПБ-110/10-3-1х16000-49РБ-У1. Опросный лист на изготовление комплектных распределительных устройств КТПБ-110/6-3-1х16000-49РБ-У1. Опросный лист на изготовление комплектных распределительных устройств КТПБ-110/10-10-3-1х25000/40000-49РБ-У1 (с запараллеленными обмотками). Опросный лист на изготовление комплектных распределительных устройств КТПБ-110/10-10-3-1х25000/40000-49РБ-У1. Опросный лист на изготовление комплектных распределительных устройств. I секция КТПБ-110/10-10-3-1х25000/40000-49РБ-У1. Опросный лист на изготовление комплектных распределительных устройств. II секция КТПБ-110/6-6-3-1х25000/40000-49РБ-У1. Опросный лист на изготовление комплектных распределительных устройств. I секция КТПБ-110/6-6-3-1х25000/40000-49РБ-У1. Опросный лист на изготовление комплектных распределительных устройств. II секция КТПБ-110/35/10(6)-3-1х6300-49РБ-У1. Опросный лист на изготовление комплектных распределительных устройств КТПБ-110/35/10(6)-3-1х10000-49РБ-У1. Опросный лист на изготовление комплектных распределительных устройств КТПБ-110/35/10-3-1х16000-49РБ-У1. Опросный лист на изготовление комплектных распределительных устройств КТПБ-110/35/6-3-1х16000-49РБ-У1. Опросный лист на изготовление комплектных распределительных устройств КТПБ-110/35/10(6)-3-1х25000/40000-49РБ-У1. Опросный лист на изготовление комплектных распределительных устройств КТПБ-110/10(6)-3-1х -49РБ-У1. Заземление. План с наружным контуром КТПБ-110/10(6)-3-1х -49РБ-У1. Заземление. План с внутренним контуром КТПБ-110/35/10(6)-3-1х -49РБ-У1. Заземление. План с наружным контуром КТПБ-110/35/10(6)-3-1х -49РБ-У1. Заземление. План с внутренним контуром КТПБ-110/10(6)-4-2х2500/6300-49РБ-У1. КТПБ-110/10-4-2х10000/16000-49РБ-У1. Схема электрическая главная КТПБ-110/6-4-2х10000/16000-49РБ-У1. КТПБ-110/10-4-2х25000/40000-49РБ-У1 (с запараллеленными обмотками). Схема электрическая главная КТПБ-110/10-10-4-2х25000/40000-49РБ-У1. Схема электрическая главная КТПБ-110/6-6-4-2х25000/40000-49РБ-У1. Схема электрическая главная КТПБ-110/35/10(6)-4-2х6300/10000-49РБ-У1. КТПБ-110/35/10-4-2х16000-49РБ-У1. Схема электрическая главная КТПБ-110/35/6-4-2х16000-49РБ-У1. КТПБ-110/35/10(6)-4-2х25000/40000-49РБ-У1. Схема электрическая главная КТПБ-110/10(6)-4-2х25000-49РБ-У1. План КТПБ-110/10(6)-4-2х6300-49РБ-У1. КТПБ-110/10-4-2х10000/16000-49РБ-У1. План КТПБ-110/6-6-4-2х10000/16000-49РБ-У1. КТПБ-110/10-10-4-2х25000/40000-49РБ-У1 (с запараллеленными обмотками). План. Разрез Б-Б. Вид Д КТПБ-110/10-10-4-2х25000/40000-49РБ-У1. План КТПБ-110/6-6-4-2х25000/40000-49РБ-У1. План КТПБ-110/10(6)-4-2х -49РБ-У1. Разрез А-А, Б-Б, В-В. Вид Д КТПБ-110/35/10(6)-4-2х6300-49РБ-У1. Разрез А-А. Виды Д, К, Л КТПБ-110/35/10(6)-4-2х10000-49РБ-У1. КТПБ-110/35/10-4-2х16000-49РБ-У1. Разрез А-А. Виды Д, К, Л КТПБ-110/35/6-4-2х16000-49РБ-У1. КТПБ-110/35/10(6)-4-2х25000/40000-49РБ-У1. Разрез А-А. Виды Д, К, Л КТПБ-110/35/10(6)-4-2х6300/10000-49ЛРБ-У1. КТПБ-110/35/10-4-2х16000-49ЛРБ-У1. План. Разрез А-А КТПБ-110/35/6-4-2х16000-49ЛРБ-У1. КТПБ-110/35/10(6)-4-2х25000/40000-49ЛРБ-У1. Разрез А-А. Виды Д, К, Л КТПБ-110/10(6)-4-2х -49РБ-У1. Перечень оборудования КТПБ-110/35/10(6)-4-2х -49РБ-У1. Перечень оборудования КТПБ-110/10(6)-4-2х -49РБ-У1. КТПБ-110/35/10(6)-4-2х -49РБ-У1. Молниезащита |
| Разработан: | Северо-западное отделение института Энергосетьпроект |
| Утверждён: | 27.06.1986 Минэнерго СССР (USSR Minenergo 18) |
| Расположен в: |



































































