| ||||||||||||||||||||||||||
Скачать Типовые материалы для проектирования 407-03-415.86 Альбом IV. КТПБ по схеме 110-5. Электротехнические решенияДата актуализации: 10.08.2017
|
| Обозначение: | Типовые материалы для проектирования 407-03-415.86 |
| Обозначение англ: | 407-03-415.86 |
| Статус: | cправочные материалы, мп, тпр |
| Название рус.: | Альбом IV. КТПБ по схеме 110-5. Электротехнические решения |
| Дата добавления в базу: | 01.09.2013 |
| Дата актуализации: | 05.05.2017 |
| Дата введения: | 27.06.1986 |
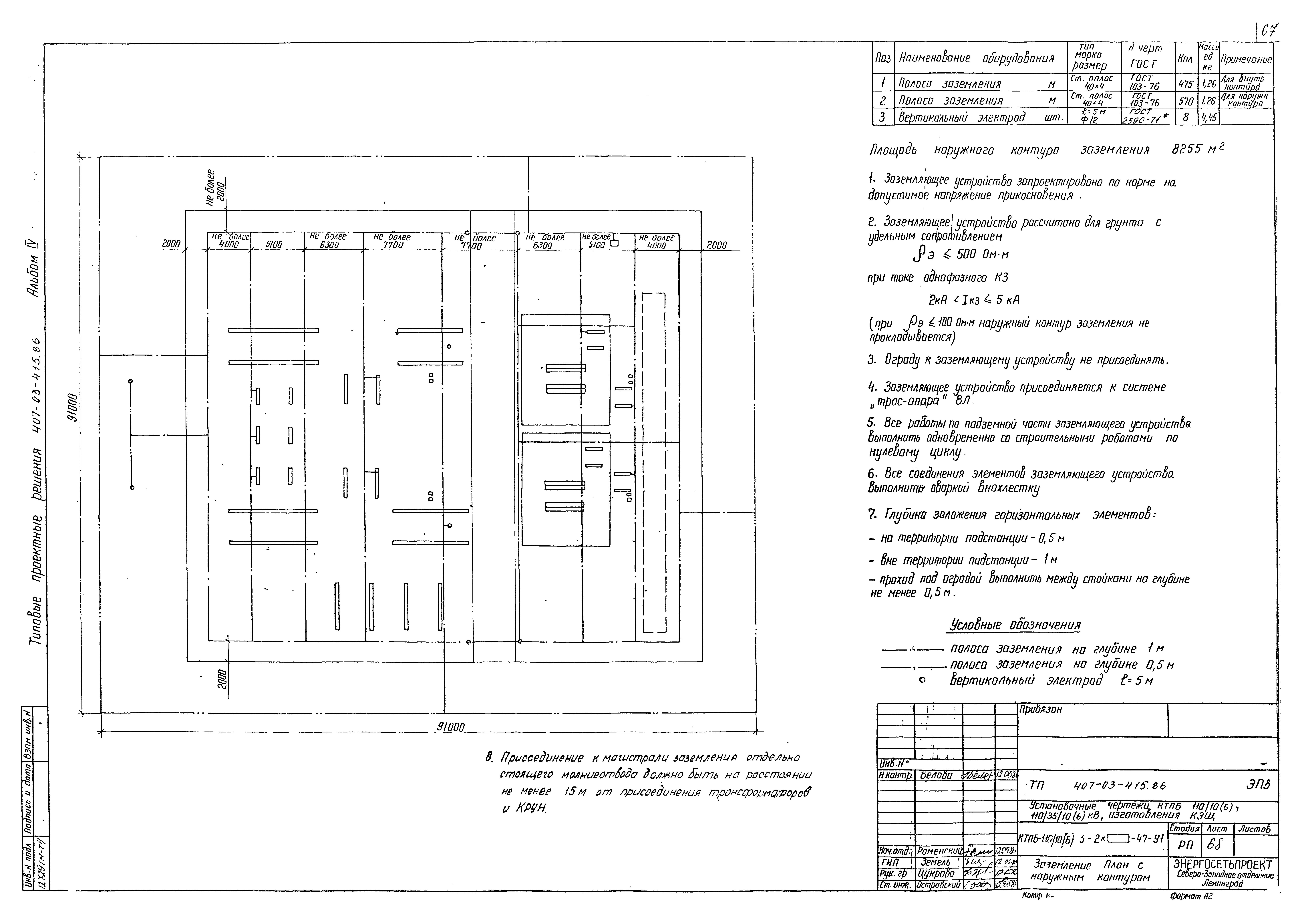
| Оглавление: | Содержание альбома Чертежи основного комплекта ЭП3 Общие данные КТПБ-110/10(6)-5-2х2500/6300-47-У1. КТПБ-110/10-5-2х10000/16000-47-У1. Схема электрическая главная КТПБ-110/6-5-2х10000/16000-47-1. КТПБ-110/10-10-5-2х25000/40000-47-У1 (с запараллеленными обмотками). Схема электрическая главная КТПБ-110/10-10-5-2х25000/40000-47-У1. Схема электрическая главная КТПБ-110/6-6-5-2х25000/40000-47-У1. Схема электрическая главная КТПБ-110/35/10(6)-5-2х6300/10000-47-У1. КТПБ-110/35/10-5-2х16000-47-У1. Схема электрическая главная КТПБ-110/35/6-5-2х16000-47-У1. КТПБ-110/35/10(6)-5-2х25000/40000-47-У1. Схема электрическая главная КТПБ-110/35/10(6)-5-2х -47-У1. КТПБ-110/10(6)-5-2х -47-У1. Схема собственных нужд переменного тока 10(6)/0,4 кВ КТПБ-110/10(6)-5-2х2500-47-У1. План КТПБ-110/10(6)-5-2х6300-47-У1. КТПБ-110/10-5-2х10000/16000-47-У1. План КТПБ-110/6-5-2х10000/16000-47-У1. КТПБ-110/10-10-5-2х25000/40000-47-У1 (с запараллеленными обмотками). План. Разрез Б-Б. Виды Г, Д КТПБ-110/10-10-5-2х25000/40000-47-У1. План КТПБ-110/6-6-5-2х25000/40000-47-У1. План КТПБ-110/10(6)-5-2х -47-У1. Разрезы А-А, Б-Б, В-В. Виды В, Г КТПБ-110/35/10(6)-5-2х6300-47-У1. Разрез А-А. Виды Г, Д, К, Л КТПБ-110/35/10(6)-5-2х10000-47-У1. КТПБ-110/35/10-5-2х16000-47-У1. План. Разрез А-А. Виды Г, Д, К, Л КТПБ-110/35/6-5-2х16000-47-У1. КТПБ-110/35/10(6)-5-2х25000/40000-47-У1. План. Разрез А-А. Виды Г, Д, К, Л КТПБ-110/35/10(6)-5-2х6300/10000-47Л-У1. КТПБ-110/35/10-5-2х16000-47Л-У1. План. Разрез А-А. Виды Г, Д, К, Л КТПБ-110/35/6-5-2х16000-47Л-У1. КТПБ-110/35/10(6)-5-2х25000/40000-47Л-У1. План. Разрез А-А. Виды Г, Д, К, Л КТПБ-110/10(6)-5-2х -47-У1. КТПБ-110/35/10(6)-5-2х -47-У1. Узел выключателя ВМТ-110Б-25/1250УХЛ1 и трансформаторов тока КТПБ-110/10(6)-5-2х -47-У1. КТПБ-110/35/10(6)-5-2х -47-У1. Узел выключателя ММО-110-1600/31,5У1 трансформаторов тока КТПБ-110/10(6)-5-2х -47-У1. КТПБ-110/35/10(6)-5-2х -47-У1. Узел выключателя ВМТ-110Б-25/1250УХЛ1 и трансформатора тока КТПБ-110/10(6)-5-2х -47-У1. КТПБ-110/35/10(6)-5-2х -47-У1. Узел выключателя ММО-110-1600/31.5У1 и трансформатора тока КТПБ-110/10(6)-5-2х -47-У1. Перечень оборудования КТПБ-110/35/10(6)-5-2х -47-У1. Перечень оборудования КТПБ-110/10(6)-5-2х -47-У1. КТПБ-110/35/10(6)-5-2х -47-У1. Молниезащита КТПБ-110/10(6)-5-2х -47-У1. Опросный лист на КТПБ КТПБ-110/35/10(6)-5-2х -47-У1. Опросный лист на КТПБ КТПБ-110/10(6)-5-2х2500-47-У1. Опросный лист на изготовление комплектных распределительных устройств КТПБ-110/10(6)-5-2х6300-47-У1. Опросный лист на изготовление комплектных распределительных устройств КТПБ-110/10-5-2х10000-47-У1. Опросный лист на изготовление комплектных распределительных устройств КТПБ-110/6-5-2х10000-47-У1. Опросный лист на изготовление комплектных распределительных устройств КТПБ-110/10-5-2х16000-47-У1. Опросный лист на изготовление комплектных распределительных устройств. I секция КТПБ-110/10-5-2х16000-47-У1. Опросный лист на изготовление комплектных распределительных устройств. II секция КТПБ-110/6-5-2х16000-47-У1. Опросный лист на изготовление комплектных распределительных устройств. I секция КТПБ-110/6-5-2х16000-47-У1. Опросный лист на изготовление комплектных распределительных устройств. II секция КТПБ-110/10-10-5-2х25000/40000-47-У1 (с запараллеленными обмотками). Опросный лист на изготовление комплектных распределительных устройств. I секция КТПБ-110/10-10-5-2х25000/40000-47-У1 (с запараллеленными обмотками). Опросный лист на изготовление комплектных распределительных устройств. II секция КТПБ-110/10-10-5-2х25000/40000-47-У1. Опросный лист на изготовление комплектных распределительных устройств. I секция КТПБ-110/10-10-5-2х25000/40000-47-У1. Опросный лист на изготовление комплектных распределительных устройств. II секция КТПБ-110/10-10-5-2х25000/40000-47-У1. Опросный лист на изготовление комплектных распределительных устройств. III секция КТПБ-110/10-10-5-2х25000/40000-47-У1. Опросный лист на изготовление комплектных распределительных устройств. IV секция КТПБ-110/6-6-5-2х25000/40000-47-У1. Опросный лист на изготовление комплектных распределительных устройств. I секция КТПБ-110/6-6-5-2х25000/40000-47-У1. Опросный лист на изготовление комплектных распределительных устройств. II секция КТПБ-110/6-6-5-2х25000/40000-47-У1. Опросный лист на изготовление комплектных распределительных устройств. III секция КТПБ-110/6-6-5-2х25000/40000-47-У1. Опросный лист на изготовление комплектных распределительных устройств. IV секция КТПБ-110/35/10(6)-5-2х6300-47-У1. Опросный лист на изготовление комплектных распределительных устройств КТПБ-110/35/10(6)-5-2х10000-47-У1. Опросный лист на изготовление комплектных распределительных устройств КТПБ-110/35/10-5-2х16000-47-У1. Опросный лист на изготовление комплектных распределительных устройств. I секция КТПБ-110/35/10-5-2х16000-47-У1. Опросный лист на изготовление комплектных распределительных устройств. II секция КТПБ-110/35/6-5-2х16000-47-У1. Опросный лист на изготовление комплектных распределительных устройств. I секция КТПБ-110/35/6-5-2х16000-47-У1. Опросный лист на изготовление комплектных распределительных устройств. II секция КТПБ-110/35/10(6)-5-2х25000/40000-47-У1. Опросный лист на изготовление комплектных распределительных устройств. I секция КТПБ-110/35/10(6)-5-2х25000/40000-47-У1. Опросный лист на изготовление комплектных распределительных устройств. II секция КТПБ-110/35/10(6)/110/10(6)-5-2х -47-У1. Журнал силовых кабелей КТПБ-110/35/10(6)/110/10(6)-5-2х -47-У1. Журнал контрольных кабелей. I вариант. Делительная защита КТПБ-110/35/10(6)/110/10(6)-5-2х -47-У1. Журнал контрольных кабелей. II вариант. Дистанционная защита Сводная ведомость силовых и контрольных кабелей КТПБ-110/35/10(6)/110/10(6)-5-2х -47-У1. ОПУ. План расположения оборудования КТПБ-110/35/10(6)/110/10(6)-5-2х -47-У1. ОПУ. Раскладка кабелей КТПБ-110/35/10(6)-5-2х -47-У1. План раскладки силовых и контрольных кабелей КТПБ-110/10(6)-5-2х -47-У1. Заземление. План с наружным контуром КТПБ-110/10(6)-5-2х -47-У1. Заземление. План с внутренним контуром КТПБ-110/35/10(6)-5-2х -47-У1. Заземление. План с наружным контуром КТПБ-110/35/10(6)-5-2х -47-У1. Заземление. План с внутренним контуром |
| Разработан: | Северо-западное отделение института Энергосетьпроект |
| Утверждён: | 27.06.1986 Минэнерго СССР (USSR Minenergo 18) |
| Расположен в: |






































































