Информационная система
«Ёшкин Кот»

Скачать базу одним архивом
Скачать обновления
История создания базы
Карта сайта

Скачать Типовой проект 816-242 Альбом II. Архитектурно-строительные решения. Производственная часть

Дата актуализации: 10.08.2017

Типовой проект 816-242

Альбом II. Архитектурно-строительные решения. Производственная часть

Обозначение: Типовой проект 816-242
Обозначение англ: 816-242
Статус:действует
Название рус.:Альбом II. Архитектурно-строительные решения. Производственная часть
Дата добавления в базу:01.09.2013
Дата актуализации:05.05.2017
Дата введения:02.12.1977
Оглавление:Содержание альбома
Пояснительная записка
Архитектурно-строительные решения
   Общие данные
   Общие данные. План кровли
   Подземные конструкции. План в осях 4 - 18
   Подземные конструкции. Каналы тип 1 - 6
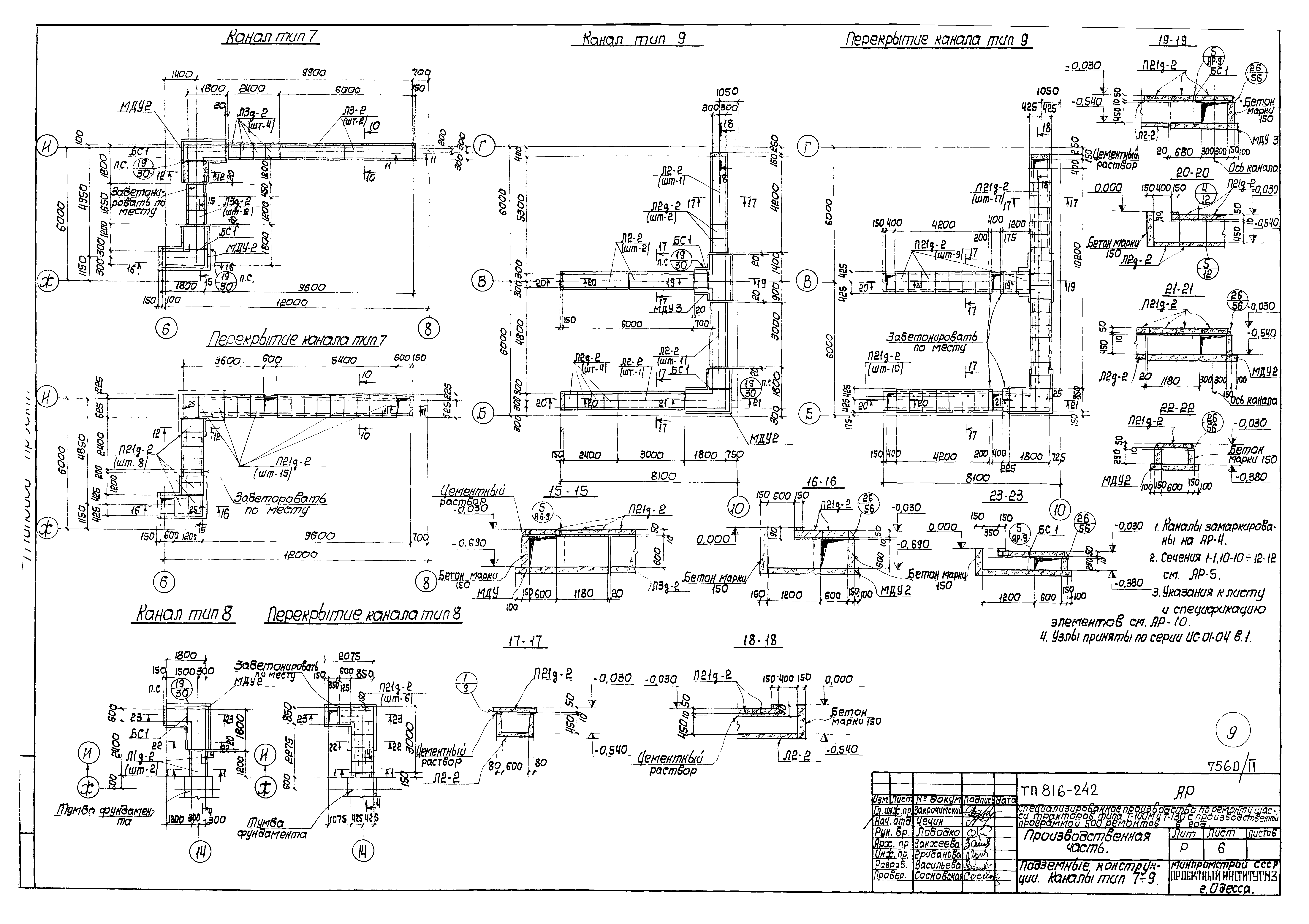
   Подземные конструкции. Каналы тип 7 - 9
   Подземные конструкции. Каналы тип 10 - 12
   Подземные конструкции. Каналы тип 13 - 16
   Подземные конструкции. Каналы тип 17 - 22
   Подземные конструкции. Спецификация к листам АР-4 - АР-9
   Трансформаторная подстанция КТП1. План, разрезы
   Трансформаторная подстанция КТП1. Узлы
   План на отм. 0.000
   Планы на отм. 4.200. Фрагменты планов 1, 2, 3
   Разрезы 1-1 - 8-8
   Фасады
   Узлы 1 - 16
   Узлы 17 - 28. Перегородка из стеклоблоков
   Вентшахты ВШ1 - ВШ9
   Сечения 1-1 - 11-11. Узел 33
   Планы полов. Экспликация полов
   Стальные щитовые перегородки. Схемы 1 - 3. Щиты Щ5 - Щ9. Спецификация
Конструкции железобетонные
   Общие данные
   Маркировочная схема фундаментов и фундаментных балок
   Спецификация к КЖ-6. Нагрузки для расчета фундаментов
   Узлы 1 - 10
   Узлы 11 - 22
   Узлы 23 - 30
   Узлы 31 - 37
   Узлы 38 - 45
   Фундаменты ФА19-1; ФА31-1; ФА31-2; ФА31-3; ФБ37-1; ФБ37-2
   Фундаменты ФБ55-1; ФА7-1; ФА17-1; ФБ125-1
   Фундаменты ФА1-1; ФА1-2; ФА17-2; ФА21-1; ФБ37-3 и ФБ37-4
   Спецификация и выборка стали к КЖ-13 - КЖ-15
   Фундамент под оборудование ФОм1
   Фундамент под оборудование ФОм2
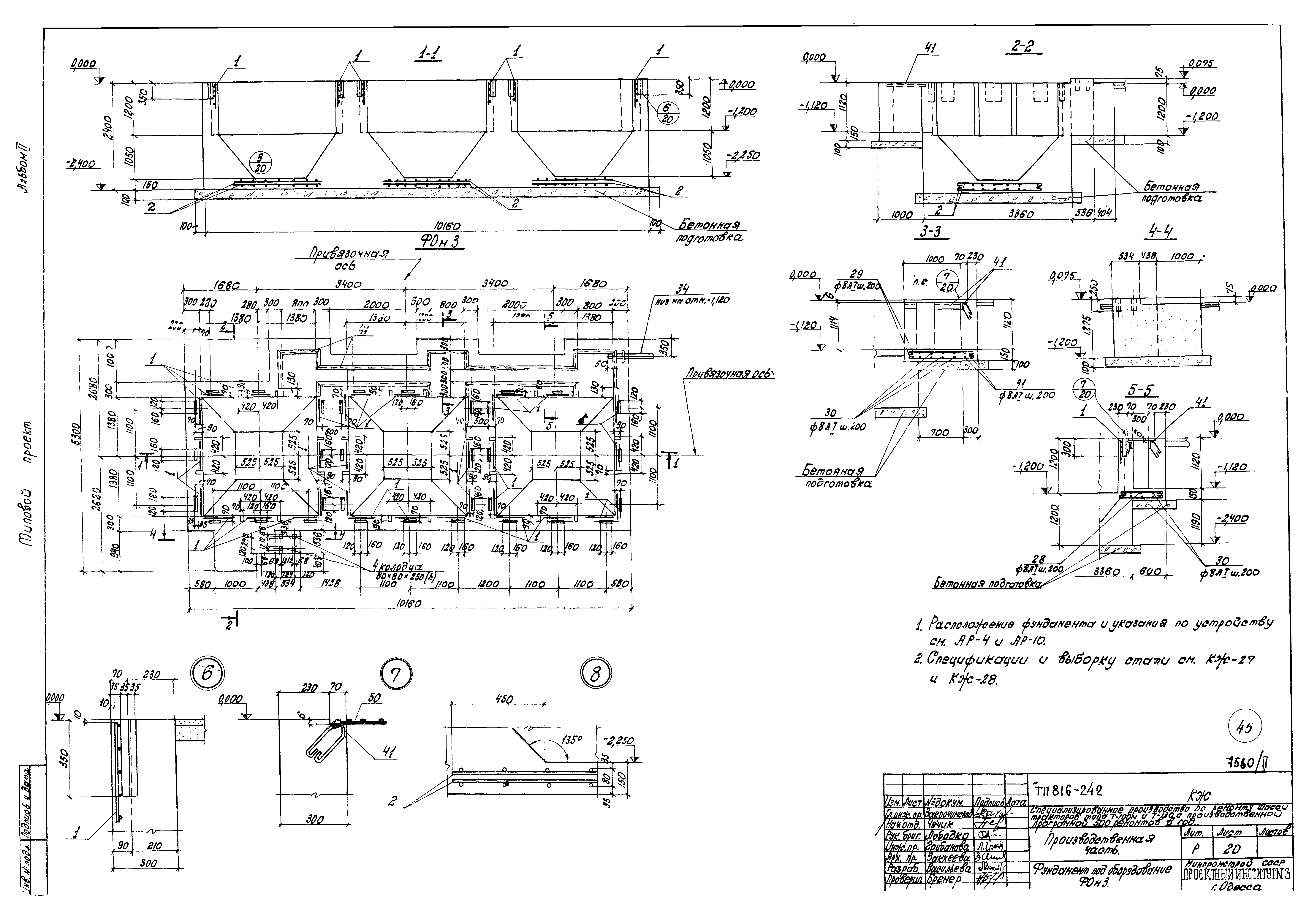
   Фундамент под оборудование ФОм3
   Фундаменты под оборудование ФОм4 - ФОм12
   Фундаменты под оборудование ФОм13 - ФОм22
   Фундаменты под оборудование ФОм23 и ФОм24
   Фундамент под оборудование ФОм25
   Фундаменты под оборудование ФОм26 и ФОм29
   Приямок ПРм1, ведомость стержней на один элемент. Выборка стали
   Спецификация к КЖ-17 - КЖ-26
   Монолитные днища МДУ1 - МДУ7
   Узел "Б" к КЖ-29. Вентшахты ВШ10; ВШ11. Плита ПТМ1
   Спецификация и выборка стали к КЖ-29; КЖ-30
   Маркировочная схема колонн ригелей и рам ворот. Сечения 1-1 - 6-6
   Маркировочная схема колонн ригелей и рам ворот. Сечения 7-7 - 12-12. Спецификация
   Детали к маркировочной схеме колонн и ригелей 1 - 8
   Маркировочная схема стропильных, подстропильных ферм и связей
   Маркировочная схема покрытия и стаканов
   Схема расположения соединительных изделий в покрытии
   Элементы плана 2 - 7
   Спецификации к КЖ-35; КЖ-36
   Маркировочные схемы стеновых панелей по осям А, Л, 18
   Маркировочная схема стеновых панелей по оси 4. Маркировочные схемы стоек и насадок торцевого фахверка по осям 4 и 18
   Спецификация к КЖ-40; КЖ-41
   Маркировочная схема перегородок по осям Г и 17
   Маркировочная схема перегородок. Спецификация
   Маркировочные схемы плит перекрытия площадок
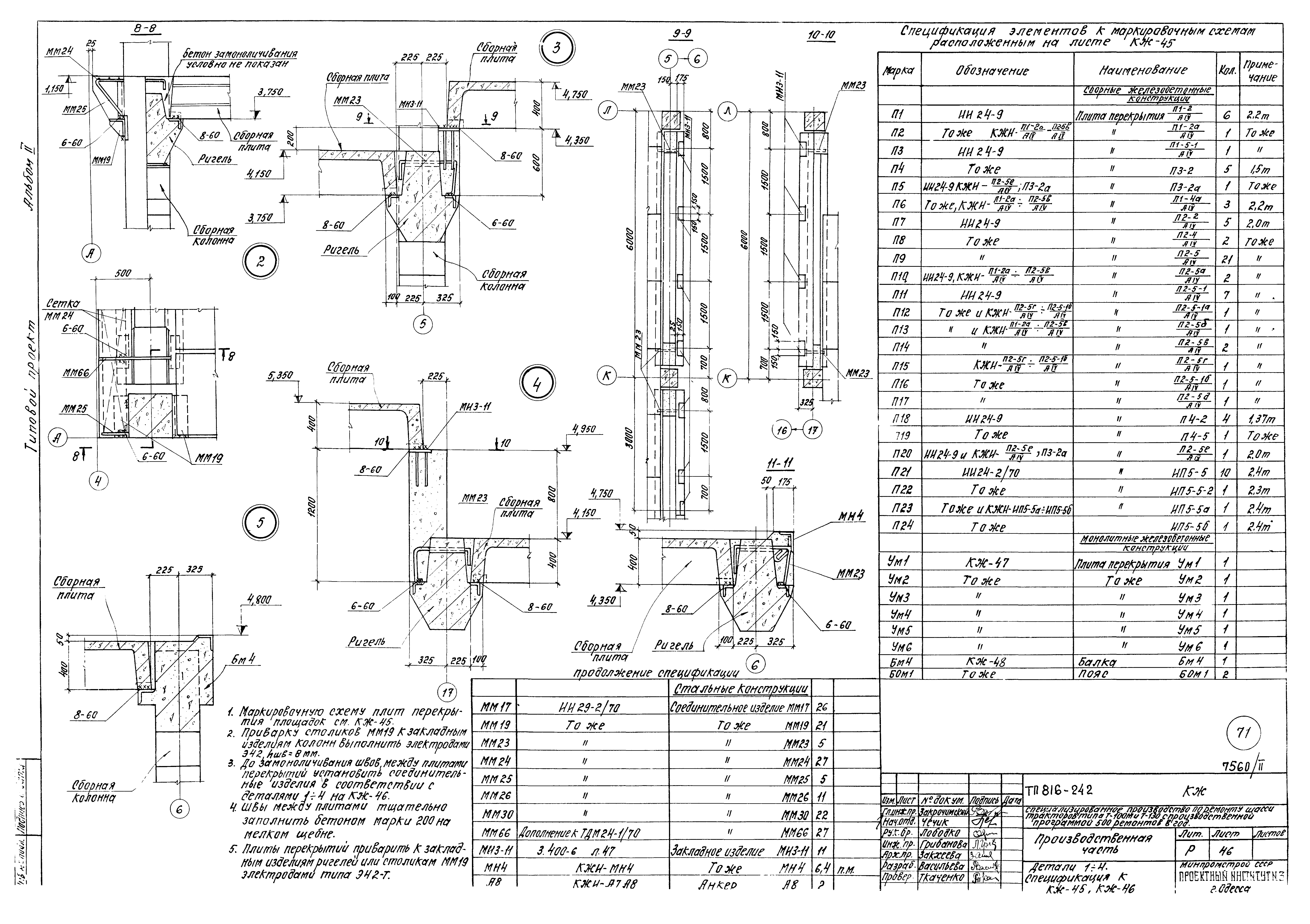
   Детали 1 - 4. Спецификация к КЖ-45; КЖ-46
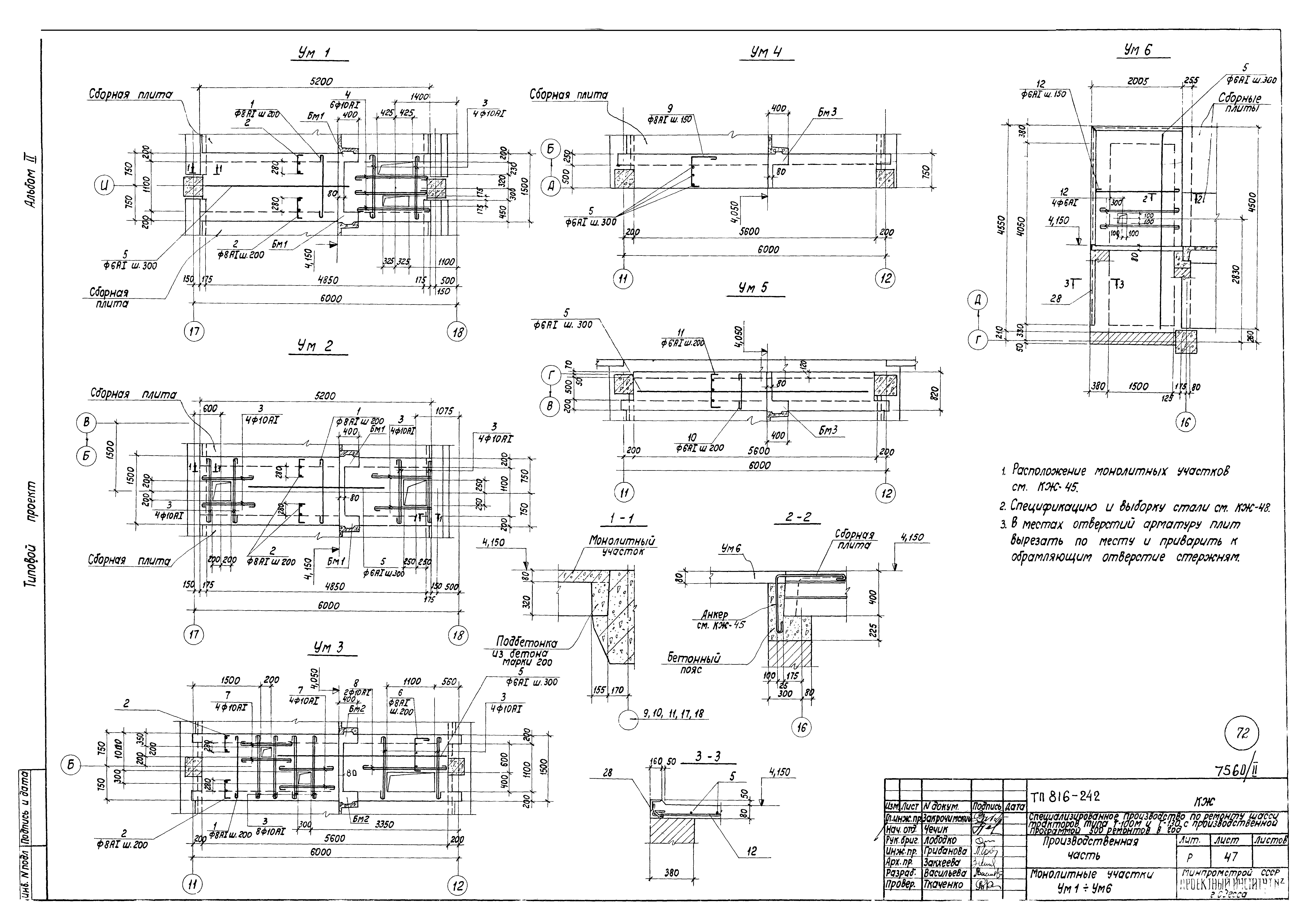
   Монолитные участки Ум1 - Ум6
   Монолитные балки БМ1 - БМ4; пояс 60м1
   Спецификация и выборка стали к КЖ-47; КЖ-48
   Плиты монолитные ПМ1 - ПМ5
   Плиты монолитные ПМ6 - ПМ8
   Спецификация и выборка стали к КЖ-50; КЖ-51
Конструкции металлические
   Общие данные
   Маркировочная схема оконных панелей и механизмов открывания при tн = минус 20 и минус 30 градусов Цельсия
   Схемы механизмов открывания стальных оконных панелей при tн = минус 20 и минус 30 градусов Цельсия
   Маркировочные схемы оконных панелей и механизмов открывания при tн = минус 40 градусов Цельсия
   Схемы механизмов открывания стальных оконных панелей при tн = минус 40 градусов Цельсия
   Оконные панели укороченные ДО120х180т и ДО120х180н
   План по верху фонаря. Фасад и торец фонаря
   Схема подвесных крановых путей
   Фахверк. Схема кронштейнов под трубопроводы. Узел 1
   Схема кронштейнов под трубопроводы. Узлы 2 - 6
   Схема молниеотвода. Узлы 7 - 11
   Схема пожарной лестницы. Узлы 12, 13
   План площадок на отм. 4.200 и 4.350. Узлы 14 - 17
   Схемы типовых лестниц и ограждений. Спецификация
   КЖИ-НФБ1
   КЖИ-НФБ2
   КЖИ-НФБ3
   КЖИ-Б1
   КЖИ-НК1
   КЖИ-НК2 - НК2б
   КЖИ-НК3 - НК3б
   КЖИ-НК4; НК4а
   КЖИ-НК5
   КЖИ-НК6; НК6а
   КЖИ-НК1 - НК6аВС
   КЖИ-К72-6а - К72-6к
   КЖИ-К72-33а - К72-33е
   КЖИ-К72-35а - К72-35е
   КЖИ-КФ10-2а; КФ10-2б
   КЖИ-КФ23-2а; КФ23-2б
   КЖИ-ПСЯ-16/0,9х6,0 - 721а; ПСЯ-24/0,9х6,0 - 721а
   КЖИ-ИП5-5а; ИП5-5б
   КЖИ-П1-2а/АIV - П2-5в/АIV
   КЖИ-П2-5г/АIV - П2-5-1б/АIV
   КЖИ-П2-5е/АIV; П3-2а
   КЖИ-ИБ21-1
   КЖИ-ИБ22-1
   КЖИ-ИБ2-9а - ИБ3-5б
   КЖИ-ФСМ18III-3АIVа - ФСМ18III-4АIVа
   КЖИ-СБ4Б-1а
   КЖИ-СБ7Б-2а
   КЖИ-СБ10Б-2а
   КЖИ-СБ14Б-2а
   КЖИ-СБ4Б-1а - СБ14Б-2а
   КЖИ-ППЛ-1а/1,8х6,0 - 1 - ППЛ-1а/1,8х6,0 - 4
   КЖИ-КП1
   КЖИ-КП2
   КЖИ-КП3
   КЖИ-КП4
   КЖИ-КП5
   КЖИ-КП6
   КЖИ-КП7
   КЖИ-КП8
   КЖИ-КП9; КП10
   КЖИ-ПК28а
   КЖИ-ПК29а
   КЖИ-КР1
   КЖИ-КР2
   КЖИ-КР3
   КЖИ-КР4
   КЖИ-КР5
   КЖИ-КР6
   КЖИ-КР7
   КЖИ-КР8
   КЖИ-КР9
   КЖИ-КР10
   КЖИ-КР11
   КЖИ-КР12
   КЖИ-КР13
   КЖИ-КР14
   КЖИ-КР15
   КЖИ-С1, С2
   КЖИ-С3, С5
   КЖИ-С4
   КЖИ-С6 - С11
   КЖИ-С12, С13
   КЖИ-С14, С15
   КЖИ-С16, С17
   КЖИ-С18
   КЖИ-С19
   КЖИ-С20
   КЖИ-С21
   КЖИ-С22, С23
   КЖИ-С24, С25
   КЖИ-С26, С27
   КЖИ-С28
   КЖИ-С29
   КЖИ-С30, С31
   КЖИ-МН1
   КЖИ-МН2
   КЖИ-МН3
   КЖИ-МН4
   КЖИ-МН5
   КЖИ-МН6
   КЖИ-МН7
   КЖИ-МН8
   КЖИ-МН9
   КЖИ-МН10
   КЖИ-МН11
   КЖИ-МН12
   КЖИ-МН13
   КЖИ-МН14
   КЖИ-МН15
   КЖИ-МН16
   КЖИ-МН17
   КЖИ-МН18
   КЖИ-МН19
   КЖИ-МН20
   КЖИ-МН21
   КЖИ-МН22
   КЖИ-МН23
   КЖИ-МН24
   КЖИ-МН25
   КЖИ-МН26
   КЖИ-МН27
   КЖИ-МН28
   КЖИ-МН29
   КЖИ-МН30
   КЖИ-МС1, МС2
   КЖИ-МС3
   КЖИ-МС4
   КЖИ-МС5
   КЖИ-МС6. МС7
   КЖИ-МС8
   КЖИ-МС9
   КЖИ-МС10
   КЖИ-МС11
   КЖИ-МС12
   КЖИ-МС13
   КЖИ-МС14
   КЖИ-МС15
   КЖИ-МС16
   КЖИ-МС17 - МС19
   КЖИ-МС20 - МС23
   КЖИ-МС24
   КЖИ-МС25
   КЖИ-МС26
   КЖИ-НРК1 - НРК6
   КЖИ-Щ1
   КЖИ-Щ2
   КЖИ-СР1, СР2
   КЖИ-79а
   КЖИ-А1 - А3
   КЖИ-А4 - А6
   КЖИ-А7; А8
   КЖИ-А9
   КЖИ-А10, А11
Разработан: Проектный институт №3 Минпромстроя СССР
Утверждён:05.04.1977 Союзсельхозтехника (13)
Расположен в:Техническая документация Строительство Справочные документы Типовые строительные конструкции, изделия и узлы Общероссийский строительный каталог Промышленные предприятия, здания и сооружения Предприятия, здания и сооружения промышленности и электроэнергетики Ремонтные предприятия. Административно-бытовые, производственные и вспомогательные здания и сооружения промышленных предприятий Ремонтные предприятия, производственные и вспомогательные здания и сооружения
Типовой проект 816-242Типовой проект 816-242Типовой проект 816-242Типовой проект 816-242Типовой проект 816-242Типовой проект 816-242Типовой проект 816-242Типовой проект 816-242Типовой проект 816-242Типовой проект 816-242Типовой проект 816-242Типовой проект 816-242Типовой проект 816-242Типовой проект 816-242Типовой проект 816-242Типовой проект 816-242Типовой проект 816-242Типовой проект 816-242Типовой проект 816-242Типовой проект 816-242Типовой проект 816-242Типовой проект 816-242Типовой проект 816-242Типовой проект 816-242Типовой проект 816-242Типовой проект 816-242Типовой проект 816-242Типовой проект 816-242Типовой проект 816-242Типовой проект 816-242Типовой проект 816-242Типовой проект 816-242Типовой проект 816-242Типовой проект 816-242Типовой проект 816-242Типовой проект 816-242Типовой проект 816-242Типовой проект 816-242Типовой проект 816-242Типовой проект 816-242Типовой проект 816-242Типовой проект 816-242Типовой проект 816-242Типовой проект 816-242Типовой проект 816-242Типовой проект 816-242Типовой проект 816-242Типовой проект 816-242Типовой проект 816-242Типовой проект 816-242Типовой проект 816-242Типовой проект 816-242Типовой проект 816-242Типовой проект 816-242Типовой проект 816-242Типовой проект 816-242Типовой проект 816-242Типовой проект 816-242Типовой проект 816-242Типовой проект 816-242Типовой проект 816-242Типовой проект 816-242Типовой проект 816-242Типовой проект 816-242Типовой проект 816-242Типовой проект 816-242Типовой проект 816-242Типовой проект 816-242Типовой проект 816-242Типовой проект 816-242Типовой проект 816-242Типовой проект 816-242Типовой проект 816-242Типовой проект 816-242Типовой проект 816-242Типовой проект 816-242Типовой проект 816-242Типовой проект 816-242Типовой проект 816-242Типовой проект 816-242Типовой проект 816-242Типовой проект 816-242Типовой проект 816-242Типовой проект 816-242Типовой проект 816-242Типовой проект 816-242Типовой проект 816-242Типовой проект 816-242Типовой проект 816-242Типовой проект 816-242Типовой проект 816-242Типовой проект 816-242Типовой проект 816-242Типовой проект 816-242Типовой проект 816-242Типовой проект 816-242Типовой проект 816-242Типовой проект 816-242Типовой проект 816-242Типовой проект 816-242Типовой проект 816-242Типовой проект 816-242Типовой проект 816-242Типовой проект 816-242Типовой проект 816-242Типовой проект 816-242Типовой проект 816-242Типовой проект 816-242Типовой проект 816-242Типовой проект 816-242Типовой проект 816-242Типовой проект 816-242Типовой проект 816-242Типовой проект 816-242Типовой проект 816-242Типовой проект 816-242Типовой проект 816-242Типовой проект 816-242Типовой проект 816-242Типовой проект 816-242Типовой проект 816-242Типовой проект 816-242Типовой проект 816-242Типовой проект 816-242Типовой проект 816-242Типовой проект 816-242Типовой проект 816-242Типовой проект 816-242Типовой проект 816-242Типовой проект 816-242Типовой проект 816-242Типовой проект 816-242Типовой проект 816-242Типовой проект 816-242Типовой проект 816-242Типовой проект 816-242Типовой проект 816-242Типовой проект 816-242Типовой проект 816-242Типовой проект 816-242Типовой проект 816-242Типовой проект 816-242Типовой проект 816-242Типовой проект 816-242Типовой проект 816-242Типовой проект 816-242Типовой проект 816-242Типовой проект 816-242Типовой проект 816-242Типовой проект 816-242Типовой проект 816-242Типовой проект 816-242Типовой проект 816-242

© 2013 Ёшкин Кот :-) Карта сайта