Информационная система
«Ёшкин Кот»

Скачать базу одним архивом
Скачать обновления
История создания базы
Карта сайта

Скачать Типовой проект 816-242 Альбом I. Технологические решения

Дата актуализации: 10.08.2017

Типовой проект 816-242

Альбом I. Технологические решения

Обозначение: Типовой проект 816-242
Обозначение англ: 816-242
Статус:действует
Название рус.:Альбом I. Технологические решения
Дата добавления в базу:01.09.2013
Дата актуализации:05.05.2017
Дата введения:02.12.1977
Оглавление:Содержание альбома
Основные производственные и технико-экономические показатели
Технологические решения
   Пояснительная записка
   Компоновка производственных помещений
   Спецификация
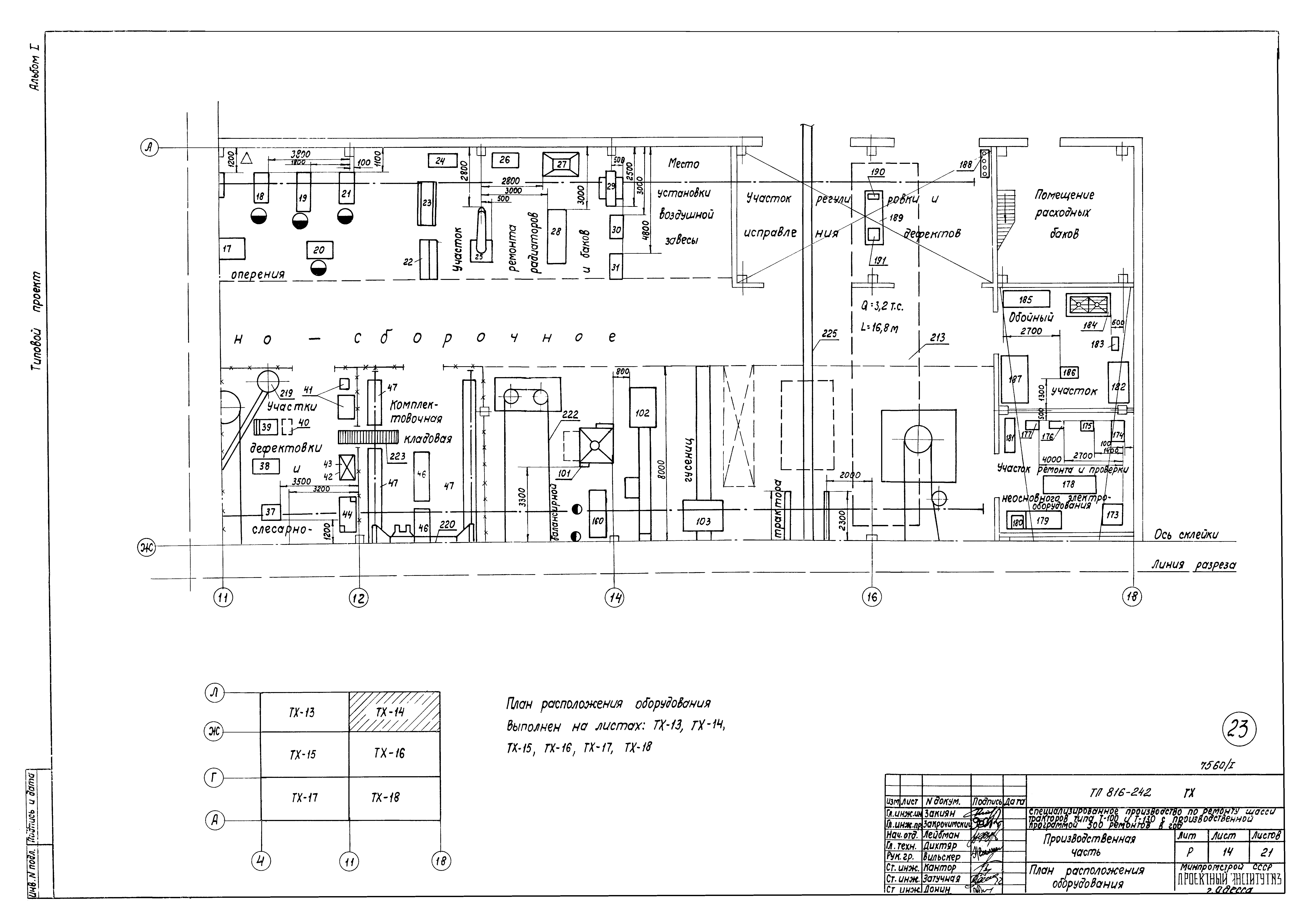
   План расположения оборудования
   Маслохозяйство. Планы на отм. 0.000 и 4.200
   Маслохозяйство. Аксонометрические схемы трубопроводов
   Кузнечно-термический участок. Дутьевая установка
Механизация транспорта
   План размещения подъемно-транспортного оборудования средств механизации
   Спецификация
   Конвейер подвесной цепной №1 (поз. 214). Сборочный чертеж
   Трасса
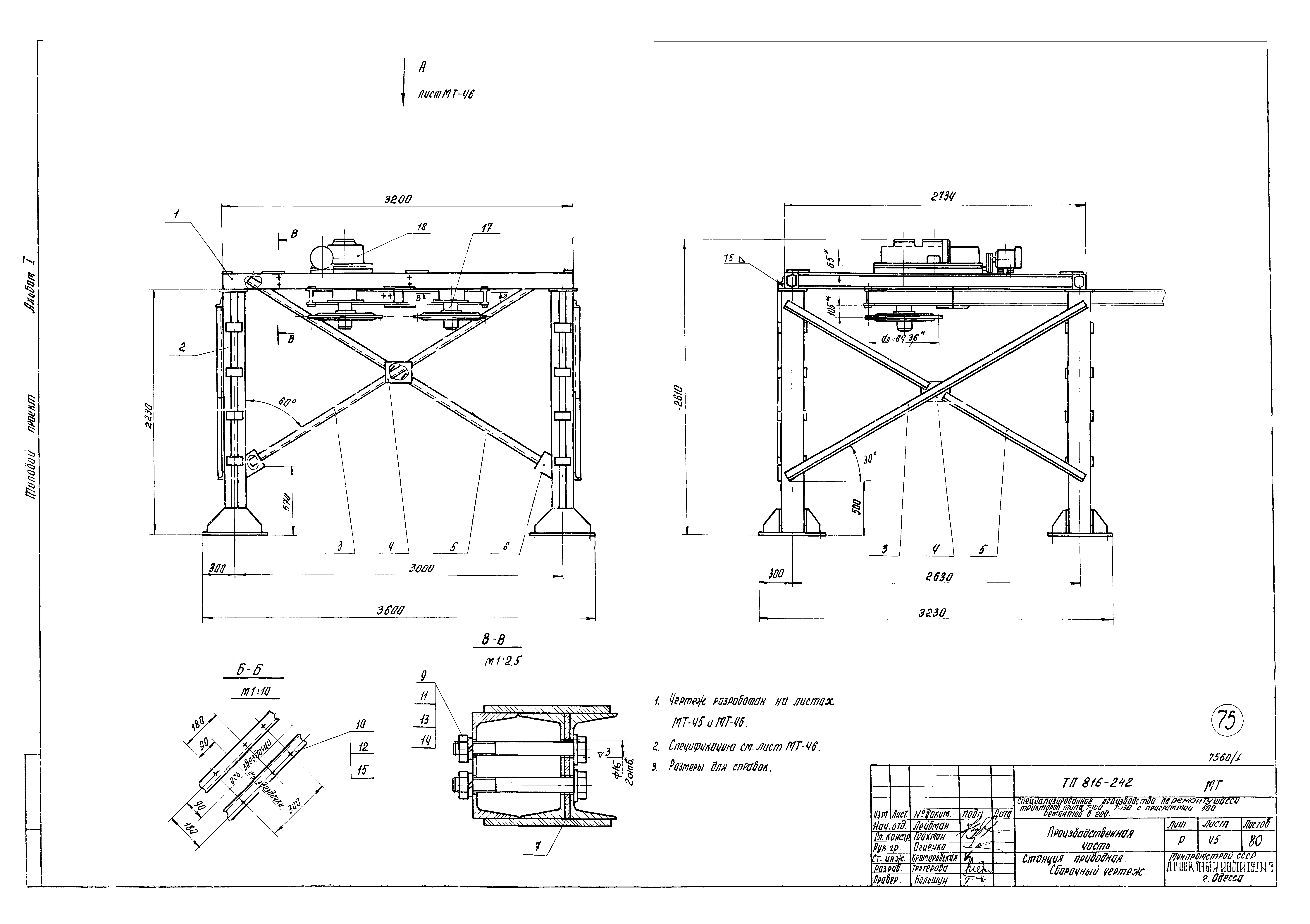
   Станция приводная. Сборочный чертеж. Узлы
   Станция натяжная. Сборочный чертеж. Узлы
   Опора. Сборочный чертеж
   Устройство поворотное на опоре. Сборочный чертеж. Узлы
   Конвейер подвесной цепной №2 (поз. 218). Сборочный чертеж
   Трасса. Сборочный чертеж
   Опора. Сборочный чертеж
   Устройство поворотное на опоре. Сборочный чертеж. Узлы
   Опора. Сборочный чертеж
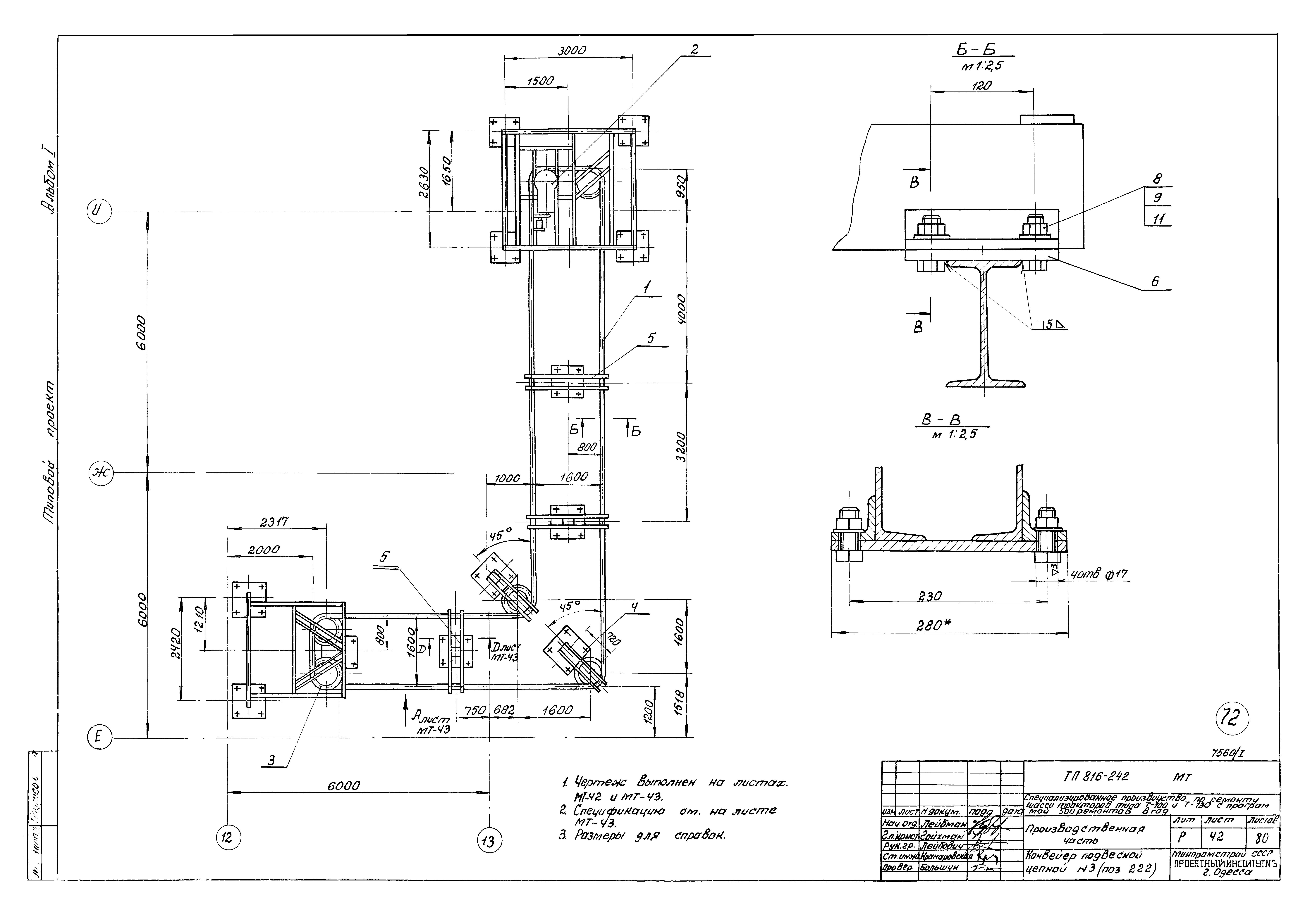
   Конвейер подвесной цепной №3 (поз. 222). Сборочный чертеж
   Трасса. Сборочный чертеж
   Станция приводная. Сборочный чертеж. Узлы
   Станция натяжная. Сборочный чертеж. Узлы
   Устройство поворотное на опоре. Сборочный чертеж. Узлы
   Опора. Сборочный чертеж
   Конвейер подвесной цепной №4 (поз. 226). Сборочный чертеж
   Трасса. Сборочный чертеж
   Привод-натяжка. Сборочный чертеж
   Рама. Сборочный чертеж
   Стойка. Сборочный чертеж
   Опора. Сборочный чертеж
   Устройство поворотное на опоре. Сборочный чертеж
   Опора. Сборочный чертеж
   Эстакада. Сборочный чертеж. Узлы
Воздухоснабжение
   Ведомость чертежей основного комплекта марки ВС. Аксонометрическая схема. Экспликация потребителей
   План на отм. 0.000
   Разрезы 1-1; 2-2. Спецификация
   Узлы
Промпроводки
   Ведомость чертежей основного комплекта марки ПП. Технологическое пароснабжение. Экспликация потребителей компенсаторов. Спецификация
   Технологическое пароснабжение. Разрез А-А. Аксонометрическая схема. Условные обозначения
   Технологическое пароснабжение. План в осях 4 - 18. Сечение А-А; Б-Б
   Ацетиленопроводы, кислородопроводы, трубопроводы углекислого газа. Аксонометрическая схема
   Ацетиленопроводы, кислородопроводы, трубопроводы углекислого газа. Узлы. Указания по монтажу трубопроводов
   Ацетиленопроводы, кислородопроводы, трубопроводы углекислого газа. План на отм. 0.000
Технические требования на технологическое оборудование
   Технические требования. Ведомость чертежей основного комплекта ТХТ
   Ванна для закалки в воде
   Ванна для обезжиривания радиаторов и бензобаков
   Бак для масел
   Ванна для закалки в масле
   Стенд для разборки и сборки пружин натяжения гусениц трактора Т-100м
   Бескамерная установка с нижним отсосом воздуха для подготовки поверхности изделий
   Стенд для разборки и сборки балансирных рессор
   Стенд для сборки и разборки бортовых фрикционов трактора Т-100м
   Подставка для разборки и сборки сервомеханизмов
   Подставка для сборки и разборки бортредукторов
   Подставка под плиту разметочную, поверочную 1000х630
   Стол
   Подставка под плиту правильную 2500х1600
   Тележка
   Установка для наплавки гребня башмака
   Конвекционная сушильная камера с паровым обогревом для сушки изделий
   Бескамерная установка с нижним отсосом воздуха для окраски изделий
   Конвекционная сушильная камера с паровым обогревом для сушки изделий
   Сушильный шкаф
   Краскомешалка
   Распылительная камера с экранным гидрофильтром для грунтовки и окраски изделий
   Тележка
   Рольганг неприводной
   Рольганг приводной
   Кран консольный
   Цепь тяговая
Разработан: Проектный институт №3 Минпромстроя СССР
Утверждён:05.04.1977 Союзсельхозтехника (13)
Расположен в:Техническая документация Строительство Справочные документы Типовые строительные конструкции, изделия и узлы Общероссийский строительный каталог Промышленные предприятия, здания и сооружения Предприятия, здания и сооружения промышленности и электроэнергетики Ремонтные предприятия. Административно-бытовые, производственные и вспомогательные здания и сооружения промышленных предприятий Ремонтные предприятия, производственные и вспомогательные здания и сооружения
Типовой проект 816-242Типовой проект 816-242Типовой проект 816-242Типовой проект 816-242Типовой проект 816-242Типовой проект 816-242Типовой проект 816-242Типовой проект 816-242Типовой проект 816-242Типовой проект 816-242Типовой проект 816-242Типовой проект 816-242Типовой проект 816-242Типовой проект 816-242Типовой проект 816-242Типовой проект 816-242Типовой проект 816-242Типовой проект 816-242Типовой проект 816-242Типовой проект 816-242Типовой проект 816-242Типовой проект 816-242Типовой проект 816-242Типовой проект 816-242Типовой проект 816-242Типовой проект 816-242Типовой проект 816-242Типовой проект 816-242Типовой проект 816-242Типовой проект 816-242Типовой проект 816-242Типовой проект 816-242Типовой проект 816-242Типовой проект 816-242Типовой проект 816-242Типовой проект 816-242Типовой проект 816-242Типовой проект 816-242Типовой проект 816-242Типовой проект 816-242Типовой проект 816-242Типовой проект 816-242Типовой проект 816-242Типовой проект 816-242Типовой проект 816-242Типовой проект 816-242Типовой проект 816-242Типовой проект 816-242Типовой проект 816-242Типовой проект 816-242Типовой проект 816-242Типовой проект 816-242Типовой проект 816-242Типовой проект 816-242Типовой проект 816-242Типовой проект 816-242Типовой проект 816-242Типовой проект 816-242Типовой проект 816-242Типовой проект 816-242Типовой проект 816-242Типовой проект 816-242Типовой проект 816-242Типовой проект 816-242Типовой проект 816-242Типовой проект 816-242Типовой проект 816-242Типовой проект 816-242Типовой проект 816-242Типовой проект 816-242Типовой проект 816-242Типовой проект 816-242Типовой проект 816-242Типовой проект 816-242Типовой проект 816-242Типовой проект 816-242Типовой проект 816-242Типовой проект 816-242Типовой проект 816-242Типовой проект 816-242Типовой проект 816-242Типовой проект 816-242Типовой проект 816-242Типовой проект 816-242Типовой проект 816-242Типовой проект 816-242Типовой проект 816-242Типовой проект 816-242Типовой проект 816-242Типовой проект 816-242Типовой проект 816-242Типовой проект 816-242Типовой проект 816-242Типовой проект 816-242Типовой проект 816-242Типовой проект 816-242Типовой проект 816-242Типовой проект 816-242Типовой проект 816-242Типовой проект 816-242Типовой проект 816-242Типовой проект 816-242Типовой проект 816-242Типовой проект 816-242Типовой проект 816-242Типовой проект 816-242Типовой проект 816-242Типовой проект 816-242Типовой проект 816-242Типовой проект 816-242Типовой проект 816-242Типовой проект 816-242Типовой проект 816-242Типовой проект 816-242Типовой проект 816-242Типовой проект 816-242Типовой проект 816-242Типовой проект 816-242Типовой проект 816-242Типовой проект 816-242Типовой проект 816-242Типовой проект 816-242Типовой проект 816-242Типовой проект 816-242Типовой проект 816-242Типовой проект 816-242Типовой проект 816-242Типовой проект 816-242Типовой проект 816-242Типовой проект 816-242Типовой проект 816-242Типовой проект 816-242Типовой проект 816-242Типовой проект 816-242Типовой проект 816-242Типовой проект 816-242Типовой проект 816-242Типовой проект 816-242Типовой проект 816-242Типовой проект 816-242Типовой проект 816-242Типовой проект 816-242Типовой проект 816-242Типовой проект 816-242Типовой проект 816-242

© 2013 Ёшкин Кот :-) Карта сайта