Информационная система
«Ёшкин Кот»

Скачать базу одним архивом
Скачать обновления
История создания базы
Карта сайта

Скачать Типовой проект 816-1-81.86 Альбом I. 1-й этап строительства на 200 тракторов. Общая пояснительная записка. Технология производства. Технологические коммуникации. Внутренний водопровод и канализация. Отопление и вентиляция

Дата актуализации: 10.08.2017

Типовой проект 816-1-81.86

Альбом I. 1-й этап строительства на 200 тракторов. Общая пояснительная записка. Технология производства. Технологические коммуникации. Внутренний водопровод и канализация. Отопление и вентиляция

Обозначение: Типовой проект 816-1-81.86
Обозначение англ: 816-1-81.86
Статус:действует
Название рус.:Альбом I. 1-й этап строительства на 200 тракторов. Общая пояснительная записка. Технология производства. Технологические коммуникации. Внутренний водопровод и канализация. Отопление и вентиляция
Дата добавления в базу:01.09.2013
Дата актуализации:05.05.2017
Оглавление:Содержание альбома
Пояснительная записка
Технология производства ТХ
   Общие данные (начало)
   Общие данные (окончание). Ведомость оборудования
   План на отм. 0.000; 3.000 между осями Б-А и 3/1-4/1
   Лебедка монтажная электрическая 12,5 кН с доработкой
Технологические коммуникации
   Общие данные
   План на отм. 0.000. Схемы снабжения дизельным топливом и технологическим паром
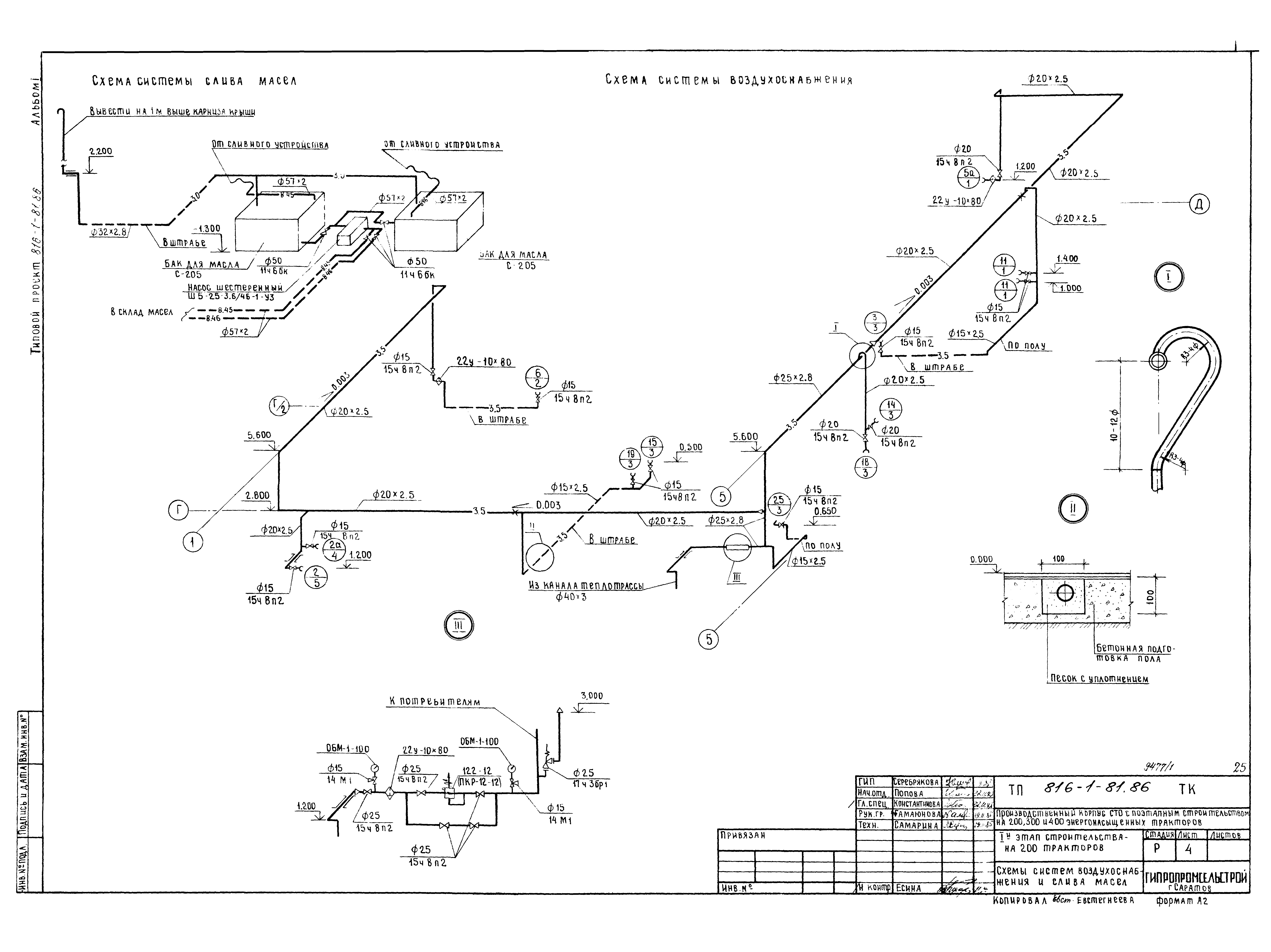
   Схемы систем воздухоснабжения и слива масел
Внутренние водопровод и канализация ВК
   Общие данные
   План на отм. 0.000. Схемы систем В1; В14; К14
   Фрагмент 1. План на отм. 3.000
   План на отм. 6.000. План кровли с сетями водостоков
   Схемы систем В1, Т3, Т4, К1, К2. Водомерный узел 1
Отопление и вентиляция ОВ
   Общие данные (начало)
   Общие данные (окончание). Местные отсосы от технологического оборудования
   План на отм. 0.000. План на отм. 0.000 между осями 1-3 и А-Б. План кровли
   Установки систем П1, П2, П3, В3. Разрез 2-2; 3-3. План на отм. 6.000
   Установки систем П1, П2, П3, В3. Разрез 1-1
   Схемы систем П1, П2, П3, В1, В2, В3, В4, В5, В6, ВЕ5, ВЕ6
   Планы на отм. 0.000; 3.000; 6.000
   Схемы систем отопления 1, 2. Схема системы теплоснабжения установок П1 - П4, А1, А2. Редукционная вставка
   Планы на отм. 0.000; 3.000. Схемы систем В7, В8, ВЕ3
   План на отм. 6.000. План кровли. Схемы систем П4, В9, ВЕ1, ВЕ2
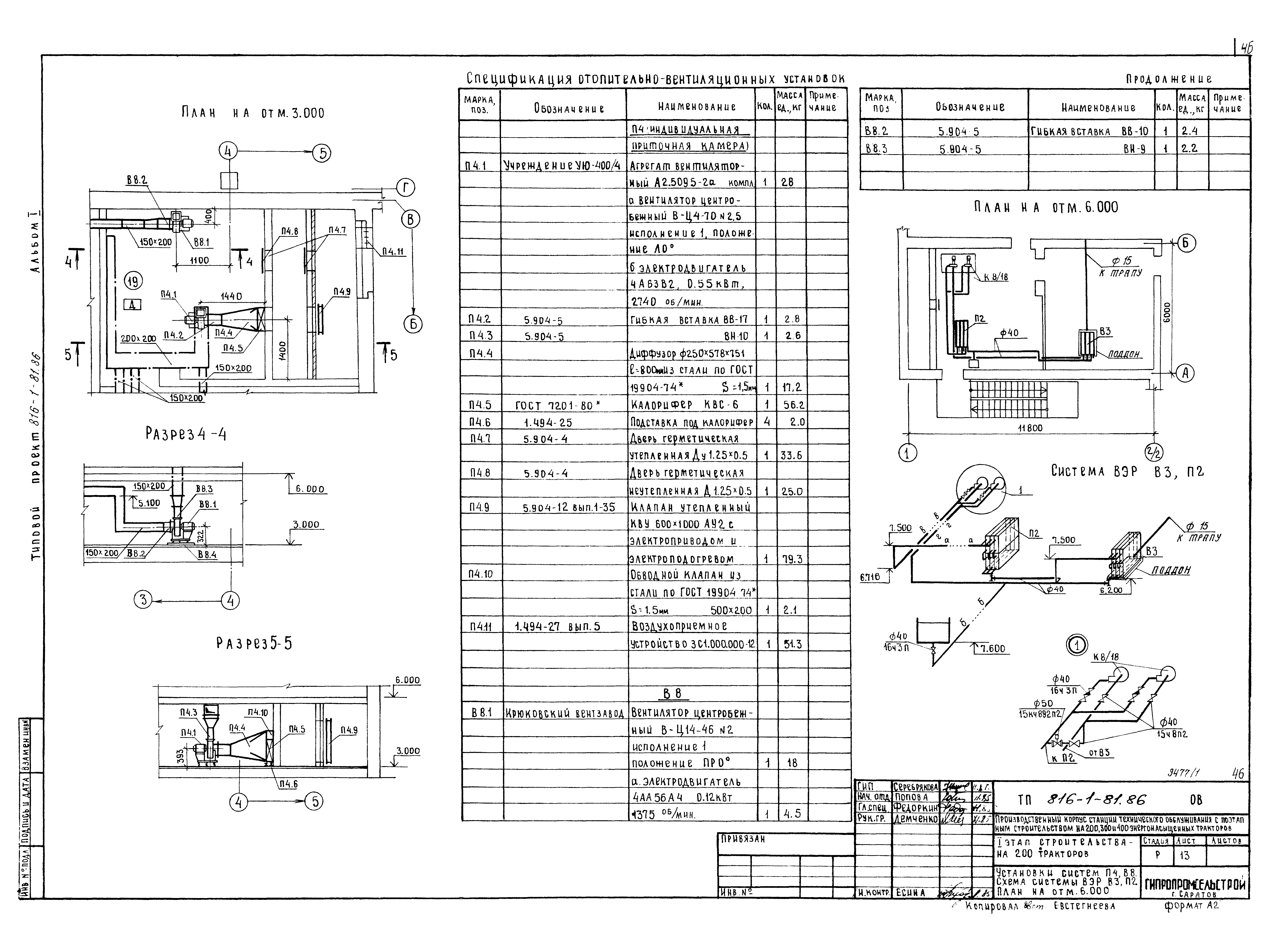
   Установки систем П4, В8. Схема системы ВЭР, В3, П2
   Индивидуальный тепловой пункт
   Спецификация индивидуального теплового пункта
Разработан: Гипропромсельстрой
Утверждён:02.08.1984 Госкомсельхозтехника СССР (52)
Расположен в:Техническая документация Строительство Справочные документы Типовые строительные конструкции, изделия и узлы Общероссийский строительный каталог Сельскохозяйственные предприятия, здания и сооружения Предприятия, здания и сооружения по ремонту, техническому обслуживанию, хранению и обеспечению горюче-смазочными материалами сельхозтехники Ремонтные предприятия районных агропромышленных объединений
Типовой проект 816-1-81.86Типовой проект 816-1-81.86Типовой проект 816-1-81.86Типовой проект 816-1-81.86Типовой проект 816-1-81.86Типовой проект 816-1-81.86Типовой проект 816-1-81.86Типовой проект 816-1-81.86Типовой проект 816-1-81.86Типовой проект 816-1-81.86Типовой проект 816-1-81.86Типовой проект 816-1-81.86Типовой проект 816-1-81.86Типовой проект 816-1-81.86Типовой проект 816-1-81.86Типовой проект 816-1-81.86Типовой проект 816-1-81.86Типовой проект 816-1-81.86Типовой проект 816-1-81.86Типовой проект 816-1-81.86Типовой проект 816-1-81.86Типовой проект 816-1-81.86Типовой проект 816-1-81.86Типовой проект 816-1-81.86Типовой проект 816-1-81.86Типовой проект 816-1-81.86Типовой проект 816-1-81.86Типовой проект 816-1-81.86Типовой проект 816-1-81.86Типовой проект 816-1-81.86Типовой проект 816-1-81.86Типовой проект 816-1-81.86Типовой проект 816-1-81.86Типовой проект 816-1-81.86Типовой проект 816-1-81.86Типовой проект 816-1-81.86Типовой проект 816-1-81.86Типовой проект 816-1-81.86Типовой проект 816-1-81.86Типовой проект 816-1-81.86Типовой проект 816-1-81.86Типовой проект 816-1-81.86Типовой проект 816-1-81.86Типовой проект 816-1-81.86Типовой проект 816-1-81.86Типовой проект 816-1-81.86Типовой проект 816-1-81.86Типовой проект 816-1-81.86Типовой проект 816-1-81.86Типовой проект 816-1-81.86

© 2013 Ёшкин Кот :-) Карта сайта