Информационная система
«Ёшкин Кот»

Скачать базу одним архивом
Скачать обновления
История создания базы
Карта сайта

Скачать Типовой проект 816-1-25 Альбом 1. Технологические решения. Архитектурные решения. Конструкции железобетонные. Внутренние водопровод и канализация. Отопление и вентиляция. Тепломеханическая часть. Электрооборудование. Автоматизация. Связь и сигнализация

Дата актуализации: 10.08.2017

Типовой проект 816-1-25

Альбом 1. Технологические решения. Архитектурные решения. Конструкции железобетонные. Внутренние водопровод и канализация. Отопление и вентиляция. Тепломеханическая часть. Электрооборудование. Автоматизация. Связь и сигнализация

Обозначение: Типовой проект 816-1-25
Обозначение англ: 816-1-25
Статус:действует
Название рус.:Альбом 1. Технологические решения. Архитектурные решения. Конструкции железобетонные. Внутренние водопровод и канализация. Отопление и вентиляция. Тепломеханическая часть. Электрооборудование. Автоматизация. Связь и сигнализация
Дата добавления в базу:01.09.2013
Дата актуализации:05.05.2017
Оглавление:Ведомость рабочих чертежей основного комплекта ТХ
   Общие данные
   План установки технологического оборудования
   Спецификация
Ведомость рабочих чертежей основного комплекта АР
   Общие данные
   Фасады. Схемы заполнения оконных проемов
   Планы на отм. 0.000 и 3.600. Разрезы 1-1 - 3-3
   Фрагмент 1. Разрезы 1-1, 2-2
   Схемы расположения полов и перемычек
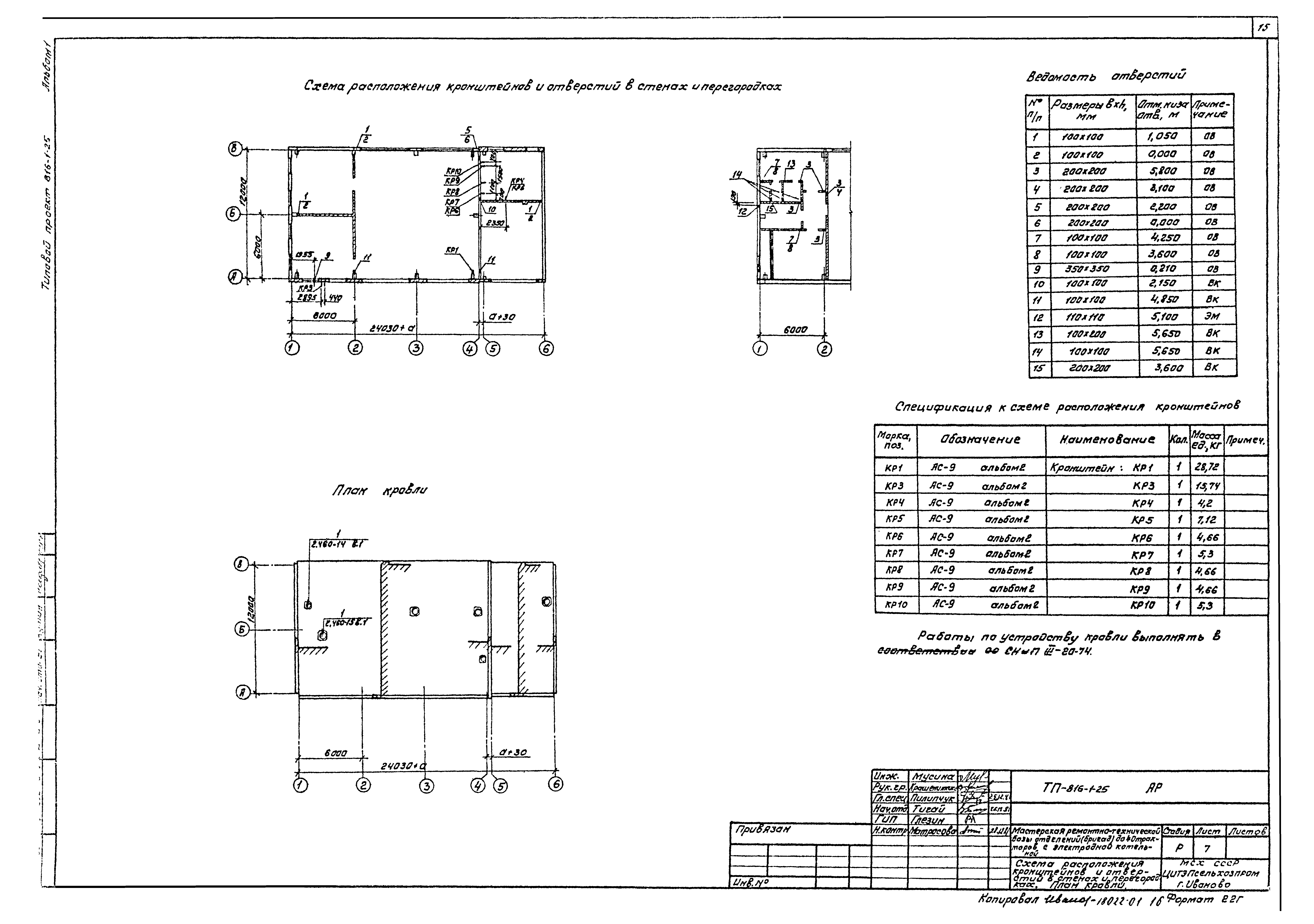
   Схема расположения кронштейнов и отверстий в стенах и перегородках. План кровли
Ведомость рабочих чертежей основного комплекта КЖ
   Общие данные
   Схема расположения фундаментов. Фрагмент 1
   Фрагменты 2 - 6
   Фрагменты 7 - 11
   Фундаменты ФА4-1-1; ФА4-1-1А; ФА4-1-2; ФА4-1-2А; ФА4-1-3; ФА4-1-3А
   Фундаменты ФА2-1-2; ФА2-1-2А; ФА1-1-1; Фм1, Фм2
   Схема расположения подпольного хозяйства. Фундаменты Фм4, Фм5
   Фрагмент 3. Фундаменты Фм6 - Фм10
   Схема расположения колонн и балок. Разрезы 1-1 и 2-2
   Разрез 3-3. Узлы 1 - 5
   Схемы расположения плит покрытия и перекрытия
   Монолитные участки УМ1, УМ2
   Монолитный участок УМ3. Каркасы, сетки
   Схемы расположения панелей стен
   Разбивка дополнительных закладных деталей в колоннах
   Разбивка дополнительных закладных деталей в колоннах, балках и плитах покрытия
   Схемы расположения подвесных путей и монорельса
Ведомость рабочих чертежей основного комплекта ВК
   Общие данные
   План систем на отм. 0.000 и 3.600
   Схемы систем В1, Т3
   Схемы системы К1, К3
   Грязеотстойник с бензомаслоуловителем
Ведомость рабочих чертежей основного комплекта ОВ
   Общие данные
   План на отм. 0.000 и 3.600
   Схемы систем отопления 1, 2, 3 и теплоснабжения калориферов П1, П2
   Схемы систем вентиляции П1; П2; В1; В2; ВЕ1 - ВЕ5
   Установка систем П1, П2
   Установка систем В1; В2; ВЕ1; А1
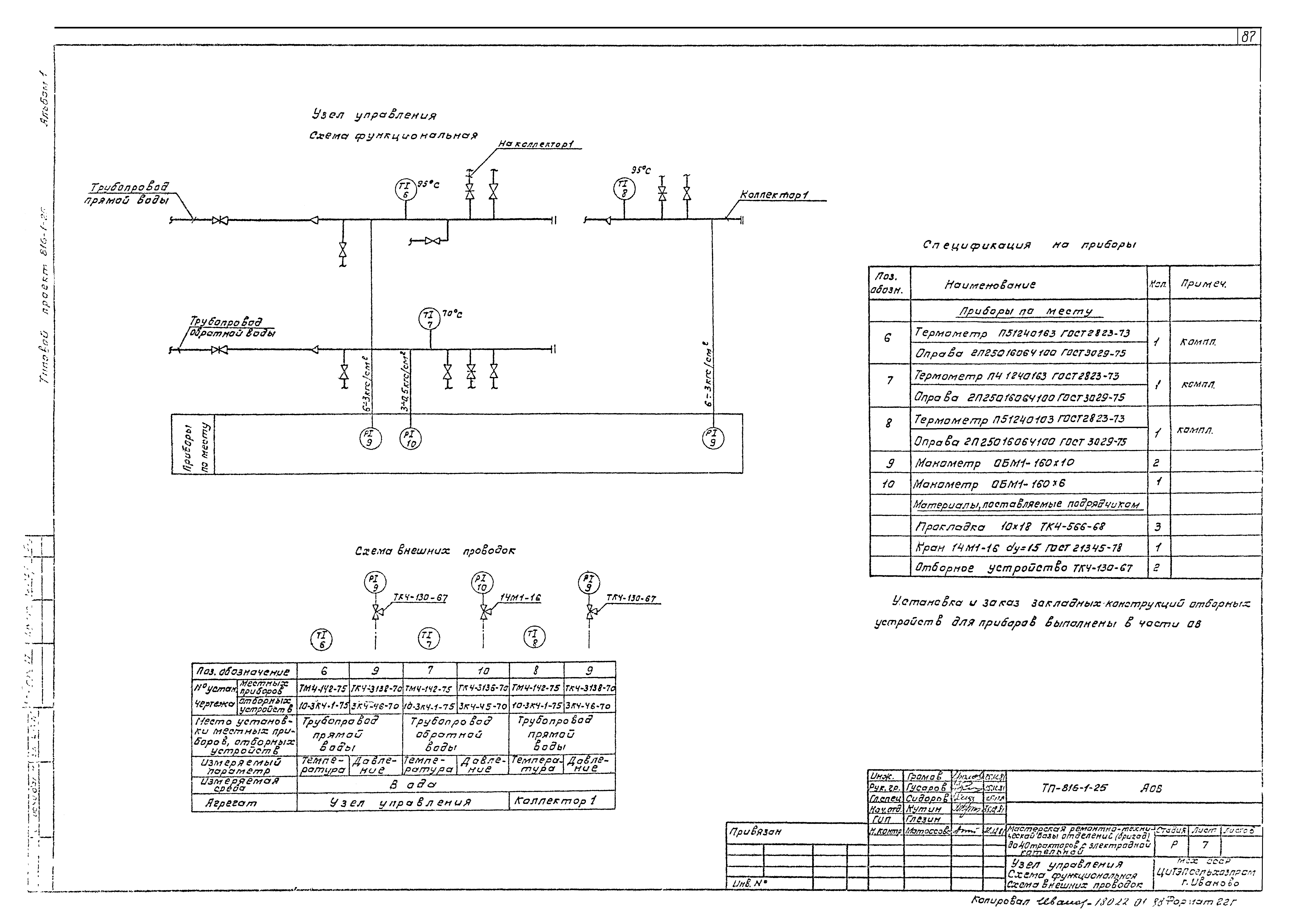
   Схема узла управления, коллектор 1
   Сборочный чертеж. Разрезы
   Переходы. Лючок с заглушкой
Ведомость рабочих чертежей основного комплекта ТМ
   Общие данные
   План. Разрезы 1-1; 2-2
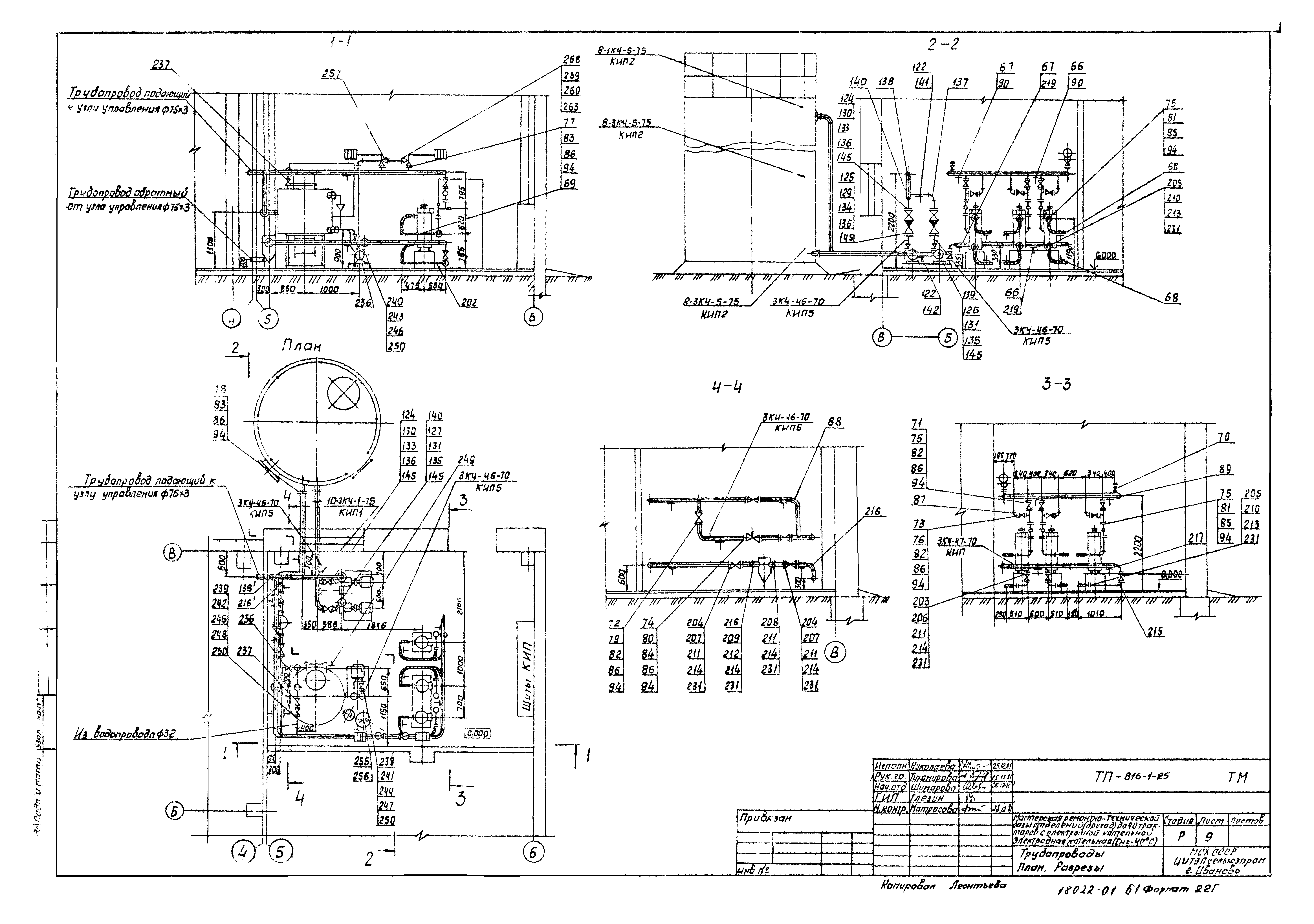
   Схема трубопроводов
   Трубопроводы. План. Разрезы
   Спецификация трубопроводов
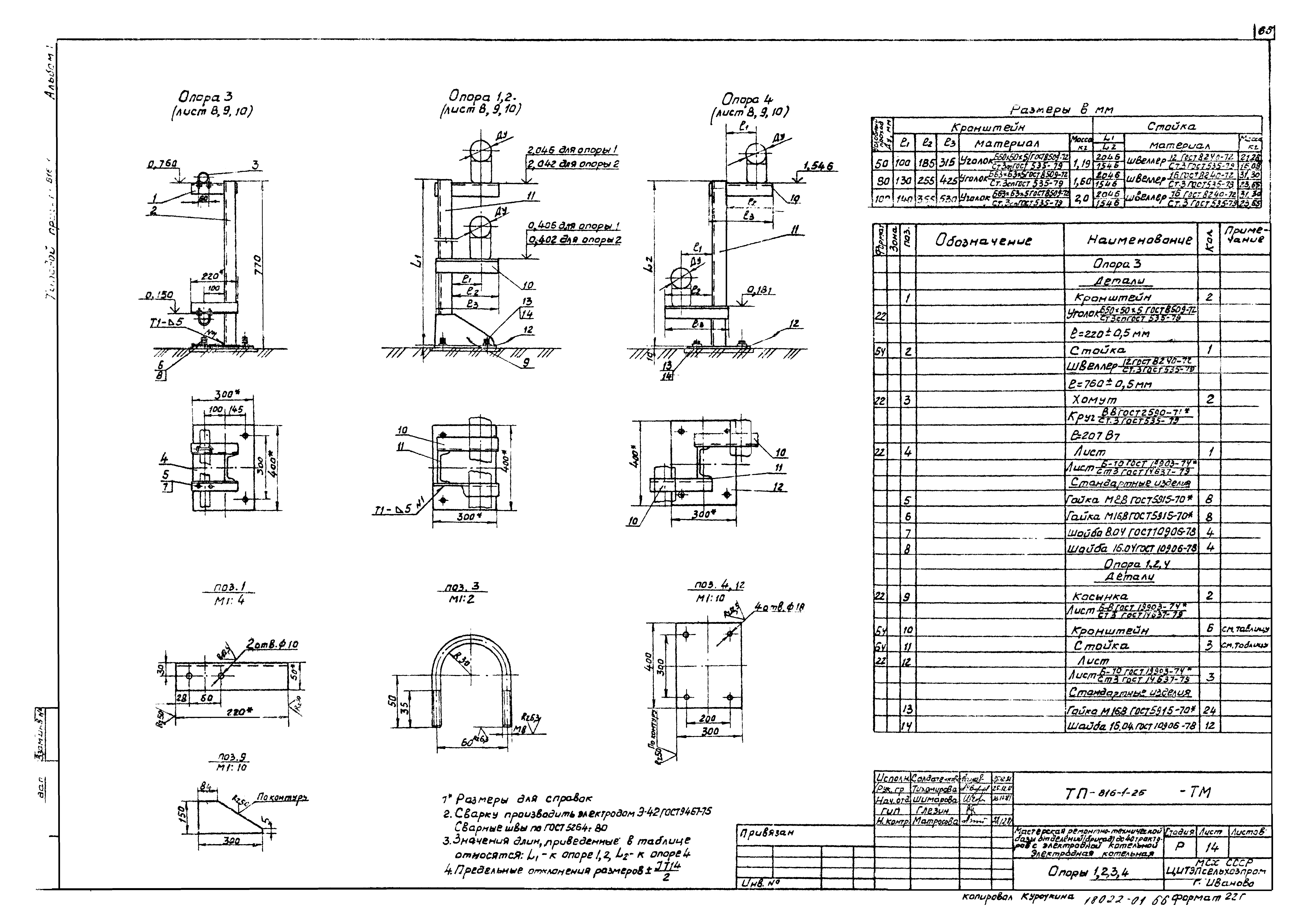
   Опоры 1; 2; 3; 4
   Изолирующая вставка. Сборочный чертеж
   Бак-аккумулятор 40 (25) куб. м. Установочный чертеж
   Бак-аккумулятор 40 (25) куб. м. Установочный чертеж. Узлы. Разрезы
   Бак подпиточный 1 куб. м. Установочный чертеж
   Опора. Лестница. Сборочный чертеж
Ведомость рабочих чертежей основного комплекта ЭМ
   Общие данные
   Планы силовой сети
   План силовой сети электродной котельной
   Расчетная схема силовой сети
   План осветительной сети
   Крепление светильника в нише
Ведомость рабочих чертежей основного комплекта АОВ
   Общие данные
   Приточная система П1 (П2). Схема функциональная
   Отопительно-вентиляционный агрегат А1. Схема функциональная
   Схема электрическая принципиальная отключения электродвигателей при пожаре
   Приточная система П1 (П2). Схема внешних проводок
    Отопительно-вентиляционный агрегат А1. Схема внешних проводок
   Узел управления. Схема функциональная
   Задвижка. Схема электрическая принципиальная
   Задвижка. Схема внешних проводок
   План расположения на отм. 0.000 и 3.600
   Схема функциональная
   Схема электрическая принципиальная
   Схема внешних проводок
   План расположения
Ведомость рабочих чертежей основного комплекта УСП
   Общие данные
   Схема внешних проводок
   Устройства связи и пожарной сигнализации. Планы на отм. 0.000; 3.600
Разработан: ЦИТЭПсельхозпрома
Утверждён:15.09.1981 Минсельхоз СССР (USSR Minselkhoz 91)
Расположен в:Техническая документация Строительство Справочные документы Типовые строительные конструкции, изделия и узлы Общероссийский строительный каталог Сельскохозяйственные предприятия, здания и сооружения Предприятия, здания и сооружения по ремонту, техническому обслуживанию, хранению и обеспечению горюче-смазочными материалами сельхозтехники Мастерские отделений хозяйств
Типовой проект 816-1-25Типовой проект 816-1-25Типовой проект 816-1-25Типовой проект 816-1-25Типовой проект 816-1-25Типовой проект 816-1-25Типовой проект 816-1-25Типовой проект 816-1-25Типовой проект 816-1-25Типовой проект 816-1-25Типовой проект 816-1-25Типовой проект 816-1-25Типовой проект 816-1-25Типовой проект 816-1-25Типовой проект 816-1-25Типовой проект 816-1-25Типовой проект 816-1-25Типовой проект 816-1-25Типовой проект 816-1-25Типовой проект 816-1-25Типовой проект 816-1-25Типовой проект 816-1-25Типовой проект 816-1-25Типовой проект 816-1-25Типовой проект 816-1-25Типовой проект 816-1-25Типовой проект 816-1-25Типовой проект 816-1-25Типовой проект 816-1-25Типовой проект 816-1-25Типовой проект 816-1-25Типовой проект 816-1-25Типовой проект 816-1-25Типовой проект 816-1-25Типовой проект 816-1-25Типовой проект 816-1-25Типовой проект 816-1-25Типовой проект 816-1-25Типовой проект 816-1-25Типовой проект 816-1-25Типовой проект 816-1-25Типовой проект 816-1-25Типовой проект 816-1-25Типовой проект 816-1-25Типовой проект 816-1-25Типовой проект 816-1-25Типовой проект 816-1-25Типовой проект 816-1-25Типовой проект 816-1-25Типовой проект 816-1-25Типовой проект 816-1-25Типовой проект 816-1-25Типовой проект 816-1-25Типовой проект 816-1-25Типовой проект 816-1-25Типовой проект 816-1-25Типовой проект 816-1-25Типовой проект 816-1-25Типовой проект 816-1-25Типовой проект 816-1-25Типовой проект 816-1-25Типовой проект 816-1-25Типовой проект 816-1-25Типовой проект 816-1-25Типовой проект 816-1-25Типовой проект 816-1-25Типовой проект 816-1-25Типовой проект 816-1-25Типовой проект 816-1-25Типовой проект 816-1-25Типовой проект 816-1-25Типовой проект 816-1-25Типовой проект 816-1-25Типовой проект 816-1-25Типовой проект 816-1-25Типовой проект 816-1-25Типовой проект 816-1-25Типовой проект 816-1-25Типовой проект 816-1-25Типовой проект 816-1-25Типовой проект 816-1-25Типовой проект 816-1-25Типовой проект 816-1-25Типовой проект 816-1-25Типовой проект 816-1-25Типовой проект 816-1-25Типовой проект 816-1-25Типовой проект 816-1-25Типовой проект 816-1-25Типовой проект 816-1-25Типовой проект 816-1-25Типовой проект 816-1-25Типовой проект 816-1-25Типовой проект 816-1-25Типовой проект 816-1-25Типовой проект 816-1-25Типовой проект 816-1-25Типовой проект 816-1-25

© 2013 Ёшкин Кот :-) Карта сайта