Информационная система
«Ёшкин Кот»

Скачать базу одним архивом
Скачать обновления
История создания базы
Карта сайта

Скачать Типовой проект 815-53.87 Альбом I. Общая пояснительная записка. Технология производства. Архитектурно-строительные решения. Конструкции металлические. Спецификации оборудования

Дата актуализации: 10.08.2017

Типовой проект 815-53.87

Альбом I. Общая пояснительная записка. Технология производства. Архитектурно-строительные решения. Конструкции металлические. Спецификации оборудования

Обозначение: Типовой проект 815-53.87
Обозначение англ: 815-53.87
Статус:не определен законодательством
Название рус.:Альбом I. Общая пояснительная записка. Технология производства. Архитектурно-строительные решения. Конструкции металлические. Спецификации оборудования
Дата добавления в базу:01.09.2013
Дата актуализации:05.05.2017
Дата введения:29.06.1987
Оглавление:Содержание
Общая пояснительная записка
Основной комплект рабочих чертежей марки ТХ
   Общие данные
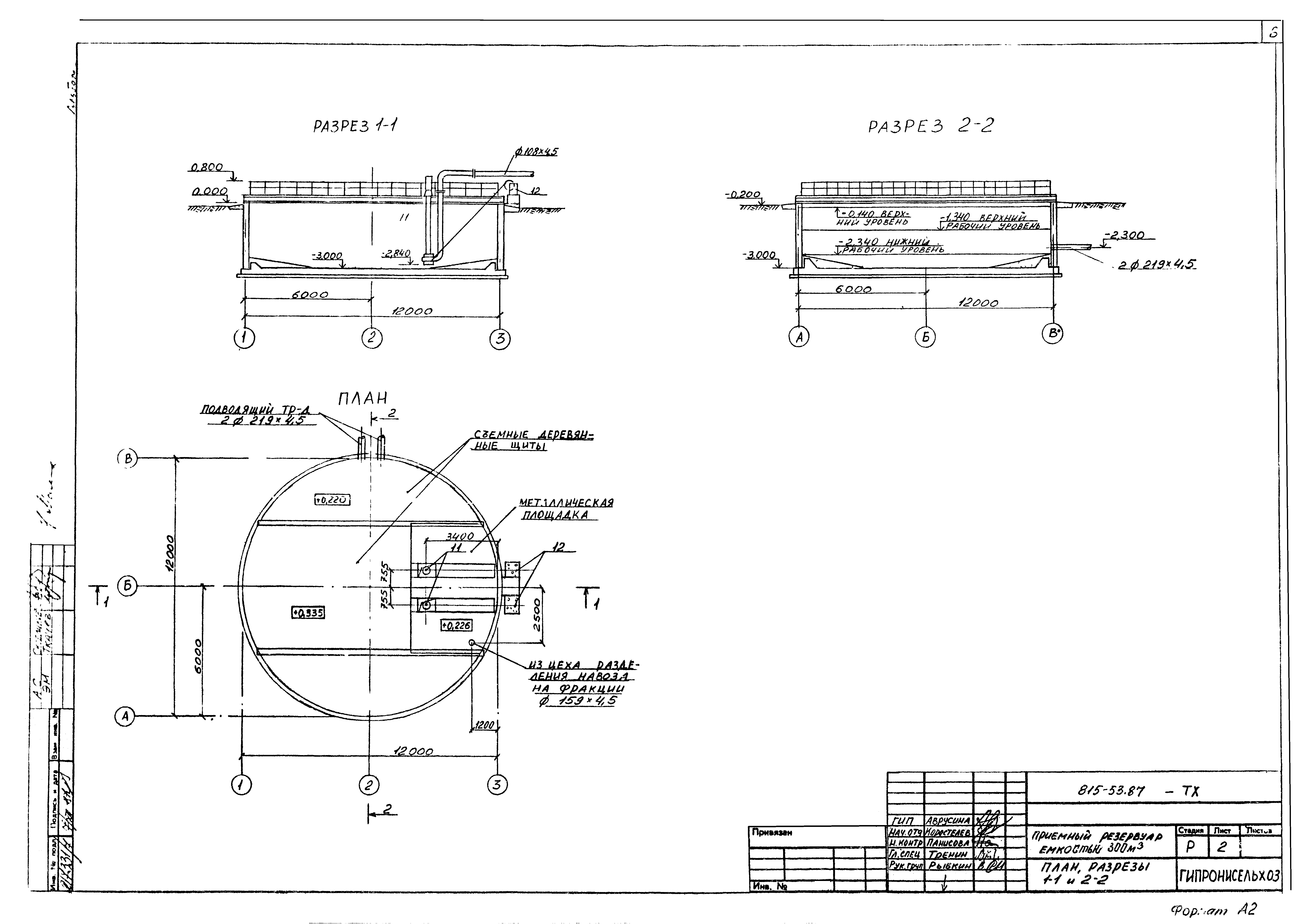
   План. Разрезы 1-1, 2-2
Основной комплект рабочих чертежей марки АС
   Общие данные
   План. Схема расположения элементов резервуара. Разрезы 1-1, 2-2
   Днище монолитное ДМ1. Схема армирования ДМ1. Фундамент ФОМ1
   Каркасы ПК1, КР1. Сечения
   Схема расположения щитов покрытия. Узлы 1, 2
Основной комплект рабочих чертежей марки КМ
   Общие данные
   Техническая спецификация металла
   Ведомость металлоконструкций по видам профилей
   Схема расположения элементов покрытия и ограждений. Узел 1
   Фрагмент 1. Узлы 1 - 7
Спецификация оборудования к основному комплекту марки ТХ
Разработан: ФГНУ НПЦ Гипронисельхоз
Утверждён:29.06.1987 Госагропром СССР (USSR Gosagroprom 498)
Расположен в:Техническая документация Строительство Справочные документы Типовые строительные конструкции, изделия и узлы Общероссийский строительный каталог Сельскохозяйственные предприятия, здания и сооружения Здания и сооружения по транспортировке, очистке и хранению навоза
Типовой проект 815-53.87Типовой проект 815-53.87Типовой проект 815-53.87Типовой проект 815-53.87Типовой проект 815-53.87Типовой проект 815-53.87Типовой проект 815-53.87Типовой проект 815-53.87Типовой проект 815-53.87Типовой проект 815-53.87Типовой проект 815-53.87Типовой проект 815-53.87Типовой проект 815-53.87Типовой проект 815-53.87Типовой проект 815-53.87Типовой проект 815-53.87Типовой проект 815-53.87Типовой проект 815-53.87Типовой проект 815-53.87

© 2013 Ёшкин Кот :-) Карта сайта