Информационная система
«Ёшкин Кот»

Скачать базу одним архивом
Скачать обновления
История создания базы
Карта сайта

Скачать Типовой проект 801-3-18 Альбом I. Общая пояснительная записка. Технологические чертежи. Архитектурно-строительные решения. Конструкции железобетонные. Внутренний водопровод и канализация. Отопление и вентиляция. Электроосвещение и электрооборудование. Автоматизация санитарно-технических систем

Дата актуализации: 10.08.2017

Типовой проект 801-3-18

Альбом I. Общая пояснительная записка. Технологические чертежи. Архитектурно-строительные решения. Конструкции железобетонные. Внутренний водопровод и канализация. Отопление и вентиляция. Электроосвещение и электрооборудование. Автоматизация санитарно-технических систем

Обозначение: Типовой проект 801-3-18
Обозначение англ: 801-3-18
Статус:действует
Название рус.:Альбом I. Общая пояснительная записка. Технологические чертежи. Архитектурно-строительные решения. Конструкции железобетонные. Внутренний водопровод и канализация. Отопление и вентиляция. Электроосвещение и электрооборудование. Автоматизация санитарно-технических систем
Дата добавления в базу:01.09.2013
Дата актуализации:05.05.2017
Оглавление:ПЗ Пояснительная записка
   Общие данные
ТХ Технологические решения
   Общие данные
   План с расположением технологического оборудования
   Разрезы А-А; Б-Б; Г-Г; В-В; Д-Д
   Монтажная схема транспортера ТСН-160. Разрезы А-А; Б-Б; Г-Г; Д-Д; Ж-Ж; Е-Е; F-F; С-С; Н-Н
АР Архитектурно-строительные решения
   Общие данные
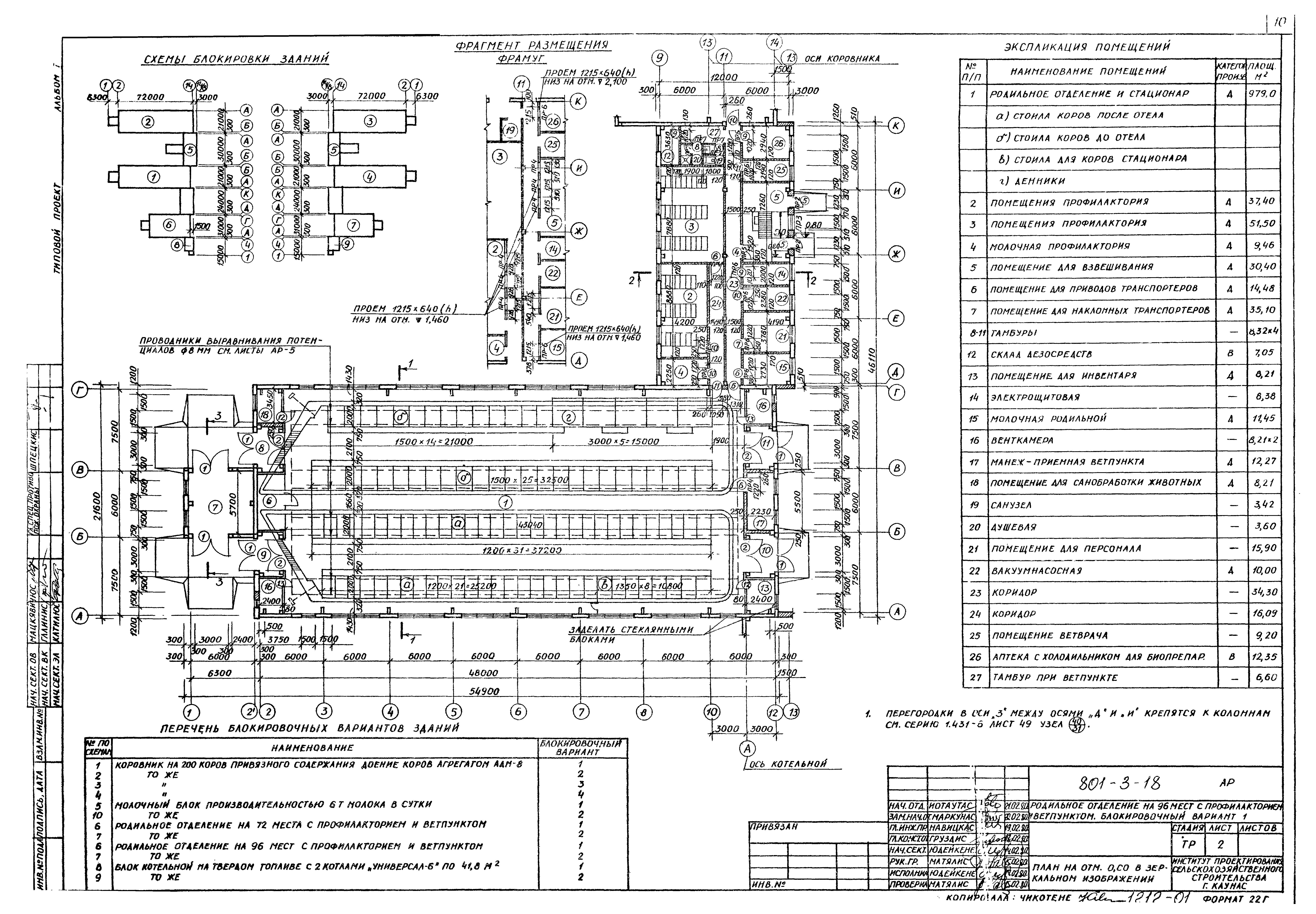
   План на отм. 0.00 в зеркальном изображении
   Разрезы 1-1; 2-2. Узел 1, 2
   Фасады А-К; К-А; 1-12; 12-1
   Схемы заполнения оконных проемов. План полов. План кровли. Узел 9
   Узлы 1 - 4
   План ограждений на отм. 0.000
   Ограждение ОГ
   Фрагмент плана "1". Разрезы 1-1; 6-6
   Фрагменты плана "2", "3", "4". Разрезы 7-7; 8-8; 9-9; 10-10
   Спецификации элементов на одно изделие. Изделия МД1 - МД10; МП1
   Панели перегородок ОГ1 - ОГ8. Панели калиток КЛ-1; КЛ-2, КЛ-3
   Узлы 1 - 15. Спецификация
   Спецификации
   Вентиляционная шахта ВВШ-10
КЖ Конструкции железобетонные
   Общие данные
   План фундаментов
   Узлы и разрезы фундаментов
   Фундамент Фм1, Фм2
   Фундамент Фм3
   Фундаменты под весь РС-2Ц-150 и вакуумно-насосной
   Подземные конструкции. Разрезы 10-10 - 14-14. План каналов. Арматурные изделия
   Монолитные фундаменты под оборудование
   Маркировочная схема железобетонных рам, колонн и ригелей. Узел 1
   Маркировочная схема плит покрытия. Узлы 2, 3, 4, 5
   Узлы 5, 8. Подвески ПД1 (ПД2). Спецификации
   Маркировочные схемы стеновых панелей
   Крепление стеновых панелей
   Узлы 12 - 15. Спецификации
   Спецификация
   Крепление железобетонных перегородок. Спецификации
   Закладные детали в колоннах и рамах
ВК Внутренние водопровод и канализация
   Общие данные
   Сводная спецификация систем водопровода и канализации
   План с сетями ВО, К1, К3
   Схемы систем ВО и ТЗ
   Схемы систем К1 - К3
ОВ Отопление и вентиляция
   Общие данные
   План систем отопления и вентиляции
   План системы горячего водоснабжения
   Схемы систем отопления
   Схемы систем вентиляции и горячего водоснабжения
   План и разрез отопительно-вентиляционной установки
Э Электроосвещение и электрооборудование
   Общие данные
   Схема принципиальная распределительной сети
   Кабельный журнал
   Расположение электрооборудования и прокладка кабелей
   План с электросетями освещения
   Схема контура выравнивания потенциалов
АП Автоматизация производства
   Общие данные
   Схема функциональная
   Приточная система. Транспортер ТСН-160. Схема электрическая принципиальная
   Схема внешних проводок
   План расположения
СУ Слаботочные устройства
   Общие данные
   План на отм. 0.000
Разработан: Госстрой Лит. ССР
Утверждён:29.12.1978 Министерство сельского хозяйства Литовской ССР (1630)
Расположен в:Техническая документация Строительство Справочные документы Типовые строительные конструкции, изделия и узлы Общероссийский строительный каталог Сельскохозяйственные предприятия, здания и сооружения Предприятия, здания и сооружения для крупного рогатого скота Комплексы и фермы Производство молока
Типовой проект 801-3-18Типовой проект 801-3-18Типовой проект 801-3-18Типовой проект 801-3-18Типовой проект 801-3-18Типовой проект 801-3-18Типовой проект 801-3-18Типовой проект 801-3-18Типовой проект 801-3-18Типовой проект 801-3-18Типовой проект 801-3-18Типовой проект 801-3-18Типовой проект 801-3-18Типовой проект 801-3-18Типовой проект 801-3-18Типовой проект 801-3-18Типовой проект 801-3-18Типовой проект 801-3-18Типовой проект 801-3-18Типовой проект 801-3-18Типовой проект 801-3-18Типовой проект 801-3-18Типовой проект 801-3-18Типовой проект 801-3-18Типовой проект 801-3-18Типовой проект 801-3-18Типовой проект 801-3-18Типовой проект 801-3-18Типовой проект 801-3-18Типовой проект 801-3-18Типовой проект 801-3-18Типовой проект 801-3-18Типовой проект 801-3-18Типовой проект 801-3-18Типовой проект 801-3-18Типовой проект 801-3-18Типовой проект 801-3-18Типовой проект 801-3-18Типовой проект 801-3-18Типовой проект 801-3-18Типовой проект 801-3-18Типовой проект 801-3-18Типовой проект 801-3-18Типовой проект 801-3-18Типовой проект 801-3-18Типовой проект 801-3-18Типовой проект 801-3-18Типовой проект 801-3-18Типовой проект 801-3-18Типовой проект 801-3-18Типовой проект 801-3-18Типовой проект 801-3-18Типовой проект 801-3-18Типовой проект 801-3-18Типовой проект 801-3-18Типовой проект 801-3-18Типовой проект 801-3-18Типовой проект 801-3-18Типовой проект 801-3-18Типовой проект 801-3-18Типовой проект 801-3-18Типовой проект 801-3-18Типовой проект 801-3-18Типовой проект 801-3-18Типовой проект 801-3-18Типовой проект 801-3-18Типовой проект 801-3-18Типовой проект 801-3-18Типовой проект 801-3-18Типовой проект 801-3-18Типовой проект 801-3-18

© 2013 Ёшкин Кот :-) Карта сайта