Информационная система
«Ёшкин Кот»

Скачать базу одним архивом
Скачать обновления
История создания базы
Карта сайта

Скачать Типовой проект 810-98 Альбом VIII. Лабораторно-бытовой корпус. Технологические чертежи. Архитектурно-строительные решения. Конструкции железобетонные. Водопровод и канализация. Отопление и вентиляция. Электроосвещение и силовое электрооборудование. Связь и сигнализация

Дата актуализации: 10.08.2017

Типовой проект 810-98

Альбом VIII. Лабораторно-бытовой корпус. Технологические чертежи. Архитектурно-строительные решения. Конструкции железобетонные. Водопровод и канализация. Отопление и вентиляция. Электроосвещение и силовое электрооборудование. Связь и сигнализация

Обозначение: Типовой проект 810-98
Обозначение англ: 810-98
Статус:действует
Название рус.:Альбом VIII. Лабораторно-бытовой корпус. Технологические чертежи. Архитектурно-строительные решения. Конструкции железобетонные. Водопровод и канализация. Отопление и вентиляция. Электроосвещение и силовое электрооборудование. Связь и сигнализация
Дата добавления в базу:01.09.2013
Дата актуализации:05.05.2017
Оглавление:Содержание альбома
Пояснительная записка
Технологические чертежи
   Общие данные (начало)
   Общие данные (окончание). Технологическая планировка
Архитектурно-строительные решения
   Общие данные
   План на отм. 0.000
   Разрезы. Фасады. Схемы заполнения оконных проемов
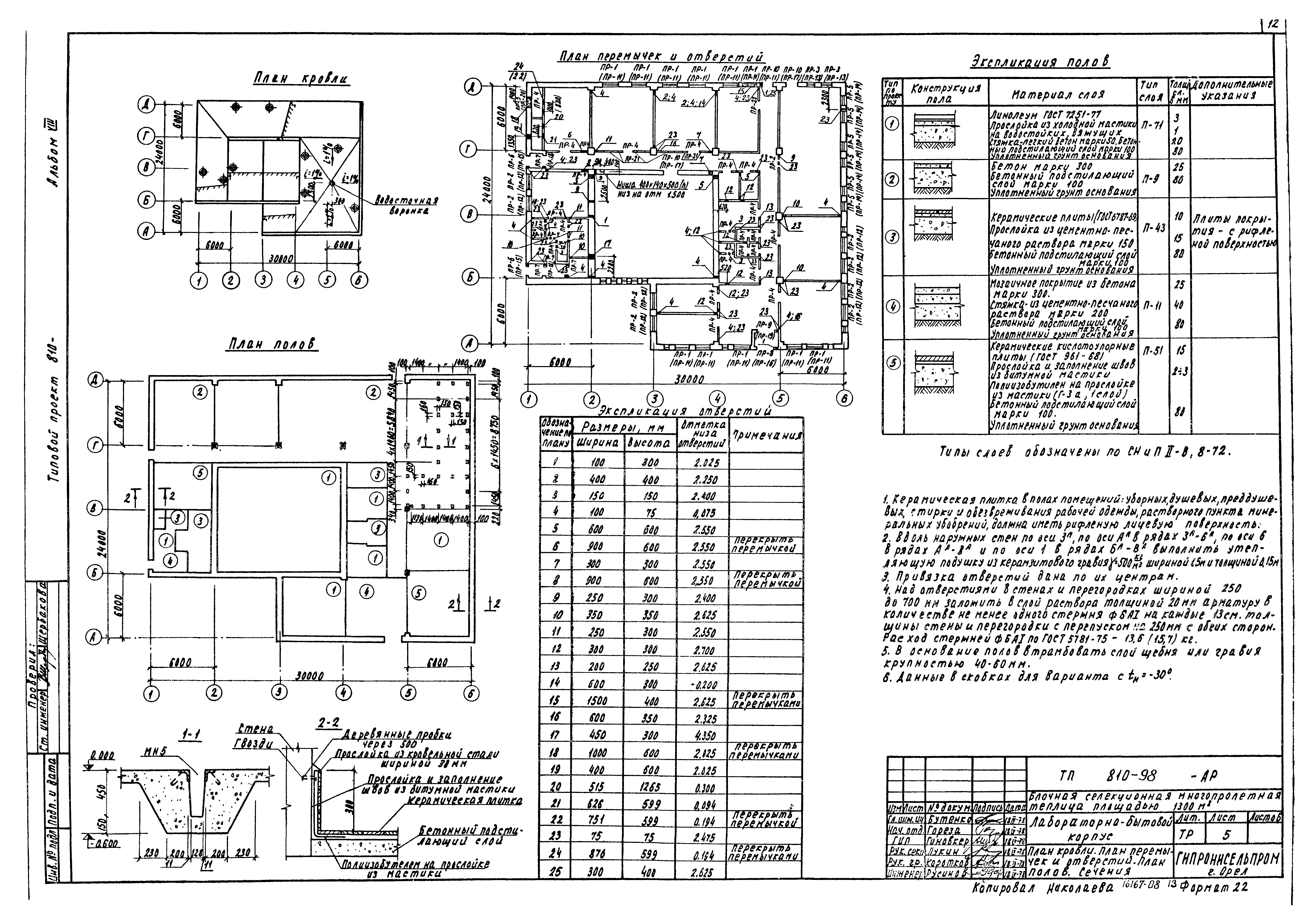
   План кровли. План перемычек и отверстий. План полов. Сечения
   Фрагмент плана 1. Теплоизоляция кирпичных стен венткамер. Детали
   План подземных конструкций. Фрагменты плана. Сечения. Узлы
   Маркировочная схема закромов. Разрезы. Узлы
   Изделие соединительное МС1 - МС4
   Изделия закладные МН1, МН4, МН6, МН7
   Изделия закладные МН2
   Сетка арматурная С1, С2. Сборочный чертеж. Изделия закладные МС5, МН3
Конструкции железобетонные
   Общие данные
   Маркировочная схема фундаментов. Сечения. Фундаменты под оборудование ФОм1 - ФОм5
   Маркировочные схемы плит покрытия на отм. 3.600 и 4.800, колонн, балок и опорных подушек. Разрезы
   Монолитный ж/б пояс. Сечения. Узлы
   Балки БЭ6-4АIVб, БЭ6-6АIVб. Сборочный чертеж. Каркас КР1. Изделие соединительное МС6
   Перемычка БУ19а-1. Балка БЭ6-5АIVа. Изделие закладное МН10. Изделия закладные МН8, МН9, МН11
Водопровод и канализация
   Общие данные
   План на отм. 0.000. Фрагмент плана 1
   Схемы систем В1, Т3, В5, В6, В9, М.У. Узлы I, II, III
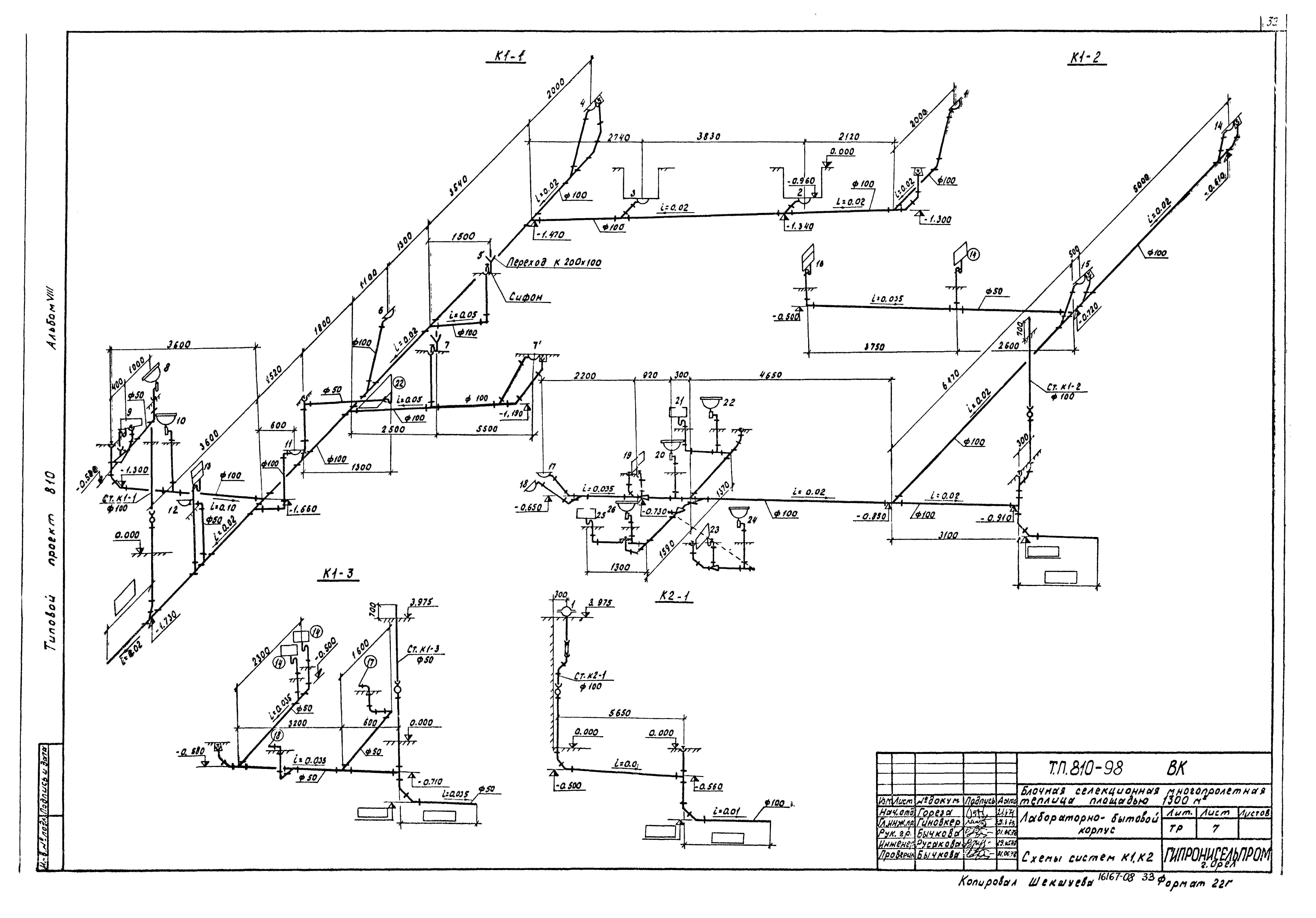
   Схемы систем К1, К2
Отопление и вентиляция
   Общие данные
   План системы отопления и трубопроводов к калориферам и водоподогревателям
   План систем вентиляции
   Разрез 1-1. Схемы трубопроводов к калориферам и водоподогревателям
   Схема трубопроводов системы отопления
   Схемы воздуховодов систем вентиляции
   Тепловой пункт. План трубопроводов. Разрезы 1-1; 2-2; 3-3; 4-4
   Принципиальная схема трубопроводов. Разрез 5-5
   Вентиляционные установки П1, П2. План. Разрезы
Электроосвещение и силовое электрооборудование
   Общие данные
   План сети электрического освещения. Экспликация помещений
   Расчетная схема сети электрического освещения
   План силовой электрической сети
   Расчетные схемы силовых распределительных шкафов 1ШР и 3ШР
   Расчетные схемы силового распределительного шкафа 2ШР и шкафа управления насосами ШУН
   Расчетная схема вводного распределительного шкафа ШРВ
Связь и сигнализация
   Общи данные
   План сетей телефонизации и радиофикации
Разработан: Гипронисельпром Главсельстройпроекта Минсельхоза СССР
Утверждён:24.01.1977 Министерство сельского хозяйства СССР (USSR Ministry of Agriculture 4/10)
Расположен в:Техническая документация Строительство Справочные документы Типовые строительные конструкции, изделия и узлы Общероссийский строительный каталог Сельскохозяйственные предприятия, здания и сооружения Тепличные комбинаты, теплицы и парники Тепличные комбинаты и теплицы
Типовой проект 810-98Типовой проект 810-98Типовой проект 810-98Типовой проект 810-98Типовой проект 810-98Типовой проект 810-98Типовой проект 810-98Типовой проект 810-98Типовой проект 810-98Типовой проект 810-98Типовой проект 810-98Типовой проект 810-98Типовой проект 810-98Типовой проект 810-98Типовой проект 810-98Типовой проект 810-98Типовой проект 810-98Типовой проект 810-98Типовой проект 810-98Типовой проект 810-98Типовой проект 810-98Типовой проект 810-98Типовой проект 810-98Типовой проект 810-98Типовой проект 810-98Типовой проект 810-98Типовой проект 810-98Типовой проект 810-98Типовой проект 810-98Типовой проект 810-98Типовой проект 810-98Типовой проект 810-98Типовой проект 810-98Типовой проект 810-98Типовой проект 810-98Типовой проект 810-98Типовой проект 810-98Типовой проект 810-98Типовой проект 810-98Типовой проект 810-98Типовой проект 810-98Типовой проект 810-98Типовой проект 810-98Типовой проект 810-98Типовой проект 810-98Типовой проект 810-98Типовой проект 810-98

© 2013 Ёшкин Кот :-) Карта сайта