Информационная система
«Ёшкин Кот»

Скачать базу одним архивом
Скачать обновления
История создания базы
Карта сайта

Скачать Типовой проект 3.501-65 Выпуск I. Прямоугольные железобетонные трубы

Дата актуализации: 10.08.2017

Типовой проект 3.501-65

Выпуск I. Прямоугольные железобетонные трубы

Обозначение: Типовой проект 3.501-65
Обозначение англ: 3.501-65
Статус:заменен
Название рус.:Выпуск I. Прямоугольные железобетонные трубы
Дата добавления в базу:01.09.2013
Дата актуализации:05.05.2017
Дата введения:01.07.1981
Оглавление:Пояснительная записка
Общая часть
   Расчетный лист. Нагрузки на звенья труб под железную дорогу
   Расчетный лист. Нагрузки на звенья труб под автомобильную дорогу
   Расчетный лист. Нагрузки на звенья труб под железную дорогу для особых условий работы
   Расчетный лист. Подбор сечений звеньев труб отв. 1,0 и 1,25 м
   Расчетный лист. Подбор сечений звеньев труб отв. 1,25; 1,5 и 2,0 м
   Расчетный лист. Подбор сечений звеньев труб отв. 2,0 и 2,5 м
   Расчетный лист. Подбор сечений звеньев труб отв. 3,0 и 4,0 м
   Расчет оголовков на выпучивание
   Графики давления на грунт под подошвой фундамента труб
   Гидравлические расчеты
   Рекомендации по расчету устойчивости откосов земляного полотна
   Схема засыпки труб
   Пример производства работ по сооружению трубы
   Укрепление русел и откосов насыпи монолитным бетоном
   Укрепление русел и откосов насыпи мощением
   Детали устройства гидроизоляции
Конструкция средней части трубы
   Средняя часть труб
   Средняя часть труб. Спецификация блоков
   Средняя часть труб. Объемы работ для труб под железную дорогу
Конструкция оголовочной части трубы
   Оголовочная часть труб отв. 1,0 и 1,25 м
   Оголовочная часть труб отв. 1,5; 2,0 и 2,5 м
   Оголовочная часть труб отв. 3,0 и 4,0 м
   Оголовочная часть труб. Спецификация блоков
   Оголовочная часть труб. Объемы работ для труб под железную дорогу
   Объемы работ на 1 п.м. средней части и оголовочную часть труб под автомобильную дорогу
   Пример конструкции оголовочной трубы отв. 1,5 м при глубине промерзания 2,0 м
   Пример конструкции оголовочной трубы отв. 3,0 м при глубине промерзания 4,0 м
   Оголовочная часть труб для сейсмических районов
   Оголовочная часть труб отв. 1,0 и 1,25 м с повышенным входным звеном
   Оголовочная часть труб отв. 1,5; 2,0 и 2,5 м с повышенным входным звеном
   Оголовочная часть труб с повышенным звеном. Спецификация блоков для труб под железную и автомобильную дороги
   Оголовочная часть труб с повышенным звеном. Объемы работ для труб под железную и автомобильную дороги
   Омоноличивание стыков откосных крыльев оголовков
Примеры конструкции труб
   Пример конструкции трубы отв. 1,5 м под железную дорогу
   Пример конструкции трубы отв. 3,0 м под автомобильную дорогу
   Пример конструкции трубы отв. 1,5 м на свайном фундаменте под железную дорогу
Блоки заводского изготовления
   Блоки №261С - 268С
   Блоки №269Спл - 273Спл
   Арматурный чертеж блока №261С
   Арматурный чертеж блока №262С
   Арматурный чертеж блоков №263С, 264С, 266С, 267С
   Арматурный чертеж блоков №265С, 268С
   Арматурный чертеж блока №269Спл
   Спецификация арматуры на блок №269Спл
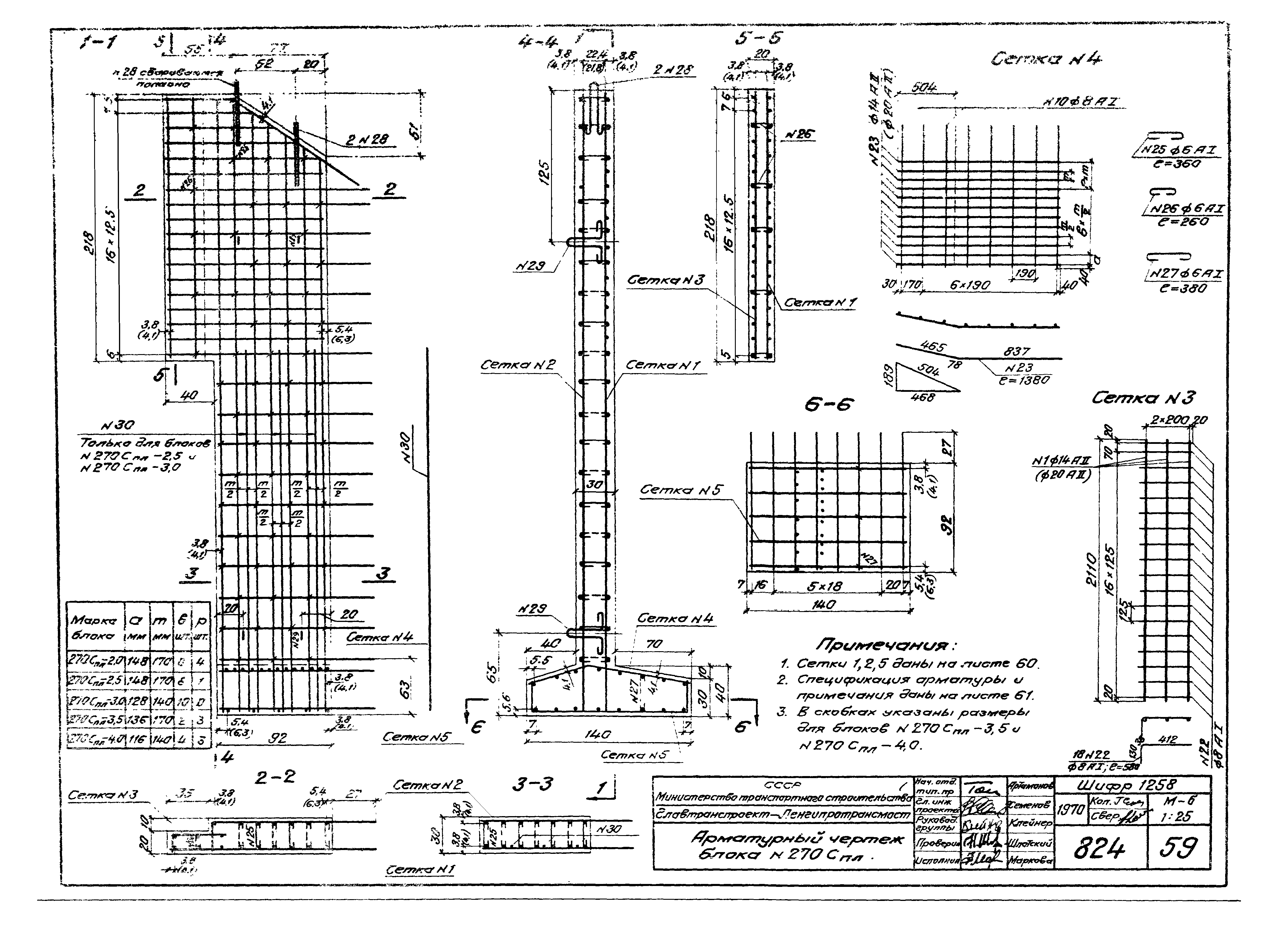
   Арматурный чертеж блока №270Спл
   Спецификация арматуры на блок №270Спл
   Арматурный чертеж блока №271Спл
   Спецификация арматуры на блок №271Спл
   Арматурный чертеж блока №272Спл
   Спецификация арматуры на блок №272Спл
   Арматурный чертеж блока №273Спл
   Спецификация арматуры на блок №273Спл
   Ведомость расхода материала на блоки
Разработан: Ленгипротрансмост
Утверждён:28.04.1972 МПС (Ministry of Railroads П-11934/Л-408)
Расположен в:Техническая документация Строительство Справочные документы Типовые строительные конструкции, изделия и узлы Общероссийский строительный каталог Строительные конструкции, изделия и узлы зданий и сооружений для всех видов строительства Конструкции и изделия сооружений и оборудования зданий Надземные сооружения Конструкции и сооружения транспорта Дорожные водопропускные и водоотводные сооружения
Чем заменён:
Типовой проект 3.501-65Типовой проект 3.501-65Типовой проект 3.501-65Типовой проект 3.501-65Типовой проект 3.501-65Типовой проект 3.501-65Типовой проект 3.501-65Типовой проект 3.501-65Типовой проект 3.501-65Типовой проект 3.501-65Типовой проект 3.501-65Типовой проект 3.501-65Типовой проект 3.501-65Типовой проект 3.501-65Типовой проект 3.501-65Типовой проект 3.501-65Типовой проект 3.501-65Типовой проект 3.501-65Типовой проект 3.501-65Типовой проект 3.501-65Типовой проект 3.501-65Типовой проект 3.501-65Типовой проект 3.501-65Типовой проект 3.501-65Типовой проект 3.501-65Типовой проект 3.501-65Типовой проект 3.501-65Типовой проект 3.501-65Типовой проект 3.501-65Типовой проект 3.501-65Типовой проект 3.501-65Типовой проект 3.501-65Типовой проект 3.501-65Типовой проект 3.501-65Типовой проект 3.501-65Типовой проект 3.501-65Типовой проект 3.501-65Типовой проект 3.501-65Типовой проект 3.501-65Типовой проект 3.501-65Типовой проект 3.501-65Типовой проект 3.501-65Типовой проект 3.501-65Типовой проект 3.501-65Типовой проект 3.501-65Типовой проект 3.501-65Типовой проект 3.501-65Типовой проект 3.501-65Типовой проект 3.501-65Типовой проект 3.501-65Типовой проект 3.501-65Типовой проект 3.501-65Типовой проект 3.501-65Типовой проект 3.501-65Типовой проект 3.501-65Типовой проект 3.501-65Типовой проект 3.501-65Типовой проект 3.501-65Типовой проект 3.501-65Типовой проект 3.501-65Типовой проект 3.501-65Типовой проект 3.501-65Типовой проект 3.501-65Типовой проект 3.501-65Типовой проект 3.501-65Типовой проект 3.501-65Типовой проект 3.501-65Типовой проект 3.501-65Типовой проект 3.501-65Типовой проект 3.501-65Типовой проект 3.501-65Типовой проект 3.501-65

© 2013 Ёшкин Кот :-) Карта сайта