| ||||||||||||||||||||||||||||
Скачать Серия 1.232-3 Выпуск 9. Часть II. Панели увеличенных габаритов толщиной 120 мм с обрамлением наружных обшивок алюминиевым профилем с двойным остеклением оконных блоковДата актуализации: 10.08.2017
|
| Обозначение: | Серия 1.232-3 |
| Обозначение англ: | Series 1.232-3 |
| Статус: | не действует |
| Название рус.: | Выпуск 9. Часть II. Панели увеличенных габаритов толщиной 120 мм с обрамлением наружных обшивок алюминиевым профилем с двойным остеклением оконных блоков |
| Дата добавления в базу: | 01.09.2013 |
| Дата актуализации: | 05.05.2017 |
| Дата введения: | 01.05.1999 |
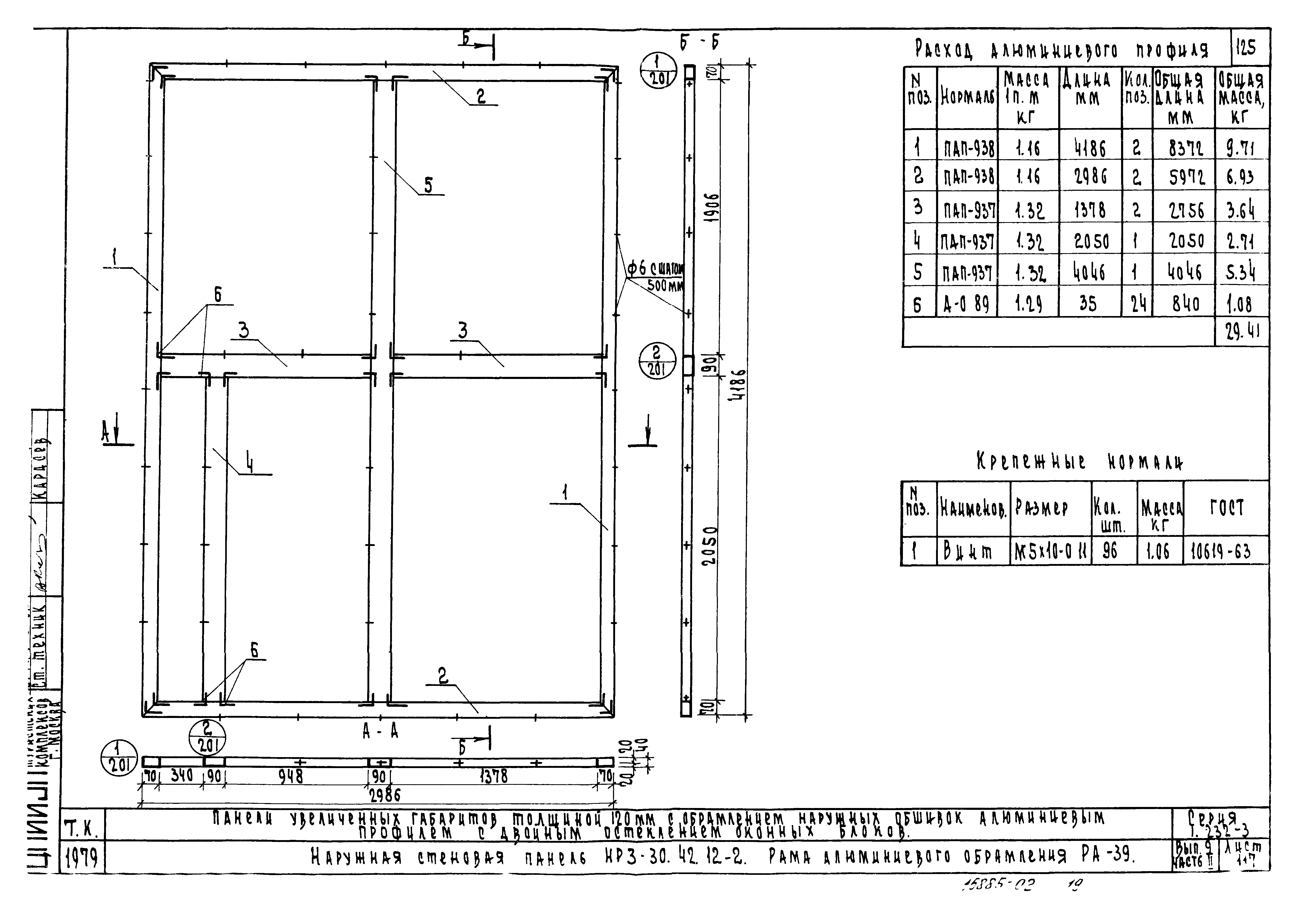
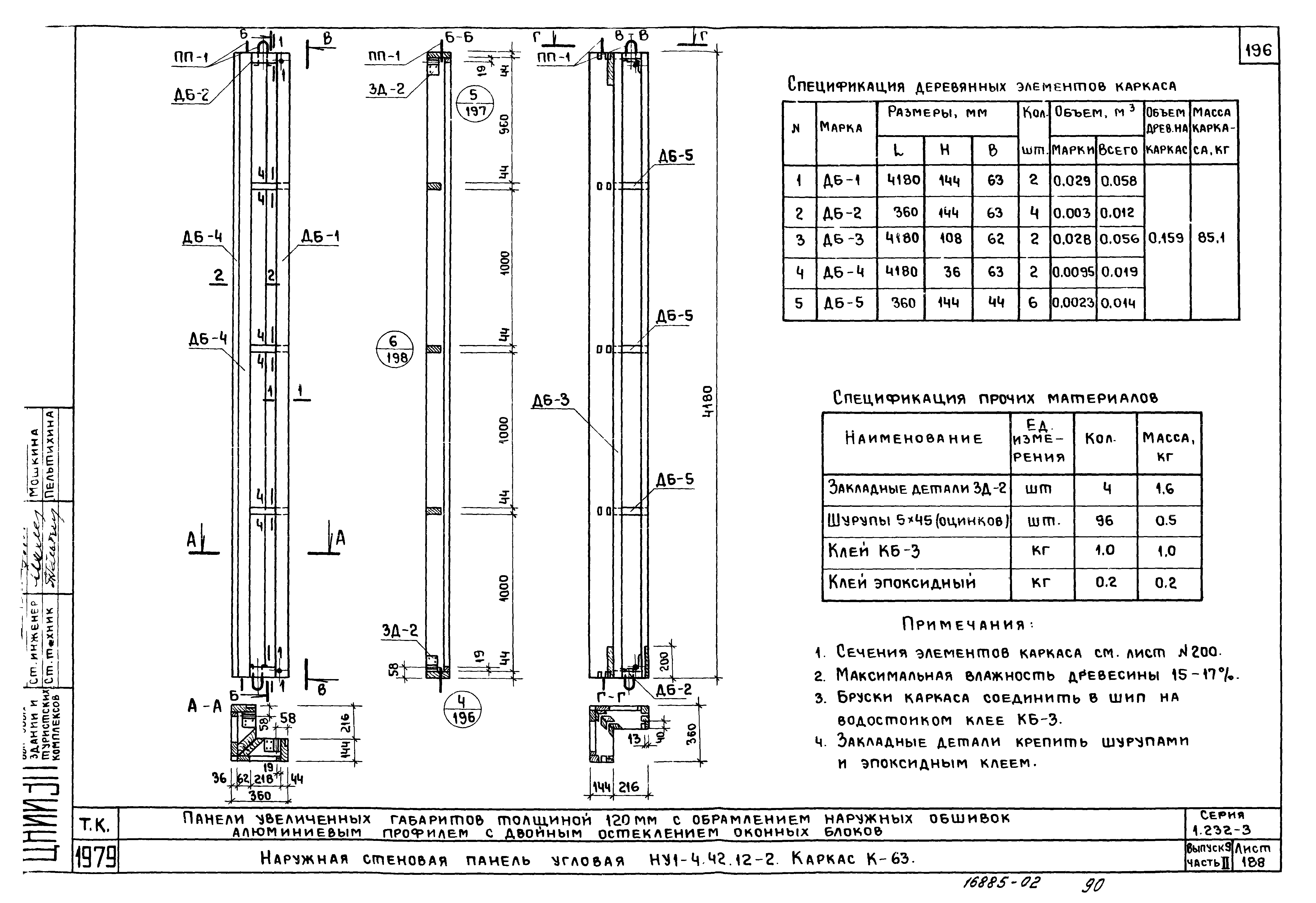
| Оглавление: | Наружная стеновая панель НР3-30.33.12-1. Общий вид Наружная стеновая панель НР3-30.33.12-1. Каркас К-34 Наружная стеновая панель НР3-30.33.12-1. Рама алюминиевого обрамления РА-34 Наружная стеновая панель НР3-30.39.12-1. Общий вид Наружная стеновая панель НР3-30.39.12-1. Каркас К-35 Наружная стеновая панель НР3-30.39.12-1. Рама алюминиевого обрамления РА-35 Наружная стеновая панель НР3-30.42.12-1. Общий вид Наружная стеновая панель НР3-30.42.12-1. Каркас К-36 Наружная стеновая панель НР3-30.42.12-1. Рама алюминиевого обрамления РА-36 Наружная стеновая панель НР3-30.33.12-2. Общий вид Наружная стеновая панель НР3-30.33.12-2. Каркас К-37 Наружная стеновая панель НР3-30.33.12-2. Рама алюминиевого обрамления РА-37 Наружная стеновая панель НР3-30.39.12-2. Общий вид Наружная стеновая панель НР3-30.39.12-2. Каркас К-38 Наружная стеновая панель НР3-30.39.12-2. Рама алюминиевого обрамления РА-38 Наружная стеновая панель НР3-30.42.12-2. Общий вид Наружная стеновая панель НР3-30.42.12-2. Каркас К-39 Наружная стеновая панель НР3-30.42.12-2. Рама алюминиевого обрамления РА-39 Наружная стеновая панель НР3-30.33.12-3. Общий вид Наружная стеновая панель НР3-30.33.12-3. Каркас К-40 Наружная стеновая панель НР3-30.33.12-3. Рама алюминиевого обрамления РА-40 Наружная стеновая панель НР3-30.39.12-3. Общий вид Наружная стеновая панель НР3-30.39.12-3. Каркас К-41 Наружная стеновая панель НР3-30.39.12-3. Рама алюминиевого обрамления РА-41 Наружная стеновая панель НР3-30.42.12-3. Общий вид Наружная стеновая панель НР3-30.42.12-3. Каркас К-42 Наружная стеновая панель НР3-30.42.12-3. Рама алюминиевого обрамления РА-42 Наружная стеновая панель НР3-30.33.12-4. Общий вид Наружная стеновая панель НР3-30.33.12-4. Каркас К-43 Наружная стеновая панель НР3-30.33.12-4. Рама алюминиевого обрамления РА-43 Наружная стеновая панель НР3-30.39.12-4. Общий вид Наружная стеновая панель НР3-30.39.12-4. Каркас К-44 Наружная стеновая панель НР3-30.39.12-4. Рама алюминиевого обрамления РА-44 Наружная стеновая панель НР3-30.42.12-4. Общий вид Наружная стеновая панель НР3-30.42.12-4. Каркас К-45 Наружная стеновая панель НР3-30.42.12-4. Рама алюминиевого обрамления РА-45 Наружная стеновая панель НР3-30.33.12-5. Общий вид Наружная стеновая панель НР3-30.33.12-5. Каркас К-46 Наружная стеновая панель НР3-30.33.12-5. Рама алюминиевого обрамления РА-46 Наружная стеновая панель НР3-30.39.12-5. Общий вид Наружная стеновая панель НР3-30.39.12-5. Каркас К-47 Наружная стеновая панель НР3-30.39.12-5. Рама алюминиевого обрамления РА-47 Наружная стеновая панель НР3-30.42.12-5. Общий вид Наружная стеновая панель НР3-30.42.12-5. Каркас К-48 Наружная стеновая панель НР3-30.42.12-5. Рама алюминиевого обрамления РА-48 Наружная стеновая панель НР3-30.33.12-6. Общий вид Наружная стеновая панель НР3-30.33.12-6. Каркас К-49 Наружная стеновая панель НР3-30.33.12-6. Рама алюминиевого обрамления РА-49 Наружная стеновая панель НР3-30.39.12-6. Общий вид Наружная стеновая панель НР3-30.39.12-6. Каркас К-50 Наружная стеновая панель НР3-30.39.12-6. Рама алюминиевого обрамления РА-50 Наружная стеновая панель НР3-30.42.12-6. Общий вид Наружная стеновая панель НР3-30.42.12-6. Каркас К-51 Наружная стеновая панель НР3-30.42.12-6. Рама алюминиевого обрамления РА-51 Наружная стеновая панель доборная НД1-28.33.12-1. лев. Общий вид Наружная стеновая панель доборная НД1-28.33.12-1. лев. Каркас К-52 Наружная стеновая панель доборная НД1-28.33.12-1. лев. Рама алюминиевого обрамления РА-52 Наружная стеновая панель доборная НД1-28.39.12-1. лев. Общий вид Наружная стеновая панель доборная НД1-28.39.12-1. лев. Каркас К-53 Наружная стеновая панель доборная НД1-28.39.12-1. лев. Рама алюминиевого обрамления РА-53 Наружная стеновая панель доборная НД1-28.42.12-1. лев. Общий вид Наружная стеновая панель доборная НД1-28.42.12-1. лев. Каркас К-54 Наружная стеновая панель доборная НД1-28.42.12-1. лев. Рама алюминиевого обрамления РА-54 Наружная стеновая панель доборная НД1-27.33.12-2. лев. Общий вид Наружная стеновая панель доборная НД1-27.33.12-2. лев. Каркас К-55 Наружная стеновая панель доборная НД1-27.33.12-2. лев. Рама алюминиевого обрамления РА-55 Наружная стеновая панель доборная НД1-27.39.12-2. лев. Общий вид Наружная стеновая панель доборная НД1-27.39.12-2. лев. Каркас К-56 Наружная стеновая панель доборная НД1-27.39.12-2. лев. Рама алюминиевого обрамления РА-56 Наружная стеновая панель доборная НД1-27.42.12-2. лев. Общий вид Наружная стеновая панель доборная НД1-27.42.12-2. лев. Каркас К-57 Наружная стеновая панель доборная НД1-27.42.12-2. лев. Рама алюминиевого обрамления РА-57 Наружная стеновая панель угловая НУ1-3.33.12-1. Общий вид Наружная стеновая панель угловая НУ1-3.33.12-1. Каркас К-58 Наружная стеновая панель угловая НУ1-3.33.12-1. Рама алюминиевого обрамления РА-58 Наружная стеновая панель угловая НУ1-3.39.12-1. Общий вид Наружная стеновая панель угловая НУ1-3.39.12-1. Каркас К-59 Наружная стеновая панель угловая НУ1-3.39.12-1. Рама алюминиевого обрамления РА-59 Наружная стеновая панель угловая НУ1-3.42.12-1. Общий вид Наружная стеновая панель угловая НУ1-3.42.12-1. Каркас К-60 Наружная стеновая панель угловая НУ1-3.42.12-1. Рама алюминиевого обрамления РА-60 Наружная стеновая панель угловая НУ1-4.33.12-2. Общий вид Наружная стеновая панель угловая НУ1-4.33.12-2. Каркас К-61 Наружная стеновая панель угловая НУ1-4.33.12-2. Рама алюминиевого обрамления РА-61 Наружная стеновая панель угловая НУ1-4.39.12-2. Общий вид Наружная стеновая панель угловая НУ1-4.39.12-2. Каркас К-62 Наружная стеновая панель угловая НУ1-4.39.12-2. Рама алюминиевого обрамления РА-62 Наружная стеновая панель угловая НУ1-4.42.12-2. Общий вид Наружная стеновая панель угловая НУ1-4.42.12-2. Каркас К-63 Наружная стеновая панель угловая НУ1-4.42.12-2. Рама алюминиевого обрамления РА-63 Узлы панелей 1 - 6 Узлы панелей 7 - 9 Узлы панелей 10 - 11 Узлы панелей. Узел 12 Узлы панелей с двойным раздельным остеклением 13 - 14 Узлы каркасов 1 - 2 Узлы каркасов 3 - 4 Узлы каркасов. Узел 5 Узлы каркасов 6 Узлы каркасов 7, 8 Сечения элементов каркасов Узлы рам алюминиевого обрамления. Узлы 1 - 2 Заготовки алюминиевых сливов АС-1 - АС-5 Заготовки асбестоцементных листов Л-1 - Л-18 Заготовки асбестоцементных листов Л-19 - Л-28; Л-31 - Л-44 Заготовки асбестоцементных листов Л-29 - Л-30; Л-45 - Л-52; Л-55 - Л-64 Заготовки асбестоцементных листов Л-53 - Л-54; Л-65 - Л-76 Заготовки асбестоцементных листов Л-77 - Л-90 |
| Разработан: | ЦНИИЭП торгово-бытовых зданий и туристских комплексов |
| Утверждён: | 01.08.1980 Государственный комитет по гражданскому строительству и архитектуре при Госстрое СССР (196) |
| Расположен в: | |
| Нормативные ссылки: |













































































































