| ||||||||||||||||||||||||||||||
Скачать Типовые проектные решения 402-11-0145.87 Альбом I. Пояснительная записка и чертежиДата актуализации: 10.08.2017
|
| Обозначение: | Типовые проектные решения 402-11-0145.87 |
| Обозначение англ: | 402-11-0145.87 |
| Статус: | cправочные материалы, мп, тпр |
| Название рус.: | Альбом I. Пояснительная записка и чертежи |
| Дата добавления в базу: | 01.09.2013 |
| Дата актуализации: | 05.05.2017 |
| Дата введения: | 30.09.1987 |
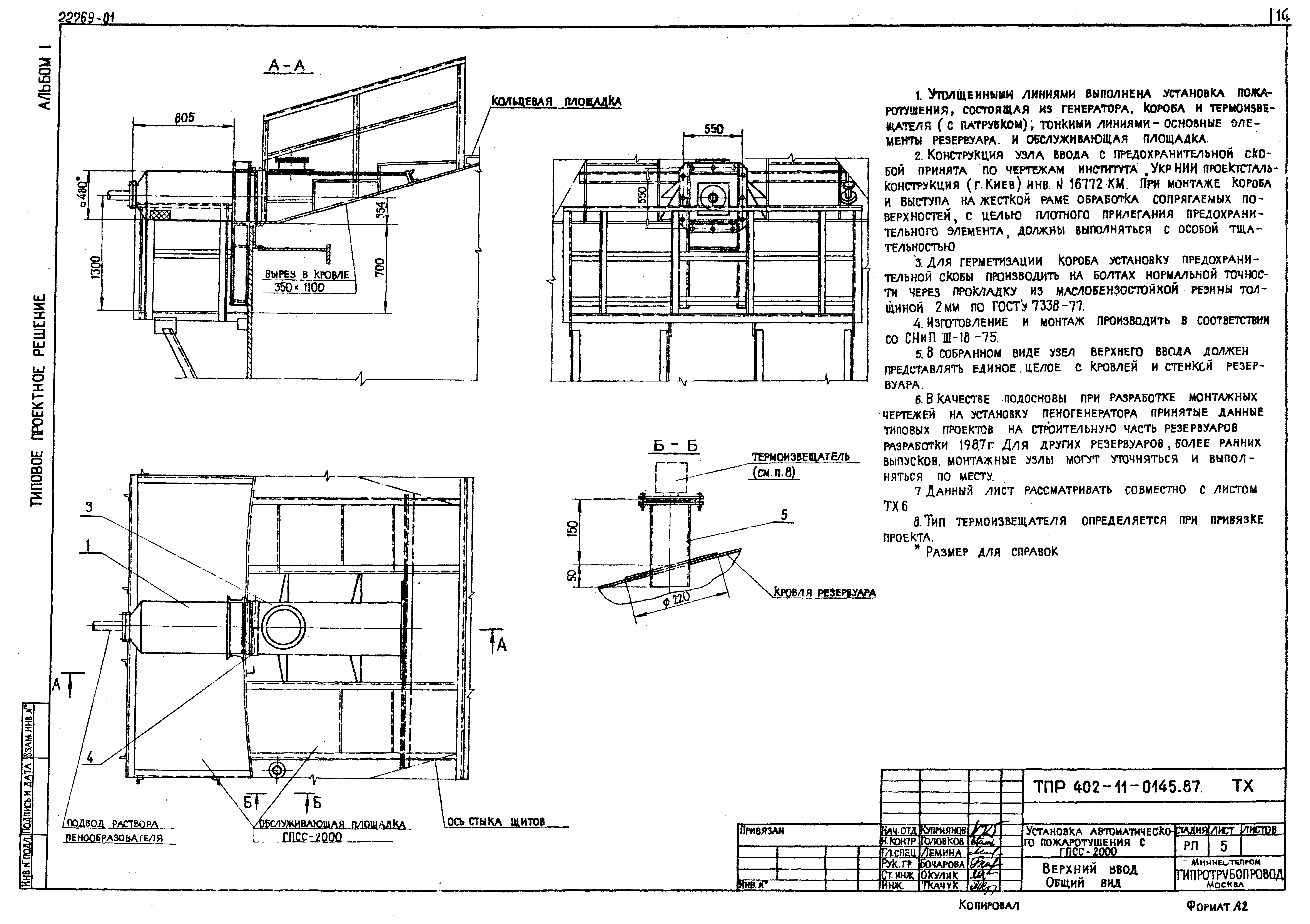
| Оглавление: | Опись альбома ПЗ1 - ПЗ7 Пояснительная записка Технологическое оборудование ТХ1 Общие данные ТХ2 Установка автоматического пожаротушения с ГВПС-200. Общий вид ТХ3 Установка автоматического пожаротушения с ГВПС-200. Узлы. Разрезы ТХ4 Установка автоматического пожаротушения с ГПСС-600. Общий вид ТХ5 Установка автоматического пожаротушения с ГПСС-2000. Верхний ввод. общий вид ТХ6 Установка автоматического пожаротушения с ГПСС-2000. Верхний ввод. Общий вид короба ТХ7 Установка автоматического пожаротушения с ГПСС-2000. Боковой ввод. общий вид |
| Разработан: | Гипротрубопровод Миннефтепрома (Giprotruboprovod, Minnefteprom ) |
| Утверждён: | 30.09.1987 Миннефтепром СССР (335"Э") |
| Издан: | ЦИТП Госстроя СССР (CITP, Gosstroy (USSR) 1989 г. ) |
| Расположен в: | |
| Заменяет собой: |
|

















