| ||||||||||||||||||||||||
Скачать Пионерские лагеря. Иллюстрированный каталог типовых проектов санаторно-оздоровительных и туристских зданий и сооруженийДата актуализации: 10.08.2017 |
| Статус: | действует |
| Название рус.: | Пионерские лагеря. Иллюстрированный каталог типовых проектов санаторно-оздоровительных и туристских зданий и сооружений |
| Дата добавления в базу: | 01.09.2013 |
| Дата актуализации: | 05.05.2017 |
| Область применения: | Цель издания — ознакомление проектировщиков, архитекторов, руководителей проектных организаций, партийных, профсоюзных и советских работников, занимающихся вопросами строительства оздоровительных учреждений и учреждений отдыха, с действующими типовыми проектами (на 01.01.1981 г.) по отрасли курортно—оздоровительного строительства. |
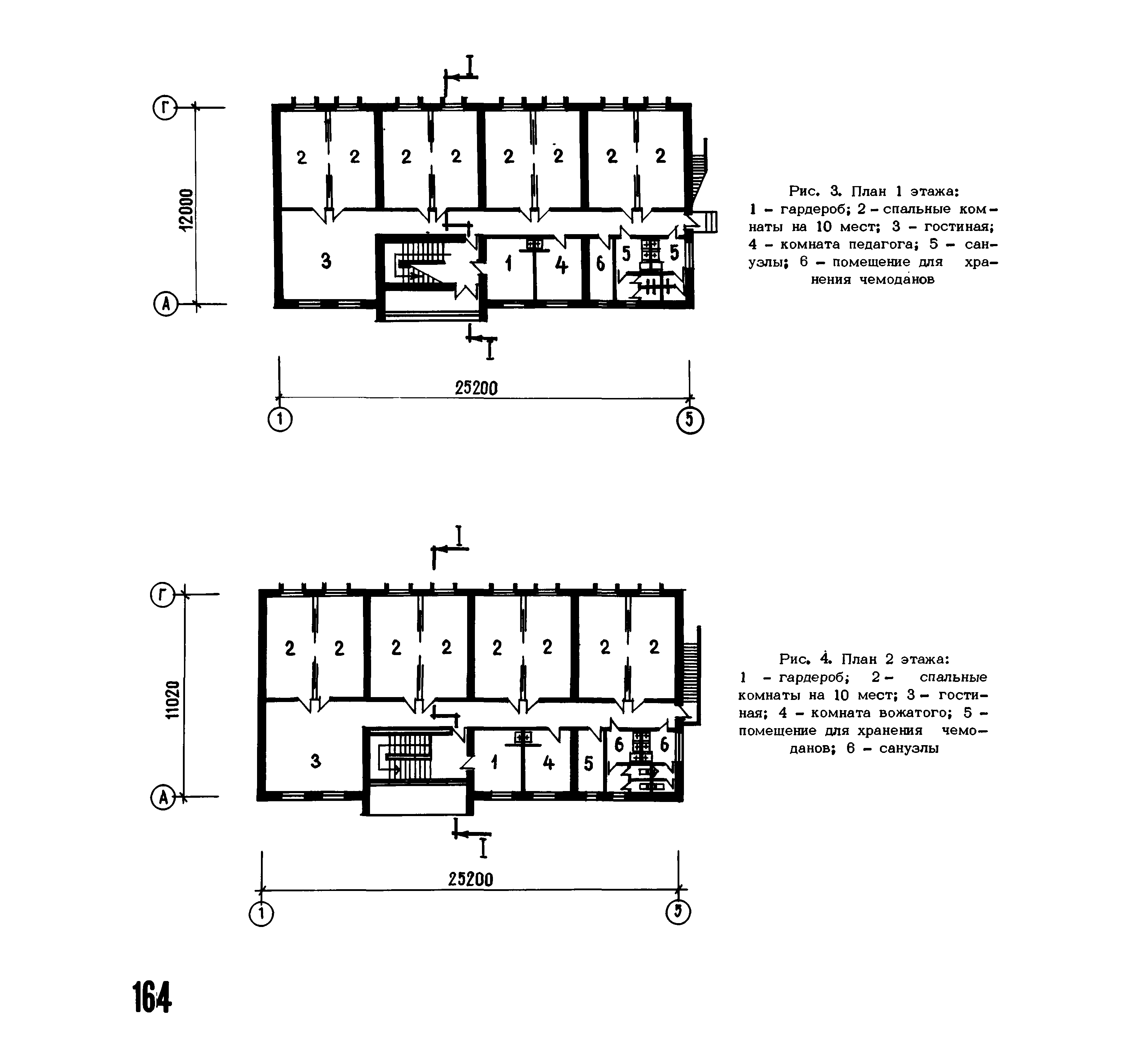
| Оглавление: | 1. Пионерские лагеря - базы отдыха Пионерский лагерь - база отдыха на 720 - 640 мест Пионерский лагерь - база отдыха на 720 - 600 мест Пионерский лагерь - база отдыха на 640 - 500 мест Пионерский лагерь - база отдыха на 360 - 288 мест (со стенами из кирпича) Пионерский лагерь - база отдыха на 320 - 280 мест (со стенами из местных материалов) Пионерский лагерь - база отдыха на 240 - 210 мест 2. Пионерские лагеря санаторного типа Пионерский лагерь санаторного типа на 510 мест Лечебный блок для пионерского лагеря санаторного типа на 720 мест (стены кирпичные) Лечебно-учебный корпус для пионерского лагеря санаторного типа на 500 мест (со стенами из местных материалов и кирпича) Лечебно-учебный корпус для пионерского лагеря санаторного типа на 500 мест (в конструкциях серии ИИ-04) 3. Клубы-столовые пионерских лагерей - баз отдыха Клуб-столовая с обеденным залом на 360 - 300 посадочных мест пионерского лагеря - базы отдыха на 720 - 600 мест (со стенами из кирпича и внутренним каркасом) Приложение 1 Приложение 2 |
| Разработан: | ЦНИИЭП курортно-туристских зданий и комплексов Госгражданстроя |
| Утверждён: | ЦНИИЭП курортно-туристских зданий и комплексов Госгражданстроя |
| Издан: | Госгражданстрой (1982 г. ) |
| Расположен в: |























































































































































































































































