| ||||||||||||||||||||||||||
Скачать Типовые материалы для проектирования 902-03-87.88 Альбом 2. Технологические решения. Генеральный план. Организация строительстваДата актуализации: 10.08.2017
|
| Обозначение: | Типовые материалы для проектирования 902-03-87.88 |
| Обозначение англ: | 902-03-87.88 |
| Статус: | cправочные материалы, мп, тпр |
| Название рус.: | Альбом 2. Технологические решения. Генеральный план. Организация строительства |
| Дата добавления в базу: | 01.09.2013 |
| Дата актуализации: | 05.05.2017 |
| Дата введения: | 05.11.1984 |
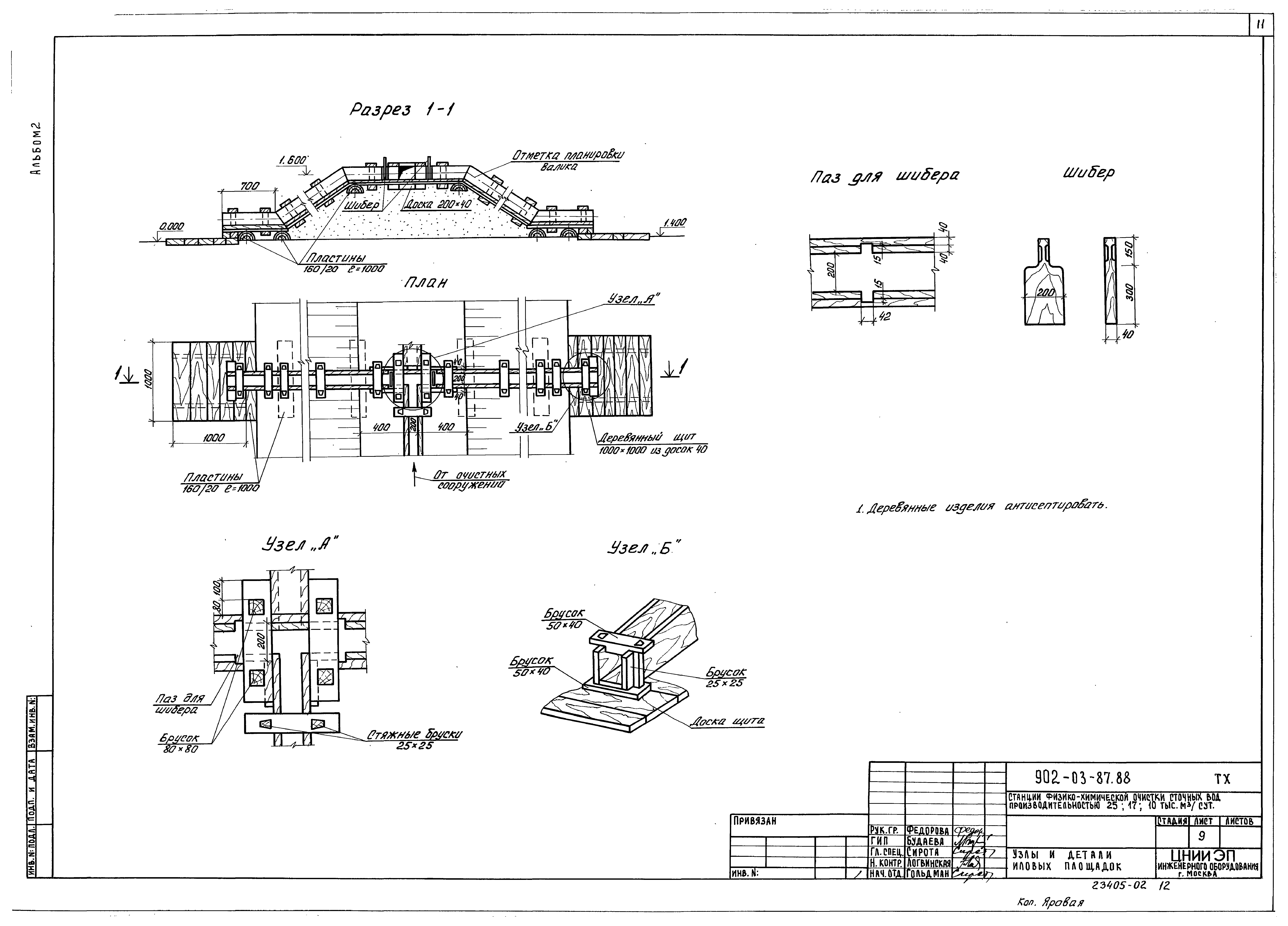
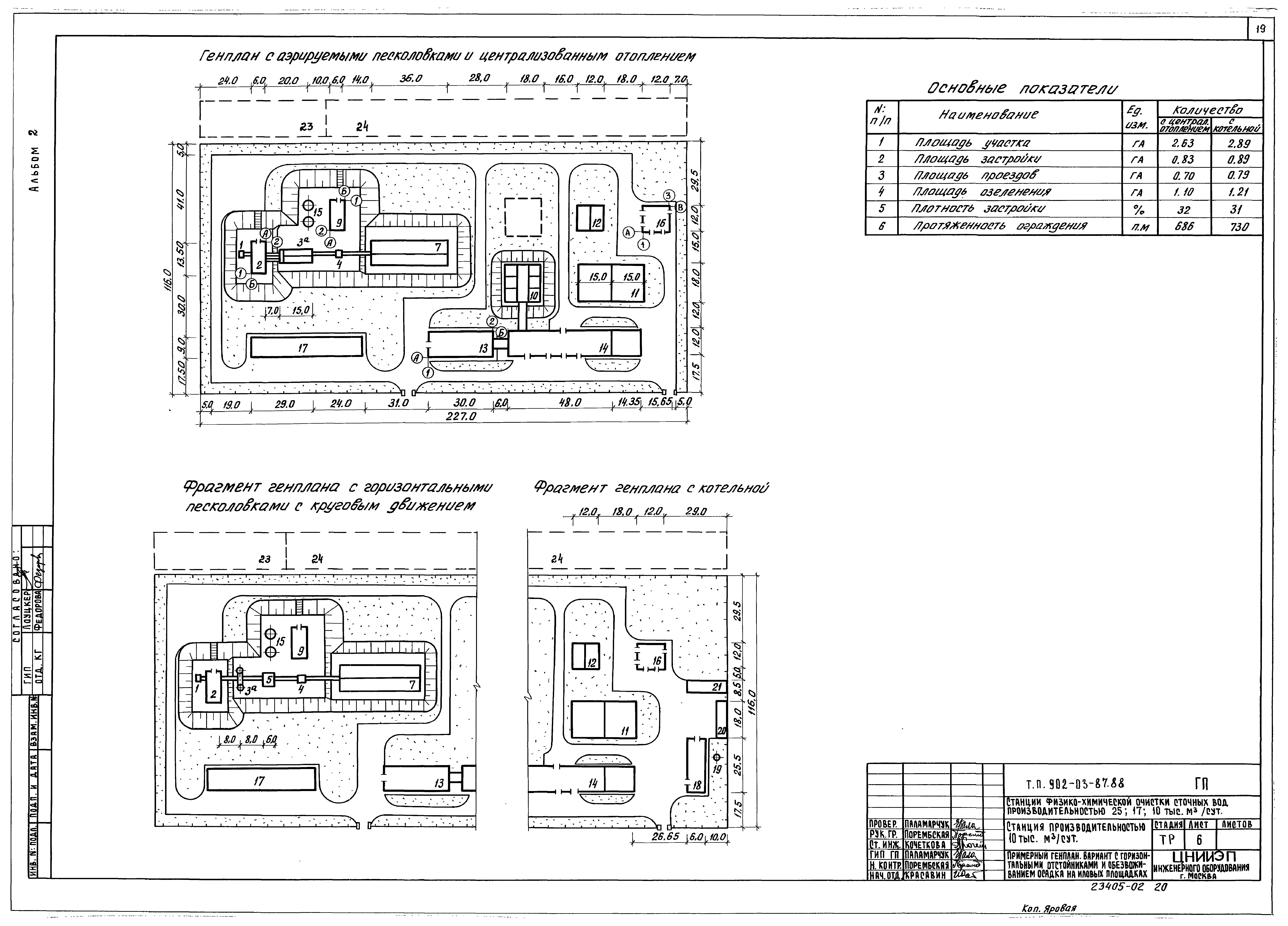
| Оглавление: | Содержание альбома Технологическая схема. Вариант с горизонтальными отстойниками и обезвоживанием осадка на центрифугах Технологическая схема. Вариант с горизонтальными отстойниками и обезвоживанием осадка на иловых площадках Технологическая схема. Вариант с радиальными отстойниками и обезвоживанием осадка на центрифугах Технологическая схема. Вариант с радиальными отстойниками и обезвоживанием осадка на иловых площадках Экспликация основного оборудования. Экспликация сооружений. Условные обозначения Станция производительностью 25 тыс. куб. м/сутки. Схема высотного расположения сооружений станции Станция производительностью 17 тыс. куб. м/сутки. Схема высотного расположения сооружений станции Станция производительностью 10 тыс. куб. м/сутки. Схема высотного расположения сооружений станции Узлы и детали иловых площадок Детали иловых площадок. Конструкция дренажей и дренажных труб Детали иловых площадок. Схема илового колодца Станции производительностью 25; 17 тыс. куб. м/сутки Примерный генплан. Вариант с горизонтальными отстойниками и обезвоживанием осадка на центрифугах Примерный генплан. Вариант с горизонтальными отстойниками и обезвоживанием осадка на иловых площадках Примерный генплан. Вариант с радиальными отстойниками и обезвоживанием осадка на центрифугах Примерный генплан. Вариант с радиальными отстойниками и обезвоживанием осадка на иловых площадках Станция производительностью 10 тыс. куб. м/сутки Примерный генплан. Вариант с горизонтальными отстойниками и обезвоживанием осадка на центрифугах Примерный генплан. Вариант с горизонтальными отстойниками и обезвоживанием осадка на иловых площадках Примерный генплан. Вариант с радиальными отстойниками и обезвоживанием осадка на центрифугах Примерный генплан. Вариант с радиальными отстойниками и обезвоживанием осадка на иловых площадках Станции производительностью 25; 17 тыс. куб. м/сутки Схема стройгенплана Станция производительностью 10 тыс. куб. м/сутки Схема стройгенплана |
| Разработан: | ЦНИИЭП иженерного оборудования |
| Утверждён: | 05.11.1984 Госгражданстрой (Gosgrazhdanstroy 320) |
| Расположен в: |























