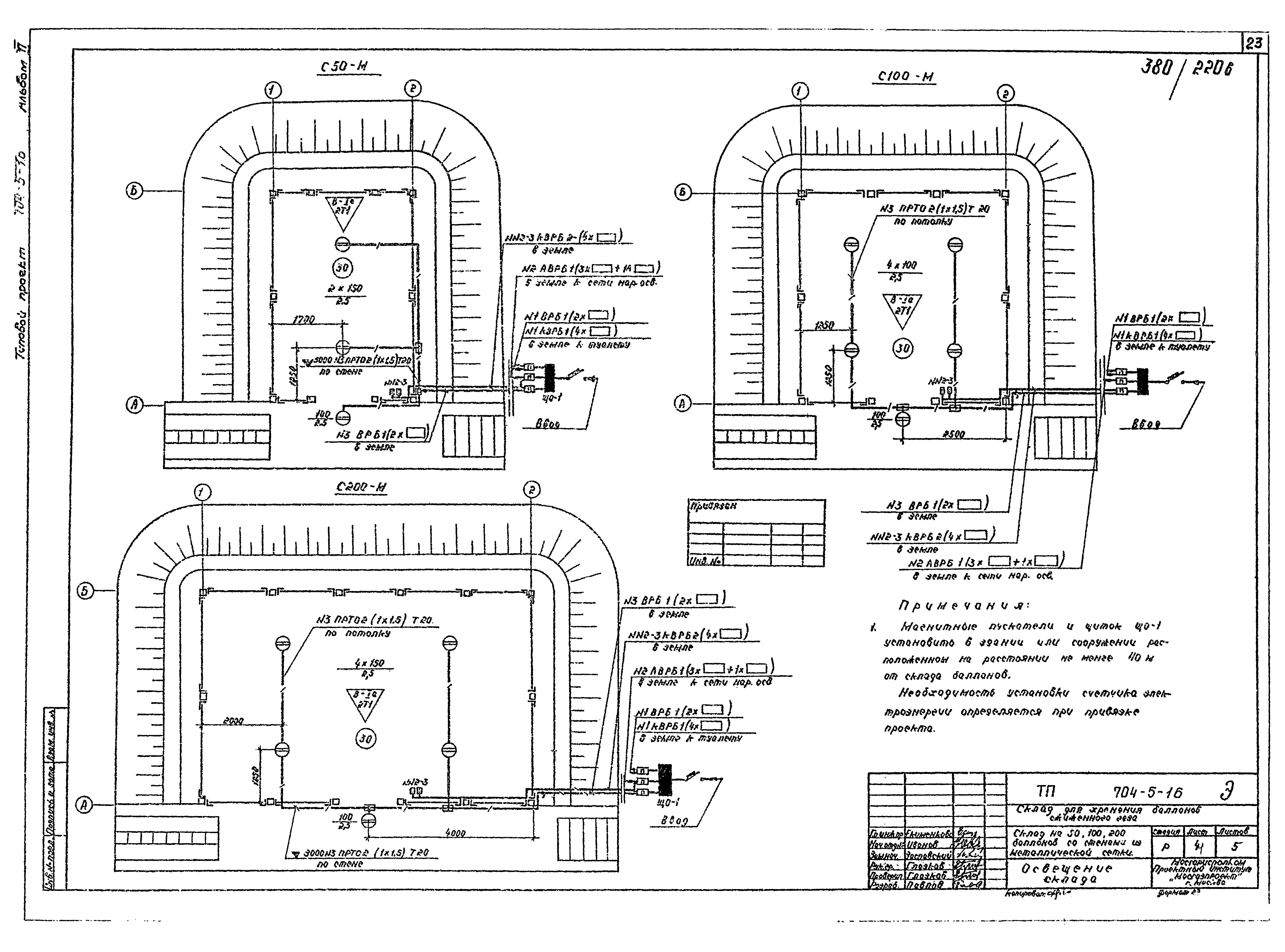
Скачать Типовой проект 704-5-16 Альбом II. Склады на 50, 100, 200 баллонов со стенами из металлической сетки. Архитектурно-строительные и электрические чертежиДата актуализации: 10.08.2017 Типовой проект 704-5-16
Альбом II. Склады на 50, 100, 200 баллонов со стенами из металлической сетки. Архитектурно-строительные и электрические чертежиОбозначение: | Типовой проект 704-5-16 | Обозначение англ: | 704-5-16 | Статус: | действует | Название рус.: | Альбом II. Склады на 50, 100, 200 баллонов со стенами из металлической сетки. Архитектурно-строительные и электрические чертежи | Дата добавления в базу: | 01.02.2017 | Дата актуализации: | 05.05.2017 | Разработан: | Мосгазниипроект Мосгорисполкома
| Утверждён: | 13.12.1979 МосгазНИИпроект (181)
| Расположен в: |
| Заменяет собой: | - Типовой проект 704-5-1/71
|
                       
|