| ||||||||||||||||||||||||
Скачать Типовые проектные решения 416-09-22.83 Выпуск 3. Примеры планировочных решений встроенных помещений общественного питанияДата актуализации: 10.08.2017
|
| Обозначение: | Типовые проектные решения 416-09-22.83 |
| Обозначение англ: | 416-09-22.83 |
| Статус: | cправочные материалы, мп, тпр |
| Название рус.: | Выпуск 3. Примеры планировочных решений встроенных помещений общественного питания |
| Дата добавления в базу: | 01.09.2013 |
| Дата актуализации: | 05.05.2017 |
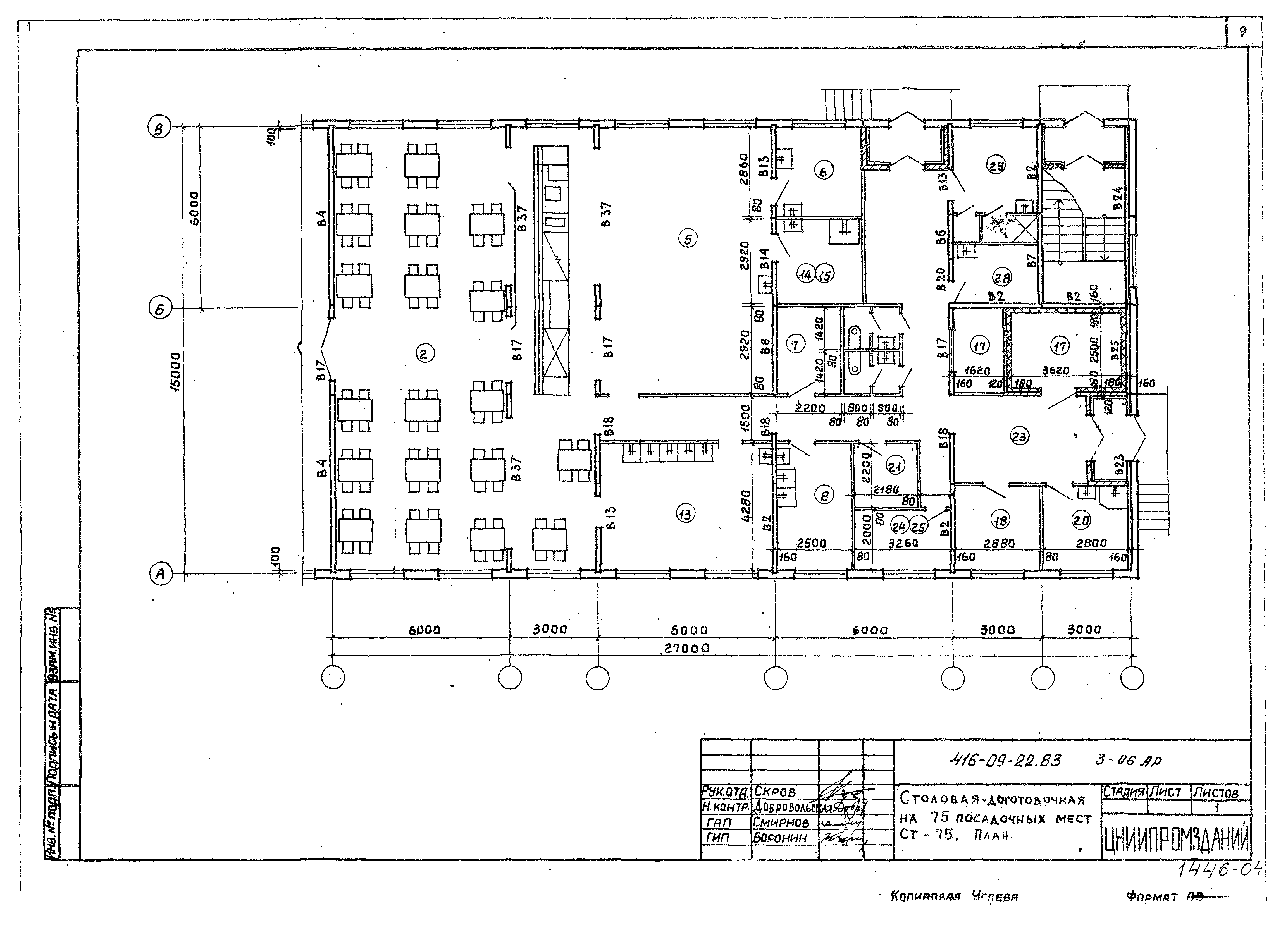
| Оглавление: | 3-00ПЗ Пояснительная записка 3-01АР Буфеты на 16 и 24 посадочных мест БУ-16 и БУ-24. Планы 3-02АР Буфеты на 40 посадочных мест БУ-40-1 и БУ-40-2. Планы 3-03АР Столовые - доготовочные. Экспликация помещений 3-04АР Столовая - доготовочная на 50 посадочных мест Ст-50-1. План 3-05АР Столовая - доготовочная на 50 посадочных мест Ст-50-2. План 3-06АР Столовая - доготовочная на 75 посадочных мест Ст-75. План 3-07ТХ Пояснительная записка 3-08ТХ Буфеты на 16, 24 и 40 мест. Спецификация оборудования 3-09ТХ Буфет на 16 мест БУ-16 3-10ТХ Буфет на 24 места БУ-24 3-11ТХ Буфет на 40 посадочных мест БУ-40-1 3-12ТХ Буфет на 40 посадочных мест БУ-40-2 3-13ТХ Столовые - доготовочные на 50 и 75 мест. Ст-50-1, Ст-50-2, Ст-75. Спецификация оборудования 3-14ТХ Столовая - доготовочная на 50 мест Ст-50-1 3-14ТХ Столовая - доготовочная на 50 мест Ст-50-1. Привязка подводок коммуникаций 3-15ТХ Столовая - доготовочная на 50 мест Ст-50-2 3-15ТХ Столовая - доготовочная на 50 мест Ст-50-2. Привязка подводок коммуникаций 3-16ТХ Столовая - доготовочная на 75 мест Ст-75 3-16ТХ Столовая - доготовочная на 75 мест Ст-75. Привязка подводок коммуникаций 3-17ТХ Столовые - доготовочные на 50 и 75 мест Ст-50-1, Ст-50-2, Ст-75. привязка местных вентотсосов и лотков |
| Разработан: | ЦНИИпромзданий Гипроторг Минторга СССР Промстройпроект |
| Утверждён: | 24.06.1983 Госстрой СССР (Государственный комитет Совета Министров СССР по делам строительства) (USSR Gosstroy ВА-25) |
| Расположен в: |






























