| ||||||||||||||||||||||||||||||
Скачать Серия 7.401-2 Выпуск 3. Узлы крепления трубопроводов Ду200. Рабочие чертежиДата актуализации: 10.08.2017
|
| Обозначение: | Серия 7.401-2 |
| Обозначение англ: | Series 7.401-2 |
| Статус: | не определен законодательством |
| Название рус.: | Выпуск 3. Узлы крепления трубопроводов Ду200. Рабочие чертежи |
| Дата добавления в базу: | 01.09.2013 |
| Дата актуализации: | 05.05.2017 |
| Дата введения: | 25.10.1990 |
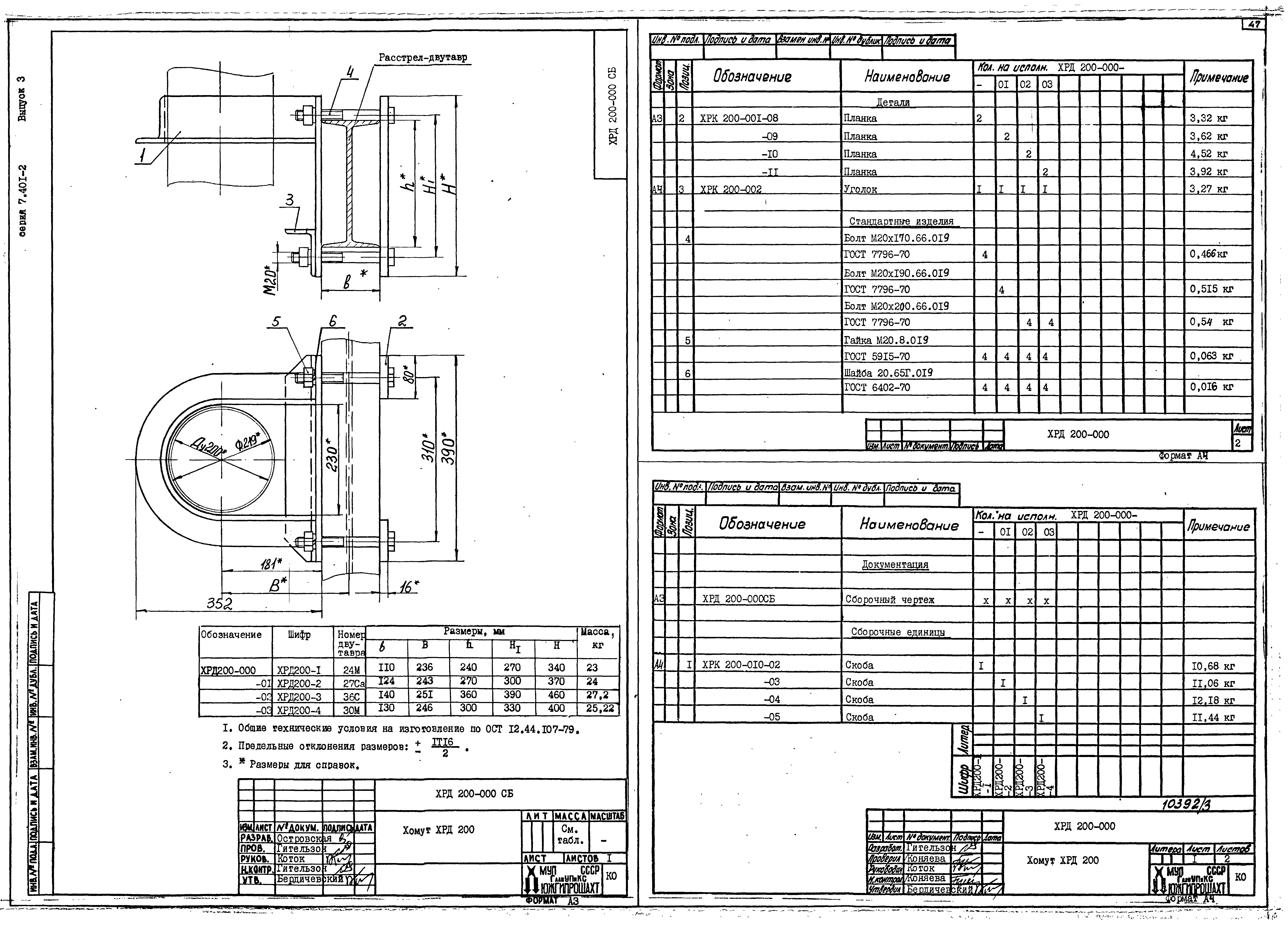
| Оглавление: | Содержание ПЗ Пояснительная записка 1ФС200-000 Фланцы Ду200 стальные свободные на приварном кольце 2ФС200-000 Фланцы Ду200 с выступом или впадиной свободные на приварном кольце 3ФС200-000 Фланцы Ду200 с выступом или впадиной свободные на приварном бурте ФП200-001 Фланцы Ду200 с выступом или впадиной стальные приварные встык 1СОУ200-000 Стул опорный Ду200 Ру 1,0; 1,6; 2,5 МПа, узкий 2СОУ200-000 Стул опорный Ду200 Ру 4,0; 6,3 МПа, узкий 3СОУ200-000 Стул опорный Ду200 Ру 10 МПа, узкий 1СОШ200-000 Стул опорный Ду200 Ру 1,0; 1,6; 2,5 МПа, широкий 2СОШ200-000 Стул опорный Ду200 Ру 4,0; 6,3 МПа, широкий 3СОШ200-000 Стул опорный Ду200 Ру 10 МПа, широкий 1КО200-000 Колено опорное Ду200 Ру 1,0; 1,6; 2,5 МПа 2КО200-000 Колено опорное Ду200 Ру 4,0; 6,3 МПа 3КО200-000 Колено опорное Ду200 Ру 10 МПа 1К200-000 Компенсатор Ду200 Ру 1,0; 1,6; 2,5 МПа 2К200-000 Компенсатор Ду200 Ру 4,0; 6,3 МПа 3К200-000 Компенсатор Ду200 Ру 10 МПа ХРК200-000 Хомут ХРК 200 ХРД200-000 Хомут ХРД 200 ХБ200-000 Хомут ХБ 200 ХТШ200-000 Хомут ХТШ 200 ПАП200-000 Подвеска ПАП 200 ПАКП200-000 Подвеска ПАКП 200 ПАСК200-000 Подвеска ПСК 200 ПВ200-000 Подвеска ПВ 200 ПБ200-000 Подвеска ПБ 200 ПШ200-000 Подвеска ПШ 200 ОГ200-000 Опоры ОГ 200 ОН200-000 Опоры ОН 200 УП200-000 Устройство противоугонное УП 200 |
| Разработан: | Южгипрошахт Минуглепрома СССР |
| Утверждён: | 25.10.1990 Минуглепром СССР (USSR Minugleprom 3-35-18/1079) |
| Издан: | Госстрой СССР (1991 г. ) |
| Расположен в: | |
| Заменяет собой: |
|






































































