| ||||||||||||||||||||||||||||||
Скачать Серия 7.401-2 Выпуск 1. Узлы крепления трубопроводов Ду100. Рабочие чертежиДата актуализации: 10.08.2017
|
| Обозначение: | Серия 7.401-2 |
| Обозначение англ: | Series 7.401-2 |
| Статус: | не определен законодательством |
| Название рус.: | Выпуск 1. Узлы крепления трубопроводов Ду100. Рабочие чертежи |
| Дата добавления в базу: | 01.09.2013 |
| Дата актуализации: | 05.05.2017 |
| Дата введения: | 25.10.1990 |
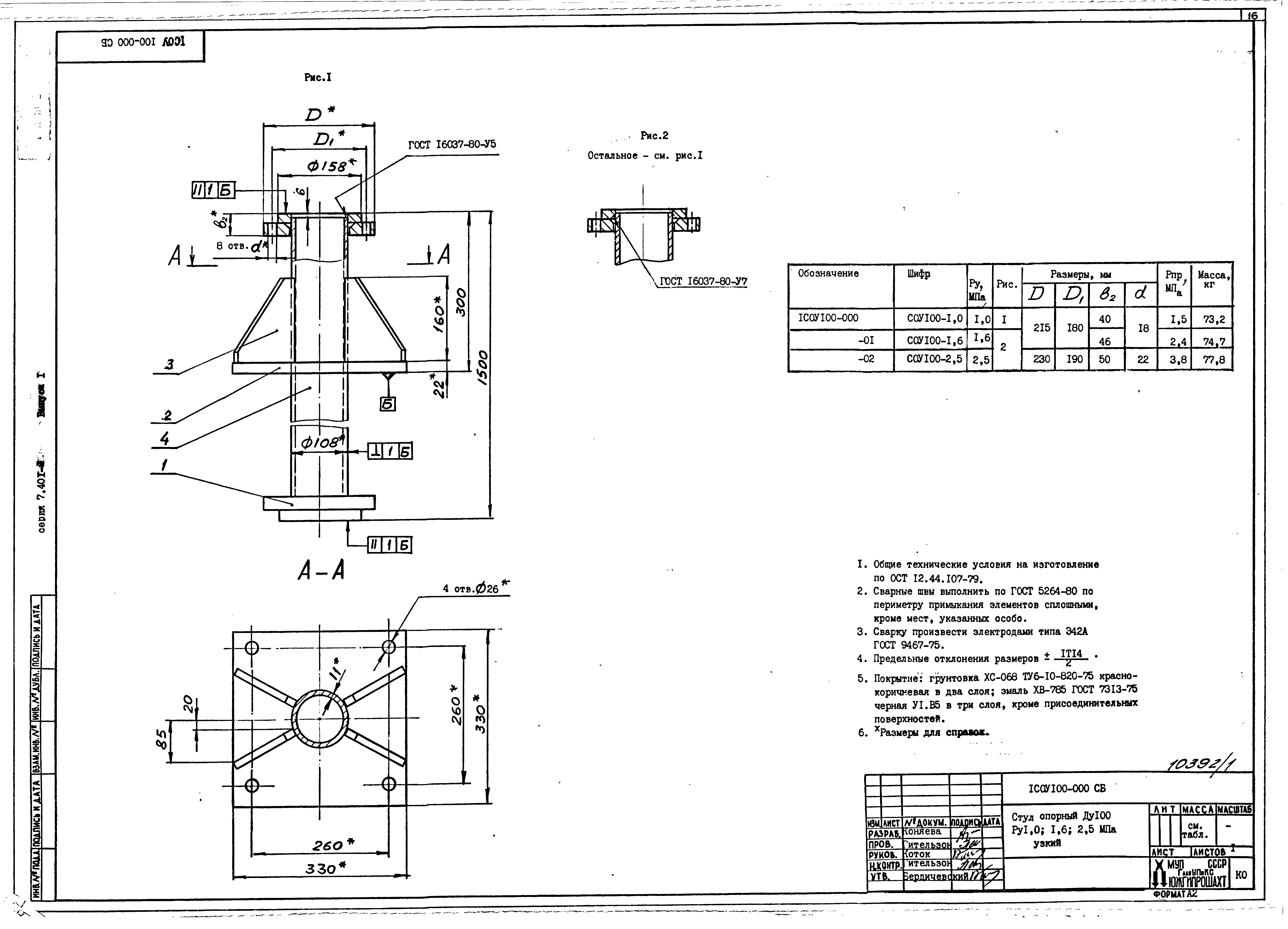
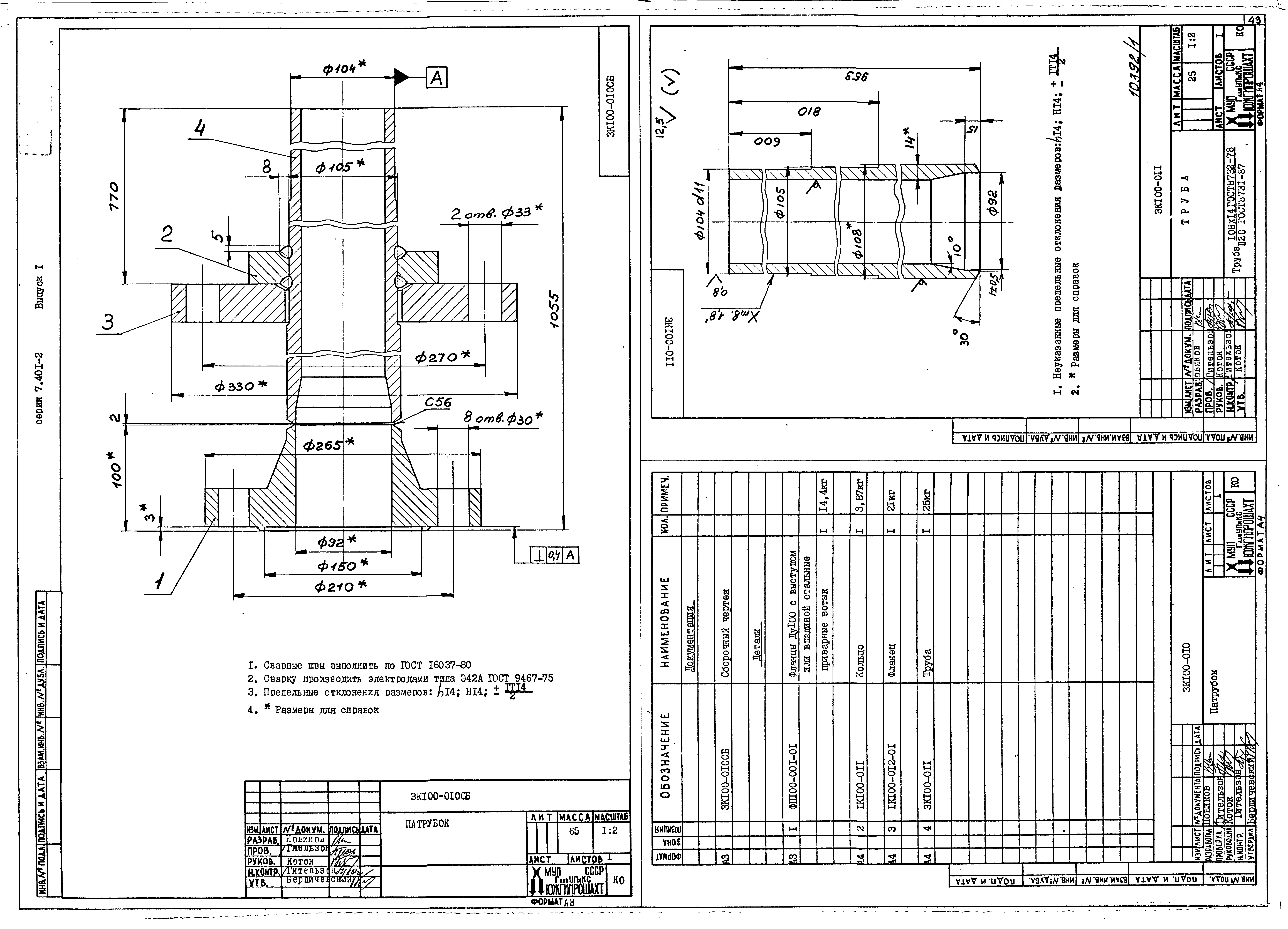
| Оглавление: | Содержание ПЗ Пояснительная записка 1ФС100-000 Фланцы Ду100 стальные свободные на приварном кольце 2ФС100-000 Фланцы Ду100 с выступом или впадиной свободные на приварном кольце 3ФС100-000 Фланцы Ду100 с выступом или впадиной свободные на приварном бурте ФП100-01 Фланцы Ду100 с выступом или впадиной стальные приварные встык 1СОУ100-000 Стул опорный ДУ100 Ру 1,0; 1,6; 2,5 МПа узкий 2СОУ100-000 Стул опорный ДУ100 Ру 4,0; 6,3 МПа узкий 3СОУ100-000 Стул опорный ДУ100 Ру 10 МПа узкий 1СОШ100-000 Стул опорный ДУ100 Ру 1,0; 1,6; 2,5 МПа широкий 2СОШ100-000 Стул опорный ДУ100 Ру 4,0; 6,3 МПа широкий 3СОШ100-000 Стул опорный ДУ100 Ру 10 МПа широкий 1КО100-000 Колено опорное Ду100 Ру 1,0; 1,6; 2,5 МПа 2КО100-000 Колено опорное Ду100 Ру 4,0; 6,3 МПа 3КО100-000 Колено опорное Ду100 Ру 10 МПа 1К100-000 Компенсатор Ду100 Ру 1,0; 1,6; 2,5 МПа 2К100-000 Компенсатор Ду100 Ру 4,0; 6,3 МПа 3К100-000 Компенсатор Ду100 Ру 10 МПа ХРК100-000 Хомут ХРК 100 ХРД100-000 Хомут ХРД 100 ХБ100-000 Хомут ХБ 100 ХТШ100-000 Хомут ХТШ 100 ПАП100-000 Подвеска ПАП 100 ПАКП100-000 Подвеска ПАКП 100 ПСК100-000 Подвеска ПСК 100 ПВ100-000 Подвеска ПВ 100 ПБ100-000 Подвеска ПБ 100 ПШ100-000 Подвеска ПШ 100 ОГ100-000 Опоры ОГ 100 ОН100-000 Опоры ОН 100 УП100-000 Устройство противоугонное УП 100 |
| Разработан: | Южгипрошахт Минуглепрома СССР |
| Утверждён: | 25.10.1990 Минуглепром СССР (USSR Minugleprom 3-35-18/1079) |
| Издан: | Госстрой СССР (1991 г. ) |
| Расположен в: | |
| Заменяет собой: |
|








































































