Скачать Типовой проект 294-3-56.90 Альбом 4. Пояснительная записка. Электротехнические чертежи. Связь, сигнализация. Пожарная сигнализацияДата актуализации: 10.08.2017 Типовой проект 294-3-56.90
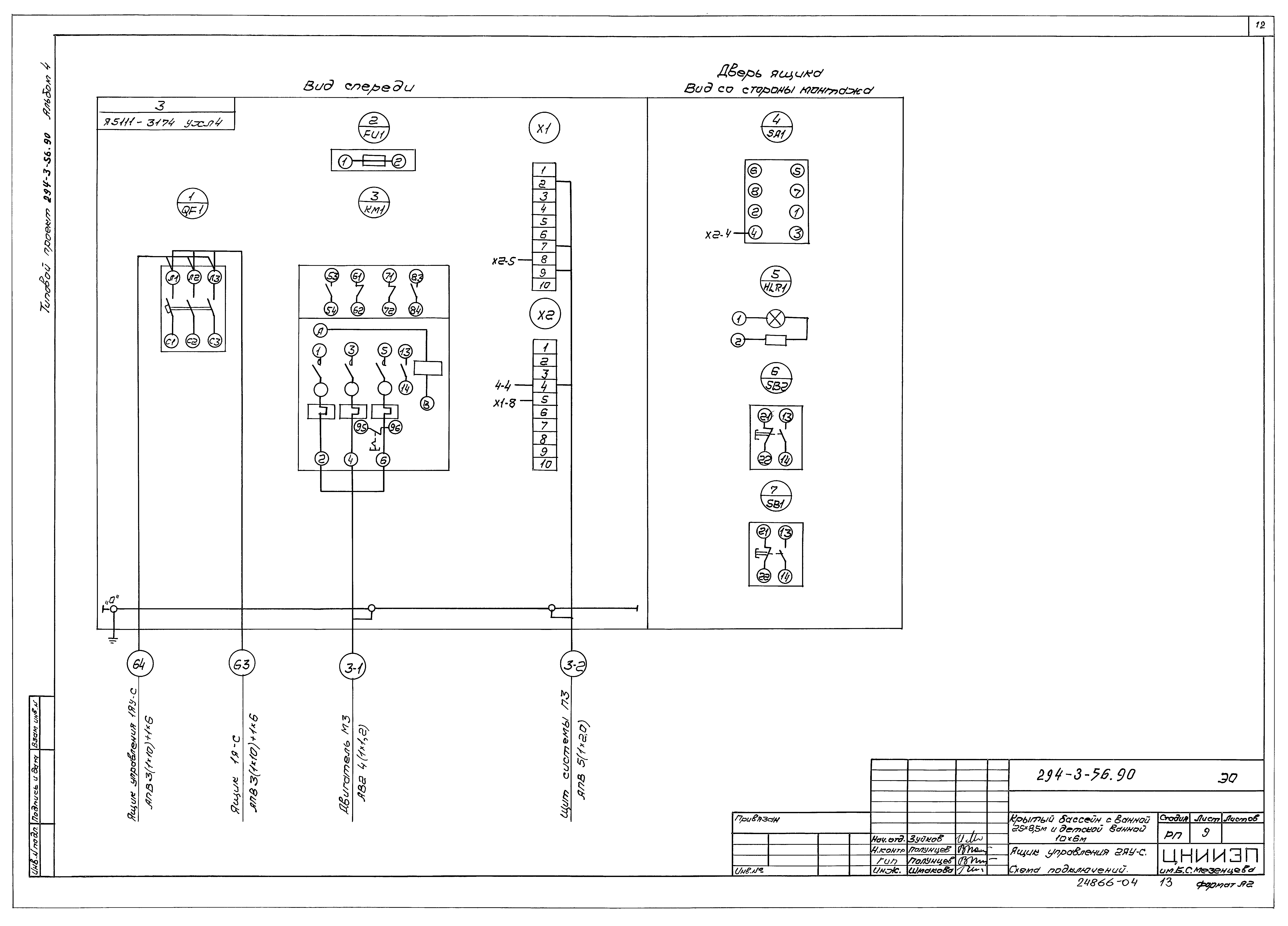
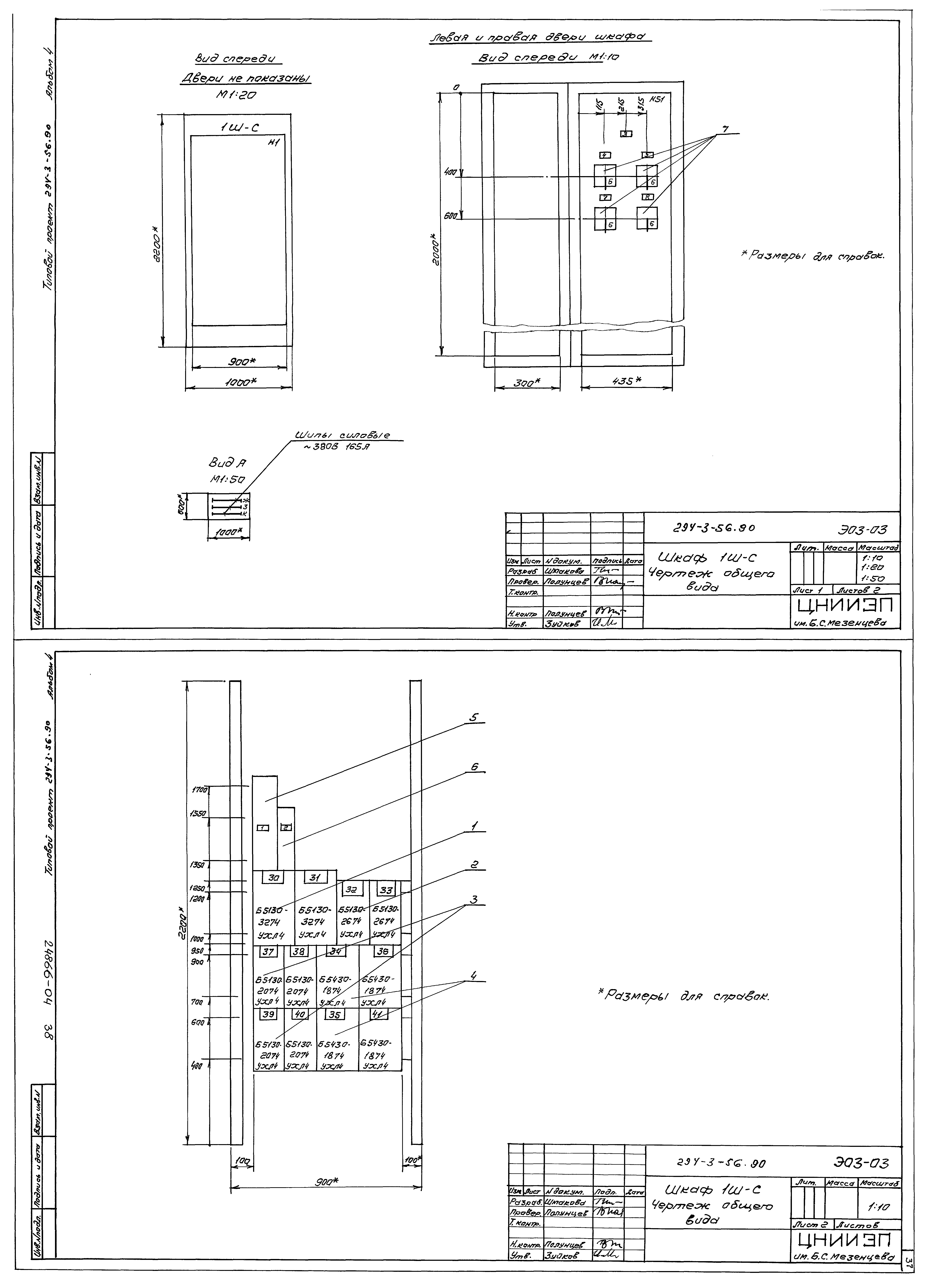
Альбом 4. Пояснительная записка. Электротехнические чертежи. Связь, сигнализация. Пожарная сигнализацияОбозначение: | Типовой проект 294-3-56.90 | Обозначение англ: | 294-3-56.90 | Статус: | не определен законодательством | Название рус.: | Альбом 4. Пояснительная записка. Электротехнические чертежи. Связь, сигнализация. Пожарная сигнализация | Дата добавления в базу: | 01.09.2013 | Дата актуализации: | 05.05.2017 | Дата введения: | 30.11.1990 | Оглавление: | Обложка Титульный лист Содержание альбома 4 Пояснительная записка Электрооборудование. Чертежи марки "ЭО" Ведомость чертежей основного комплекта. Ведомость прилагаемых документов Вводно-распределительное устройство ВРУ. Схема принципиальная однолинейная Шкаф 1Ш-С. Схема принципиальная однолинейная Ящики управления 1ЯУ-С - 10ЯУ-С. Схема принципиальная однолинейная Шкаф распределительный 1ШР-С. Схема принципиальная однолинейная Приводы 1, 3, 4, 6 - 10; 45, 47, 49, 50, 51, 52. ТЭНы 2, 5, 46, 48. Отключение вентиляции. Схемы принципиальные Приводы 30 - 40, 42. Схемы принципиальные Ящик управления 1ЯУ-С. Схема подключений Ящик управления 2ЯУ-С. Схема подключений Ящик управления 3ЯУ-С. Схема подключений Ящик управления 4ЯУ-С. Схема подключений Ящик управления 5ЯУ-С. Схема подключений Ящик управления 6ЯУ-С. Схема подключений Ящик управления 7ЯУ-С. Схема подключений Ящик управления 8ЯУ-С. Схема подключений Ящик управления 9ЯУ-С. Схема подключений Ящик управления 10ЯУ-С. Схема подключений Электроосвещение. План подвала. Венткамера. Расчетная схема питающей сети Электроосвещение. План 1-го этажа Электроосвещение. План 2-го этажа Трубно-кабельный журнал Установка электрооборудования и прокладка труб. План 1-го этажа Установка электрооборудования и прокладка труб. План 2-го этажа Установка электрооборудования и прокладка труб. Приточная венткамера Установка электрооборудования и прокладка труб. Вытяжная венткамера Установка электрооборудования и прокладка труб. Насосно-фильтровочная станция Установка электрооборудования и прокладка труб. Электрощитовая Сауна. Электроосвещение. Установка электрооборудования и прокладка труб Чертежи марки ЭОЗИ Вводно-распределительное устройство. Опросный лист Чертежи марки ЭОЗ Перечень комплектных устройств Таблица технических данных аппаратов Таблица перечня надписей Чертеж общего вида Схема электрическая соединений Связь и сигнализация. Чертежи марки "СС" Ведомость основного комплекта. Ведомость прилагаемых документов Схемы сетей Сети на планах подвала и 1-ом этаже Сети на планах 2-го этажа и кровли Пожарная сигнализация. Чертежи марки "ПС" Ведомость основного комплекта. Ведомость прилагаемых документов Сети на плане подвала. Схема сети "ПС" Сети на плане 1-го этажа Сети на плане 2-го этажа | Разработан: | ЦНИИЭП им. Б.С. Мезенцева Госгражданстроя
| Утверждён: | 30.11.1990 Госкомспорт СССР (USSR Goskomsport 432)
| Расположен в: |
|
                                              
|