Информационная система
«Ёшкин Кот»

Скачать базу одним архивом
Скачать обновления
История создания базы
Карта сайта

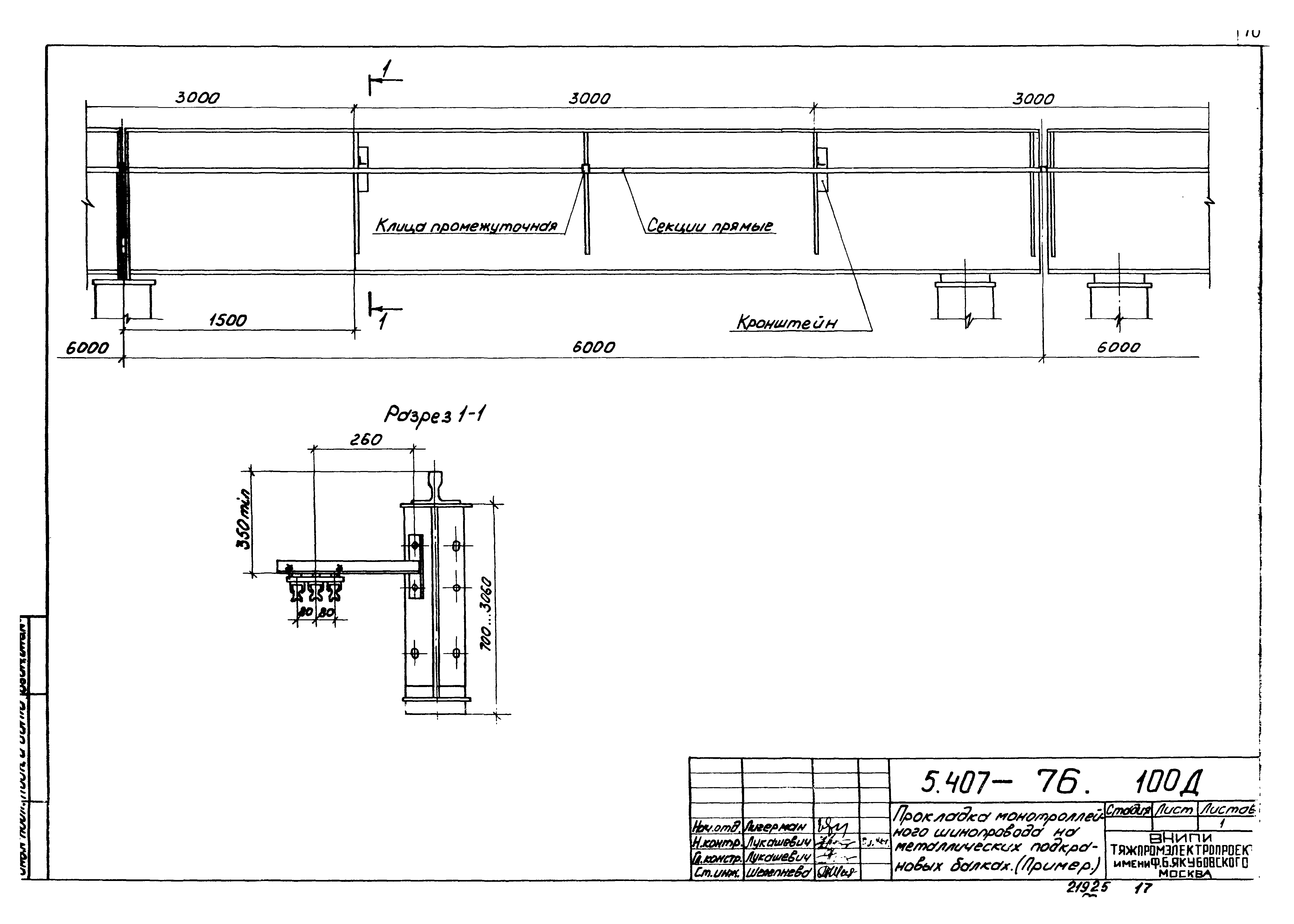
Скачать Серия 5.407-76 Прокладка монотроллейного шинопровода ШМТ-АУ2 на 400 А. Материалы для проектирования. Чертежи монтажные

Дата актуализации: 10.08.2017

Серия 5.407-76

Прокладка монотроллейного шинопровода ШМТ-АУ2 на 400 А. Материалы для проектирования. Чертежи монтажные

Обозначение: Серия 5.407-76
Обозначение англ: Series 5.407-76
Статус:не действует
Название рус.:Прокладка монотроллейного шинопровода ШМТ-АУ2 на 400 А. Материалы для проектирования. Чертежи монтажные
Дата добавления в базу:01.09.2013
Дата актуализации:05.05.2017
Дата введения:20.10.1986
Дата окончания срока действия:01.03.1991
Разработан: Главэлектромонтаж Минмонтажспецстроя СССР
Тяжпромэлектропроект им. Ф.Б. Якубовского
Утверждён:20.10.1986 Минмонтажспецстрой СССР (USSR Minmontazhspetsstroy )
Расположен в:Техническая документация Строительство Справочные документы Типовые строительные конструкции, изделия и узлы Общероссийский строительный каталог Строительные конструкции, изделия и узлы зданий и сооружений для всех видов строительства Инженерное оборудование Инженерное оборудование; изделия и узлы инженерного оборудования зданий и сооружений Электрооборудование и электросети Прокладка шинопроводов, кабелей, троллеев и электропроводок
Чем заменён:
Серия 5.407-76Серия 5.407-76Серия 5.407-76Серия 5.407-76Серия 5.407-76Серия 5.407-76Серия 5.407-76Серия 5.407-76Серия 5.407-76Серия 5.407-76Серия 5.407-76Серия 5.407-76Серия 5.407-76Серия 5.407-76Серия 5.407-76Серия 5.407-76Серия 5.407-76Серия 5.407-76Серия 5.407-76Серия 5.407-76Серия 5.407-76Серия 5.407-76Серия 5.407-76Серия 5.407-76Серия 5.407-76Серия 5.407-76Серия 5.407-76Серия 5.407-76Серия 5.407-76Серия 5.407-76Серия 5.407-76

© 2013 Ёшкин Кот :-) Карта сайта