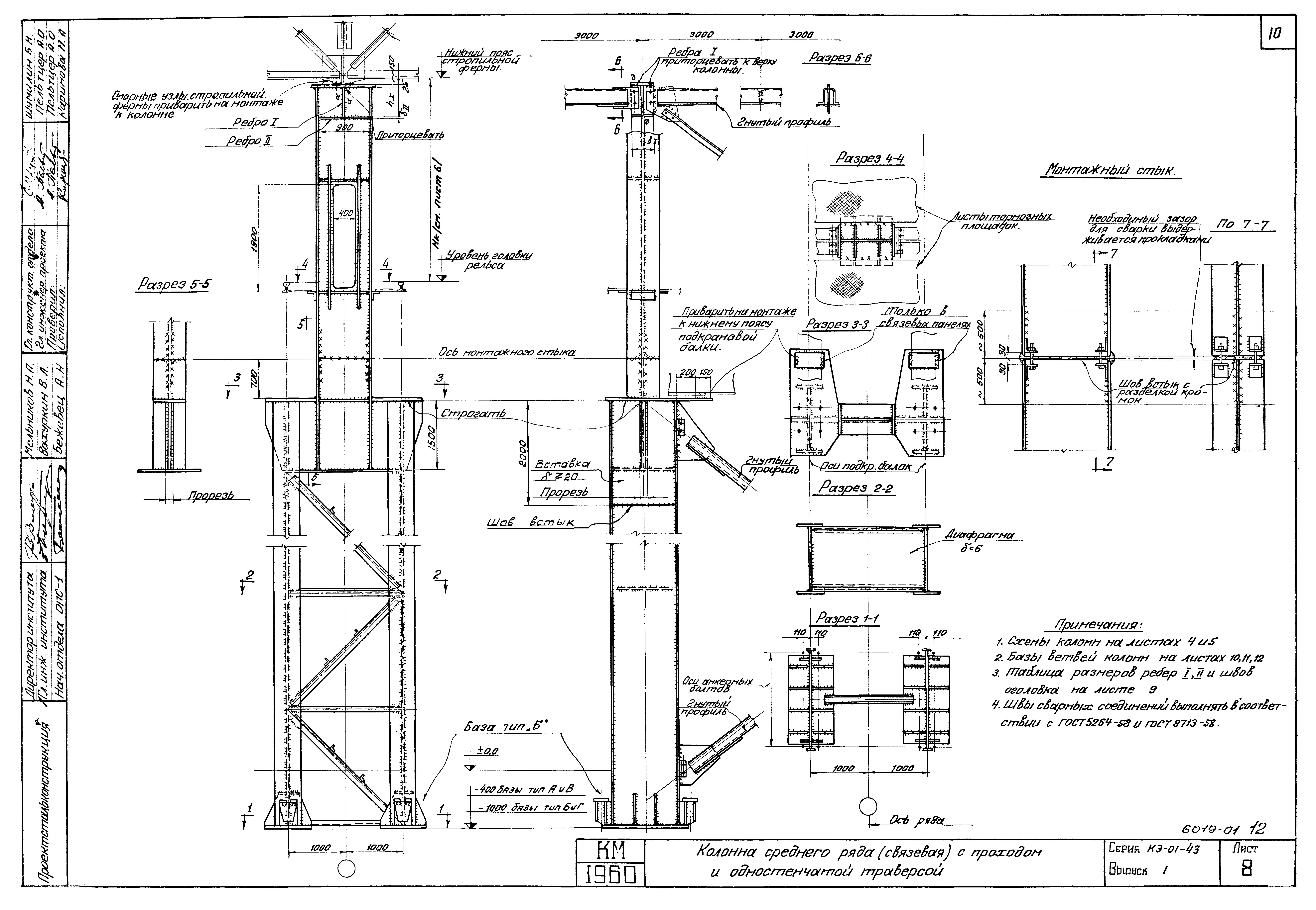
Скачать Серия КЭ-01-43 Выпуск I. Стальные колонны промышленных зданий с кранами грузоподъемностью до 250 т. Чертежи КМДата актуализации: 10.08.2017 Серия КЭ-01-43
Выпуск I. Стальные колонны промышленных зданий с кранами грузоподъемностью до 250 т. Чертежи КМ| Обозначение: | Серия КЭ-01-43 | | Обозначение англ: | Series КЭ-01-43 | | Статус: | не действует | | Название рус.: | Выпуск I. Стальные колонны промышленных зданий с кранами грузоподъемностью до 250 т. Чертежи КМ | | Дата добавления в базу: | 01.09.2013 | | Дата актуализации: | 05.05.2017 | | Разработан: | Проектстальконструкция Госстроя СССР
| | Утверждён: | 10.04.1961 Главстройпроект Госстроя СССР (54)
| | Расположен в: |
|
                       
|