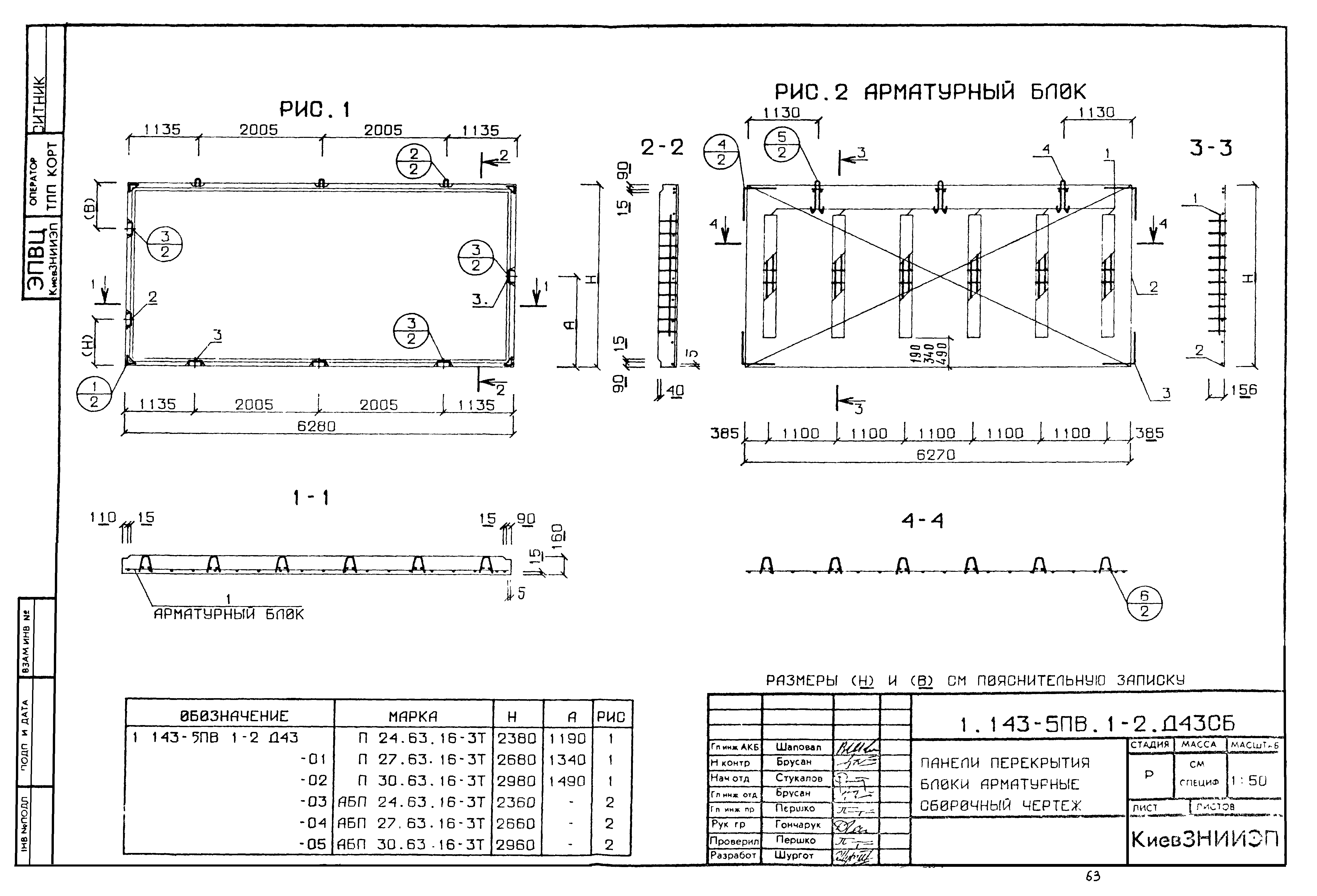
Скачать Серия 1.143-5пв Выпуск 1-2. Часть 2. Панели перекрытий сплошные железобетонные толщиной 160 ммДата актуализации: 10.08.2017 Серия 1.143-5пв
Выпуск 1-2. Часть 2. Панели перекрытий сплошные железобетонные толщиной 160 мм| Обозначение: | Серия 1.143-5пв | | Обозначение англ: | Series 1.143-5пв | | Статус: | не действует | | Название рус.: | Выпуск 1-2. Часть 2. Панели перекрытий сплошные железобетонные толщиной 160 мм | | Дата добавления в базу: | 01.09.2013 | | Дата актуализации: | 05.05.2017 | | Дата окончания срока действия: | 01.03.1986 | | Разработан: | КиевЗНИИЭП
| | Утверждён: | КиевЗНИИЭП (KievZNIIEP )
| | Расположен в: |
| | Чем заменён: | - Серия 1.143.1-8пв «Выпуск 1»
|
                                                                                                             
|