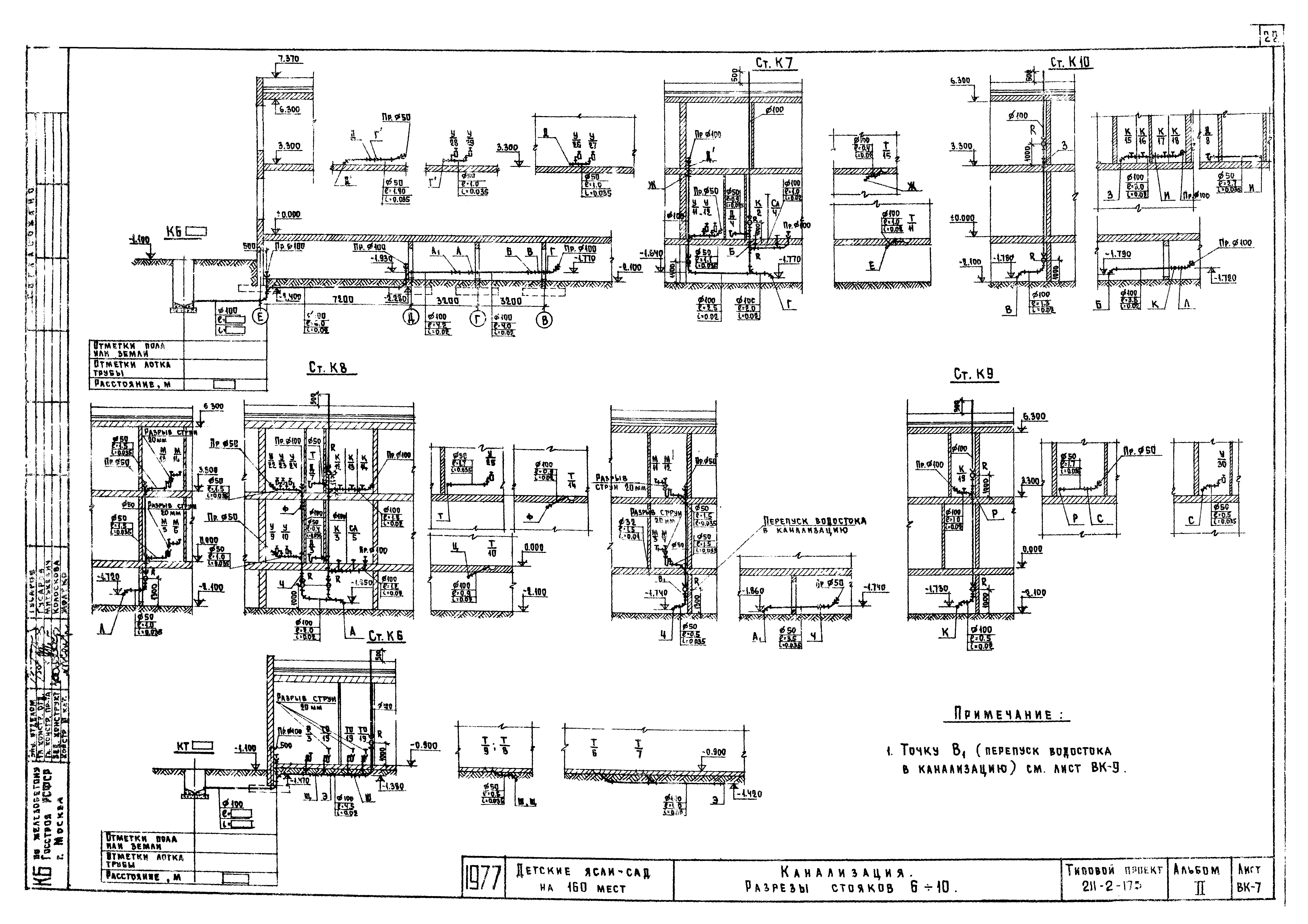
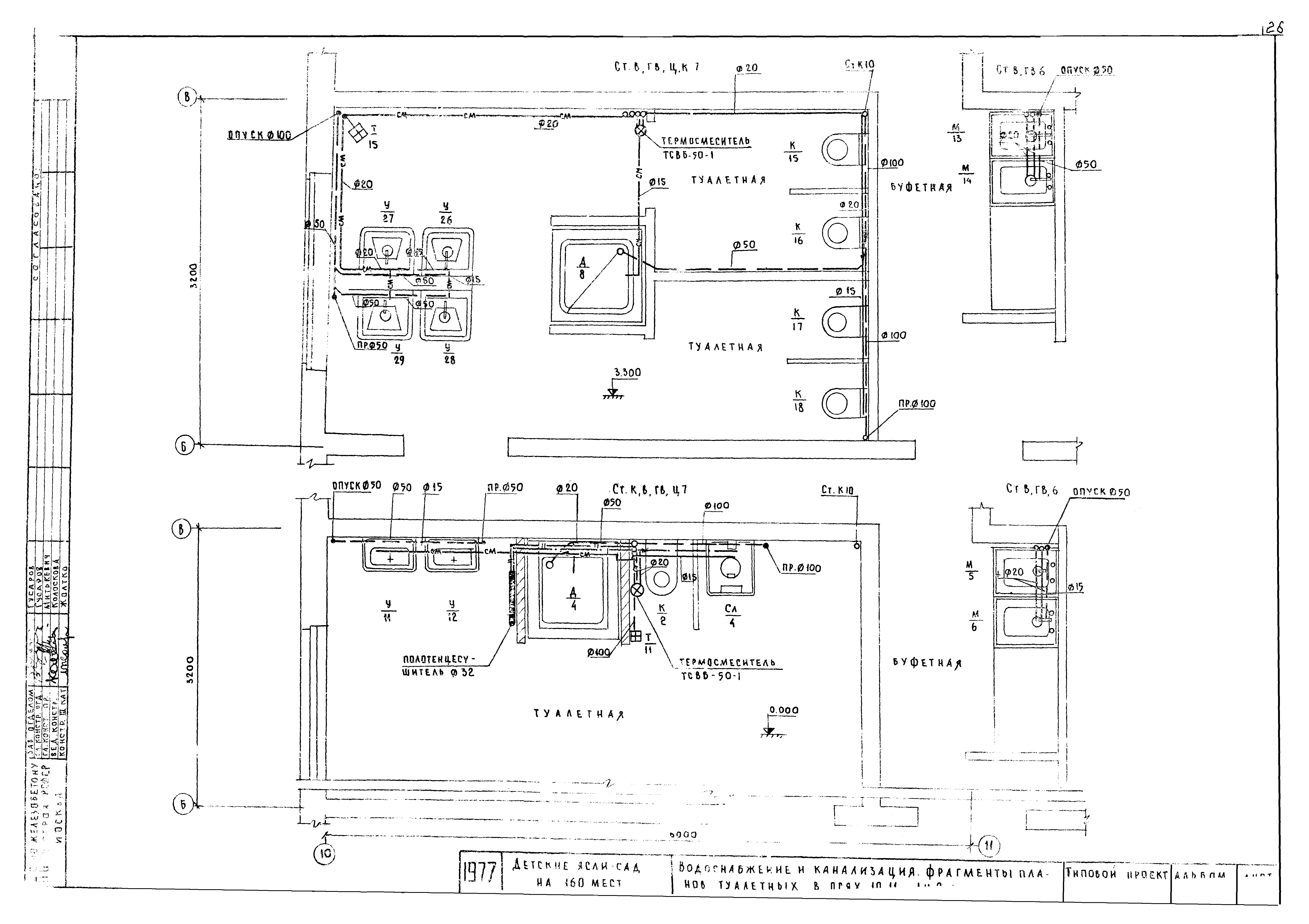
Скачать Типовой проект 211-2-175 Альбом II. Санитарно-технические чертежиДата актуализации: 10.08.2017 Типовой проект 211-2-175
Альбом II. Санитарно-технические чертежиОбозначение: | Типовой проект 211-2-175 | Обозначение англ: | 211-2-175 | Статус: | действует | Название рус.: | Альбом II. Санитарно-технические чертежи | Дата добавления в базу: | 01.09.2013 | Дата актуализации: | 05.05.2017 | Дата введения: | 17.11.1978 | Разработан: | КБ по железобетону Госстроя РСФСР
| Утверждён: | 29.09.1977 Госстрой РСФСР (Russian Federation Gosstroy 8-23-233)
| Расположен в: |
|
                            
|