Информационная система
«Ёшкин Кот»

Скачать базу одним архивом
Скачать обновления
История создания базы
Карта сайта

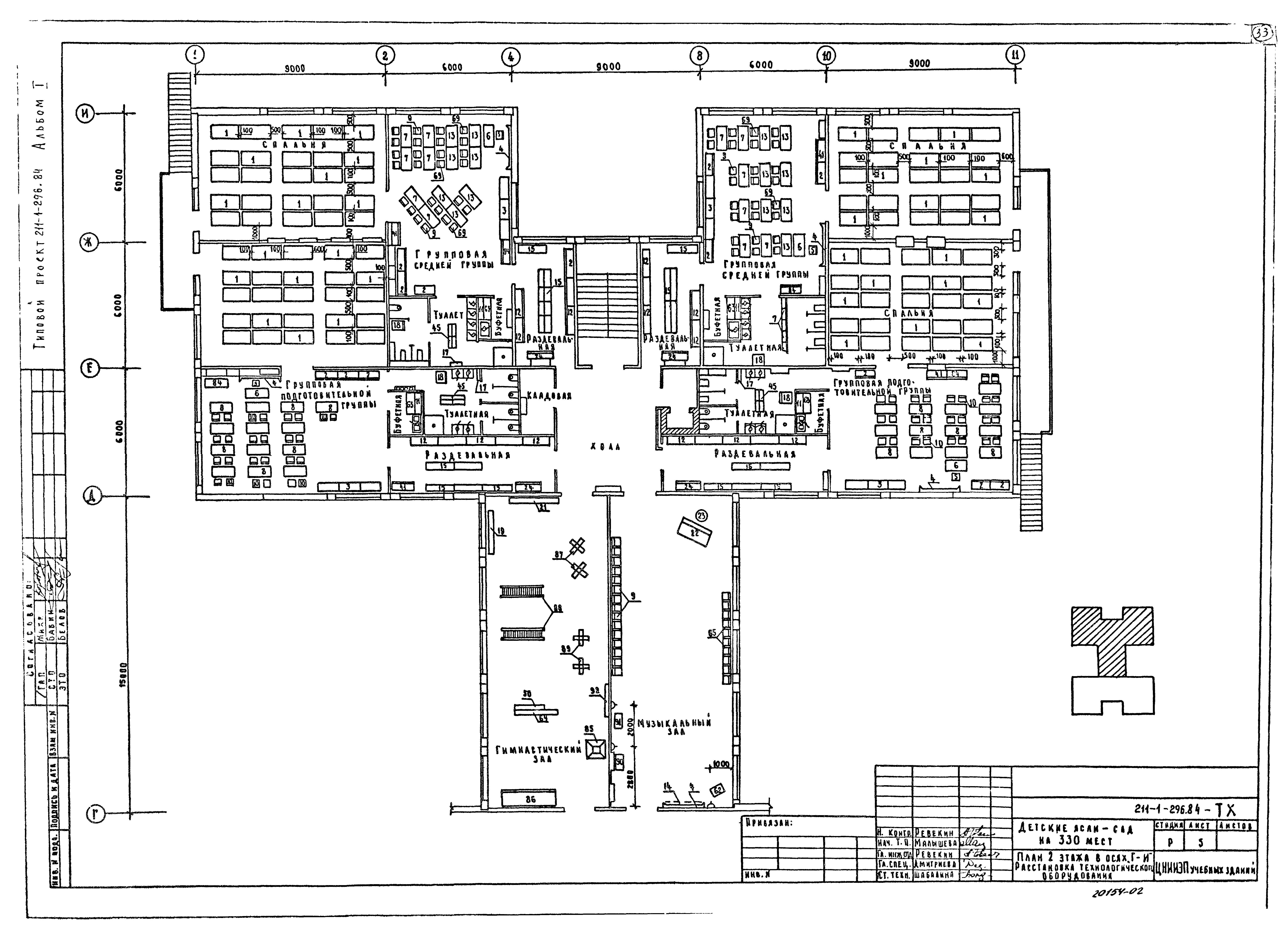
Скачать Типовой проект 211-1-296.84 Альбом I. Архитектурно-строительные и технологические чертежи

Дата актуализации: 10.08.2017

Типовой проект 211-1-296.84

Альбом I. Архитектурно-строительные и технологические чертежи

Обозначение: Типовой проект 211-1-296.84
Обозначение англ: 211-1-296.84
Статус:действует
Название рус.:Альбом I. Архитектурно-строительные и технологические чертежи
Дата добавления в базу:01.09.2013
Дата актуализации:05.05.2017
Дата введения:16.11.1984
Разработан: ЦНИИЭП учебных зданий Госгражданстроя
Утверждён:19.08.1983 Госгражданстрой (Gosgrazhdanstroy 240)
Расположен в:Техническая документация Строительство Справочные документы Типовые строительные конструкции, изделия и узлы Общероссийский строительный каталог Общественные здания в городах и поселках городского типа Детские дошкольные учреждения Детские ясли-сады
Типовой проект 211-1-296.84Типовой проект 211-1-296.84Типовой проект 211-1-296.84Типовой проект 211-1-296.84Типовой проект 211-1-296.84Типовой проект 211-1-296.84Типовой проект 211-1-296.84Типовой проект 211-1-296.84Типовой проект 211-1-296.84Типовой проект 211-1-296.84Типовой проект 211-1-296.84Типовой проект 211-1-296.84Типовой проект 211-1-296.84Типовой проект 211-1-296.84Типовой проект 211-1-296.84Типовой проект 211-1-296.84Типовой проект 211-1-296.84Типовой проект 211-1-296.84Типовой проект 211-1-296.84Типовой проект 211-1-296.84Типовой проект 211-1-296.84Типовой проект 211-1-296.84Типовой проект 211-1-296.84Типовой проект 211-1-296.84Типовой проект 211-1-296.84Типовой проект 211-1-296.84Типовой проект 211-1-296.84Типовой проект 211-1-296.84Типовой проект 211-1-296.84Типовой проект 211-1-296.84Типовой проект 211-1-296.84Типовой проект 211-1-296.84Типовой проект 211-1-296.84Типовой проект 211-1-296.84Типовой проект 211-1-296.84

© 2013 Ёшкин Кот :-) Карта сайта