Скачать Серия ИИС29-1 Разные железобетонные конструктивные элементы для зданий с перекрытиями типа I из плит, опирающихся на полки ригелей (расчетная сейсмичность 7, 8 и 9 баллов)Дата актуализации: 10.08.2017 Серия ИИС29-1
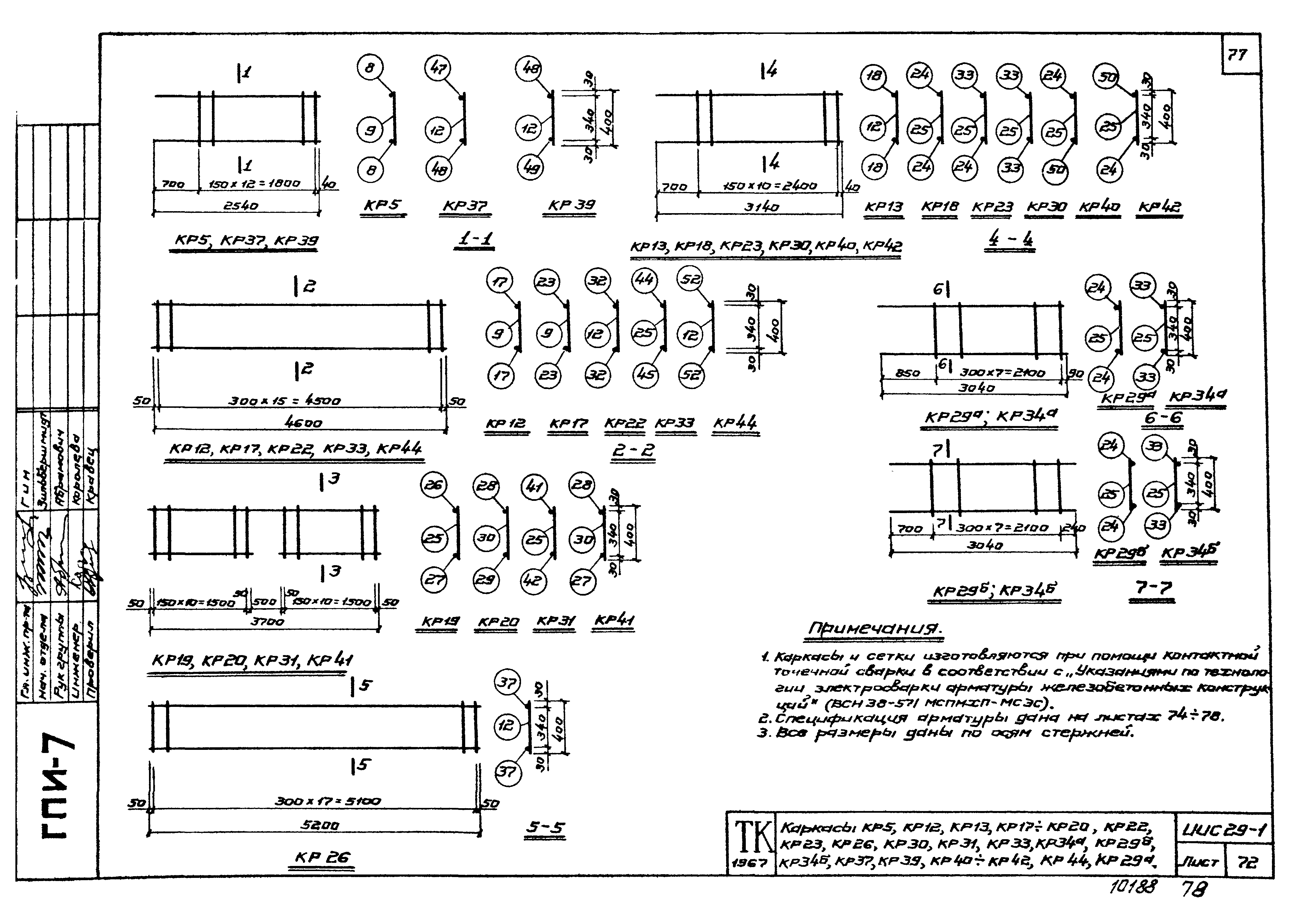
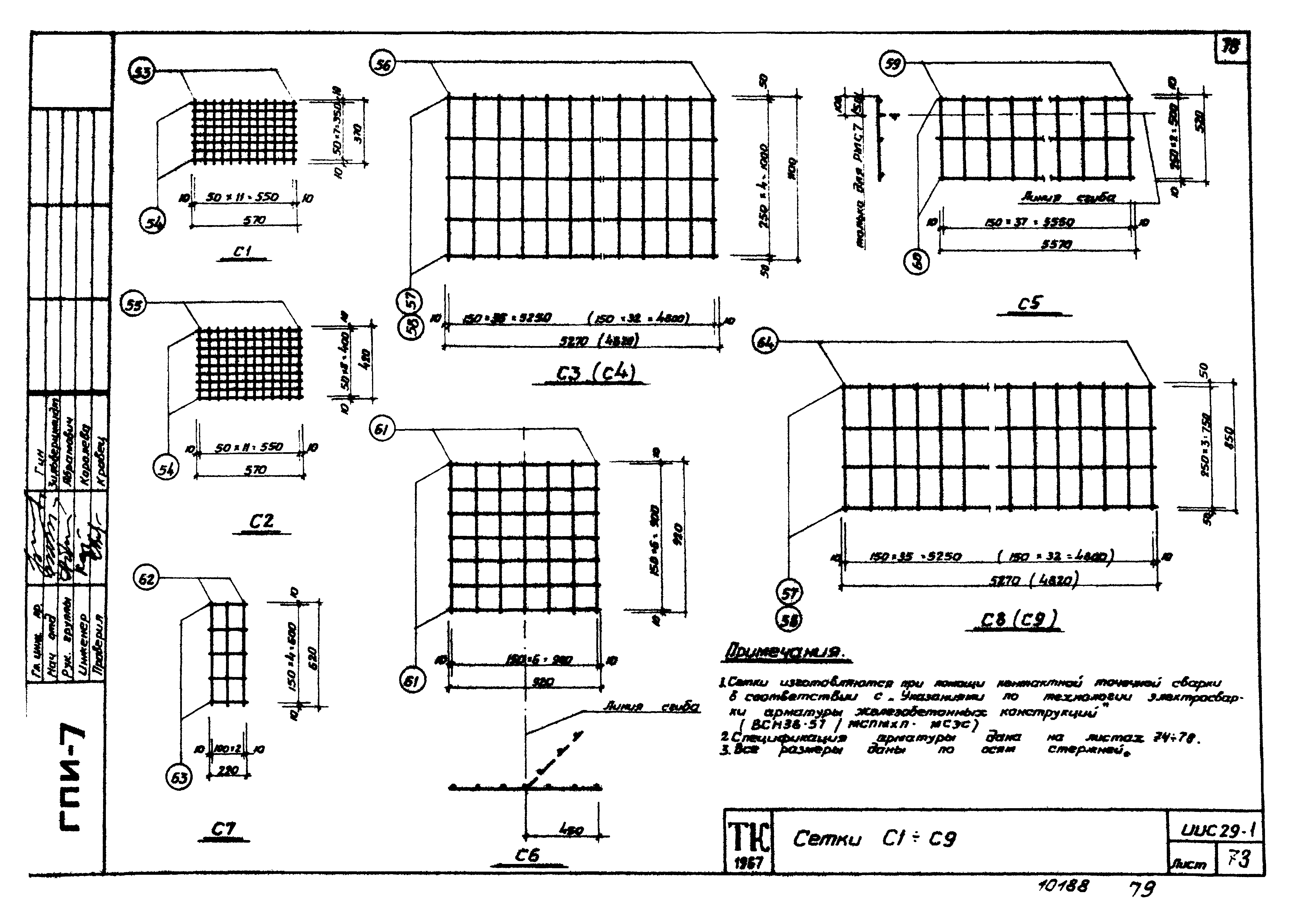
Разные железобетонные конструктивные элементы для зданий с перекрытиями типа I из плит, опирающихся на полки ригелей (расчетная сейсмичность 7, 8 и 9 баллов)| Обозначение: | Серия ИИС29-1 | | Обозначение англ: | Series ИИС29-1 | | Статус: | не действует | | Название рус.: | Разные железобетонные конструктивные элементы для зданий с перекрытиями типа I из плит, опирающихся на полки ригелей (расчетная сейсмичность 7, 8 и 9 баллов) | | Дата добавления в базу: | 01.09.2013 | | Дата актуализации: | 05.05.2017 | | Дата введения: | 01.10.1969 | | Дата окончания срока действия: | 01.06.1990 | | Разработан: | ЦНИИСК им. В.А. Кучеренко ЦНИИпромзданий НИИЖБ ГПИ-7 Госкомлегпрома
| | Утверждён: | 30.06.1969 Госстрой СССР (Государственный комитет Совета Министров СССР по делам строительства) (USSR Gosstroy 77)
| | Расположен в: |
|
                                                                                     
|