Информационная система
«Ёшкин Кот»

Скачать базу одним архивом
Скачать обновления
История создания базы
Карта сайта

Скачать Типовой проект 708-18.85 Альбом 4. Закрытая емкость. Узлы и детали. Архитектурные решения. Конструкции железобетонные. Конструкции металлические

Дата актуализации: 10.08.2017

Типовой проект 708-18.85

Альбом 4. Закрытая емкость. Узлы и детали. Архитектурные решения. Конструкции железобетонные. Конструкции металлические

Обозначение: Типовой проект 708-18.85
Обозначение англ: 708-18.85
Статус:действует
Название рус.:Альбом 4. Закрытая емкость. Узлы и детали. Архитектурные решения. Конструкции железобетонные. Конструкции металлические
Дата добавления в базу:01.09.2013
Дата актуализации:05.05.2017
Оглавление:Чертежи основного комплекта марки АР
   Общие данные
   Узлы 1 - 11
Чертежи основного комплекта марки КЖ
   Разделительная стена Ст1
   Разделительная стена Ст2
   Участок монолитный Ум1, Ум1н
   Участок монолитный Ум2, Ум2н
   Продольные стены. Узлы 1 - 4; 4н
   Продольные стены. Узлы 5 - 9; 6н
Чертежи основного комплекта марки КМ
   Схемы ферм ФК-2 - ФК-4
   Схемы ферм ФК-1; ФК-5
   Узел 1
   Разрезы к узлам
   Узел 2
   Узел 3. Разрез к узлам
   Узел 4
   Узел 5
   Узел 6
   Узлы 7, 8
   Узлы 9 - 11
   Узлы 12 - 14
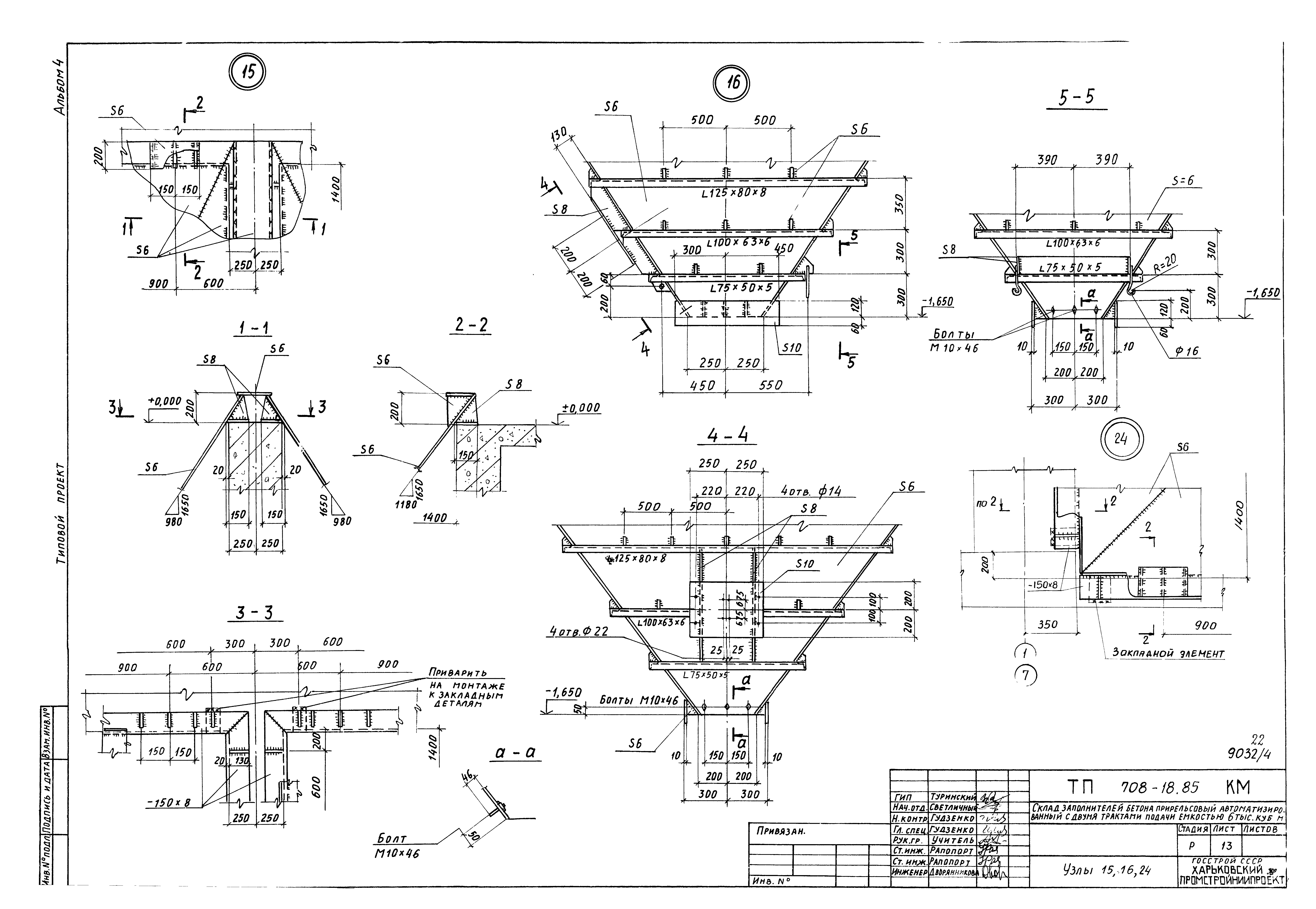
   Узлы 15, 16
   Узлы 17 - 19
   Узлы 20 - 23
Разработан: Харьковский Промстройниипроект
Утверждён:07.01.1983 Госстрой СССР (Государственный комитет Совета Министров СССР по делам строительства) (USSR Gosstroy ВА-2)
Расположен в:Техническая документация Строительство Справочные документы Типовые строительные конструкции, изделия и узлы Общероссийский строительный каталог Промышленные предприятия, здания и сооружения Предприятия, здания и сооружения складские Склады строительных материалов и изделий
Типовой проект 708-18.85Типовой проект 708-18.85Типовой проект 708-18.85Типовой проект 708-18.85Типовой проект 708-18.85Типовой проект 708-18.85Типовой проект 708-18.85Типовой проект 708-18.85Типовой проект 708-18.85Типовой проект 708-18.85Типовой проект 708-18.85Типовой проект 708-18.85Типовой проект 708-18.85Типовой проект 708-18.85Типовой проект 708-18.85Типовой проект 708-18.85Типовой проект 708-18.85Типовой проект 708-18.85Типовой проект 708-18.85Типовой проект 708-18.85Типовой проект 708-18.85Типовой проект 708-18.85Типовой проект 708-18.85Типовой проект 708-18.85Типовой проект 708-18.85Типовой проект 708-18.85

© 2013 Ёшкин Кот :-) Карта сайта