Скачать Серия 3.901-12 Выпуск 1. Затвор плоский глубинный 400х500 с электрическим или ручным приводом. Рабочие чертежиДата актуализации: 10.08.2017 Серия 3.901-12
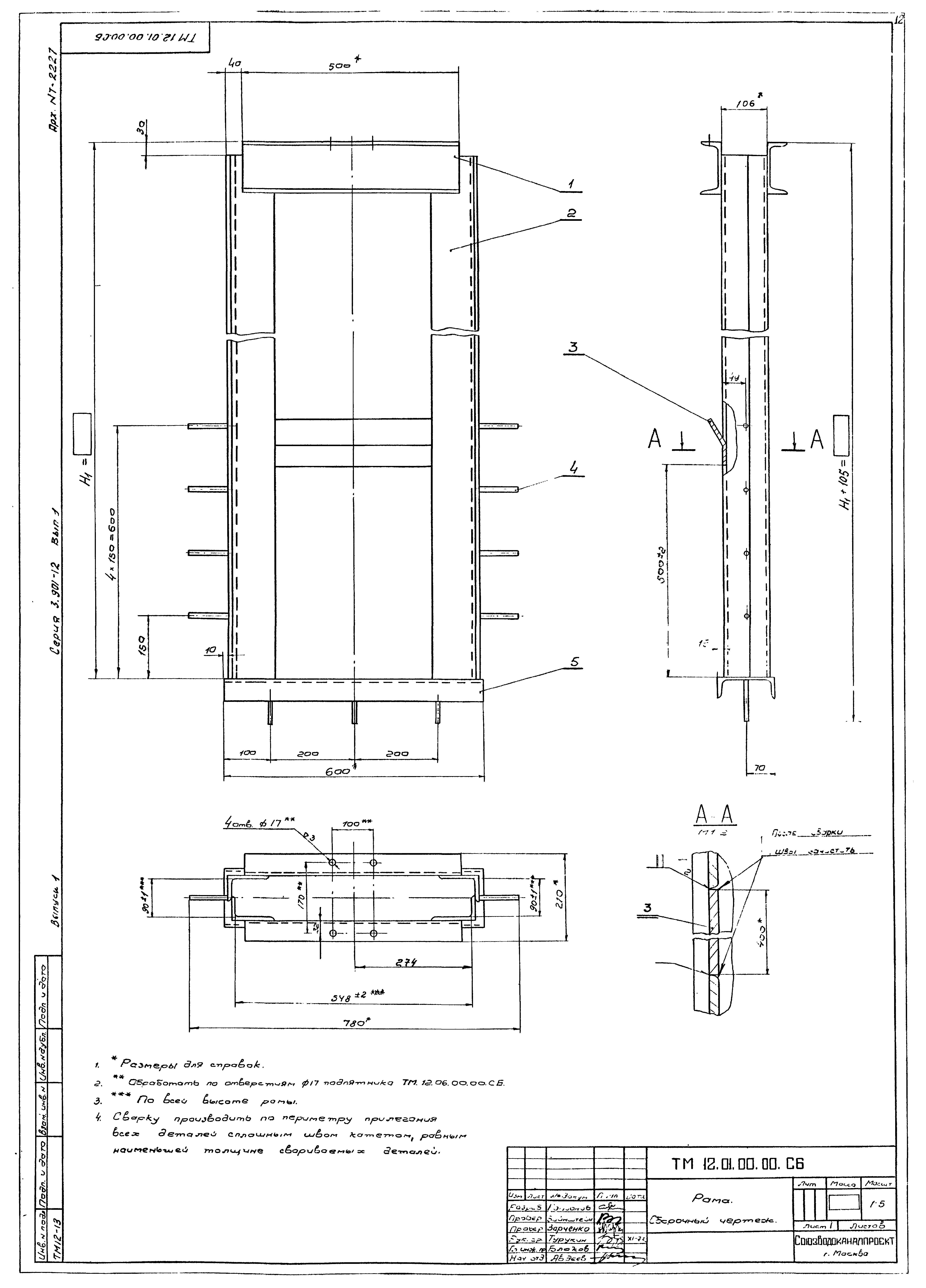
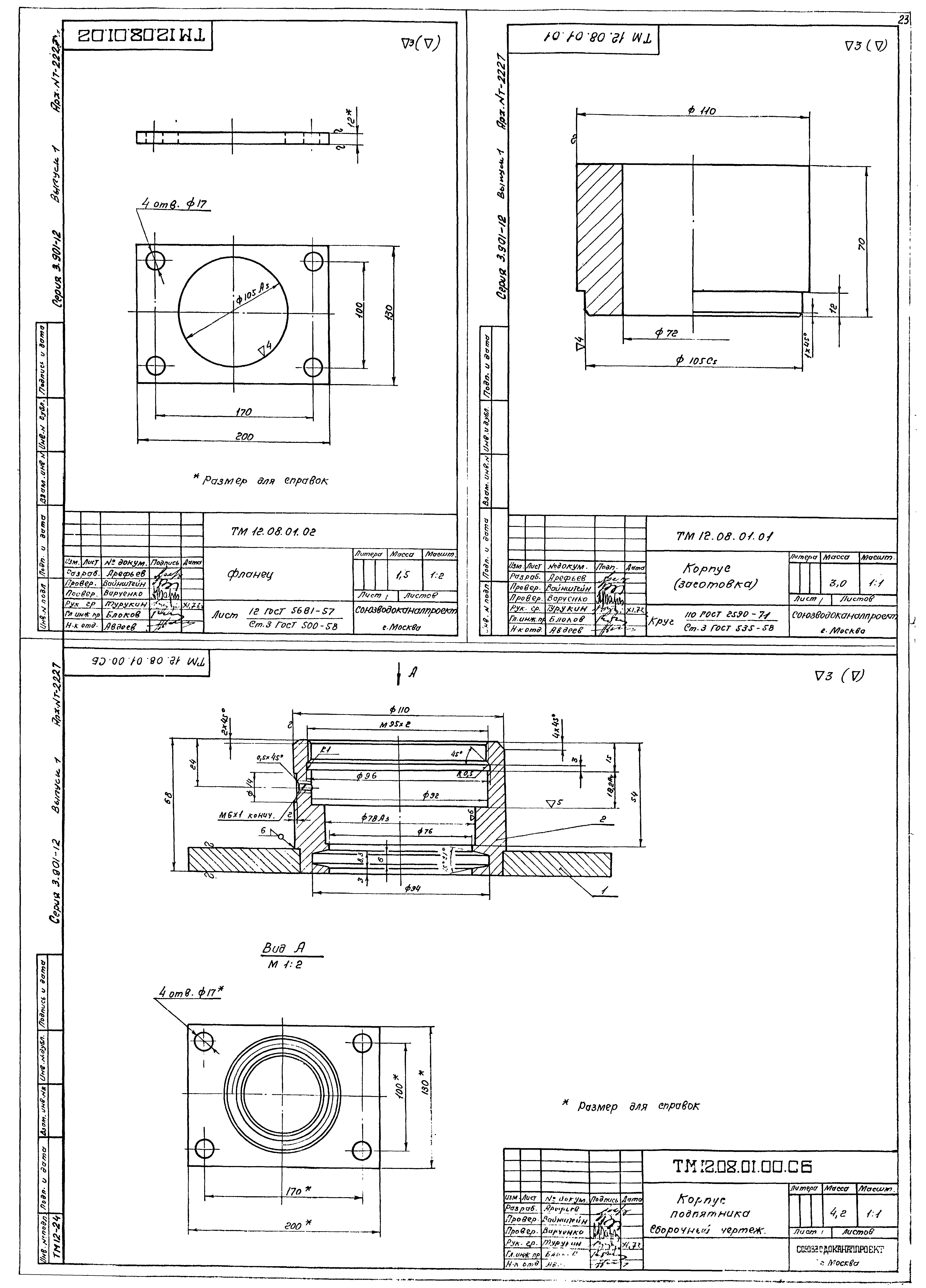
Выпуск 1. Затвор плоский глубинный 400х500 с электрическим или ручным приводом. Рабочие чертежиОбозначение: | Серия 3.901-12 | Обозначение англ: | Series 3.901-12 | Статус: | отменен | Название рус.: | Выпуск 1. Затвор плоский глубинный 400х500 с электрическим или ручным приводом. Рабочие чертежи | Дата добавления в базу: | 01.09.2013 | Дата актуализации: | 05.05.2017 | Дата введения: | 01.11.1991 | Разработан: | Союзводоканалпроект
| Утверждён: | 31.07.1973 СоюзводоканалНИИпроект (SoyuzvodokanalNIIproject 170)
| Расположен в: |
|
                        
|