Информационная система
«Ёшкин Кот»

Скачать базу одним архивом
Скачать обновления
История создания базы
Карта сайта

Скачать Типовой проект 408-32-5.87 Альбом I. Общая пояснительная записка. Технология производства. Архитектурные решения. Конструкции железобетонные. Теплоснабжение. Отопление и вентиляция. Внутренний водопровод и канализация. Воздухоснабжение. Пароснабжение

Дата актуализации: 10.08.2017

Типовой проект 408-32-5.87

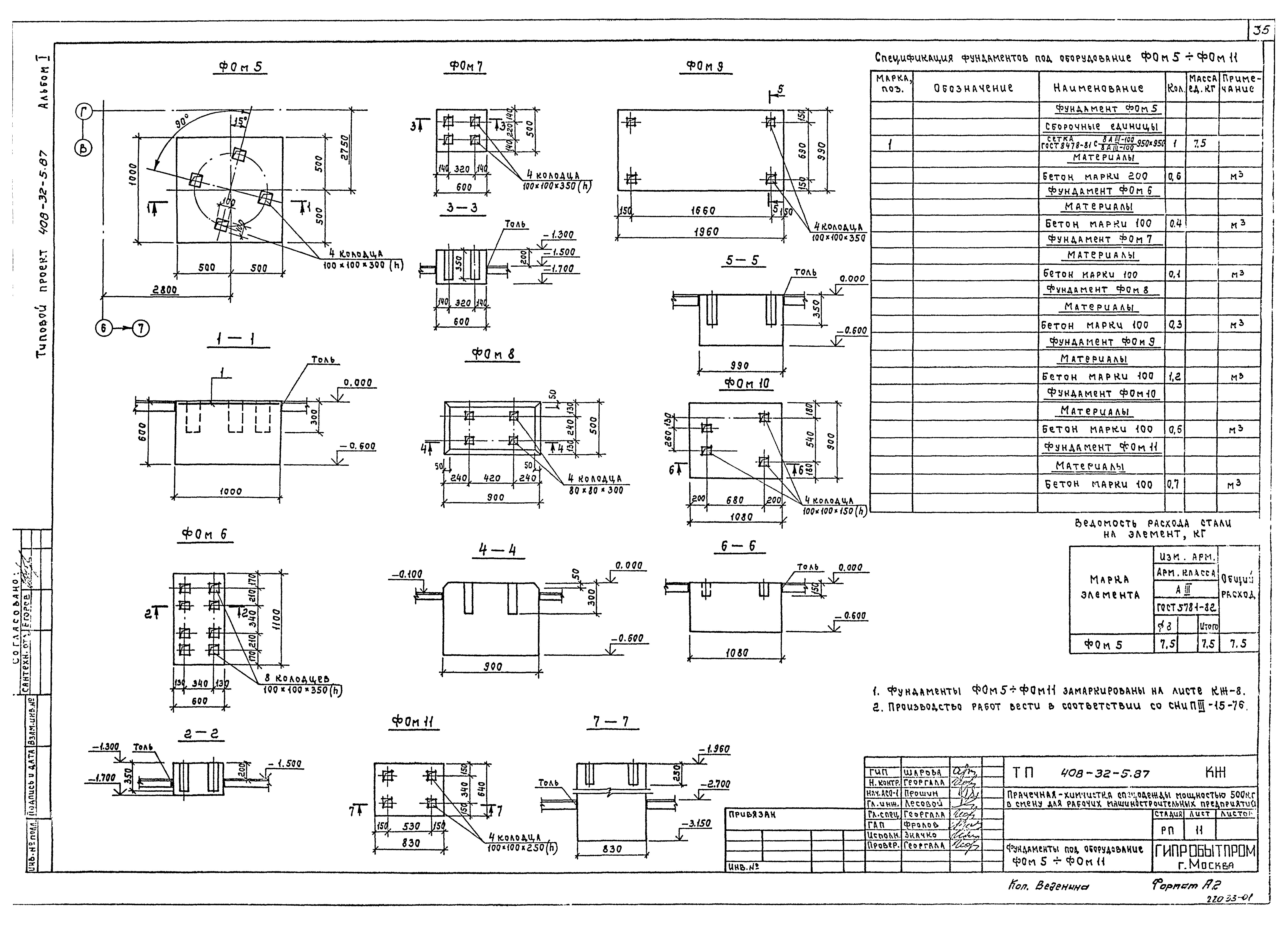
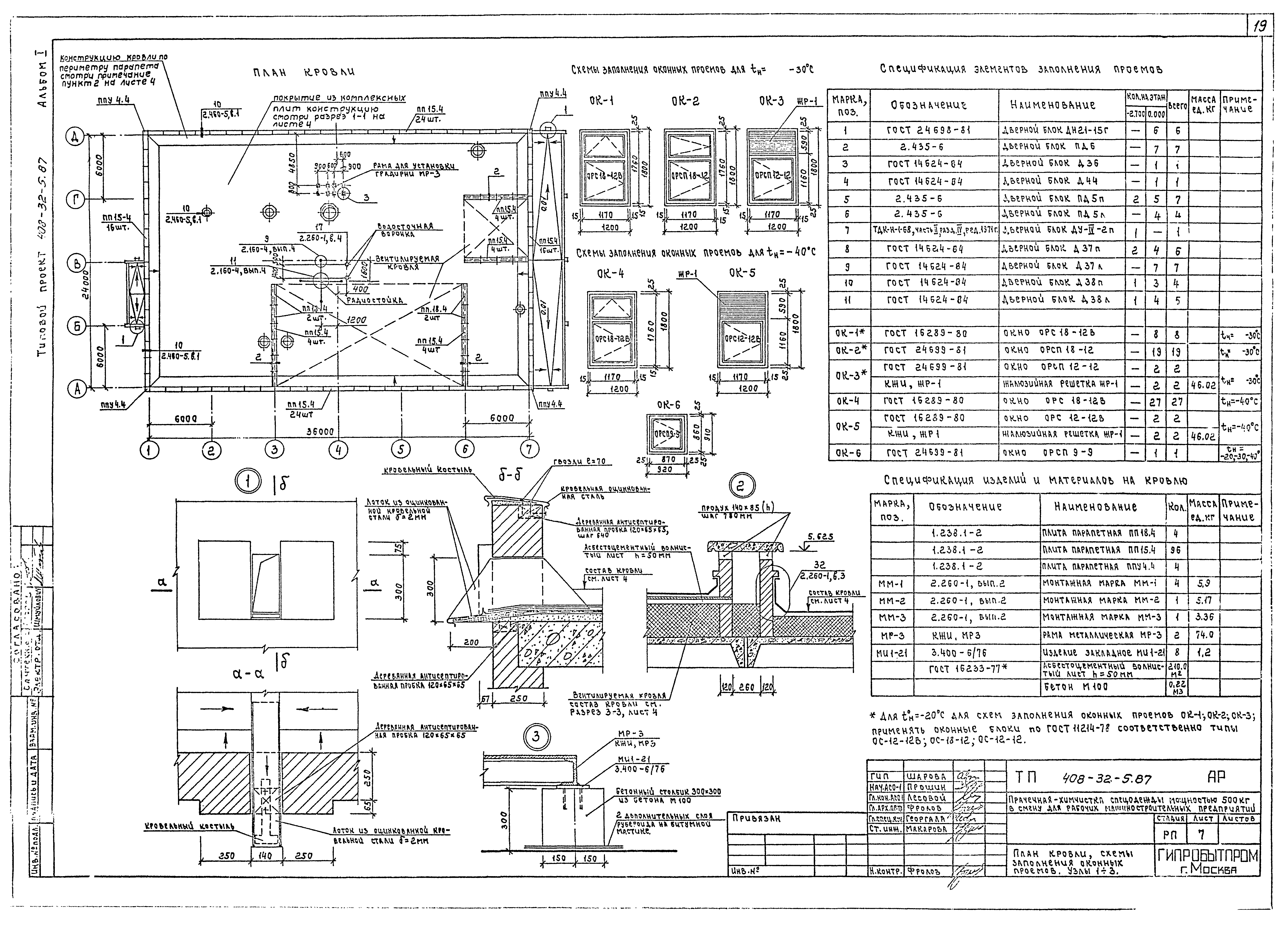
Альбом I. Общая пояснительная записка. Технология производства. Архитектурные решения. Конструкции железобетонные. Теплоснабжение. Отопление и вентиляция. Внутренний водопровод и канализация. Воздухоснабжение. Пароснабжение

Обозначение: Типовой проект 408-32-5.87
Обозначение англ: 408-32-5.87
Статус:не определен законодательством
Название рус.:Альбом I. Общая пояснительная записка. Технология производства. Архитектурные решения. Конструкции железобетонные. Теплоснабжение. Отопление и вентиляция. Внутренний водопровод и канализация. Воздухоснабжение. Пароснабжение
Дата добавления в базу:01.09.2013
Дата актуализации:05.05.2017
Дата введения:31.10.1986
Разработан: Гипробытпром
Утверждён:27.10.1986 Минбыт РСФСР (477)
Расположен в:Техническая документация Строительство Справочные документы Типовые строительные конструкции, изделия и узлы Общероссийский строительный каталог Защитные сооружения гражданской обороны Типовые проекты защитных сооружений гражданской обороны для объектов промышленности, электроэнергетики, транспорта, связи и складского хозяйства Встроенные помещения, приспосабливаемые под противорадиационные укрытия Противорадиационные укрытия в производственных зданиях промышленных предприятий Промышленные предприятия, здания и сооружения Предприятия, здания и сооружения промышленности и электроэнергетики Промышленность легкая и полиграфическая, кинематография, предприятия бытового обслуживания населения (промышленного типа) Предприятия по стирке белья и химической чистке одежды
Типовой проект 408-32-5.87Типовой проект 408-32-5.87Типовой проект 408-32-5.87Типовой проект 408-32-5.87Типовой проект 408-32-5.87Типовой проект 408-32-5.87Типовой проект 408-32-5.87Типовой проект 408-32-5.87Типовой проект 408-32-5.87Типовой проект 408-32-5.87Типовой проект 408-32-5.87Типовой проект 408-32-5.87Типовой проект 408-32-5.87Типовой проект 408-32-5.87Типовой проект 408-32-5.87Типовой проект 408-32-5.87Типовой проект 408-32-5.87Типовой проект 408-32-5.87Типовой проект 408-32-5.87Типовой проект 408-32-5.87Типовой проект 408-32-5.87Типовой проект 408-32-5.87Типовой проект 408-32-5.87Типовой проект 408-32-5.87Типовой проект 408-32-5.87Типовой проект 408-32-5.87Типовой проект 408-32-5.87Типовой проект 408-32-5.87Типовой проект 408-32-5.87Типовой проект 408-32-5.87Типовой проект 408-32-5.87Типовой проект 408-32-5.87Типовой проект 408-32-5.87Типовой проект 408-32-5.87Типовой проект 408-32-5.87Типовой проект 408-32-5.87Типовой проект 408-32-5.87Типовой проект 408-32-5.87Типовой проект 408-32-5.87Типовой проект 408-32-5.87Типовой проект 408-32-5.87Типовой проект 408-32-5.87Типовой проект 408-32-5.87Типовой проект 408-32-5.87Типовой проект 408-32-5.87Типовой проект 408-32-5.87Типовой проект 408-32-5.87Типовой проект 408-32-5.87Типовой проект 408-32-5.87Типовой проект 408-32-5.87Типовой проект 408-32-5.87Типовой проект 408-32-5.87Типовой проект 408-32-5.87Типовой проект 408-32-5.87Типовой проект 408-32-5.87Типовой проект 408-32-5.87Типовой проект 408-32-5.87Типовой проект 408-32-5.87Типовой проект 408-32-5.87Типовой проект 408-32-5.87Типовой проект 408-32-5.87Типовой проект 408-32-5.87Типовой проект 408-32-5.87Типовой проект 408-32-5.87Типовой проект 408-32-5.87Типовой проект 408-32-5.87Типовой проект 408-32-5.87Типовой проект 408-32-5.87Типовой проект 408-32-5.87Типовой проект 408-32-5.87Типовой проект 408-32-5.87Типовой проект 408-32-5.87Типовой проект 408-32-5.87Типовой проект 408-32-5.87Типовой проект 408-32-5.87Типовой проект 408-32-5.87

© 2013 Ёшкин Кот :-) Карта сайта