| 
 Скачать Альбом А11-2011 Прокладка кабелей напряжением до 35 кВ в траншеях с применением двустенных гофрированных труб ЗАО ДКСДата актуализации: 10.08.2017   Альбом А11-2011
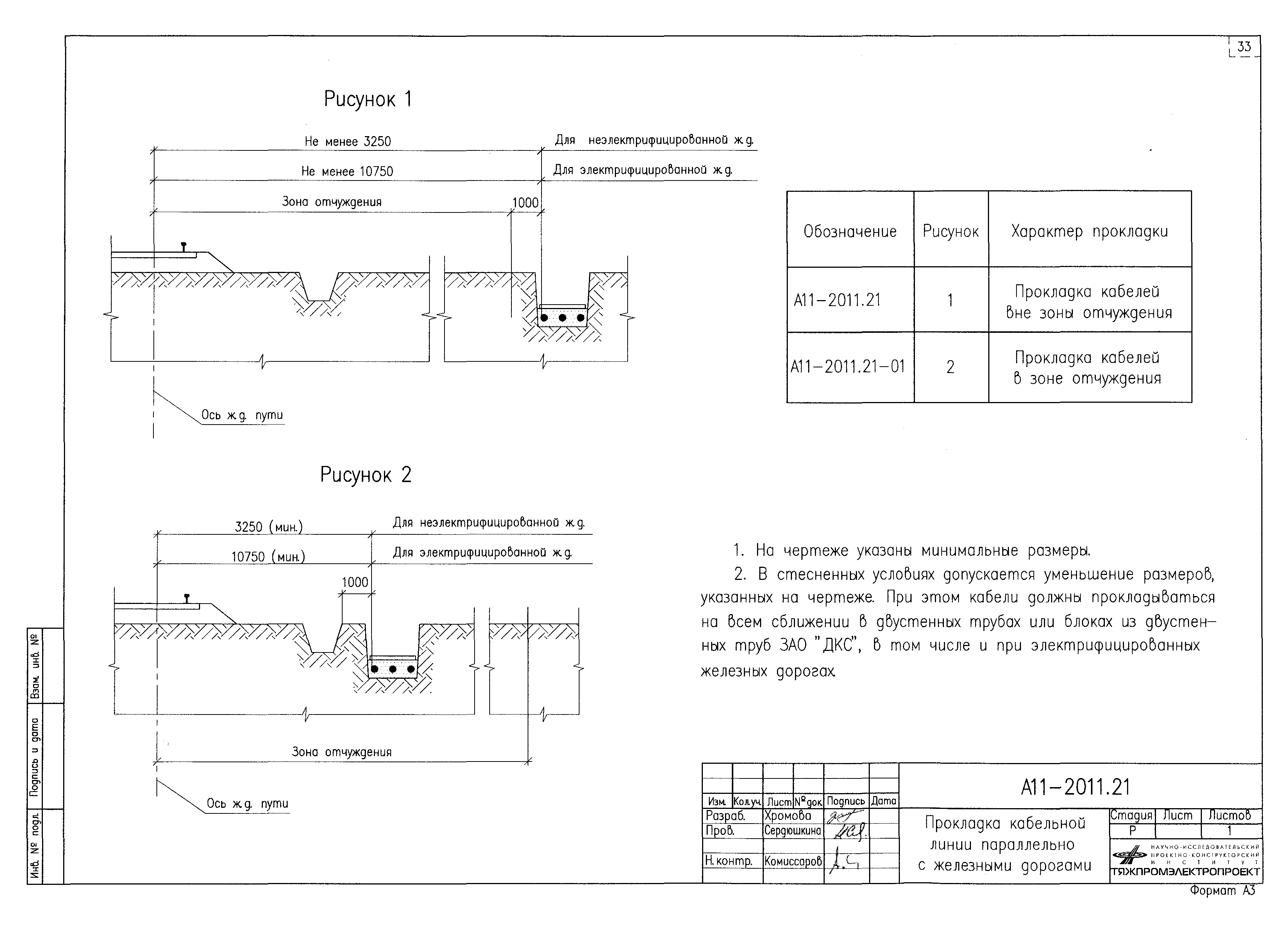
Прокладка кабелей напряжением до 35 кВ в траншеях с применением двустенных гофрированных труб ЗАО "ДКС"| Обозначение: |  Альбом А11-2011 |  | Обозначение англ: |  А11-2011 |  | Статус: | cправочные материалы, мп, тпр |  | Название рус.: | Прокладка кабелей напряжением до 35 кВ в траншеях с применением двустенных гофрированных труб ЗАО "ДКС" |  | Дата добавления в базу: | 01.09.2013 |  | Дата актуализации: | 05.05.2017 |  | Дата введения: | 01.01.2011 |  | Разработан: | Тяжпромэлектропроект ЗАО Диэлектрические кабельные системы
 
 |  | Утверждён: | 01.01.2011 Тяжпромэлектропроект 
 |  | Расположен в: | 
 | 
                                                                         |