| 
 Скачать Альбом А7-2010 Защитное заземление и уравнивание потенциалов в электроустановках. Материалы для проектирования и рабочие чертежиДата актуализации: 10.08.2017   Альбом А7-2010
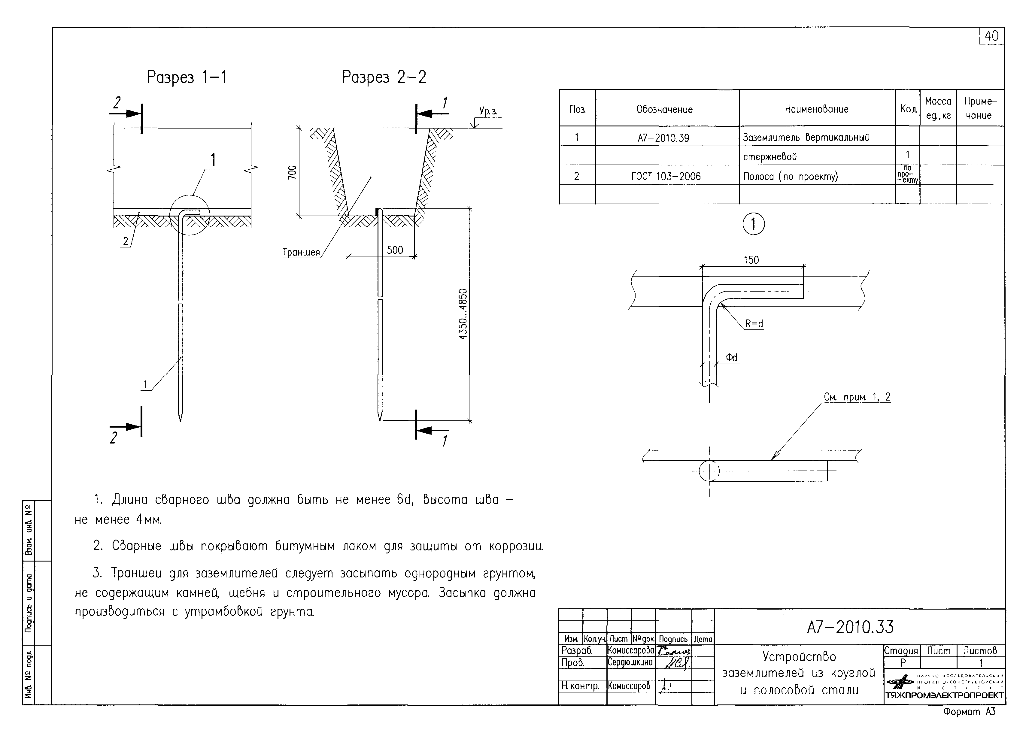
Защитное заземление и уравнивание потенциалов в электроустановках. Материалы для проектирования и рабочие чертежи| Обозначение: |  Альбом А7-2010 |  | Обозначение англ: |  А7-2010 |  | Статус: | cправочные материалы, мп, тпр |  | Название рус.: | Защитное заземление и уравнивание потенциалов в электроустановках. Материалы для проектирования и рабочие чертежи |  | Дата добавления в базу: | 01.09.2013 |  | Дата актуализации: | 05.05.2017 |  | Дата введения: | 15.07.2010 |  | Разработан: | Тяжпромэлектропроект 
 |  | Утверждён: | 15.07.2010 Росэлектромонтаж (1) 
 |  | Расположен в: | 
 | 
                                                    |