Информационная система
«Ёшкин Кот»

Скачать базу одним архивом
Скачать обновления
История создания базы
Карта сайта

Скачать Типовой проект 125-042/1 Часть 5. Часть 6. Электрооборудование. Слаботочные устройства

Дата актуализации: 10.08.2017

Типовой проект 125-042/1

Часть 5. Часть 6. Электрооборудование. Слаботочные устройства

Обозначение: Типовой проект 125-042/1
Обозначение англ: 125-042/1
Статус:не определен законодательством
Название рус.:Часть 5. Часть 6. Электрооборудование. Слаботочные устройства
Дата добавления в базу:01.09.2013
Дата актуализации:05.05.2017
Дата введения:10.12.1982
Оглавление:Общие данные
Часть 5. Электрооборудование
   Общие данные
   Спецификация
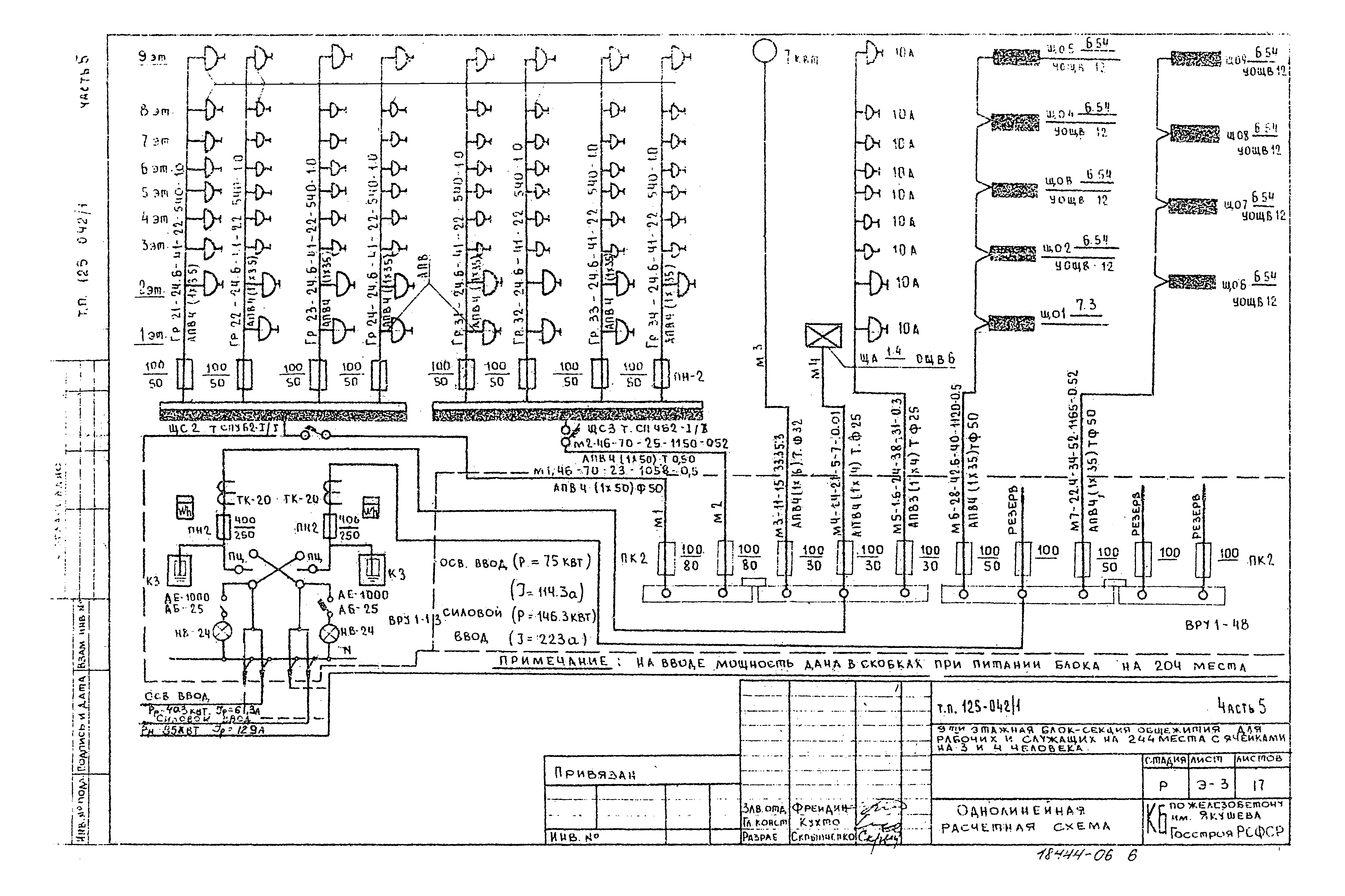
   Однолинейная расчетная схема
   Магистральные электросети и электроосвещение техподполья
   Электроосвещение 1-го этажа
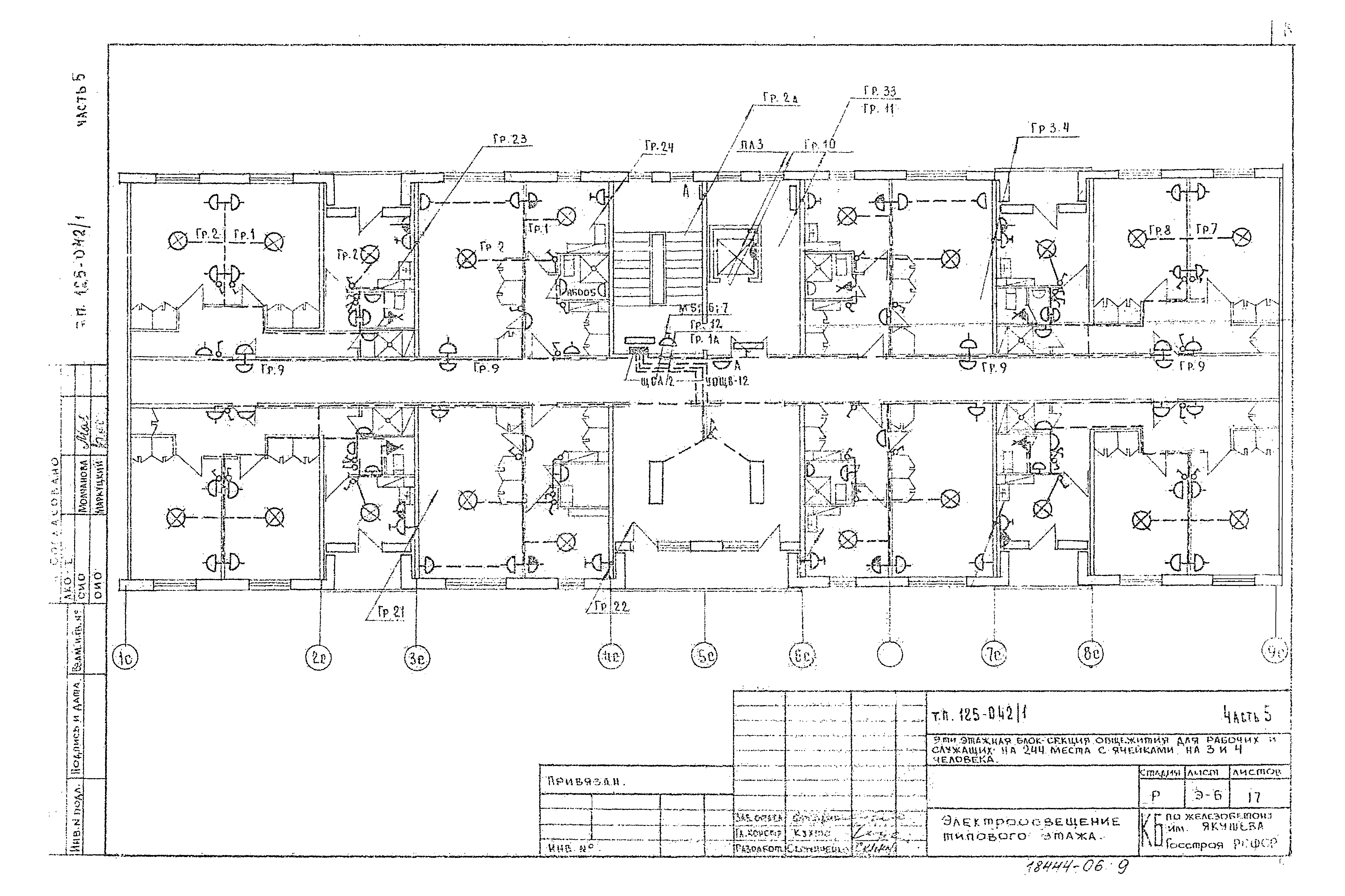
   Электроосвещение типового этажа
   Электроосвещение 1-го этажа (вариант с люминесцентными лампами)
   Электроосвещение типового этажа (вариант с люминесцентными лампами)
   Электроосвещение чердака и машинного отделения
   Узлы прокладки групповой сети
   Элементы блокировки ЭБ-1
   Элементы блокировки ЭБ-3
   Элементы блокировки ЭБ-5
   Опросный лист
   Пожаротушение. Схема электрическая принципиальная. Схема подключений. План расположения
   Пожаротушение. План расположения
Часть 6. Слаботочные устройства
   Общие данные
   Спецификация. Условные обозначения. Скелетная схема
   План техподполья. План кровли
   План 1-го этажа
   План типового этажа
Разработан: КБ по железобетону им. А.А. Якушева
Утверждён:19.12.1978 Госстрой РСФСР (Russian Federation Gosstroy 8-23)
Расположен в:Техническая документация Строительство Справочные документы Типовые строительные конструкции, изделия и узлы Общероссийский строительный каталог Жилые здания для строительства в городах и поселках городского типа Обычные условия Общежития Серия 125
Типовой проект 125-042/1Типовой проект 125-042/1Типовой проект 125-042/1Типовой проект 125-042/1Типовой проект 125-042/1Типовой проект 125-042/1Типовой проект 125-042/1Типовой проект 125-042/1Типовой проект 125-042/1Типовой проект 125-042/1Типовой проект 125-042/1Типовой проект 125-042/1Типовой проект 125-042/1Типовой проект 125-042/1Типовой проект 125-042/1Типовой проект 125-042/1Типовой проект 125-042/1Типовой проект 125-042/1Типовой проект 125-042/1Типовой проект 125-042/1Типовой проект 125-042/1Типовой проект 125-042/1Типовой проект 125-042/1Типовой проект 125-042/1Типовой проект 125-042/1

© 2013 Ёшкин Кот :-) Карта сайта