Информационная система
«Ёшкин Кот»

Скачать базу одним архивом
Скачать обновления
История создания базы
Карта сайта

Скачать Типовой проект 902-2-449.88 Альбом II. Технологические решения. Архитектурные решения. Конструкции железобетонные. Конструкции металлические. Отопление и вентиляция. Внутренний водопровод и канализация. Электротехническая часть. Автоматизация. Связь и сигнализация. Строительные изделия

Дата актуализации: 10.08.2017

Типовой проект 902-2-449.88

Альбом II. Технологические решения. Архитектурные решения. Конструкции железобетонные. Конструкции металлические. Отопление и вентиляция. Внутренний водопровод и канализация. Электротехническая часть. Автоматизация. Связь и сигнализация. Строительные изделия

Обозначение: Типовой проект 902-2-449.88
Обозначение англ: 902-2-449.88
Статус:не определен законодательством
Название рус.:Альбом II. Технологические решения. Архитектурные решения. Конструкции железобетонные. Конструкции металлические. Отопление и вентиляция. Внутренний водопровод и канализация. Электротехническая часть. Автоматизация. Связь и сигнализация. Строительные изделия
Дата добавления в базу:01.09.2013
Дата актуализации:05.05.2017
Дата введения:15.03.1988
Оглавление:Содержание альбома
Технологические решения
   Общие данные
   План на отм. 0.000. Разрез 1-1. Экспликация оборудования. Экспликация помещений
   Разрез 2-2. Схема В3. Узел А
   Контейнер. Эскизный чертеж общего вида
   Затвор щитовой общего вида
Архитектурные решения
   Общие данные
   Планы на отм. 0.000; 3.000
   Фасады 1 - 2; 2 - 1; А - Б; Б - А
   План кровли и полов. Экспликация полов. Ведомость отделки помещений
   Ведомость и спецификация перемычек. Спецификация элементов заполнения проемов. Ведомость проемов дверей
Конструкции железобетонные
   Общие данные
   Схема расположения фундаментов
   Схемы расположения каналов и фундаментов под оборудование
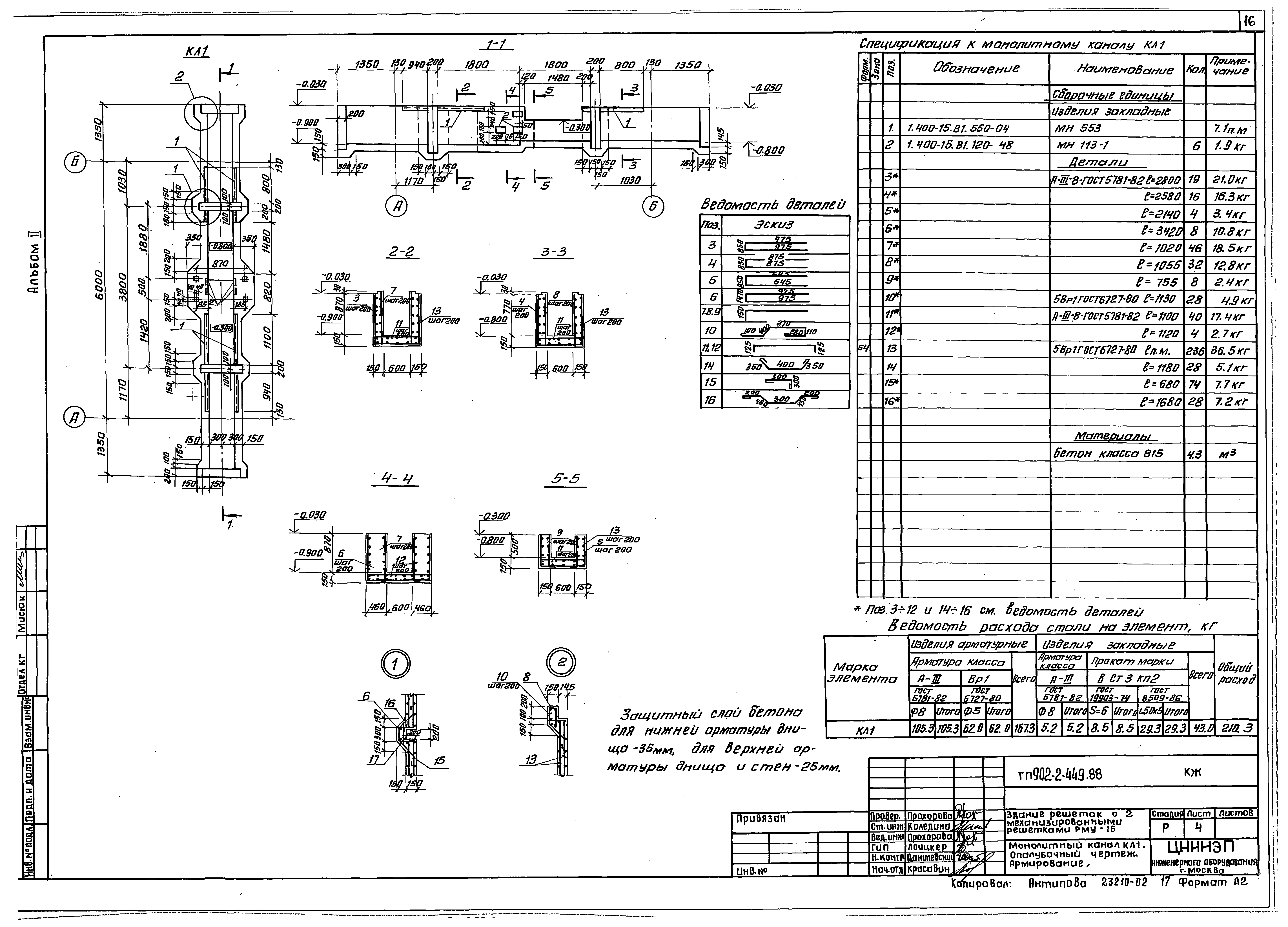
   Монолитный канал КЛ1. Опалубочный чертеж. Армирование
   Схемы расположения плит покрытия и перекрытия. Венткамера
   Рамка металлическая РМ1
   Рамка металлическая РМ2
   Щит Щ1
   Щит (Щ2, Щ3)
   Жалюзийная решетка МР1
Конструкции металлические
   Общие данные. Ведомость металлоконструкций по видам профилей
   Техническая спецификация стали
   Схема расположения пути подвесного крана. Схема расположения металлических площадок и лестниц
Отопление и вентиляция
   Общие данные
   Планы на отм. 0.000; 3.000. Схема системы отопления. Схемы вентиляции П1; В1; ВЕ1. Узел управления
   Установка систем П1; В1. Схема системы теплоснабжения
   Конфузор. Переход
Внутренний водопровод и канализация
   Общие данные. Внутренний водопровод и канализация. План на отм. 0.000. Схемы В1, Т3, К1. Экспликация помещений
Силовое электрооборудование
   Общие данные
   Схема электрическая принципиальная распределительной сети 380/220 В
   Схема электрическая принципиальная управления насосом подачи воды гидроэлеваторам М1 (М2). Схема подключения электрооборудования. Ящик Я1 (Я2)
   Схема электрическая принципиальная управления решеткой М3 (М4)
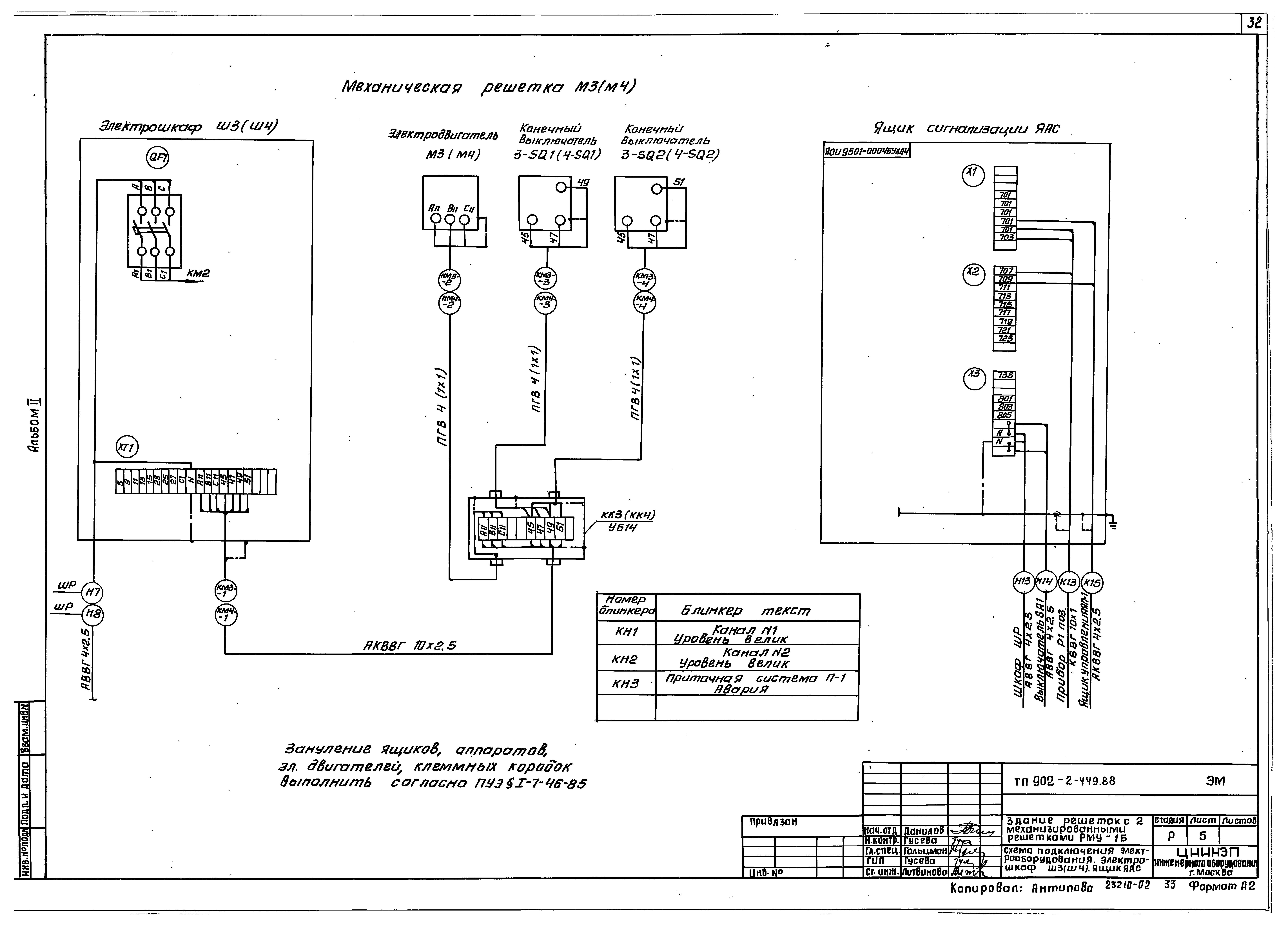
   Схема подключения электрооборудования. Электрошкаф Ш3 (Ш4). Ящик ЯАС
   Схема подключения электрооборудования. Ящики ЯП1, ЯНЭ. Пускатель КМВ-1
   Кабельный журнал. Сводка кабелей и проводов, учтенных кабельным журналом
   Размещение электрооборудования и прокладка кабеля. План на отм. 0.000; 3.000
   Прокладка троллейного шинопровода для электрического крана К1. План на отм. 3.000
Электрическое освещение
   Общие данные. Электрическое освещение. Планы на отм. 0.000 и 3.000
Автоматизация
   Общие данные
   Схема автоматизации
   Схема внешних проводок
   Размещение приборов технологического контроля и прокладка кабеля. План на отм. 0.000
Связь и сигнализация
   Общие данные. План на отм. 0.000 с сетями связи и сигнализации. Скелетная схема
Организация строительства
   Схема стройгенплана
   График производства работ
Разработан: ЦНИИЭП иженерного оборудования
Утверждён:15.03.1988 Госкомархитектура (64)
Расположен в:Техническая документация Строительство Справочные документы Типовые строительные конструкции, изделия и узлы Общероссийский строительный каталог Промышленные предприятия, здания и сооружения Здания и сооружения санитарно-технические Канализация Сооружения механической очистки Здания решеток
Заменяет собой:
Типовой проект 902-2-449.88Типовой проект 902-2-449.88Типовой проект 902-2-449.88Типовой проект 902-2-449.88Типовой проект 902-2-449.88Типовой проект 902-2-449.88Типовой проект 902-2-449.88Типовой проект 902-2-449.88Типовой проект 902-2-449.88Типовой проект 902-2-449.88Типовой проект 902-2-449.88Типовой проект 902-2-449.88Типовой проект 902-2-449.88Типовой проект 902-2-449.88Типовой проект 902-2-449.88Типовой проект 902-2-449.88Типовой проект 902-2-449.88Типовой проект 902-2-449.88Типовой проект 902-2-449.88Типовой проект 902-2-449.88Типовой проект 902-2-449.88Типовой проект 902-2-449.88Типовой проект 902-2-449.88Типовой проект 902-2-449.88Типовой проект 902-2-449.88Типовой проект 902-2-449.88Типовой проект 902-2-449.88Типовой проект 902-2-449.88Типовой проект 902-2-449.88Типовой проект 902-2-449.88Типовой проект 902-2-449.88Типовой проект 902-2-449.88Типовой проект 902-2-449.88Типовой проект 902-2-449.88Типовой проект 902-2-449.88Типовой проект 902-2-449.88Типовой проект 902-2-449.88Типовой проект 902-2-449.88Типовой проект 902-2-449.88Типовой проект 902-2-449.88Типовой проект 902-2-449.88Типовой проект 902-2-449.88Типовой проект 902-2-449.88Типовой проект 902-2-449.88Типовой проект 902-2-449.88

© 2013 Ёшкин Кот :-) Карта сайта