| ||||||||||||||||||||||||||||||||||
Скачать НД 2-030101-021 Приложения к Руководству по техническому наблюдению за ремонтом морских судовДата актуализации: 10.08.2017
|
| Обозначение: | НД 2-030101-021 |
| Обозначение англ: | ND 2-030101-021 |
| Статус: | заменен |
| Название рус.: | Приложения к Руководству по техническому наблюдению за ремонтом морских судов |
| Дата добавления в базу: | 01.09.2013 |
| Дата актуализации: | 05.05.2017 |
| Дата введения: | 01.07.2016 |
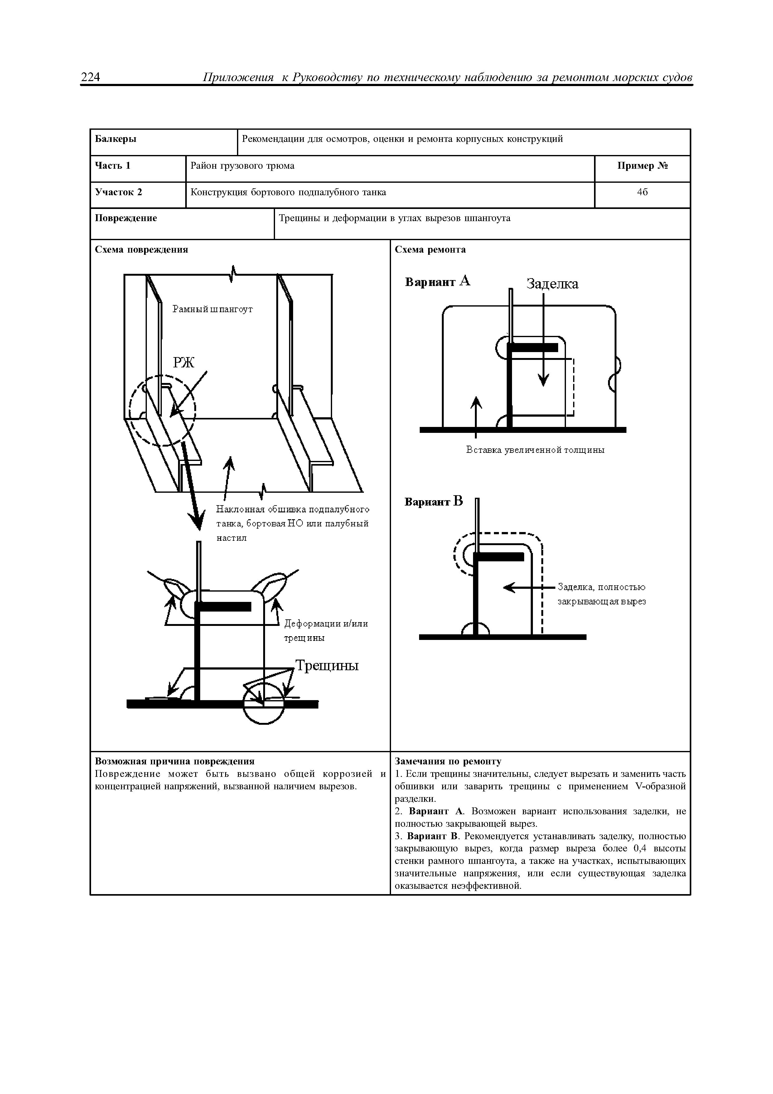
| Область применения: | Приложения являются частью «Руководства по техническому наблюдению за ремонтом морских судов» и предназначены для инспекторского состава, судоремонтных предприятий, экипажей судов и судовладельцев в качестве руководства по проведению освидетельствований и испытаний отдельных объектов технического наблюдения Регистра при их ремонте, оформлению отчетных документов Регистра по результатам освидетельствований, инструкций по определению технического состояния, проведению замеров толщин и т. п., техническому наблюдению за ремонтом. |
| Оглавление: | 1 Перечень объектов и работ по корпусной части, подлежащих техническому наблюдению Регистра при ремонте судов 2 Рекомендации по конструктивному оформлению элементов и узлов корпусных конструкций морских судов 3 Инструкция по определению технического состояния, обновлению и ремонту корпусов морских судов 4 Контроль вырезки отверстий и вварки деталей, узлов и конструкций в замкнутый контур 5 Обработка металла: основные положения по контролю 6 Типовая подготовка и типовой ремонт сварных кромок при ручной дуговой сварке стыковых и угловых/тавровых швов 7 Техническое наблюдение за восстановлением корродированных сварных швов наплавкой при ремонте морских судов 8 Назначение минимальных объемов рентгенографического или ультразвукового контроля при проверке качества сварных швов при ремонте корпусных конструкций. 9 Техническое наблюдение за ремонтом конструкций с трещинами с использованием сварки 10 Ремонт корпусных конструкций морских судов 11 Особенности технического наблюдения за ремонтом элементов рулевых устройств 12 Инструкция по техническому наблюдению за дуговой наплавкой стальных деталей судовых тел вращения при изготовлении и ремонте |
| Разработан: | Российский морской регистр судоходства |
| Утверждён: | 17.02.2005 Российский морской регистр судоходства |
| Издан: | Российский морской регистр судоходства (2005 г. ) |
| Расположен в: | |
| Чем заменён: | |
| Нормативные ссылки: |

































































































































































































































































































